Imobil cu functiune birouri localizat in zona Calea Mosilor - Foisorul de Foc, ofera conditii optime de acomodare companiilor ce vizeaza zona centrala, avand o buna conexiune cu mijloacele de transport in comun si potential pentru activitate de birou/ cursuri cu public. Viitorul locatar poate beneficia de o sala de conferinta ce poate fi utilizata gratuit, precum si de o terasa circulabila pentru evenimente corporate/ private (pergola retractabila, pardoseala tartan).
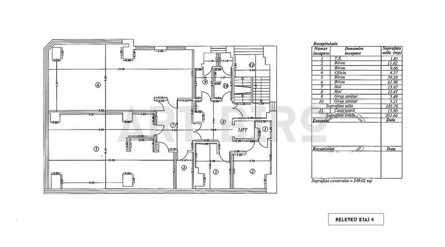
Spatiu disponibil: etaj 4 (integral) in suprafata de 202mp compus (conform releveu anexat) din 4 partitii (62, 59, 12, 10mp), oficiu mobilat, hol receptie, 2 grupuri sanitare. Spatiul este igienizat si se preda cu retea date. Optiunea de a prelua fractionat etajul (incepand de la 100mp) se poate discuta in functie de solicitare
Pretul chiriei este de 12 eur/mp, iar costurile administrative in valoare de 2.5 eur/mp. 2 locuri parcare alocate suprateran, cu bariera, 100 eur/ unitate. Se aduga TVA.
Cladirea dispune de climatizare (ventiloconvectoare), statie de tratare a apei, serviciu paza 24/7, administrare si receptie, generator sisteme vitale, lift, senzori detectie, control acces cu cartela magnetica, supraveghere video, parcare proprie securizata.
Accesul catre servicii transport se face rapid, distanta mers statie STB/ Metrou: 2/ 10 min ([M] Obor).
Utilitati contorizate separat/ pro-rata, costurile fiind disponibile pentru evaluare.
Consultanta oferita pe intregul parcurs al procesului de relocare/ acomodare birou (analiza comparativa oferte, vizionari, clauze contractuale, servicii suport) este gratuita.
Sediul central - Timișoara
Bulevardul Victor Babeș nr. 2, 300230, Timișoara, România
Tel: +40.374.40.44.98 / Fax: +40.256.401.179
Email: suport@imobiliare.ro
Luni - Vineri 08:00 - 20:00
Punct de lucru - București: Iride Business Park, Bld. Dimitrie
Pompeiu 9-9A, Clădirea B2B,
020335, Sector 2, București, România
CONTACT
Sediul central - Timișoara
Bulevardul Victor Babeș nr. 2, 300230, Timișoara, România
Tel: +40.374.40.44.98 / Fax: +40.256.401.179
Email: suport@imobiliare.ro
Luni - Vineri 08:00 - 20:00
Punct de lucru - București: Iride Business Park, Bld. Dimitrie
Pompeiu 9-9A, Clădirea B2B,
020335, Sector 2, București, România
Dacă te vei muta în zona Moșilor - Foișorul de Foc - Traian, vei avea la dispoziție mai multe mijloace de transport în comun care te vor ajuta să te deplasezi prin oraș. Printre acestea se numără tramvaiul 21 al cărui traseu traversează Calea Moșilor și ajunge până la Piața Sf. Vineri, troleibuzul 66 cu care poți ajunge în zona Fundeni și autobuzul 330 util dacă vrei să mergi până la Piața Presei. Cea mai apropiată stație de metrou pe care o vei avea la dispoziție este Obor, de pe magistrala M1 Dristor - Pantelimon. De aici ajungi în 5 minute la Piața Victoriei și în mai puțin de 10 minute la Gara de Nord. De pe Bulevardul Pache Protopopescu poți să iei autobuzul 311 și să ajungi imediat la Piața Rosetti, aflată la doi pași de km 0 al orașului. Cu troleibuzul 70 poți să ajungi rapid la Parcul Cișmigiu, iar troleibuzul 90 face legătura dintre această zonă și Drumul Taberei. Consultă harta pentru a afla unde găsești cele mai apropiate stații de viitoarea ta locuință.
În zona Pache Protopopescu găsești unul dintre cele mai bune licee din Capitală, Colegiul Național "Mihai Viteazul", dar și școli de renume, precum Școala Gimnazială nr. 52 Iancului. Tot aici se află și Facultatea de Inginerie a Instalațiilor și Universitatea Națională de Artă Teatrală și Cinematografică "Ion Luca Caragiale". Ai în apropiere Colegiul Național "Iulia Hașdeu", Liceul Teoretic "Ady Endre", Colegiul Economic "A.D. Xenopol" și Colegiul Național Bilingv "George Coșbuc". Mai multe unități de învățământ, pe hartă.
Găsești diverse magazine în apropiere, pe Calea Moșilor. Ajungi destul de repede la magazinul Bucur Obor și la Piața Obor. În imediata vecinătate a acestora se află și mall-ul Veranda, alături de un hipermarket Carrefour și de un magazin Kaufland. Poți să ajungi cu mașina destul de ușor la Unirea Shopping Center sau la București Mall. Vrei mai multe opțiuni? Consultă harta și găsește cel mai apropiat magazin de viitoarea ta locuință.
Preferi să te deplasezi prin oraș cu propria mașină? Atunci îți aducem în atenție faptul că vei întâlni trafic aglomerat, la orele de vârf, pe Calea Moșilor, în special la intersecția dintre aceasta, Bulevardul Dacia și străzile Mihai Eminescu și Traian. Pentru a afla dacă poți închiria un loc de parcare în apropierea locuinței trebuie să apelezi la Birouri Parcări din cadrul ADP Sector 2. Dacă te muți la casă, atunci vei parca cel mai probabil mașina fie în curte, fie pe marginea trotuarului. Există și unele proiecte boutique care pun la dispoziția rezidenților locuri de parcare. Consultă harta pentru poziționarea principalelor parcări din împrejurimi.
Dacă te vei muta în zona Moșilor - Foișorul de Foc - Traian vei avea la doi pași de casă mai multe baruri și restaurante. În plus, te vei afla în apropiere de centrul orașului, unde găsești localuri cu specific variat sau poți merge la un spectacol pus în scenă de Teatrul Național "Ion Luca Caragiale". Cel mai apropiat parc de viitoarea ta locuință va fi Parcul Obor, situat în fața Primăriei Sectorului, sau micul parc Izvorul Rece aflat la intersecția dintre Bulevardul Pache Protopopescu și Bulevardul Ferdinand I. Vei ajunge destul de rapid și la Parcul Grădina Icoanei sau la Parcul Ioanid. În vecinătatea lor se organizează periodic diferite evenimente, cel mai notabil dintre acestea fiind Street Delivery. Alte evenimente culturale se organizează pe Strada Armenească și pe Strada Mătăsari, un fost "cartier roșu" al Capitalei. Dacă ai nevoie de o rundă de shopping, atunci poți să mergi la mall-ul Veranda. Ai și alte activități la dispoziție aici. Află ce alte opțiuni de petrecere a timpului liber ai dacă locuiești în această zonă.
Din zona Pache Protopopescu ajungi rapid la Spitalul de Urgență "Profesor Doctor Dimitrie Gerota" și la Spitalul Clinic de Ortopedie, Traumatologie și TBC Osteoarticular "Foișor". Cu mașina ajungi în câteva minute la Spitalul Clinic de Copii "Dr. Victor Gomoiu" și la Spitalul Clinic Colentina. Vezi și ce clinici private ai în apropierea casei. Consultă harta.
Găsești mai multe restaurante, terase și cafenele în zonă și în împrejurimi. Chiar pe Bulevardul Pache Protopopescu se află Hanu"™ Berarilor Casa Elena Lupescu, iar la Piața Iancului ai restaurantul Intermacedonia. Fast food-uri găsești în apropiere de Colegiul Național "Iulia Hașdeu" și în zona Obor. Alte restaurante în mall-ul Veranda. Din această zonă ajungi, totodată, rapid la Piața Universității, unde ai acces la terasele și restaurantele din Centrul Vechi. Consultă harta pentru mai multe opțiuni în apropierea casei tale.
Sucursale bancare și ATM-uri pot fi găsite pe Șoseaua Mihai Bravu. Consultă harta pentru mai multe informații.
Înainte să pleci...
Ești sigur că ai văzut și aceste proprietăți?
1.699 € / lună
București, Moșilor
140 mp utili
Clădire de birouri
P+4E
2.709 € / lună
București, Universitate
258 mp utili
Clădire de birouri
7E
2.967 - 5.934 € / lună
București, Universitate
258 mp utili
Clădire de birouri
P+4E
2.025 € / lună
București, Dacia
150 mp utili
Clădire de birouri
7E
2.000 € / lună
București, Universitate
200 mp utili
Clădire de birouri
P+14E
2.123 € / lună
București, Universitate
193 mp utili
Casă/Vilă
P+2E
Creează alertă
Salvează căutarea ca să primești pe email ultimele anunțuri publicate
Birouri cu 4+ camere de închiriat în zona Moșilor, Sector 2
Cere detalii prin email
*
*
*
*
Detaliile tale de contact vor fi partajate cu Art Biro