Imobil modern cu functiune birouri, inaugurat in anul 2017 la standarde clasa A si amplasat in proximitatea Piatei Muncii, ofera conditii optime de acomodare companiilor ce vizeaza zona central estica a orasului, un spatiu luminos si gata pentru preluare imediata.
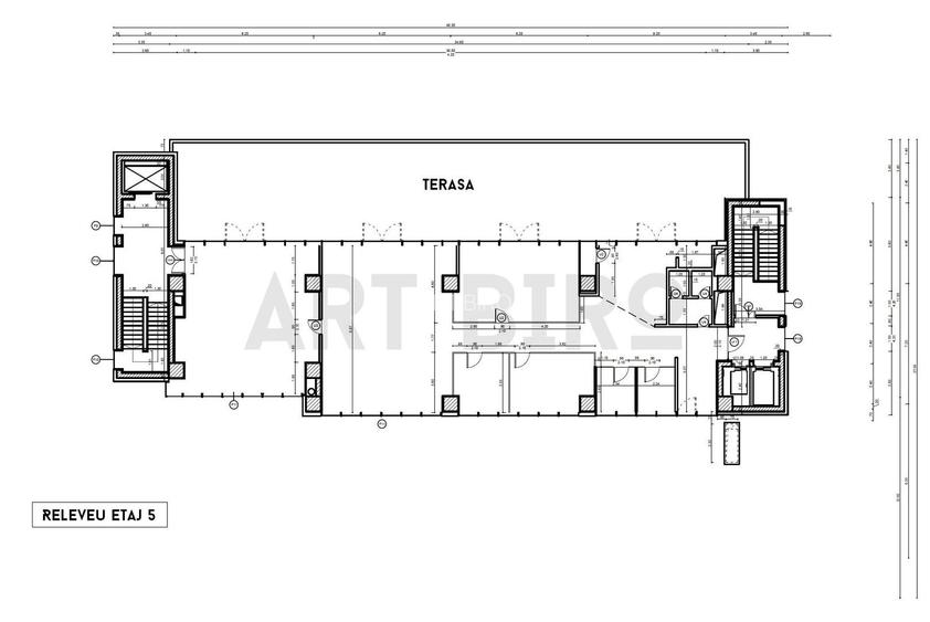
Spatiile disponibile: etaj 5 - 360mp plus terasa, iar formatul (conform releveu anexat) - zona receptie, 7 partitii cu suprafete de 77, 70, 32, 24, 11, 6, 6mp, bucatarie, camera server racita, 2 toalete exclusive. Partitiile de sticla fac parte din oferta. Spatiul se preda igienizat.
Suplimentar: etaj 1 (585mp).
Pretul chiriei este de 13 eur/mp, iar costuri administrative in valoare de 3.5 eur/mp. Parcare 100 eur/ unitate subterana, se pot aloca pana la 5 unitati. Se adauga TVA
Cladirea dispune de climatizare (ventiloconvectoare cu aport aer proaspat), geamuri care se deschid, generator sisteme vitale, serviciu receptie, paza permanenta si administrare, monitorizare, senzori detectie, acces securizat, 3 lifturi, parcare proprie subterana/ supraterana.
Accesul catre servicii transport se face rapid (distanta mers statie STB/ Metrou: 4/ 8' ([M] Piata Muncii)
Utilitati contorizate separat/ pro-rata, costurile fiind disponibile pentru evaluare.
Consultanta oferita pe intregul parcurs al procesului de relocare/ acomodare birou (analiza comparativa oferte, vizionari, clauze contractuale, servicii suport) este gratuita.
Sediul central - Timișoara
Bulevardul Victor Babeș nr. 2, 300230, Timișoara, România
Tel: +40.374.40.44.98 / Fax: +40.256.401.179
Email: suport@imobiliare.ro
Luni - Vineri 08:00 - 20:00
Punct de lucru - București: Iride Business Park, Bld. Dimitrie
Pompeiu 9-9A, Clădirea B2B,
020335, Sector 2, București, România
CONTACT
Sediul central - Timișoara
Bulevardul Victor Babeș nr. 2, 300230, Timișoara, România
Tel: +40.374.40.44.98 / Fax: +40.256.401.179
Email: suport@imobiliare.ro
Luni - Vineri 08:00 - 20:00
Punct de lucru - București: Iride Business Park, Bld. Dimitrie
Pompeiu 9-9A, Clădirea B2B,
020335, Sector 2, București, România
Centru de Diagnostic si Tratament Dr. Victor Babes (en)
aprox.
973 m
Doctor Anghel Medical Center
aprox.
1015 m
Spitalul Victor Babes
aprox.
1064 m
Spitalul de ortopedie "Foisorul de foc"
aprox.
1076 m
Centrul Medical Pop de Basesti
aprox.
1092 m
Trattoria Pascu
aprox.
199 m
C You
aprox.
269 m
DaDa
aprox.
270 m
da Mario
aprox.
312 m
Club Art
aprox.
317 m
art club (en)
aprox.
326 m
La Mama
aprox.
357 m
Trattoria Il Calcio
aprox.
370 m
Trattoria Il Calcio Delea Veche
aprox.
377 m
Agentie organizari evenimente - Casa Novias
aprox.
473 m
Casa Jienilor
aprox.
520 m
Ali Baba
aprox.
539 m
Decebal Restaurant
aprox.
556 m
Artezian
aprox.
566 m
Chef Burger
aprox.
583 m
MODELiER
aprox.
338 m
Essenza Club
aprox.
430 m
Club Guesthouse
aprox.
554 m
Shisha Lounge Bar
aprox.
571 m
RSS Pub
aprox.
822 m
La Pirati
aprox.
848 m
Voltage Bar
aprox.
1008 m
Antic Bar
aprox.
1014 m
Bar
aprox.
1216 m
E... Varza
aprox.
1605 m
Geo Bar
aprox.
1616 m
Terasa Sandrino
aprox.
1719 m
BarFly
aprox.
1887 m
Macaz Bar Teatru Coop
aprox.
1908 m
Trei Betivi
aprox.
1958 m
Snack Lab
aprox.
451 m
Loka
aprox.
569 m
Snap
aprox.
583 m
Lolly Pop
aprox.
599 m
Cafe Pink
aprox.
602 m
Tana de lupo
aprox.
803 m
Tress Cafe
aprox.
807 m
Momentto Cafe
aprox.
824 m
Da'Mask Caffe
aprox.
825 m
Smile Cafe
aprox.
832 m
OstrawVegan
aprox.
954 m
Cafe Lautrec
aprox.
1014 m
Riviera cafe
aprox.
1045 m
Habana Coffe
aprox.
1084 m
Stretto Cofee
aprox.
1095 m
Zvon
aprox.
700 m
Dristor Pub
aprox.
906 m
Terasa Rustica Foisor
aprox.
1043 m
Jukebox
aprox.
1053 m
La Donna
aprox.
1247 m
Le Boutique Food Concept Store
aprox.
1249 m
Bluzz
aprox.
1301 m
Roof
aprox.
1532 m
La Scena
aprox.
1608 m
La Pierde Tren
aprox.
1666 m
Beraria Berestoika
aprox.
1712 m
Friends
aprox.
1797 m
Club Surubelnita
aprox.
1917 m
Smart's Pub & Bistro
aprox.
1996 m
Banca Transilvania / Calea Calarasilor
aprox.
371 m
Banca Transilvania - Ag. Delea Veche
aprox.
371 m
BRD Calea Calarasilor
aprox.
398 m
BCR
aprox.
401 m
BRD Vatra Luminoasa
aprox.
442 m
Banca Transilvania - Ag. Iancului
aprox.
484 m
CEC Bank
aprox.
494 m
BCR Sucursala Sector 3
aprox.
533 m
Pro Credit Bank
aprox.
540 m
BCR
aprox.
546 m
Banca Transilvania - Ag. Decebal
aprox.
553 m
TBI Bank
aprox.
586 m
ING Calarasi
aprox.
597 m
BRD Hurmuzachi
aprox.
599 m
RBS
aprox.
611 m
Calea Călărași este una dintre cele mai vechi artere de circulație din Capitală. Parcurgând-o cu tramvaiul ajungi destul de rapid în centru, la Piața Unirii, sau în zona Piața Muncii de pe Șoseaua Mihai Bravu. Stații de metrou pot fi găsite atât în Piața Unirii, cât și în Piața Muncii. O altă legătură utilă pentru cei care se mută în zonă poate fi oferită de troleibuzul 70 care traversează Piața Universității și are stație inclusiv în imediata vecinătate a Parcului Cișmigiu. În cazul în care optezi pentru o locuință aflată de-a lungul sau în apropierea Bulevardului Decebal, atunci autobuzul 104 ar putea fi de mare ajutor pentru tine. Acesta traversează orașul din cartierul Pantelimon și până în zona Piața Operei - Eroilor, trecând prin centru. Alte mijloace de transport în comun la care poți apela, dacă te muți în zona Decebal - Calea Călărași, sunt și troleibuzele 70 și 79. Stații găsești pe Strada Delea Nouă. Consultă harta pentru a afla unde găsești stațiile mijloacelor de transport în comun.
La intersecția dintre Calea Călărași și Strada Popa Nan se află sediul uneia dintre cele mai cunoscute instituții de învățământ privat din București - Universitatea Hyperion. Tot în această zonă a orașului găsești Colegiul Național "Matei Basarab", unul dintre cele mai prestigioase din oraș. Ar putea să te intereseze și Școala Specială nr. 5 de pe Strada Turturelelor sau Școala Generală Cezar Bolliac. Pentru copiii cu vârste mai mici găsești în zona Decebal - Calea Călărași mai multe grădinițe private. Consultă harta de mai jos pentru a afla ce alte unități de învățământ ai la dispoziție, dacă te muți în această parte a orașului.
Hala Traian, aflată la intersecția dintre Calea Călărași și Strada Traian, este un punct extrem de cunoscut în zonă și un loc ideal pentru a-ți face cumpărăturile. În interiorul acesteia a fost un amenajat un supermarket Mega Image, iar în jurul său vei găsi și alte magazine mici și farmacii. Câteva magazine găsești în apropiere de Șoseaua Mihai Bravu, la parterul blocurilor situate vis-a-vis de Spitalul Victor Babeș. Dacă vrei să îți faci cumpărăturile la hipermarket, atunci cel mai apropiat va fi cel aflat în spatele magazinului Unirii. Consultă harta pentru a afla ce alte opțiuni vei avea la doi pași de viitoarea ta locuință.
Zona este traversată de una dintre cele mai vechi artere de circulație din Capitală, Calea Călărași. Dacă te deplasezi des cu mașina prin oraș, atunci trebuie să știi că traficul este de multe ori îngreunat de-a lungul acesteia la orele de vârf, în special pe segmentul dintre Strada Popa Nan și Piața Corneliu Coposu, unde există doar o singură bandă pe sens. Îți recomandăm, totodată, să nu pierzi din vedere posibilitatea închirierii unui loc de parcare în apropierea noii tale locuințe. Pentru a face acest lucru, trebuie să te adresezi Biroului Parcări din cadrul ADP Sector 2 sau Direcției Generale Impozite și Taxe Locale Sector 3. Una dintre cele mai mari parcări din zonă se găsește la capătul Bulevardului Decebal, în Piața Alba Iulia. Consultă harta pentru mai multe detalii.
Vrei să te muți în zona Calea Călărași și te gândești deja ce opțiuni vei avea pentru petrecerea timpului liber? Poți să faci plimbări lungi pe străzile de lângă casele de aici, deosebit de frumoase în special în timpul toamnei, și apoi să faci un scurt popas la o ceainărie sau să iei masa la restaurant. Nu vei avea la dispoziție parcuri mari dacă vei locui în această parte a Bucureștiului. Cu toate acestea, vei ajunge destul de ușor, chiar și cu mijloacele în comun (troleibuzul 70), la Parcul Național sau în fața Grădinii Cișmigiu. Pe Strada Popa Nan vei avea la dispoziție un spațiu unde se desfășoară jocuri de laser tag, un loc de joacă pentru copii și o sală de fitness. Apropierea de Piața Unirii vine și cu alte opțiuni de petrecere a timpului liber, de la zile petrecute la terasele din Centrul Vechi la vizite la muzeu. Preferi o după-amiază la teatru? Atunci vei avea la dispoziție în apropiere trei teatre unde vei putea merge la spectacole - Teatrul de Artă, Teatrul de Comedie și Teatrul Evreiesc. Găsești pe hartă și alte puncte de interes din zona Decebal - Calea Călărași.
În zona Decebal - Calea Călărași vei găsi mai multe clinici private și farmacii. Cele mai apropiate spitale la care poți apela la nevoie se află în zona Piața Muncii. Este vorba despre Spitalul Clinic de Copii "Dr. Victor Gomoiu" și de Spitalul Clinic "Dr. Victor Babeș". Vezi pe hartă poziționarea unităților sanitare din zona Decebal - Calea Călărași și din vecinătatea sa.
Găsești cele mai multe restaurante, baruri și terase de-a lungul Bulevardului Decebal, dar și în Piața Alba Iulia. Pentru o atmosferă ceva mai liniștită îți recomandăm restaurantele și ceainăriile pe care le găsești ascunse pe străduțele din zonă, pe strada Popa Nan sau între casele vechi situate în apropiere de Hala Traian.
Găsești mai multe sucursale bancare și ATM-uri de-a lungul Bulevardului Decebal și pe Calea Călărași, principalele artere de circulație din zonă. Află de pe hartă unde găsești cea mai apropiată bancă de viitoarea ta locuință.
Înainte să pleci...
Ești sigur că ai văzut și aceste proprietăți?
7.605 € / lună
București, Muncii
945 mp utili
Clădire de birouri
5E
3.905 € / lună
București, Cotroceni
355 mp utili
Clădire de birouri
P+9E
4.680 € / lună
București, Muncii
360 mp utili
Clădire de birouri
5E
2.975 € / lună
București, P-ța Victoriei
170 mp utili
Clădire de birouri
5E
3.920 € / lună
București, Calea Victoriei
280 mp utili
Clădire de birouri
5E
2.048 € / lună
București, Universitate
195 mp utili
Clădire de birouri
7E
Creează alertă
Salvează căutarea ca să primești pe email ultimele anunțuri publicate
Birouri de închiriat în zona Muncii, Sector 2
Cere detalii prin email
*
*
*
*
Detaliile tale de contact vor fi partajate cu Art Biro