4

INCHIRIERE SPATIU PENTRUN BIROURI, ZONA PARCUL CAROL, LA DEMISOLUL UNEI VILE

800 € / lună
8 € / mp / lună

Parcul Carol, București

Sup. utilă / mp. utili:
100 mp
Tip prop.:
Casă/Vilă
  • • Locație aproximativă

Descriere spațiu comercial

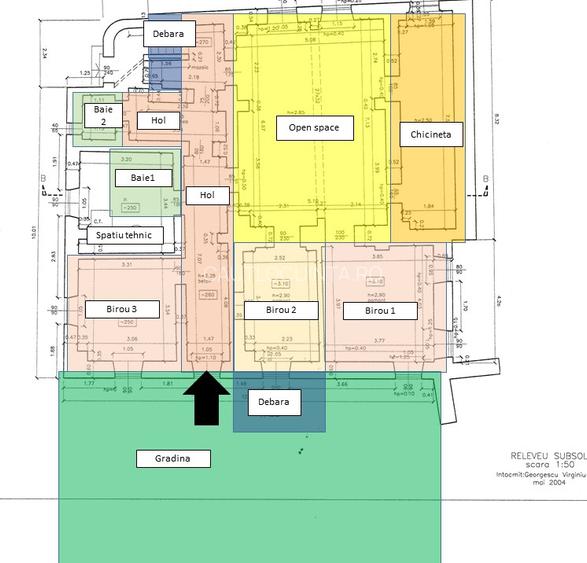
ID Proprietate: P15743 DESCRIERE GENERALĂ Se ofera spre inchiriere un spatiu pentru birouri, la demisolul unei vile, situata in Parcul Carol. Proprietatea se remarca prin finisaje moderne, compartimentare eficienta, luminozitate, fiind ideala pentru o afacere. DESTINAȚIE SI RECOMANDARE Recomandat pentru profesionisti activi, acest imobil ofera confort, functionalitate si un stil de viata urban, intr-o zona bine conectata la facilitati esentiale. COMPARTIMENTARE SI DOTĂRI Suprafata utila: 100 mp Compartimentare: Camere:7 Bai: 2 Etaj: demisol Mobilat: partial Alte dotari: acces curte, spatii de depozitare, loc de parcare LOCAȚIE SI ACCESIBILITATE Situat in Parcul Carol, la doar cateva minute de mers pe jos pana la metrou. Transport public: stb Centre comerciale / restaurante / cafenele AVANTAJE Locatie premium, aproape de metrou Finisaje si electrocasnice moderne Disponibil imediat CONDIȚII DE INCHIRIERE Chirie lunara: 800 Euro Garantie: 1 luna Disponibilitate mutare: imediata Regim inchiriere:cafenea Contract minim: 12 luni OFERTĂ DEDICATĂ CHIRIAȘILOR Beneficiezi de: Consultanta dedicata din partea agentiei CLC Asistenta completa in intocmirea contractului si inregistrarea ANAF Posibilitate de vizionare rapida si flexibila Pentru programarea unei vizionari sau informatii suplimentare, nu ezita sa ne contactezi! Nr grupuri sanitare: 2 Nr incaperi: 8 pret inchiriere: 800 moneda inchiriere: EUR Disponibilitate proprietate: imediat
Citește mai mult Citește mai puțin
Parțial mobilat 1 Parcare

Detalii spațiu comercial

ID anunț: XCH11408K Copiat! 274896223 Copiat!
Actualizat în: 19 Martie 2026
Suprafață utilă: 100 mp
Etaj: Demisol
Clasă birouri: A
Regim înălțime: P
Stadiu construcție: Există

Utilități

Comision
50%+TVA

Subspații disponibile

Chirie / u.m. / lună:
8 EUR/mp (total: 800 EUR/lună), Comision 50% cumpărător
Suprafață disponibilă:
100
Disponibilitate spațiu:
închiriat
Etaj:
Demisol

Puncte de interes

Mijloace transport
bus-station
Statia Piata Natiunilor Unite, linia 385, 124, N115, N120, N121, N122, 104, 123
Stații autobuz aprox. 119 m
metro-station
Metrorex. Stația Piața Unirii 1 (M1) (en)
Stații metrou aprox. 395 m
tram-station
Piata Unirii
Stații tramvai aprox. 400 m
trolleybus-station
Statia Vasile Parvan 66,70,92
Stații troleibuz aprox. 1252 m
Școală
kindergarten
Gradinita Prikindel
Gradinițe aprox. 324 m
kindergarten
Gradinita nr.192, "Pisicile Aristocrate"
Gradinițe aprox. 378 m
school
institutul Irecson
Școli aprox. 546 m
university
Facultatea de Teologie Ortodoxa
Universități aprox. 602 m
Recreere
park
Parc
Parcuri aprox. 99 m
public-square
Piata Natiunilor Unite
Piețe publice aprox. 141 m
supermarket
Carrefour Express
Supermarket aprox. 151 m
sports-ground
Teren sportiv
Terenuri sport aprox. 602 m

Proprietăți recomandate

Detalii de contact

CAUTLOCUINTA.RO

Oana Roxana Andrei consultant imobiliar

CAUTLOCUINTA.RO
PRO

Abonează-te la newsletter să fii primul care primește cele mai noi recomandări de proprietăți și sfaturi de la experți.

CONTACT

Creează alertă

Salvează căutarea ca să primești pe email ultimele anunțuri publicate

Birouri de închiriat în zona Parcul Carol, Sector 4