Va oferim spre inchiriere spatii de birouri in complexul de business River Plaza - Corp B, situat in zona Timpuri Noi. Cladirea pune la dispozitie solutii flexibile pentru sedii de companie, inclusiv optiuni pentru depozitare si arhivare, intr-o locatie centrala cu acces facil.
Specificatii Financiare
Chirie: 15 EUR mp + TVA
Service charge: 4.5 EUR mp + TVA
Parcare: 100 EUR loc luna + TVA
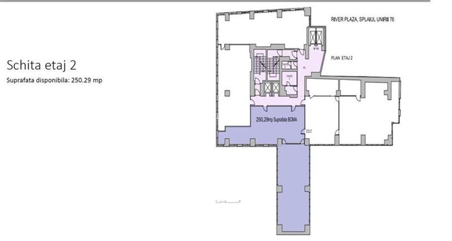
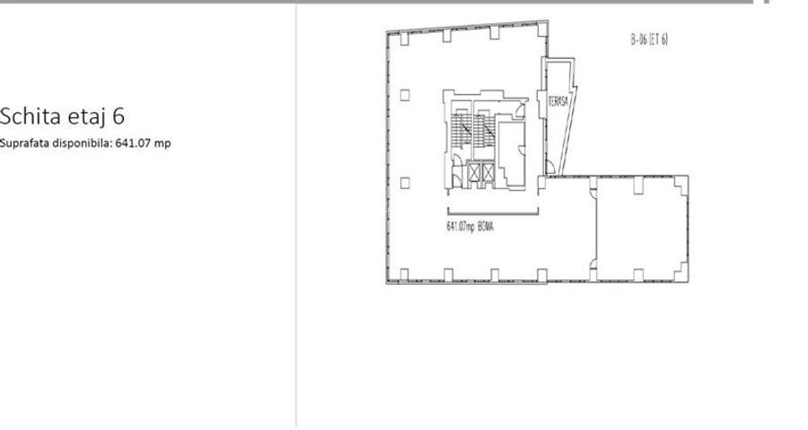
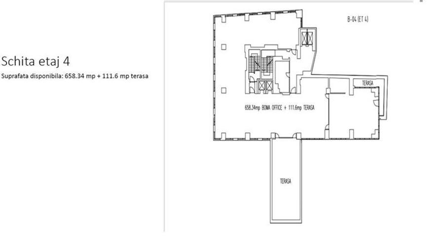
Suprafete Disponibile (BOMA) - Corp B
Etaj 2: 127.48 mp (open space, mobilat Clasic)
Etaj 4: 658.34 mp + 111.60 mp terasa (partitionat si mobilat Clasic)
Etaj 5: 306 mp (partitionat si mobilat Clasic)
Etaj 9: 311.79 mp (partitionat si mobilat Clasic)
Caracteristici si Finisaje
Structura: Beton armat si fatada de sticla.
Interior: Inaltime 2.7 m, tavan casetat, mocheta si pereti lavabili.
Amenajare: Spatiile sunt mobilate Clasic, pregatite pentru mutare imediata.
Dotari Tehnice
Infrastructura: Cablare voce-date, prize dedicate, internet si telefonie.
Climatizare: Sistem HVAC (energie electrica termica) si iluminat contorizat separat.
Facilitati: Sistem alarma, jaluzele si parcare sistematizata.
Servicii in Cladire
Securitate: Receptie, paza, supraveghere video si acces cartela magnetica.
Administrare: Facility management si administratie dedicata.
Locatie si Avantaje Complexul River Plaza este pozitionat intr-un hub de business important, oferind conexiune rapida la metrou Timpuri Noi. Este solutia ideala pentru firmele care cauta un sediu reprezentativ si functional in Sectorul 4.
ID oferta: 24R1355 Contactati-ne pentru detalii si vizionari!
Sediul central - Timișoara
Bulevardul Victor Babeș nr. 2, 300230, Timișoara, România
Tel: +40.374.40.44.98 / Fax: +40.256.401.179
Email: suport@imobiliare.ro
Luni - Vineri 08:00 - 20:00
Punct de lucru - București: Iride Business Park, Bld. Dimitrie
Pompeiu 9-9A, Clădirea B2B,
020335, Sector 2, București, România
CONTACT
Sediul central - Timișoara
Bulevardul Victor Babeș nr. 2, 300230, Timișoara, România
Tel: +40.374.40.44.98 / Fax: +40.256.401.179
Email: suport@imobiliare.ro
Luni - Vineri 08:00 - 20:00
Punct de lucru - București: Iride Business Park, Bld. Dimitrie
Pompeiu 9-9A, Clădirea B2B,
020335, Sector 2, București, România
Capat Universitatea Crestina Dimitrie Cantemir linii : 323.
aprox.
538 m
Statia Universitatea Crestina Dimitrie Cantemir linii:133.
aprox.
541 m
Autobuz 323
aprox.
561 m
Statie RATB
aprox.
810 m
Capat Piata Unirii 2 linii : 783 (express).
aprox.
833 m
Sf. Vineri, terminal linii:40, 55, 56, 385
aprox.
1017 m
Piata Unirii
aprox.
1046 m
statia Gramont, linia 7, 23, 27, 47
aprox.
1150 m
Statia Parcul Carol I linii : 232, 7, 23, 27, 47
aprox.
1181 m
Statia Lucian Blaga linia 124, N111, N103, N104, 104, 123
aprox.
1220 m
Statia Parcul Carol I, linia 232, 7, 23, 27, 47
aprox.
1248 m
Statia Palatul Copiilor linii : 76,313,381.
aprox.
1293 m
Timpuri Noi
aprox.
470 m
Metrorex. StațiaTimpuri Noi (M1),(M3)(1979)
aprox.
497 m
Metrorex. Stația Tineretului (M2)(1986)
aprox.
710 m
Statia Metrou Tineretului(M2)Metrorex
aprox.
768 m
Tineretului (M2)
aprox.
824 m
Metrorex. Stația Piața Unirii 1 (M1),(M3)(1979)
aprox.
932 m
Piata Unirii 2
aprox.
932 m
Metrorex. Stația Piața Unirii 2 (M2)(1986)
aprox.
966 m
Piata Unirii 1
aprox.
1032 m
Metrorex. Stația Piața Unirii 2 (M2) (en)
aprox.
1101 m
Metrorex. Stația Piața Unirii 1 (M1) (en)
aprox.
1107 m
Metrorex. Stația Mihai Bravu (M1) , (M3).
aprox.
1606 m
Metrorex. Stația Mihai Bravu (M1) , (M3)(1981)
aprox.
1629 m
Metrorex. Stația Mihai Bravu (M1) , (M3).
aprox.
1659 m
Statia Metrou Piata Universitatii(M2)Metrorex
aprox.
1733 m
Școala 81
aprox.
339 m
Colegiul National "Ion Creanga"
aprox.
345 m
Scoala nr.79 "Academician Nicolae Teodorescu"
aprox.
350 m
Scoala generala nr. 81
aprox.
354 m
Scoala Generala nr.81
aprox.
354 m
Scoala de Arta
aprox.
390 m
scoala populara de arta
aprox.
396 m
Scoala Nr. 79 (en)
aprox.
413 m
Scoala nr. 79
aprox.
413 m
Liceul Teoretic "Ion Creanga" (en)
aprox.
450 m
Liceul Teologic Penticostal "Emanuel"
aprox.
465 m
Gradinita Aniela
aprox.
579 m
Scoala nr.74, "Enachita Vacarescu"
aprox.
650 m
Scoala nr 94
aprox.
650 m
Elohim Academi
aprox.
904 m
Gradinita "Scufita Rosie"
aprox.
373 m
Gradinita Barba Cot
aprox.
441 m
Gradinita de Copii nr.30 "Copiii soarelui
aprox.
554 m
Gradinita (progr. prelungit) Aleea Borcea - Str. Ruginoasa
aprox.
664 m
Cresa Micii Poznasi
aprox.
707 m
Gradinita cu program prelungit Copiii Soarelui
aprox.
945 m
Gradinita Plusica
aprox.
1079 m
Gradinita Prikindel
aprox.
1121 m
Gradinita nr.192, "Pisicile Aristocrate"
aprox.
1160 m
Gradinita nr. 192 (Pisicile aristocrate)
aprox.
1162 m
Gradinita de copii nr.161
aprox.
1189 m
Gradinita
aprox.
1246 m
Gradinita nr. 224
aprox.
1295 m
Gradinita nr.224, "Vestitorii Primaverii"
aprox.
1296 m
Gradinita Pisicel
aprox.
1840 m
Academia de Studii Economice
aprox.
726 m
Academia de Studii Economice: Facultatea de Management - Administratie Publica
aprox.
732 m
Universitatea Nicolae Titulescu
aprox.
737 m
Universitatea Crestina "Dimitrie Cantemir"
aprox.
772 m
Universitatea "Nicolae Titulescu" - Bucuresti
aprox.
781 m
Institutul Bancar Român
aprox.
798 m
Universitatea Titu Maiorescu - Corp M
aprox.
816 m
Facultatea de Teologie Ortodoxa
aprox.
823 m
Universitatea "Titu Maiorescu"
aprox.
835 m
Universitatea Titu Maiorescu
aprox.
835 m
Universitatea Titu Maiorescu - Rectorat
aprox.
914 m
Facultatea de Chimie
aprox.
1794 m
Facultatea de Istorie
aprox.
1812 m
Facultatea de Stiinte
aprox.
1819 m
Universitatea Hyperion (en)
aprox.
1819 m
ClicMarket
aprox.
242 m
MGV Supermarket Zeno
aprox.
252 m
Mega Image - Apahida
aprox.
287 m
Giulio Pantofi la comanda
aprox.
444 m
Nerva Center
aprox.
457 m
Supermarket Sinbad
aprox.
473 m
Supermarket Fonzi
aprox.
511 m
MGV Green Expres
aprox.
511 m
Mega Image (en)
aprox.
546 m
Profi Non-Stop Vacaresti
aprox.
593 m
Shop & Go
aprox.
594 m
Mega Image
aprox.
826 m
Penny Market
aprox.
889 m
Vio-Flor Prodservicom
aprox.
903 m
Shop&Go
aprox.
970 m
Bucharest, Calea Vitan nr. 8, Bl V51, near VITAN Mall
aprox.
1071 m
Parcare
aprox.
120 m
Parcare
aprox.
142 m
Parcare
aprox.
193 m
Parcare
aprox.
202 m
Parcare
aprox.
297 m
Parcare
aprox.
341 m
Parcare
aprox.
387 m
Parcare
aprox.
414 m
Parcare
aprox.
431 m
Parcare privata
aprox.
445 m
Parcare
aprox.
527 m
Parcarea Bibliotecii Nationale
aprox.
529 m
Parcare
aprox.
530 m
Parcare
aprox.
549 m
Parcare
aprox.
653 m
Piata Bucur
aprox.
211 m
Piata Bibescu
aprox.
914 m
Piața Sfântul Anton
aprox.
1198 m
Piata Timpului
aprox.
1225 m
Piata Roma
aprox.
1356 m
Piata Natiunilor Unite
aprox.
1508 m
Piața Regina Maria
aprox.
1574 m
Piața Constituției
aprox.
1648 m
Piata Rosetti
aprox.
1764 m
Piata Universitatii
aprox.
1819 m
Piața Drapelului (Tricolorului)
aprox.
1880 m
Piata Latina
aprox.
1961 m
Parc
aprox.
259 m
Parc
aprox.
326 m
Parc
aprox.
344 m
Parc
aprox.
349 m
parc
aprox.
390 m
Parc
aprox.
409 m
Parc
aprox.
416 m
Park (en)
aprox.
422 m
Parc
aprox.
431 m
Parc
aprox.
567 m
Parc
aprox.
642 m
Parculet si teren de joaca
aprox.
670 m
Parc
aprox.
687 m
Parc
aprox.
697 m
Loc de joaca
aprox.
697 m
Teren sportiv
aprox.
540 m
Teren sportiv
aprox.
542 m
Teren sportiv
aprox.
567 m
Teren sportiv
aprox.
1084 m
Teren sportiv
aprox.
1114 m
Teren sportiv
aprox.
1249 m
Teren sportiv
aprox.
1263 m
Teren sportiv
aprox.
1301 m
Teren sportiv
aprox.
1355 m
Teren sportiv
aprox.
1374 m
Teren sportiv
aprox.
1386 m
Teren sportiv
aprox.
1396 m
Teren sportiv
aprox.
1398 m
Teren sportiv
aprox.
1400 m
Teren sportiv
aprox.
1408 m
Maternitatea Bucur
aprox.
197 m
Clinica Polisano
aprox.
352 m
Medicover (en)
aprox.
368 m
Clinica Audionova
aprox.
519 m
Europe EYE Hospital (en)
aprox.
650 m
Europe Eye
aprox.
650 m
SYNEVO
aprox.
663 m
Plastic Surgery Clinic (en)
aprox.
679 m
Medlife Unirii
aprox.
694 m
Biostom Bucuresti
aprox.
730 m
Spectrum Clinique - Clinica de Oftalmologie
aprox.
845 m
Spitalul Prof. Dr. C. Angelescu
aprox.
866 m
Spitalul Prof. Dr. C-Tin Angelescu
aprox.
881 m
Clinica de Stomatologie
aprox.
935 m
Clinica Sentisan. .sentisan.ro (en)
aprox.
1002 m
Farmacia Farmadex
aprox.
230 m
Alma Farm Com 95
aprox.
460 m
Tinos-Farm
aprox.
508 m
Help Net
aprox.
547 m
Farmacia 20
aprox.
581 m
Farmacia Bucuresti Tehnoplus Farm
aprox.
610 m
Farmacie
aprox.
652 m
Farmacia Belladonna 17
aprox.
670 m
Help Net Farma
aprox.
678 m
Catena
aprox.
730 m
Farmacia Eliana
aprox.
760 m
Farmacia Kaiser
aprox.
948 m
Leni Farm
aprox.
954 m
Farmacia Belladonna 63
aprox.
990 m
2NA Farm
aprox.
990 m
Thang Long
aprox.
223 m
Blue's lounge & pub
aprox.
303 m
Restaurant
aprox.
427 m
Adress
aprox.
446 m
Restaurant Premium Events
aprox.
449 m
Pane e Vino
aprox.
462 m
Manasra
aprox.
464 m
Bistro
aprox.
470 m
Restaurant Timpuri Noi + Autoservirea
aprox.
477 m
Efes
aprox.
495 m
Thalia Tineretului
aprox.
534 m
DRISTOR Doner Kebap (Budapesta)
aprox.
637 m
Zen Sushi
aprox.
642 m
Sare si Piper - Salt 'n Pepper
aprox.
648 m
Restaurant Sare si Piper
aprox.
650 m
Quartier
aprox.
334 m
Zebra Caffe
aprox.
462 m
Cafe Boulevard
aprox.
521 m
Maroon Caffe
aprox.
638 m
Cafe Torino
aprox.
681 m
Bistro 33 Cafe
aprox.
745 m
gloria jeans coffee
aprox.
837 m
Angel Cafe
aprox.
1062 m
Dalidana
aprox.
1089 m
Sfera caffe
aprox.
1136 m
Miau
aprox.
1138 m
Cofetaria Raisa
aprox.
1139 m
Adior Cafe lounge
aprox.
1144 m
Starbucks
aprox.
1180 m
The Urbanist
aprox.
1198 m
Pe baricade
aprox.
529 m
Bar
aprox.
728 m
Nargila Grill&Bar
aprox.
812 m
BarFly
aprox.
952 m
Network Lounge
aprox.
1214 m
Vecchio
aprox.
1237 m
City Grill Covaci
aprox.
1243 m
True Social Club
aprox.
1279 m
Pure
aprox.
1285 m
Up Club
aprox.
1289 m
B Bar
aprox.
1295 m
The Glam Club
aprox.
1304 m
1974 Niste Domni si Fiii
aprox.
1312 m
Big Mamou
aprox.
1318 m
Beraria Bavareza Fritz
aprox.
1320 m
The Temple
aprox.
617 m
The Harp
aprox.
784 m
Beraria Berestoika
aprox.
807 m
Pizzeria Classic
aprox.
811 m
Kaffa Pub
aprox.
877 m
Forno d'oro
aprox.
940 m
The 1st Pub
aprox.
1104 m
Carol Cafe
aprox.
1137 m
Roof
aprox.
1155 m
Club Fabrica
aprox.
1198 m
Long Fong
aprox.
1201 m
Atelierul Mecanic
aprox.
1268 m
Manasia Hub
aprox.
1269 m
Kulturhaus
aprox.
1276 m
The Bankers
aprox.
1307 m
Sucursala CEC Bank Timpuri Noi (en)
aprox.
312 m
BRD Nerva Traian
aprox.
440 m
Banca Raiffeisen
aprox.
451 m
Raiffeisen Bank
aprox.
451 m
Pireus Bank
aprox.
451 m
Raiffeisen
aprox.
452 m
Piraeus Bank
aprox.
470 m
BCR Nerva Traian
aprox.
546 m
Raiffeisen Bank Nerva Traian
aprox.
557 m
Banca Transilvania - Ag. Tineretului
aprox.
638 m
Banca Italo Romena
aprox.
670 m
Sucursala BCR Gheorghe Sincai
aprox.
672 m
UniCredit Bank - Ag. Norilor
aprox.
701 m
BCR
aprox.
710 m
Banca Romaneasca
aprox.
712 m
Dacă te vei muta în acest cartier, vei avea la dispoziție două stații de metrou care îți vor face călătoriile prin oraș mult mai ușoare și mai rapide. Este vorba despre Tineretului, stație situată pe magistrala 2 Berceni - Pipera, și despre Timpuri Noi, de unde poți lua metroul atât pentru a te deplasa pe ruta magistralei 1 Dristor - Pantelimon, cât și pe M2 Preciziei - Anghel Saligny. De la Tineretului ajungi, de exemplu, la Piața Universității în 5 minute și în Pipera în circa 15 minute. Alte mijloace de transport în comun care traversează zona de care ești interesat sunt tramvaiul 19, cu care poți să mergi către sud-estul orașului (Titan - Pallady), autobuzul 133 care îți oferă o legătură directă cu Piața Romană și troleibuzul 74 care ajunge la Piața Unirii.
Trei universități private își au sediul în această zonă, în imediata vecinătate a stației de metrou Timpuri Noi. Este vorba despre Universitatea "Titu Maiorescu", Universitatea "Nicolae Titulescu" și Universitatea Creștină "Dimitrie Cantemir". Alături de acestea este situat și Căminul Studențesc "Nicolae Titulescu". Unul dintre cele mai renumite licee din București poate fi găsit tot în această zonă. Colegiul Național "Gheorghe Șincai" se află lângă stația de metrou Tineretului. Caută pe hartă care vor fi cele mai apropiate instituții de învățământ de viitoarea ta locuință.
Multe dintre blocurile din această zonă dispun de spații comerciale la parter, deci chiar și atunci când vrei să faci doar câteva cumpărături rapide vei avea destul de multe opțiuni în apropiere. Poți cumpăra fructe și legume din Piața Norilor, aflată la doi pași de stația de metrou Tineretului, sau din Piața Timpuri Noi, situată lângă clădirea Universității "Titu Maiorescu". În vecinătatea acesteia vei găsi și un supermarket Profi. Chiar lângă Pasajul Mihai Bravu vei avea la dispoziție un magazin Lidl. Ajungi, totodată, rapid din zona Tineretului - Timpuri Noi la trei mall-uri: Sun Plaza, București Mall și ParkLake. La fel, în doar câteva minute ești cu mașina în centru. Consultă harta și vezi unde găsești cel mai apropiat magazin de viitoarea ta locuință.
O parcare publică cu câteva sute de locuri, dar și stații de încărcare pentru autovehiculele electrice este amplasată chiar lângă Palatul Național al Copiilor. Tot în apropiere, lângă Sala Polivalentă, ai câteva locuri de parcare la dispoziție, dacă ajungi la parc cu mașina. Îți recomandăm, totodată, să apelezi la Direcția Mobilitate Urbană Sector 4 dacă vei dori să închiriezi un loc de parcare în apropierea viitoarei tale locuințe. Un alt lucru pe care e bine să îl știi este că intersecția dintre Calea Șerban Vodă și bulevardele Tineretului, Gheorghe Șincai și Dimitrie Cantemir este una dintre cele mai aglomerate din zonă, în special la orele de vârf.
Zona Tineretului-Timpuri Noi îți oferă numeroase opțiuni de petrecere a timpului liber și poate fi ideală dacă ai copii. Vei avea la doi pași de casă Parcul Tineretului unde aceștia se pot plimba cu rolele sau cu bicicleta. Îi poți duce, totodată, la joacă în spațiile special amenajate pentru ei din Orășelul Copiilor. În zonă vei găsi un club cu terenuri de tenis, restaurant și piscină aflat vis-a-vis de Sala Polivalentă unde sunt organizate periodic târguri și diferite evenimente culturale și sportive. Palatul Național al Copiilor trebuie menționat fiind reprezentativ pentru acest cartier. Aici îți poți înscrie micuțul la diferite cluburi. În incinta sa funcționează și Teatrul Stela Popescu, iar lângă el, spre Pasajul Mihai Bravu vei găsi Parcul Lumea Copiilor. Acesta din urmă cuprinde mai multe terenuri sportive și chiar și o pistă de karting. Parcul Carol se află și el în apropiere. Aici vei găsi Arenele Romane, unde se organizează periodic concerte. Ajungi foarte rapid și în Parcul Natural Văcărești, dacă vrei să evadezi în natură câteva ore sau să te plimbi cu bicicleta. În zona Tineretului ai la dispoziție câteva restaurante și cafenele, iar pentru mai multă diversitate poți oricând să dai o fugă în Centrul Vechi al orașului. Dacă te vei muta aici, vei ajunge rapid la trei mall-uri - Sun Plaza, București Mall, ParkLake - și la centrul comercial Unirea Shopping Center. Află unde sunt localizate toate acestea de pe hartă.
La doi pași de Bulevardului Mărășești este localizată Maternitatea Bucur, iar unul dintre cele mai apropiate spitale private la care vei avea acces dacă te muți în zona Tineretului - Timpuri Noi este Monza Metropolitan Hospital de pe Calea Șerban Vodă. Institutul de Pneumologie Marius Nasta IV și Policlinica cu Plată nr. 3 pot fi găsite și ele în vecinătatea Parcului Tineretului. Consultă harta pentru a vedea ce alte unități sanitare sunt disponibile în zonă și în apropiere.
Ai la dispoziție câteva restaurante și terase pe principalele artere de circulație din zonă. Pe Bulevardul Dimitrie Cantemir găsești o cofetărie și una dintre cele mai apreciate shaormerii din oraș, pe Bulevardul Gheorghe Șincai o serie de cafenele, iar pe Calea Văcărești câteva restaurante. Poți lua o gustare și în cadrul proiectului dezvoltat de Vastit vis-a-vis de stația de metrou Timpuri Noi. Alte câteva opțiuni găsești și pe Strada Nerva Traian din apropiere. Mici terase pot fi găsite și în zona parcurilor la care ai acces în apropierea casei tale, iar dacă ai poftă de fast food poți să mergi la drive through-ul McDonald"™s situat lângă intrarea în Orășelul Copiilor sau la food court-ul din Sun Plaza. Ajungi în doar câteva minute cu mașina și la mall-urile ParkLake sau București Mall pentru o sesiune de shopping urmată de o gustare, iar dacă vrei mai multă diversitate poți să mergi, chiar și cu mijloacele de transport în comun, până în centrul orașului. Durează foarte puțin și vei găsi cu siguranță ceva pe gustul tău. Consultă harta și află ce restaurante, terase și fast food-uri ai lângă viitoarea ta locuință din zona Tineretului - Timpuri Noi.
Ai la dispoziție mai multe ATM-uri și sucursale bancare în intersecția aflată lângă Colegiul Național "Gh. Șincai" - ING, BRD, Raiffeisen Bank. La doi pași găsești și o Banca Transilvania. Consultă pe hartă și află unde se află cel mai apropiat bancomat de locuința ta.
Înainte să pleci...
Ești sigur că ai văzut și aceste proprietăți?
3.118 - 10.283 € / lună
București, 13 Septembrie
56.000 mp utili
Clădire de birouri
P+8E
1.905 - 37.383 € / lună
București, Timpuri Noi
13.305 mp utili
Clădire de birouri
P+9E
2.990 - 12.870 € / lună
București, 13 Septembrie
990 mp utili
Clădire de birouri
8E
2.340 € / lună
București, Timpuri Noi
180 mp utili
Clădire de birouri
2001 (Există)
7.980 € / lună
București, Timpuri Noi
380 mp utili
Clădire de birouri
10E
1.551 € / lună
București, Unirii
120 mp utili
Clădire de birouri
2009
Creează alertă
Salvează căutarea ca să primești pe email ultimele anunțuri publicate
Birouri cu o cameră de închiriat în zona Timpuri Noi, Sector 4
Cere detalii prin email
*
*
*
*
Detaliile tale de contact vor fi partajate cu 24 Real