Trust Center, Splaiul Indep. 319 C - comision 0%, reprezentam proprietarul!

2.100 - 3.562 € / lună
10.50 - 12.50 € / mp / lună

Grozăvești, București

Sup. utilă / mp. utili:
6.900 mp
Tip prop.:
Clădire de birouri
Niv.:
2
  • • Comision 0%
  • • Locație exactă

Descriere spațiu comercial

Clădirea este amplasată pe Splaiul Independenței, lângă stația de metrou Petrache Poenaru, în zona Semănătoarea din vestul Bucureștiului. Locația se găsește la 900 de metri de noul Pasaj Basarab, 3 km de Piața Victoriei și 4.5 km de Piața Unirii, având access direct și rapid către fiecare din aceste zone. Zona desfașurată de-a lungul râului Dâmbovița, între stațiile de metrou Grozăvești și Petrache Poenaru, include clădiri de birouri noi și hale parțial modernizate, având un potențial important de dezvoltare pe termen mediu. Accesibilitatea clădirii este foarte bună, având conexiune directă cu principalele zone de birouri din centrul, nordul și vestul Capitalei. Transportul public include metrou în imediata vecinătate (stația Petrache Poenaru), parte a liniei centrale M1. Trust Center este o clădire cu o suprafață inchiriabilă de 6.900 m2, desfașurată pe parter și 2 etaje, cu o suprafața pe etaj de 2.300 m2. Parcarea este amplasată exterior și include 85 locuri. Clădirea are specificații de clasa B, incluzând HVAC, tavan suspendat, ferestre cu deschidere, access securizat, detectoare de fum etc.
Citește mai mult Citește mai puțin
85 Parcări

Detalii spațiu comercial

ID anunț: X5F80405C Copiat! 1136390 Copiat!
Actualizat în: 27 Ianuarie 2026
Nume proprietate: Trust Center
Clasă birouri: B
Regim înălțime: P+2E
Stadiu construcție: Există

Utilități

Comision
0%

Vecinătăți:

Petrache Poenaru
Pasajul Basarab

Alte detalii:

Clădirea este amplasată pe Splaiul Independenței, lângă stația de metrou Petrache Poenaru, în zona Semănătoarea din vestul Bucureștiului. Locația se găsește la 900 de metri de noul Pasaj Basarab, 3 km de Piața Victoriei și 4.5 km de Piața Unirii, având access direct și rapid către fiecare din aceste zone.

Zona desfașurată de-a lungul râului Dâmbovița, între stațiile de metrou Grozăvești și Petrache Poenaru, include clădiri de birouri noi și hale parțial modernizate, având un potențial important de dezvoltare pe termen mediu.

Accesibilitatea clădirii este foarte bună, având conexiune directă cu principalele zone de birouri din centrul, nordul și vestul Capitalei. Transportul public include metrou în imediata vecinătate (stația Petrache Poenaru), parte a liniei centrale M1.

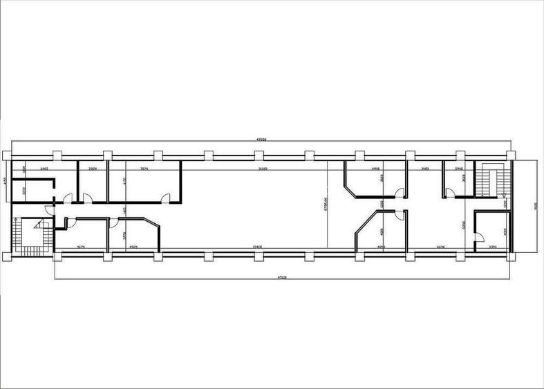
Trust Center este o clădire cu o suprafață inchiriabilă de 6.900 m2, desfașurată pe parter și 2 etaje, cu o suprafața pe etaj de 2.300 m2. Parcarea este amplasată exterior și include 85 locuri.

Clădirea are specificații de clasa B, incluzând HVAC, tavan suspendat, ferestre cu deschidere, access securizat, detectoare de fum etc.

Subspații disponibile

Spatiu de inchiriat - et. 1

Mai multe detalii despre aceasta oferta in link-ul de mai jos: spatii-de-birouri.ro/inchiriere-vanzare/bucuresti-trust-center Pe platforma SPATII-DE-BIROURI.RO gasiti peste 400 de cladiri de birouri din Bucuresti, cu toate informatiile actualizate si comision 0% (reprezentam proprietarii).

Chirie / u.m. / lună:
10.5 EUR/mp (total: 2100 EUR/lună) + alte cheltuieli, Comision 0% cumpărător
Suprafață disponibilă:
200
Disponibilitate spațiu:
imediat
Etaj:
Etaj 1 / 2
Posibilitate parcare:
Da

Spatiu de inchiriat - mezanin

Mai multe detalii despre aceasta oferta in link-ul de mai jos: spatii-de-birouri.ro/inchiriere-vanzare/bucuresti-trust-center Pe platforma SPATII-DE-BIROURI.RO gasiti peste 400 de cladiri de birouri din Bucuresti, cu toate informatiile actualizate si comision 0% (reprezentam proprietarii).

Chirie / u.m. / lună:
12.5 EUR/mp (total: 3562.5 EUR/lună) + alte cheltuieli, Comision 0% cumpărător
Suprafață disponibilă:
285
Disponibilitate spațiu:
imediat
Etaj:
Etaj 1 / 2
Posibilitate parcare:
Da

Puncte de interes

Mijloace transport
bus-station
Statia G-ral Petre Popovat linia 601, N110, N120
Stații autobuz aprox. 115 m
metro-station
Metrorex. Stația Petrache Poenaru(Semănătoarea) (M1)(1979)
Stații metrou aprox. 295 m
tram-station
Statia Piata Crangasi linia:41
Stații tramvai aprox. 728 m
train-station
Fosta Gara Regala Cotroceni (en)
Stații tren aprox. 1489 m
Școală
school
Liceul Mircea Eliade
Școli aprox. 197 m
school
Casa corpului didactic
Școli aprox. 241 m
university
FIMM si IMST, corpurile CB, CD, CF si CK (en)
Universități aprox. 458 m
kindergarten
Gradinița Dumbrava Fermecată
Gradinițe aprox. 739 m
Recreere
sports-ground
Teren sportiv
Terenuri sport aprox. 147 m
supermarket
Grant Shopping Center
Supermarket aprox. 685 m
park
Strandul Crangasi
Parcuri aprox. 691 m
hypermarket
Intrarea in caminele C si D din grozavesti
Hipermarket aprox. 1193 m

Proprietăți recomandate

Detalii de contact

Activ Property Services

Departament Birouri

5.00(3 review-uri)

Activ Property Services
PRO

Abonează-te la newsletter să fii primul care primește cele mai noi recomandări de proprietăți și sfaturi de la experți.

CONTACT

Creează alertă

Salvează căutarea ca să primești pe email ultimele anunțuri publicate

Birouri de închiriat în zona Grozăvești, Sector 6