Cladire de birouri, Calea Dumbravii, Sibiu

3.500 € / lună
11.29 € / mp / lună

Calea Dumbrăvii, Sibiu

Sup. utilă / mp. utili:
310 mp
Tip prop.:
Clădire de birouri
Niv.:
2
An constr.:
2020 (Există)
  • • Locație aproximativă

Descriere spațiu comercial

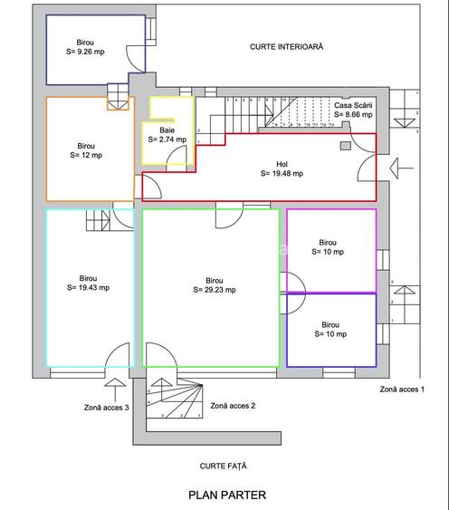
Spațiu de birouri disponibil pentru închiriere – Sibiu, Calea Dumbrăvii Suprafață utilă: 310 mp | Teren: 470 mp PRET 3500 EURO / LUNA Regim de înălțime: demisol + parter + etaj Suprafață utilă totală: 310 mp Suprafață teren: 470 mp Modalitate de închiriere: persoană fizică, fără TVA Stare imobil: renovat, finisat la cheie Predare: mobilat și utilat, conform fotografii Disponibilitate: în termen de 30 de zile de la semnarea contractului Potrivit pentru: sediu firmă activități de birou IT consultanță servicii profesionale Compartimentare( vezi schite): Demisol: hol de acces,bucătărie complet mobilată și utilată, spațiu de birouri generos (utilizat ca sală de ședințe), 4 spații de depozitare Parter: hol de acces / zonă recepție, 6 birouri spațioase și luminoase, baie cu geam de aerisire Etaj: hol de acces, 4 birouri, spațiu de depozitare,baie, terasă de aproximativ 12 mp, potrivită pentru pauze și relaxare Dotări și facilități 11 birouri în total 3 băi bucătărie complet utilată sală de ședințe 3 căi de acces independente suprafețe vitrate mari, lumină naturală abundentă centrală termică proprie și calorifere 7 unități de aer condiționat curte liberă, amenajată zonă de relaxare și spațiu pentru luat masa / grătar poartă automatizată reclamă autorizată pe fațada clădirii 3 catarge pentru reclamă, autorizate Parcare: 5–6 locuri de parcare disponibile în curtea imobilului Soluție completă pentru companii care caută un sediu central, bine compartimentat și gata de utilizare Pret inchiriere: 3500 euro / luna, Fără TVA (persoană fizică) comision agentie :contravaloarea unei chirii Detalii/Vizionare: - Roxana
Citește mai mult Citește mai puțin
6 Parcări

Detalii spațiu comercial

ID anunț: XB501404D Copiat! 274340446 Copiat!
Actualizat în: 13 Martie 2026
Suprafață utilă: 310 mp
Etaj: Etaj 1 / 2
Clasă birouri: A
Regim înălțime: D+P+2E
Stadiu construcție: Există

Utilități

Destinație
Rezidențial
Utilități
Curent Apă Canalizare
Comision
standard

Disponibilitate proprietate:

Imediat

Puncte de interes

Mijloace transport
bus-station
Autogar Q7
Stații autobuz aprox. 246 m
bus-station
Piata Aurel Vlaicu 1
Stații autobuz aprox. 282 m
bus-station
Sala Transilvania
Stații autobuz aprox. 360 m
bus-station
Anton Pann
Stații autobuz aprox. 413 m
Școală
university
Universitatea Romano-Germana Sibiu
Universități aprox. 250 m
university
Facultatea de Stiinte Agroalimentare
Universități aprox. 409 m
kindergarten
Gradinita Nr. 42
Gradinițe aprox. 620 m
school
Scoala Gimnaziala nr. 16
Școli aprox. 756 m
Recreere
park
Parc
Parcuri aprox. 186 m
sports-ground
Teren sportiv
Terenuri sport aprox. 214 m
restaurant
Super Mamma
Restaurant aprox. 315 m
supermarket
Roger
Supermarket aprox. 496 m

Proprietăți similare

Birou, de 310 mp, în Calea Dumbrăvii
3.499 € / lună
Sibiu, Calea Dumbrăvii
310 mp utili
2015 (Există)
Birou, de 320.00 mp, în Calea Dumbrăvii
3.501 € / lună
Sibiu, Calea Dumbrăvii
320 mp utili
Clădire de birouri
1E
Birou, de 310 mp, în Calea Dumbrăvii
3.500 € / lună
Sibiu, Calea Dumbrăvii
310 mp utili
Clădire de birouri
1E

Detalii de contact

Welhome Imobiliare

Roxana Stoica Broker Imobiliar

Welhome Imobiliare
PRO

Abonează-te la newsletter să fii primul care primește cele mai noi recomandări de proprietăți și sfaturi de la experți.

CONTACT

Creează alertă

Salvează căutarea ca să primești pe email ultimele anunțuri publicate

Birouri cu 4+ camere de închiriat în zona Calea Dumbrăvii, Sibiu