Cladire multifuntionala si terasa pentru evenimente corporate in Sibiu

1.501 € / lună
10.65 € / mp / lună

Calea Poplăcii, Sibiu

Sup. utilă / mp. utili:
141 mp
Tip prop.:
Clădire de birouri
An constr.:
2022 (Există)
  • • Locație aproximativă
  • • Vizionare prin apel video

Descriere spațiu comercial

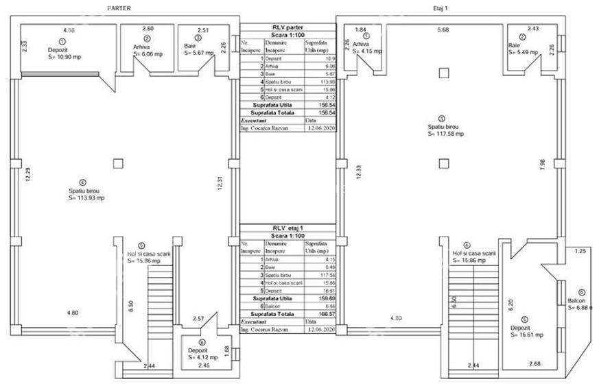
Se inchiriaza spatiu birouri intr-o cladire moderna, cu o suprafata utila de aproximativ 141 mp, cladirea este distribuita pe 4 niveluri conectate printr-o casa a scarii comuna, potrivita pentru business-uri diverse precum birouri IT, centre educationale sau servicii comerciale. Compartimentare detaliata: Spatiul oferit spre inchiriere are o suprafata utila de 141 mp impartiti in doua camere principale, o chicineta, o baie si o camera de depozitare, spatiul este asemanator cu celelalte etaje ale imobilului. Cladirea este structurata pe 4 niveluri, cu spatii flexibile ce pot fi adaptate pentru birouri open-space, sali de clasa, zone de receptie sau depozitare – fiecare etaj putand functiona independent. Include holuri spatioase, etaje bine iluminate si facilitati moderne, cu finisaje practice: ferestre termopan pentru izolare termica si fonica, usi securizate si podele rezistente la trafic intens. Orientarea sudica asigura lumina naturala abundenta, iar cladirea are echipare cu sisteme fotovoltaice, aliniindu-se trendurilor ecologice din Sibiu. Toate utilitatile sunt conectate: apa, canalizare, curent trifazic, gaz metan, internet fibra optica si cablu TV, cu contorizare individuala per etaj pentru eficienta. Fiecare etaj are locuri de parcare in parcarea amenajata a imobilului: minim 20 de locuri interioare securizate, plus 5-8 locuri la strada, facilitand accesul pentru echipe mari sau evenimente. Terasa mare exterioara este ideala pentru pauze sau intalniri, iar zona separata inchisa, amenajata cu gratar si spatii pentru relaxare, este perfecta pentru team building, evenimente corporate sau petreceri de firma – un atu rar pentru spatii business in Sibiu. Aceasta cladire ofera un randament excelent pentru chiriasi, combinand locatia strategica cu facilitati premium, atragand clienti din IT, educatie sau servicii prin costuri operationale reduse si potential de crestere. Facilitati si extra Interior: 4 niveluri cu casa a scarii comuna; spatii flexibile pentru birouri IT educatie; finisaje moderne (termopan, izolatie); utilitati complete (gaz, fibra optica); fotovoltaice pentru energie verde (Prosumator - Consumul de curent fiind 0 in anumite cazuri); stare excelenta, adaptabila. Exterior: Parcare 20+ locuri interioare + 5-8 strada; terasa spatioasa; zona inchisa cu gratar pentru team building evenimente; acces vad comercial. Utilitati si securitate: Curent trifazic, gaz, apa; contorizare individuala; supraveghere posibila; acces transport public excelent. Alte avantaje: Flexibilitate inchiriere per etaj sau integral; ideal pentru business sustenabil; cerere mare in zona; proximitate servicii (magazine, scoli, stadion); costuri reduse prin eficienta energetica; oportunitati de extindere. Valoarea unui etaj separat la 1.500 € luna + o luna garantie, oferind flexibilitate maxima pentru chiriasi mici sau mari, cu potential ridicat pentru reconversie si beneficii de scalabilitate. ID intern: 3094
Citește mai mult Citește mai puțin

Detalii spațiu comercial

ID anunț: XC741406N Copiat! 272225101 Copiat!
Actualizat în: 13 Mai 2026
Tip tranzacție: De închiriat prin agent
Clasă birouri: A
Înălțime spațiu (m): 3
Stadiu construcție: Există

Utilități

Utilități
Apă Curent Gaze Canalizare Căldură Climă
Comision
50%

Certificat energetic:

Clasa energetică: A

Vecinătăți:

Scoala/gradinita, Restaurant/pub, Parc, Hotel, Piata, Intersectie circulata, Trafic Pietonal, Fastfood, Supermarket, Banca, Zona comerciala, Autobuz

Puncte de interes

Mijloace transport
bus-station
Autogara AMAD TOUR
Stații autobuz aprox. 46 m
bus-station
Piata Talmaciu 2
Stații autobuz aprox. 165 m
bus-station
Piata Talmaciu 1
Stații autobuz aprox. 168 m
bus-station
Piata Sadu 2
Stații autobuz aprox. 253 m
Școală
kindergarten
FasTracKids
Gradinițe aprox. 221 m
school
Scoala Genenerala Nr. 25
Școli aprox. 597 m
kindergarten
Gradinita Nr. 5
Gradinițe aprox. 912 m
university
Universitatea Romano-Germana Sibiu
Universități aprox. 1711 m
Recreere
supermarket
Transagape
Supermarket aprox. 141 m
park
Parc
Parcuri aprox. 206 m
restaurant
Restaurant Cesar
Restaurant aprox. 691 m
sports-ground
Teren sportiv
Terenuri sport aprox. 748 m

Proprietăți similare

Birou, 250 mp în Ultracentral
1.500 € / lună
Sibiu, Ultracentral
250 mp utili
Clădire de birouri
P+1E
Birou, de 235 mp, în Lazaret
1.500 € / lună
Sibiu, Lazaret
235 mp utili
Clădire de birouri
Birou, de 100 mp, în Aeroport
1.500 € / lună
Sibiu, Aeroport
100 mp utili
Clădire de birouri
2024 (Există)

Detalii de contact

Atum Imobiliare

Stefan Banciu Consultant imobiliar

Atum Imobiliare
PRO

Abonează-te la newsletter să fii primul care primește cele mai noi recomandări de proprietăți și sfaturi de la experți.

CONTACT

Creează alertă

Salvează căutarea ca să primești pe email ultimele anunțuri publicate

Birouri cu 2 camere de închiriat în zona Calea Poplăcii, Sibiu