Spatiu de birouri la cheie 150 mp utili 5 parcari zona Valea Aurie

1.500 € / lună
10 € / mp / lună

Calea Poplăcii, Sibiu

Sup. utilă / mp. utili:
150 mp
Tip prop.:
Clădire de birouri
Niv.:
2
An constr.:
2010 (data_properties.construction_stage.finished)
  • • Locație aproximativă

Descriere spațiu comercial

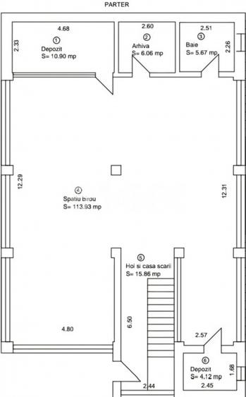
Cauti sa le oferi angajatilor tai un spatiu mai confortabil? TABOO Imobiliare iti propune acest spatiu birou de inchiriat in Sibiu cu 5 incaperi situat in zona Calea Poplacii, Valea Aurie.  Aceasta cladire unica imbina functionalitatea unui spatiu de birouri modern cu confortul si relaxarea unui mediu de lucru prietenos si inspirational. Este perfecta pentru companii care pun accent pe productivitate, imagine si bunastarea echipei. Imobilul este superfinisat la cheie, cu materiale de calitate si compartimentare eficienta, fiind pregatit pentru mutare imediata. Se preteaza excelent pentru firme din IT, consultanta, marketing, arhitectura, call center sau chiar sediu pentru afaceri cu activitate hibrida. Spatiul se afla la parterul cladirii si beneficiaza de 150 mp utili. Intreaga cladire este destinata activitatilor de birou si este compartimentata astfel:  Parter – zona dedicata relaxarii si activitatilor de echipa: • Spatiu deschis, foarte generos de 113 mp care poate fi amenajat sau compartimentat dupa necesitati cat si alte 3 incaperi deja delimitate: doua spatii de depozitare, arhiva si o baie. • Acces direct catre curtea interioara si gradina  Etaj 1 si 2 – birouri open-space: • Spatii largi, bine iluminate, ideale pentru organizare flexibila a echipelor • Fiecare etaj este dotat cu baie proprie si chicineta pentru confortul zilnic • Finisaje moderne, pardoseli calde, lumina naturala din abundenta  Mansarda – spatiu versatil si elegant: • Ideal pentru birou executiv, zona de management, sala de sedinte sau activitati speciale • Include baie, logie cu priveliste si camera mare (peste 87 mp) • Atmosfera intima, ideala pentru concentrare si discutii de strategie Curte si Gradina– un adevarat avantaj: • 15 locuri de parcare in curtea privata • Gradina amenajata cu zona verde, foisor acoperit, gratar si crama rustica – loc perfect pentru relaxare, team-building-uri sau mici evenimente corporate • Posibilitate de amenajare suplimentara outdoor (zona fumat, biciclete, lounge exterior etc.) Eficienta energetica si dotari: • Panouri fotovoltaice pentru apa calda si eficienta energetica crescuta • Incalzire centralizata pe gaz si sistem de climatizare • Retea electrica, internet (fibra optica), prize si infrastructura IT pregatita • Cladire bine izolata, cu cheltuieli minime de intretinere • Acces securizat, finisaje premium, iluminat natural excelent Spatiul se inchiriaza de pe persoana fizica si astfel nu se percepe taxa TVA! Pret: 1.500€ Cod ofertă / ID: P25473 Sună-ne acum la numarul din anunt și află detalii despre această proprietate de inchiriat din Sibiu, dar și despre alte proprietăți potrivite pentru tine.
Citește mai mult Citește mai puțin
Aer condiționat 5 Parcări

Detalii spațiu comercial

ID anunț: X5EK141HF Copiat! 272049704 Copiat!
Actualizat în: 21 Februarie 2026
Suprafață utilă: 150 mp
Etaj: Parter / 2
Regim înălțime: P+2E
Structură rezistență: Cărămidă
Stadiu construcție: data_properties.construction_stage.finished

Utilități

Alte spații utile
Cramă Spațiu depozitare Anexe
Utilități
Curent Apă Canalizare

Puncte de interes

Mijloace transport
bus-station
Th. Mihaly 2
Stații autobuz aprox. 37 m
bus-station
Th. Mihaly 1
Stații autobuz aprox. 54 m
bus-station
Valea Aurie 2
Stații autobuz aprox. 278 m
bus-station
Piata Sadu 1
Stații autobuz aprox. 294 m
Școală
school
Scoala Genenerala Nr. 25
Școli aprox. 274 m
kindergarten
FasTracKids
Gradinițe aprox. 758 m
kindergarten
Gradinita Nr. 5
Gradinițe aprox. 1296 m
school
Scoala Gimnaziala nr. 16
Școli aprox. 1447 m
Recreere
supermarket
Magazin cu produse nemtesti
Supermarket aprox. 53 m
park
Parc
Parcuri aprox. 446 m
sports-ground
Teren sportiv
Terenuri sport aprox. 520 m
restaurant
Restaurant Cesar
Restaurant aprox. 968 m

Proprietăți similare

Birou, 150 mp în Calea Poplăcii
1.500 € / lună
Sibiu, Calea Poplăcii
150 mp utili
Clădire de birouri
2000
Birou, 150 mp în Calea Poplăcii
1.500 € / lună
Sibiu, Calea Poplăcii
150 mp utili
Clădire de birouri
2E
Birou, de 141 mp, în Calea Poplăcii
1.501 € / lună
Sibiu, Calea Poplăcii
141 mp utili
Clădire de birouri
2022

Detalii de contact

TABOO Imobiliare

TABOOro

4.72(18 review-uri)

TABOO Imobiliare
PRO

Abonează-te la newsletter să fii primul care primește cele mai noi recomandări de proprietăți și sfaturi de la experți.

CONTACT

Creează alertă

Salvează căutarea ca să primești pe email ultimele anunțuri publicate

Birouri cu 4+ camere de închiriat în zona Calea Poplăcii, Sibiu