Agentia imobiliara Apostu Estate va propune spre inchiriere spatiu pentru birouri, la parterul unei cladiri de birouri, cu suprafata de 147 mp utili, in zona centrala, Elisabetin Timisoara.
Spatiul este compartimentat in 5 incaperi de diferite suprafete si 3 grupuri sanitare.
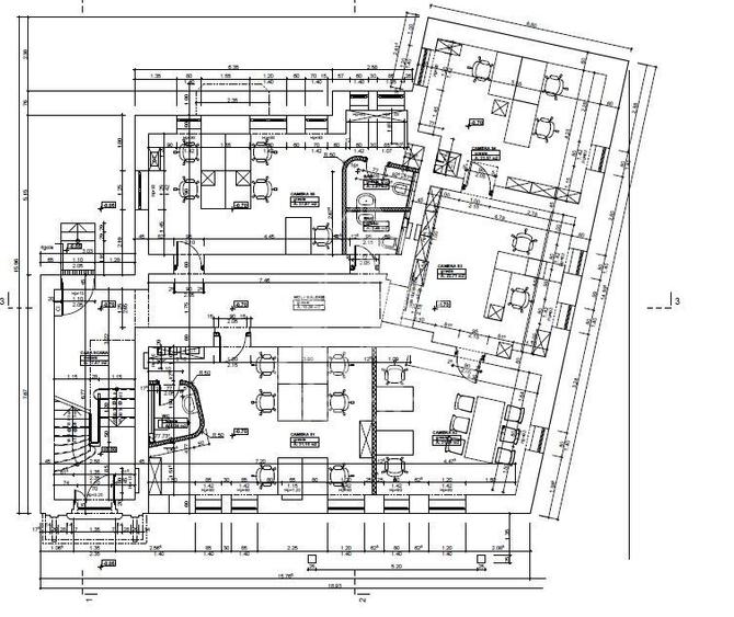
(Consultati planul de compartimentare atasat imaginilor)
Confortul termic este asigurat prin 3 centrale pe gaz si aparate de climatizare in fiecare zona.Contorizarea utilitatilor se face separat.
Accesul se face din casa scarii si hol comun, cu acces la curte amenajata cu spatiu de relaxare.
Cladirea este amplasata in apropiere de Facultati, Catedrala si Piata Balcescu.
La pretul de inchiriere se adauga un cost administrativ de 0.7 euro/mp.
Pentru mai multe informatii nu ezitati sa ne contactati!
CP2904372
Sediul central - Timișoara
Bulevardul Victor Babeș nr. 2, 300230, Timișoara, România
Tel: +40.374.40.44.98 / Fax: +40.256.401.179
Email: suport@imobiliare.ro
Luni - Vineri 08:00 - 20:00
Punct de lucru - București: Iride Business Park, Bld. Dimitrie
Pompeiu 9-9A, Clădirea B2B,
020335, Sector 2, București, România
CONTACT
Sediul central - Timișoara
Bulevardul Victor Babeș nr. 2, 300230, Timișoara, România
Tel: +40.374.40.44.98 / Fax: +40.256.401.179
Email: suport@imobiliare.ro
Luni - Vineri 08:00 - 20:00
Punct de lucru - București: Iride Business Park, Bld. Dimitrie
Pompeiu 9-9A, Clădirea B2B,
020335, Sector 2, București, România
Sună acum și cere detalii sau programează o vizionare.
Cere detalii prin email
*
*
*
*
Stații tramvai
Stații autobuz
Stații troleibuz
Stații tren
Gradinițe
Școli
Universități
Supermarket
Parcări
Parcuri
Terenuri sport
Piețe publice
Spital
Farmacie
Restaurant
Bar
Cafenea
Pub
Bancă
Statie Parc Doina Tv5, Tv6, Tv7, Tv8
aprox.
207 m
Parc Carmen Sylva
aprox.
225 m
Statie Nicolae Balcescu Tv5, Tv6, Tv7, Tv8
aprox.
312 m
Statie Memorandului Tv7
aprox.
542 m
Piata Sinaia
aprox.
590 m
Statie Mocioni Tv2, Tv1, Tv8
aprox.
594 m
Piata Mocioni
aprox.
597 m
Sfanta Maria
aprox.
622 m
Statie Piata Maria Tv5, Tv8
aprox.
645 m
Sfanta Maria
aprox.
651 m
Statie Piata Maria Tv2, Tv1, Tv7, Tv8
aprox.
659 m
Statie Tv6, Tv 1, Tv2
aprox.
685 m
Statie Regele Carol I Tv2, Tv1, Tv8
aprox.
762 m
Regele Carol I
aprox.
769 m
Statie Regele Carol I Tv1, Tv8
aprox.
831 m
Ciprian Porumbescu
aprox.
321 m
Piata Nicolae Balcescu
aprox.
330 m
Corbului
aprox.
385 m
Piata Nicolae Balcescu
aprox.
391 m
Statie Facultatea de Mecanica E8
aprox.
403 m
Piata Mocioni
aprox.
546 m
Statie Mocioni E7, A33, M36, A 32, E5
aprox.
553 m
Statie Mocioni E7, A33, A32, M36
aprox.
562 m
Piata Sinaia
aprox.
562 m
Constantin Brancoveanu
aprox.
586 m
Statie Brancoveanu E7, A33, E8, M36, E5
aprox.
615 m
C. Brancoveanu
aprox.
615 m
Statie Brancoveanu A32
aprox.
621 m
Bd. Mihai Viteazu
aprox.
633 m
Stație Facultatea de Mecanica autobuz E7
aprox.
665 m
Statie Piata Regina Maria T11, T14, T18
aprox.
1126 m
Statie B-dul Mihai Eminescu T19
aprox.
1413 m
Statie Piata 700 T11, T14, T18
aprox.
1533 m
Statie Piata 700 T11, T13, T14, T17, T18
aprox.
1563 m
Statie Pop de Basesti T11, T14, T18
aprox.
1602 m
Statie Pop de Basesti T11, T14, T18
aprox.
1640 m
Statie Maresal C-tin Prezan T15, T19
aprox.
1816 m
Statie Ghe. Baritiu T11, T14
aprox.
1819 m
Statie Maresal C-tin Prezan bucla T15, T19
aprox.
1952 m
Statie Oituz T11, T17
aprox.
1972 m
Gara de Nord
aprox.
1369 m
Terminal RESITA
aprox.
1433 m
Timisoara North railway station area (en)
aprox.
1654 m
Gradinita Program Saptamanal Nr. 1
aprox.
46 m
Gradinita Program Prelungit Nr. 21
aprox.
446 m
Gradinita Program Normal Nr. 7
aprox.
487 m
Gradinita Program Normal Nr. 8
aprox.
527 m
Gradinita particulara Chip & Dale
aprox.
618 m
Gradinita Program Prelungit Nr. 14
aprox.
619 m
Gradinita Baby's Land
aprox.
674 m
Gradinita Program Normal Nr. 17
aprox.
702 m
Gradinita Program Prelungit Nr. 12
aprox.
802 m
Gradinita nr. 12
aprox.
825 m
Gradinita Montessori
aprox.
832 m
Gradinita Notre Dame
aprox.
844 m
Gradinita Barbie
aprox.
935 m
Gradinita Program Prelungit Nr. 31
aprox.
1024 m
Gradinita cu program normal nr. 10
aprox.
1073 m
COLEGIUL ECONOMIC "FRANCESCO SAVERIO NITTI"
aprox.
175 m
Colegiul Economic Francesco Saverio Nitti
aprox.
212 m
Liceul Teoretic Grigore Moisil
aprox.
250 m
Scoala Generala Numarul 22 Timisoara - Doja (en)
aprox.
265 m
Scoala de Surdomuti Gheorghe Atanasiu
aprox.
350 m
Welding Faculty (en)
aprox.
365 m
Liceul Tehnologic Special Gheorghe Atanasiu
aprox.
366 m
Scoala Generala Numarul 22 Timisoara
aprox.
429 m
Corp Gimnaziu
aprox.
437 m
Sala de sport
aprox.
455 m
Liceul Teoretic Grigore Moisil
aprox.
462 m
LICEUL "GRIGORE MOISIL"
aprox.
498 m
Corp Liceu
aprox.
498 m
"Traian Vuia" Technical University Timisoara - Faculty of Mechanics (en)
aprox.
533 m
COLEGIUL NATIONAL BANATEAN si LICEU TEORETIC "DOSITEI OBRADOVICI"
aprox.
659 m
ELIM Evanghelical Theological Seminary (en)
aprox.
325 m
Univ. Politehnica - Fac. de Management in Productie si Transporturi
aprox.
329 m
Facultatea de Management in Productie si Transporturi
aprox.
334 m
Academia Romana - filiala Timisoara
aprox.
415 m
Facultatea de Mecanica
aprox.
538 m
SPM (en)
aprox.
543 m
Facultatea de Mecanica
aprox.
610 m
Universitatea Politehnica Timisoara
aprox.
619 m
Corpul B (en)
aprox.
630 m
Corpul D (en)
aprox.
651 m
Facultatea de Electronica si Telecomunicatii
aprox.
656 m
Corpul A (en)
aprox.
675 m
UPT Electro
aprox.
680 m
Universitatea Politehnica Timisoara - Electro
aprox.
688 m
Corpul C (en)
aprox.
710 m
Profi Piata Sinaia
aprox.
573 m
Profi City
aprox.
674 m
Kaufland
aprox.
745 m
Materna-Modern
aprox.
1293 m
Billa
aprox.
1295 m
Profi
aprox.
1392 m
Profi Sagului
aprox.
1397 m
Profi
aprox.
1397 m
Profi City
aprox.
1408 m
Lidl
aprox.
1519 m
Carrefour Market
aprox.
1525 m
Carrefour Market
aprox.
1531 m
Lidl Budai Deleanu
aprox.
1536 m
Profi
aprox.
1563 m
Carrefour
aprox.
1572 m
Parcare privata
aprox.
325 m
Parcare
aprox.
403 m
Parcare
aprox.
566 m
Parcare
aprox.
633 m
Parcare
aprox.
653 m
Parcare
aprox.
657 m
Parcare UPT
aprox.
692 m
Parcare
aprox.
692 m
Parcare
aprox.
708 m
Parcare
aprox.
718 m
Parcare
aprox.
732 m
Parcare
aprox.
759 m
Parcare pentru clienti
aprox.
769 m
Parcare pentru clienti cu plata
aprox.
775 m
Parcare
aprox.
820 m
Parcul Doina
aprox.
212 m
Parcul Carmen Sylva
aprox.
241 m
Parc
aprox.
283 m
Parc
aprox.
418 m
Parcul Gheorghe Doja
aprox.
569 m
Parcul Gheorghe Doja
aprox.
570 m
Parc Mecanică (en)
aprox.
582 m
Parc UPT
aprox.
582 m
Parc
aprox.
638 m
piata eforie
aprox.
653 m
Piata Bisericii
aprox.
661 m
Parc
aprox.
663 m
Parcul Alpinet
aprox.
682 m
Parcul Alpinet
aprox.
684 m
Parc
aprox.
760 m
Teren sportiv
aprox.
339 m
Teren sportiv
aprox.
472 m
Teren sportiv
aprox.
473 m
Stadion Stiinta
aprox.
670 m
Teren sportiv
aprox.
686 m
Teren sportiv
aprox.
693 m
Teren sportiv
aprox.
701 m
Teren sportiv
aprox.
723 m
Teren sportiv
aprox.
778 m
Teren sportiv
aprox.
797 m
Teren sportiv
aprox.
824 m
Teren sportiv
aprox.
880 m
Teren sportiv
aprox.
946 m
Teren sportiv
aprox.
967 m
Teren sportiv
aprox.
1002 m
Piata Sinaia
aprox.
578 m
Piața Maria
aprox.
639 m
Piata Victoriei
aprox.
1133 m
Piata Aron Cotrus
aprox.
1326 m
Piata Leonardo Da Vinci
aprox.
1327 m
Piata Mircea Eliade
aprox.
1406 m
Piata Libertatii
aprox.
1500 m
Piata Unirii
aprox.
1787 m
Piata Tepes Voda
aprox.
1812 m
Spitalul de neurospihiatrie infantila
aprox.
238 m
Policlinica Nr. 3
aprox.
391 m
Maternitate Spital Odobescu
aprox.
577 m
Odobescu Maternity (en)
aprox.
582 m
Spitalul de Obstetrica si Ginecologie
aprox.
610 m
Clinica Universitara de Obstetrica Ginecologie Bega
aprox.
657 m
Neuromed
aprox.
662 m
Spitalul CFR timisoara
aprox.
718 m
Cabinet Acupunctura - Dr. Claici
aprox.
733 m
Spitalul Clinic Cai Ferate
aprox.
754 m
Clinica BEGA Obstetrica Ginecologie
aprox.
780 m
Clinica de Psihiatrie
aprox.
931 m
Policlinica Vacarescu
aprox.
932 m
Neuromed
aprox.
1139 m
Clinica de Neonatologie - Prematuri
aprox.
1170 m
Mihai Viteazul
aprox.
342 m
Sf. Maria
aprox.
664 m
Vlad
aprox.
819 m
Sensiblu
aprox.
1063 m
Farmado
aprox.
1150 m
Sensiblu
aprox.
1158 m
Farmacia Granathalma
aprox.
1350 m
Farmacia Dona
aprox.
1532 m
Farmacia Dona
aprox.
1533 m
Dianthus Farmacia
aprox.
1554 m
Farmacia Catena
aprox.
1559 m
Farmacia Dona
aprox.
1599 m
Farmacia HelpNet
aprox.
1610 m
Dona
aprox.
1645 m
Sensiblu
aprox.
1694 m
EXCELSIOR
aprox.
118 m
Intim
aprox.
130 m
Restaurant Casa del Sole
aprox.
181 m
Casa Bunicii Restaurant
aprox.
291 m
Casa Bunicii
aprox.
302 m
Monsieur Bistro
aprox.
362 m
Brunch - Grab & Go
aprox.
396 m
La Residenza
aprox.
476 m
Restaurant Yugoslavia
aprox.
549 m
Rustic
aprox.
560 m
Los Toreros (en)
aprox.
570 m
Hotel Perla 3
aprox.
598 m
Casa Bunicii 2
aprox.
607 m
Pomo d'Oro
aprox.
614 m
Taco Loco (en)
aprox.
631 m
Scart Loc Lejer
aprox.
256 m
Zanoni
aprox.
355 m
Manufactura
aprox.
641 m
Swiss House Club
aprox.
761 m
Amore
aprox.
990 m
DUGA CLUB
aprox.
1381 m
Alt Club
aprox.
1443 m
Club Fratelli
aprox.
1504 m
Freshious
aprox.
1529 m
PAGO
aprox.
1537 m
Art Club Cafe
aprox.
1543 m
Atu
aprox.
1578 m
WakeUp
aprox.
1583 m
Enoteca de Savoya
aprox.
1643 m
Arqa
aprox.
1654 m
Viniloteca
aprox.
590 m
COPA Caffe
aprox.
593 m
Terasa D'Arc
aprox.
768 m
BiblioTech Cafe
aprox.
781 m
Massimo
aprox.
1091 m
Tempo
aprox.
1168 m
Galto di Bruno
aprox.
1197 m
Starbucks
aprox.
1313 m
WellPlayed Gaming Lounge
aprox.
1599 m
Orlovi
aprox.
1608 m
Tucano Coffee Mexico
aprox.
1616 m
Spirit
aprox.
1622 m
Barista
aprox.
1632 m
Musetti
aprox.
1649 m
1740 Music Cafe
aprox.
1704 m
Vineri15
aprox.
936 m
Daos Club
aprox.
956 m
La Capite
aprox.
979 m
Habitat
aprox.
1149 m
Caffe Tim Nord
aprox.
1398 m
The 80's Pub
aprox.
1482 m
Beraria 700
aprox.
1529 m
Orlovi
aprox.
1607 m
Bibliotheka 2
aprox.
1615 m
Molly Malone's
aprox.
1702 m
Irish Pub
aprox.
1738 m
Grinette
aprox.
1741 m
Rock House
aprox.
1747 m
Jarvis
aprox.
1806 m
Bierhaus
aprox.
1818 m
Banca Transilvania
aprox.
326 m
UniCredit Bank
aprox.
383 m
BCR
aprox.
677 m
Intesa Sao Paolo Bank
aprox.
690 m
Banca Romaneasca
aprox.
842 m
BCR
aprox.
945 m
BRD
aprox.
980 m
UniCredit Bank
aprox.
985 m
Piraeus Bank
aprox.
986 m
ING
aprox.
1005 m
BCR
aprox.
1213 m
ING Bank
aprox.
1217 m
Banca Transilvania
aprox.
1235 m
OTP Bank
aprox.
1246 m
ING
aprox.
1247 m
Dată fiind apropierea sa de zona centrală, acest cartier este bine deservit la capitolul mijloace de transport în comun "“ astfel, locuitorii săi au la dispoziție atât tramvaie (liniile 6, 7, 8, dar și 10), cât și mai multe autobuze (printre care linia E8, care circulă pe Strada Ciprian Porumbescu). Și amatorii mersului cu bicicleta sunt avantajați, aceștia având acces la mai multe piste special amenajate, pe străzi precum Bulevardul Mihai Viteazu, Bulevardul Victor Babeș sau Strada Cluj.
Dintre unitățile de învățământ existente strict între granițele cartierului, de menționat ar fi Școala primară "Sf. Antim Ivireanul" (de pe Bulevardul Liviu Rebreanu, nr. 35), Liceul Teoretic "Grigore Moisil" (de pe Strada Ghirlandei, nr. 4), dar și Colegiul Economic "Francesco Severio Nitti" (de pe Strada Corbului, nr. 7C). Zona beneficiază, în plus, de proximitatea a două cartiere în care pot fi găsite atât licee, cât și reputate instituții de învățământ superior. În Cetate se află, astfel, Universitatea de Medicină și Farmacie "Victor Babeș" (pe Strada Eftimie Murgu, nr. 2), dar și Facultatea de Management în Producție și Transporturi (pe Strada Remus, nr. 14), în apropiere de Parcul "Carmen Sylva"). În Complex-Stadion, pe de altă parte, se găsește Universitatea de Vest, de care aparțin peste zece facultăți importante (printre care Arte și Design, Litere, Istorie și Teologie, dar și cea de Matematică și Informatică). Mai jos poți vedea în detaliu ce unități de învățământ există în Elisabetin-Odobescu:
În ceea ce privește oportunitățile de cumpărături, de precizat este că locuitorii zonei Elisabetin-Odobescu sunt deserviți, strict între granițele cartierului, de magazine de mici dimensiuni. Cu toate acestea, însă, timișorenii de aici au acces la facilitățile comerciale oferite de centrul orașului "“ de menționat aici fiind, desigur, magazinul Bega Shopping Center, situat în apropiere de Parcul Civic. Un alt avantaj al celor care locuiesc în această parte a orașului este reprezentat de proximitatea zonei Calea Șagului, în contextul în care aici pot găsi și un hipermarket "“ este vorba despre o unitate din rețeaua Kaufland, amplasată aproape de "granița" dintre cele două cartiere, mai exact pe Strada Damaschin Bojinca, nr. 4. De asemenea Mall-ul Shopping City Mall este o opțiune pentru locuitorii acestei zone.
Una dintre principalele artere de circulație din zona Elisabetin-Odobescu este Bulevardul Mihai Viteazu, care face legătura cu zona Cetate; acesteia i se adaugă Strada Ciprian Porumbescu, care ajunge și în învecinatul Șagului, dar și Bulevardul Liviu Rebreanu, la limita cu Calea Șagului și Girocului. De menționat este, desigur, și Strada Alexandru Odobescu, care dă, cel puțin în parte, și numele cartierului. Deși Elisabetin-Odobescu nu poate fi considerat un cartier prea aglomerat, cei interesați de închirierea unui loc de parcare de la autoritățile locale se pot adresa reprezentanților Primăriei (al cărei sediu se găsește în zona Cetate, mai exact pe Bulevardul Constantin Diaconovici Loga, nr. 1).
Pe lângă spațiile verzi din cartier, în Elisabetin-Odobescu se găsesc și parcuri, de menționat aici fiind Parcul "Carmen Sylva", situat aproape de granița cu zona Cetate, dar și parcul din jurul Observatorului Astronomic. Cei care locuiesc aici au acces, bineînțeles, și la multitudinea de opțiuni oferite din acest punct de vedere de centrul orașului (precum Parcul Botanic, Parcul Catedralei, Parcul Civic, Parcul "I.C. Brătianu", Parcul "Regina Maria", Parcul Rozelor, Parcul Copiilor "Ion Creangă"). Lista obiectivelor de interes cultural și turistic din zona Cetate, la care au acces timișorenii din Elisabetin-Odobescu, este completată de Muzeul Consumatorului Comunist "“ acesta își are sediul chiar în cartier, pe Strada Arhitect Laszlo Szekely, nr. 1. Nu în ultimul rând, această zonă a Timișoarei are de câștigat de pe urma proximității zonei Complex-Stadion, unde se găsește, alături de alte facilități sportive, și Stadionul "Dan Păltinișanu". Află, mai jos, ce alte opțiuni de petrecere a timpului liber mai ai în Elisabetin-Odobescu:
În ceea ce privește accesul la servicii medicale, zona Elisabetin-Odobescu este destul de bine deservită chiar de unitățile medicale existente în interiorul său. Astfel, pe Bulevardul Victor Babeș, la limita cu Complex-Stadion, se află Maternitatea Bega dar și Clinica de Oncologie Medicală. În plus, pe Strada Corbului, nr. 7, se află Clinica de Neuropsihiatrie Infantilă, ce ține de Spitalul Clinic de Urgență pentru Copii "Louis Țurcanu". Locuitorii acestei zone al capitalei Banatului au la dispoziție, pe lângă spitalele din zona centrală, și o serie de cabinete medicale particulare în propriul cartier. Aceștia se pot înscrie, astfel, la un medic de familie, dar pot beneficia și de diverse consultații specializate (dermatologie, stomatologie etc.). Pe harta de mai jos găsești localizarea exactă a spitalelor și clinicilor din zonă:
Găsim aici câteva restaurante și pizzerii, amenajate în vilele istorice ale zonei, între care Pizza La Maria, de pe strada Emanoil Gojdu, nr. 6, Restaurant Ambasador, de pe strada Mangalia nr. 3, sau restaurantul Valahia de pe strada Vadul Călugăreni, nr. 1. În cazul în care dorești un prânz business, există și opțiunea de a alege restaurantul din cadrul clădirii Nokia, care se află în vecinătate. Cu mașina, cu bicicleta, sau chiar pe jos, poți să ajungi repede în Piața Victoriei, iar dacă nici localurile de aici nu te satisfac, cu siguranță vei găsi ceva pe gustul tău mergând în Piața Sfântul Gheorghe sau Unirii. Aruncă o privire pe hartă și vezi unde vei găsi cel mai apropiat restaurant de viitoarea ta locuință.
Găsești un bancomat BRD pe Bulevardul Regele Carol, nr. 28, respectiv pe strada 16 decembrie 1989, nr. 71. O sucursala Banca Transilvania ai pe Bulevardul Regele Carol I, la nr. 36, dar și în apropierea Gării de Nord, unde se mai află și o sucursală ING Bank. Datorită proximității cu zona centrală a orașului, vei avea mai multe opțiuni să găsești și alte bancomate și sucursale bancare la care poți ajunge relativ ușor, pe jos sau cu mașina. Consultă harta și află unde sunt localizate și alte bănci sau ATM-uri în zona de care ești interesat.
Înainte să pleci...
Ești sigur că ai văzut și aceste proprietăți?
1.200 € / lună
Timișoara, Elisabetin
100 mp utili
Clădire de birouri
2023 (Există)
1.200 € / lună
Timișoara, Elisabetin
250 mp utili
Clădire de birouri
1960 (Există)
1.140 - 11.970 € / lună
Timișoara, Circumvalațiunii
5.096 mp utili
Clădire de birouri
P+8E
Creează alertă
Salvează căutarea ca să primești pe email ultimele anunțuri publicate
Birouri cu 4+ camere de închiriat în zona Elisabetin, Timișoara
Cere detalii prin email
*
*
*
*
Detaliile tale de contact vor fi partajate cu Apostu Estate