7

CRISMA OFFICES - comision 0%, reprezentam proprietarul!

Preț necomunicat

Sinaia, Timișoara

Sup. utilă / mp. utili:
2.886 mp
Tip prop.:
Clădire de birouri
Niv.:
2
  • • Comision 0%
  • • Locație exactă

Descriere spațiu comercial

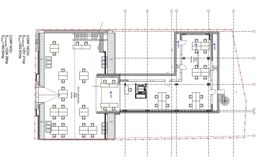
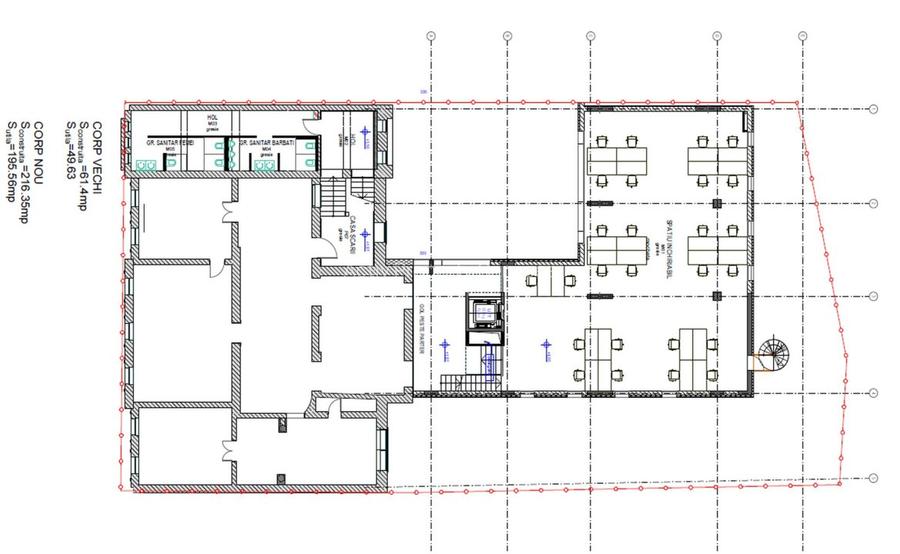
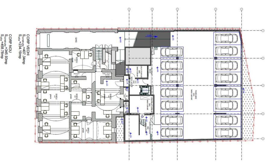
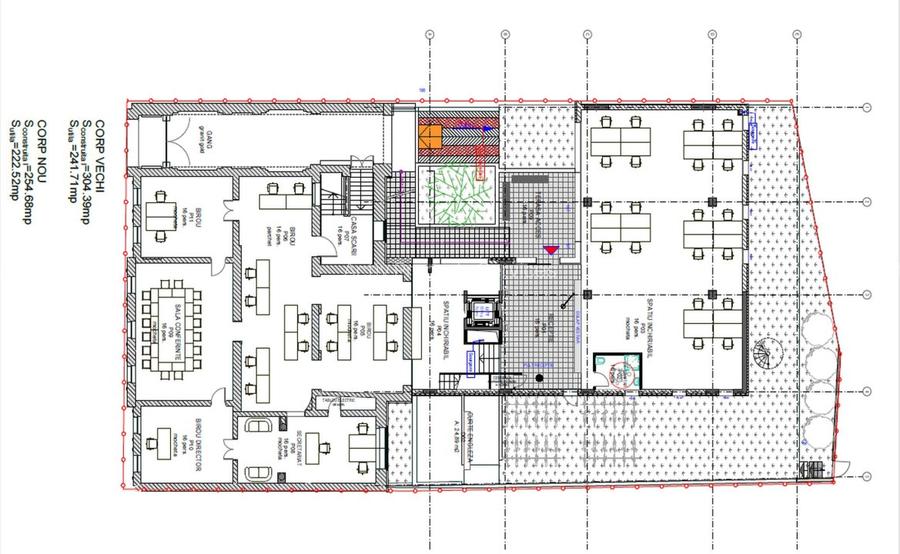
Spatii de birouri disponibile intr-o cladire istorica, modernizata, amplasata in zona ultracentrala a orasului Timisoara, pe Bulevardul 16 Decembrie 1989. Cladirea este localizata la 500 m distanta de Piata Sfanta Maria, 1,2 km distanta fata de Gara de Nord din Timisoara, 1,5 km distanta de Piata Vitoriei (fosta Piata Operei) si la 2 km distanta fata de Piata Unirii. Accesibilitatea cu automobilul este excelenta, Bd. 16 Decembrie avand cate doua benzi de circulatie pe sensul de mers. Transportul public este asigurat de numeroase statii de autobus si tramvai ce fac legatura cu orice punct important al orasului. Cladirea istorica a fost complet reabilitata si extinsa cu un corp nou, ceea ce face ca proiectul sa fie prima cladire istorica din Timisoara echipata la standarde reale de clasa A si indeplinind toate cerintele pentru a obtine certificatul BREEAM Excellent. Proprietatea beneficiaza de 15 locuri de parcare proprii in parcare privata subterana si cateva zeci de locuri pentru biciclete. Cladirea are o suprafata inchiriabila totala de 1.886 desfasurati astfel: Demisol cu o suprafata totala de 241 mp, parter + mezanin cu o suprafata totala de 670 mp, etajul 1 cu o suprafata totala de 506 mp si etajul 2 + mansarda cu o suprafata totala de 469 mp.
Citește mai mult Citește mai puțin
15 Parcări

Detalii spațiu comercial

ID anunț: X5F80419F Copiat! 49464015 Copiat!
Actualizat în: 11 Iunie 2025
Nume proprietate: CRISMA OFFICES
Regim înălțime: 1S+D+P+2E
Stadiu construcție: Există

Utilități

Comision
0%

Vecinătăți:

Bld. Regele Carol I
Splaiul Nicolae Titulescu

Alte detalii:

Spatii de birouri disponibile intr-o cladire istorica, modernizata, amplasata in zona ultracentrala a orasului Timisoara, pe Bulevardul 16 Decembrie 1989.

Cladirea este localizata la 500 m distanta de Piata Sfanta Maria, 1,2 km distanta fata de Gara de Nord din Timisoara, 1,5 km distanta de Piata Vitoriei (fosta Piata Operei) si la 2 km distanta fata de Piata Unirii.

Accesibilitatea cu automobilul este excelenta, Bd. 16 Decembrie avand cate doua benzi de circulatie pe sensul de mers. Transportul public este asigurat de numeroase statii de autobus si tramvai ce fac legatura cu orice punct important al orasului.

Cladirea istorica a fost complet reabilitata si extinsa cu un corp nou, ceea ce face ca proiectul sa fie prima cladire istorica din Timisoara echipata la standarde reale de clasa A si indeplinind toate cerintele pentru a obtine certificatul BREEAM Excellent.

Proprietatea beneficiaza de 15 locuri de parcare proprii in parcare privata subterana si cateva zeci de locuri pentru biciclete.

Cladirea are o suprafata inchiriabila totala de 1.886 desfasurati astfel: Demisol cu o suprafata totala de 241 mp, parter + mezanin cu o suprafata totala de 670 mp, etajul 1 cu o suprafata totala de 506 mp si etajul 2 + mansarda cu o suprafata totala de 469 mp.

Subspații disponibile

Minim de inchiriat

Mai multe detalii despre aceasta oferta in link-ul de mai jos: spatii-de-birouri.ro/inchiriere-vanzare/spatii-birouri-inchiriat-cladire-istorica-crisma-offices Pe platforma SPATII-DE-BIROURI.RO gasiti peste 400 de cladiri de birouri din Bucuresti, cu toate informatiile actualizate si comision 0% (reprezentam proprietarii).

Chirie / u.m. / lună:
Preț necomunicat
Suprafață disponibilă:
241
Disponibilitate spațiu:
imediat
Posibilitate parcare:
Da

Maxim de inchiriat

Mai multe detalii despre aceasta oferta in link-ul de mai jos: spatii-de-birouri.ro/inchiriere-vanzare/spatii-birouri-inchiriat-cladire-istorica-crisma-offices Pe platforma SPATII-DE-BIROURI.RO gasiti peste 400 de cladiri de birouri din Bucuresti, cu toate informatiile actualizate si comision 0% (reprezentam proprietarii).

Chirie / u.m. / lună:
Preț necomunicat
Suprafață disponibilă:
2886
Disponibilitate spațiu:
imediat

Puncte de interes

Mijloace transport
bus-station
Statie Mocioni E7, A33, A32, M36
Stații autobuz aprox. 66 m
tram-station
Statie Mocioni Tv2, Tv1, Tv8
Stații tramvai aprox. 158 m
train-station
Gara de Nord
Stații tren aprox. 853 m
trolleybus-station
Statie Piata Regina Maria T11, T14, T18
Stații troleibuz aprox. 1009 m
Școală
kindergarten
Gradinita Program Prelungit Nr. 21
Gradinițe aprox. 107 m
school
Colegiul National Banatean
Școli aprox. 126 m
kindergarten
Gradinita Program Prelungit Nr. 14
Gradinițe aprox. 139 m
university
ELIM Evanghelical Theological Seminary (en)
Universități aprox. 278 m
Recreere
supermarket
Profi Piata Sinaia
Supermarket aprox. 113 m
public-square
Piata Sinaia
Piețe publice aprox. 179 m
sports-ground
Teren sportiv
Terenuri sport aprox. 293 m
park
Parcul Gheorghe Doja
Parcuri aprox. 582 m

Proprietăți recomandate

Detalii de contact

Activ Property Services

Felicia Vasiu Agent imobiliar

Activ Property Services
PRO

Abonează-te la newsletter să fii primul care primește cele mai noi recomandări de proprietăți și sfaturi de la experți.

CONTACT

Creează alertă

Salvează căutarea ca să primești pe email ultimele anunțuri publicate

Birouri de închiriat în zona Sinaia, Timișoara