City view from the office

3.908 € / lună
11.49 € / mp / lună

Ultracentral, Timișoara

Sup. utilă / mp. utili:
340 mp
Tip prop.:
Clădire de birouri
Niv.:
6
An constr.:
1996 (Există)
  • • Locație aproximativă

Descriere spațiu comercial

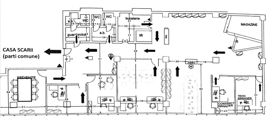
Spațiu pentru birou situat în zona Ultracentrală a orașului, cu suprafața utilă de 340 mp, structurat în birouri cu diferite dimensiuni, bucătărie și grupuri sanitare. Spațiul beneficiază și de acces exclusiv cu lift propriu direct din parcarea subterană a imobilului unde sunt alocate gratuit trei locuri de parcare. La prețul de închiriere se adaugă costul utilităților și garanția de bună execuție contractuală. Garanția este egală cu echivalentul a 2 chirii lunare. Având la baza flexibilitatea și deschiderea proprietarului în acest sens, recompartimentarea și finisajele spațiilor existente pot fi subiectul unor discuții/negocieri, alături de perioada contractuală.
Citește mai mult Citește mai puțin
3 Parcări

Detalii spațiu comercial

ID anunț: XCP81401R Copiat! 261330234 Copiat!
Actualizat în: 30 Aprilie 2026
Tip tranzacție: De închiriat prin agent
Suprafață utilă: 340 mp
Etaj: Etaj 4 / 6
Clasă birouri: B
Regim înălțime: D+P+6E
Structură rezistență: Beton
Stadiu construcție: Există

Utilități

Utilități
Curent Apă Canalizare
Comision
standard

Vecinătăți:

Piața Unirii, Tribunalul Timiș, Hotel Continental, Bega Shopping Center.

Disponibilitate proprietate:

Imediat

Puncte de interes

Mijloace transport
bus-station
Filipescu
Stații autobuz aprox. 108 m
trolleybus-station
Statie Bastion T11, T17
Stații troleibuz aprox. 133 m
tram-station
Statie Prefectura Tv1, Tv2, Tv4, Tv6
Stații tramvai aprox. 259 m
train-station
Gara de Est
Stații tren aprox. 1172 m
Școală
university
Universitatea de Medicina si Farmacie Victor Babes
Universități aprox. 34 m
university
Universitatea de Medicina
Universități aprox. 56 m
school
Colegiul National Ana Aslan
Școli aprox. 186 m
kindergarten
Gradinita Program Prelungit Nr. 22
Gradinițe aprox. 241 m
Recreere
park
Parc
Parcuri aprox. 154 m
sports-ground
Teren sportiv
Terenuri sport aprox. 357 m
supermarket
Profi City
Supermarket aprox. 472 m
mall
Kappa Centrul Comercial
Mall aprox. 1227 m

Istoricul prețurilor

Acces la informații premium după autentificare
Login Gratuit

Proprietăți similare

Birou, de 250 mp, în Ultracentral
3.025 € / lună
Timișoara, Ultracentral
250 mp utili
Clădire de birouri
3E
Birou, de 296 mp, în Circumvalațiunii
2.960 € / lună
Timișoara, Circumvalațiunii
296 mp utili
1E
1970 (Există)
Birou, de 287 mp, în Ultracentral
3.444 € / lună
Timișoara, Ultracentral
287 mp utili
Casă/Vilă
2E

Detalii de contact

Habitation

Dan Pantel Managing Partner

Habitation
PRO

Abonează-te la newsletter să fii primul care primește cele mai noi recomandări de proprietăți și sfaturi de la experți.

Feedback apel

CONTACT

Creează alertă

Salvează căutarea ca să primești pe email ultimele anunțuri publicate

Birouri cu 4+ camere de închiriat în zona Ultracentral, Timișoara