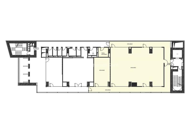
North Bucharest Investments vă prezintă un birou modern de 452 mp, situat într-o clădire de birouri premium din zona Universitate, inima de business și administrativă a Bucureștiului.
Spațiul este parțial compartimentat, oferind flexibilitate pentru diverse tipuri de activități: IT, consultanță, avocatură, marketing sau servicii profesionale.
Luminozitatea naturală excelentă asigurată de fațada cu cortină de sticlă, finisajele de calitate (podea înălțată, tavan fals) și infrastructura modernă, inclusiv sistemul de climatizare cu aport de aer proaspăt, asigură un mediu de lucru confortabil și productiv.
Accesul este excelent, atât cu transportul public, cât și auto, cu stația de metrou Universitate la doar câteva minute distanță. În imediata vecinătate se regăsesc restaurante, cafenele și centre comerciale, ideale pentru pauze și întâlniri informale.
Chiria este de 19.5 €/mp + TVA, la care se adaugă taxa de servicii, incluzând mentenanța clădirii, recepția și paza permanentă.
Opțional, se pot închiria locuri în parcarea subterană a clădirii, oferind un plus de confort și accesibilitate.
Pentru mai multe detalii, nu ezitați să ne contactați!
Sediul central - Timișoara
Bulevardul Victor Babeș nr. 2, 300230, Timișoara, România
Tel: +40.374.40.44.98 / Fax: +40.256.401.179
Email: suport@imobiliare.ro
Luni - Vineri 08:00 - 20:00
Punct de lucru - București: Iride Business Park, Bld. Dimitrie
Pompeiu 9-9A, Clădirea B2B,
020335, Sector 2, București, România
CONTACT
Sediul central - Timișoara
Bulevardul Victor Babeș nr. 2, 300230, Timișoara, România
Tel: +40.374.40.44.98 / Fax: +40.256.401.179
Email: suport@imobiliare.ro
Luni - Vineri 08:00 - 20:00
Punct de lucru - București: Iride Business Park, Bld. Dimitrie
Pompeiu 9-9A, Clădirea B2B,
020335, Sector 2, București, România
UAUIM -Universitatea de Arhitectura si Urbanism Ion Mincu
aprox.
289 m
Facultatea de Istorie
aprox.
344 m
Facultatea de Matematica-Informatica
aprox.
370 m
Facultatea de Stiinte
aprox.
382 m
University of Bucharest - Faculty of Foreign Languages and Literatures (en)
aprox.
559 m
Palatul Fundației Universitare "Carol I"
aprox.
559 m
Centrul de Limbi Straine Ariel
aprox.
562 m
Rectoratul UMF "Carol Davila"
aprox.
568 m
Universitatea Nationala de Muzica Conservator
aprox.
1041 m
Universitatea Nationala de Muzica Bucuresti
aprox.
1041 m
Pravalia Maestrului
aprox.
204 m
Mega Image Rosetti Non-Stop
aprox.
475 m
OK Non-stop Supermarket (en)
aprox.
573 m
OK Non-Stop
aprox.
573 m
Mega Image Paleologu
aprox.
578 m
ilanplant
aprox.
598 m
Mag.Victoria
aprox.
702 m
Mega Image - Icoanei
aprox.
732 m
Cocor
aprox.
780 m
BILLA - Cocor
aprox.
792 m
Mega Image Magheru
aprox.
802 m
Bacania Coco
aprox.
819 m
Mega Image Brezoianu
aprox.
880 m
dm
aprox.
894 m
Nik Non-Stop
aprox.
946 m
"METROPLIS CENTER"
aprox.
1757 m
Parcare
aprox.
50 m
Parcare
aprox.
79 m
Parcare cu plata
aprox.
80 m
Parcare cu plata
aprox.
184 m
Parcare
aprox.
246 m
Parcare
aprox.
278 m
Parcare
aprox.
279 m
Parcare
aprox.
291 m
Parcare
aprox.
339 m
Parcare
aprox.
344 m
Parcare subterană Piața Universității
aprox.
347 m
Parcare
aprox.
359 m
Parcare privata
aprox.
402 m
Parcare
aprox.
435 m
Parcare
aprox.
444 m
Piata Universitatii
aprox.
169 m
Piata Rosetti
aprox.
253 m
Piata Revolutiei
aprox.
525 m
Piața Drapelului (Tricolorului)
aprox.
534 m
Piata Roma
aprox.
623 m
Piata Timpului
aprox.
734 m
Piața Sfântul Anton
aprox.
827 m
Piata Latina
aprox.
852 m
Piata Natiunilor Unite
aprox.
1025 m
Piața Romană
aprox.
1214 m
Piata Bibescu
aprox.
1318 m
Piața Constituției
aprox.
1469 m
Piata Bucur
aprox.
1796 m
Piata Emil Cioran (Vergilius) (en)
aprox.
1819 m
Rond Piața Universității
aprox.
221 m
Parcul Colțea
aprox.
223 m
Spatiu verde
aprox.
248 m
Parc
aprox.
267 m
Parc
aprox.
289 m
Parc
aprox.
311 m
Parc
aprox.
312 m
Parc
aprox.
317 m
Parc
aprox.
322 m
Parc
aprox.
344 m
Parc
aprox.
344 m
Piata Universitatii
aprox.
349 m
Small park (en)
aprox.
442 m
Parc
aprox.
442 m
Parc
aprox.
493 m
Teren sportiv
aprox.
982 m
Teren sportiv
aprox.
1148 m
Teren sportiv
aprox.
1154 m
Teren sportiv
aprox.
1303 m
Teren sportiv
aprox.
1320 m
Baza sportiva Universitatea Bucuresti
aprox.
1635 m
teren tenis
aprox.
1670 m
Teren sportiv
aprox.
1774 m
Teren sportiv
aprox.
1948 m
Stadionul Dinamo
aprox.
1972 m
Reteta
aprox.
170 m
belladona
aprox.
181 m
HelpNet
aprox.
181 m
Sensiblu
aprox.
192 m
Farmacia Tarsis Impex
aprox.
202 m
Farmacia Artafarm
aprox.
239 m
Royal Blu Pharmacy
aprox.
295 m
Farmacia Coltea
aprox.
332 m
Farmacon CO Impex
aprox.
364 m
General Smart Farm
aprox.
400 m
Farmacia Nr. 1
aprox.
403 m
Sensiblu
aprox.
408 m
Farmacia Academia
aprox.
445 m
Gema Farm Impex
aprox.
460 m
Farmacia Apifarm
aprox.
475 m
Centrul Medical Batistei
aprox.
190 m
Policlinica (en)
aprox.
223 m
Spitalul Colțea
aprox.
322 m
Clinica Reumatologie "Dr. Ion Stoia"
aprox.
433 m
Cabinet stomatologic (en)
aprox.
607 m
Clinica de 10
aprox.
656 m
WORLD CLINIC - O viata fara alergii ! (en)
aprox.
687 m
Centru medical MEDSANA
aprox.
690 m
Centrul Medical Academica
aprox.
702 m
INGG Ana Aslan Spatarului nr. 15 (en)
aprox.
715 m
ProctoMed
aprox.
786 m
Spitalul Clinic Prof. Dr. Doc Ovidiu Marina
aprox.
786 m
MediDent
aprox.
787 m
Art Implant
aprox.
792 m
Medident Dental X-ray
aprox.
799 m
Burebista
aprox.
98 m
Hotel InterContinental Bucuresti***** (77m)(1971)
aprox.
104 m
Modigliani
aprox.
106 m
Corso
aprox.
144 m
Clasic restaurant , Tequila terrace (en)
aprox.
187 m
Crama Dunarea
aprox.
188 m
Fortuna Palace
aprox.
195 m
Pescarul
aprox.
207 m
GINO'S Restaurant & Playground Bar (en)
aprox.
213 m
Gregory's
aprox.
224 m
Beautyfood
aprox.
249 m
Violeta's Vintage Kitchen (en)
aprox.
253 m
Violeta's vintage kitchen
aprox.
253 m
Restaurant Cucina Borghese
aprox.
263 m
Cantina Arhitecturii
aprox.
271 m
Have a Cigar
aprox.
206 m
Clock`s
aprox.
343 m
Coloseum
aprox.
369 m
Edgar`s Pub
aprox.
392 m
Question Mark Social Club
aprox.
430 m
Charlatans Irish Pub
aprox.
434 m
Club Surubelnita
aprox.
453 m
Club A
aprox.
543 m
Dharma
aprox.
556 m
Hanul cu Tei
aprox.
557 m
Argentin
aprox.
574 m
S.A.L.T.
aprox.
577 m
Pebeo
aprox.
577 m
Iron City
aprox.
579 m
Interbelic
aprox.
619 m
Dianei Patru
aprox.
230 m
Que Pasa
aprox.
257 m
Underworld
aprox.
354 m
Epic
aprox.
364 m
Yellow Bar
aprox.
410 m
Macaz Bar Teatru Coop
aprox.
445 m
Galliano Club
aprox.
527 m
Chat noir
aprox.
548 m
Control Club
aprox.
565 m
Expat
aprox.
569 m
The Drunken Lords
aprox.
585 m
Colorteca
aprox.
593 m
Tiki
aprox.
595 m
Fratelli Espresso Bar
aprox.
605 m
Hattrick
aprox.
606 m
T-zero
aprox.
231 m
T-zone
aprox.
231 m
The Living Room
aprox.
312 m
Bernschutz and Co
aprox.
329 m
Lente Praporgescu
aprox.
368 m
Gio Cafe
aprox.
383 m
Demmers Teahouse
aprox.
392 m
Vesuvio Cafe
aprox.
409 m
Newton Caffe
aprox.
429 m
Mi-nut
aprox.
435 m
Hobby Caffe & Shop
aprox.
450 m
Cafeneaua Arhitectilor
aprox.
467 m
Cafeneaua liberala
aprox.
501 m
Iguana Cafe
aprox.
527 m
DDB caffe
aprox.
531 m
Banca Transilvania - Ag. Magheru
aprox.
173 m
Banca Transilvania - Ag. Rosetti
aprox.
187 m
BRD (en)
aprox.
219 m
BRD Calderon-Batistei
aprox.
219 m
BCR
aprox.
242 m
Bancpost
aprox.
248 m
Sucursala ING Bank (en)
aprox.
259 m
ING Balcescu
aprox.
259 m
BRD Rosetti
aprox.
264 m
Raiffeisen Bank
aprox.
291 m
Garanti Bank
aprox.
321 m
Sucursala Raiffeisen Bank (en)
aprox.
331 m
Raiffeisen Bank
aprox.
337 m
Piraeus Bank
aprox.
350 m
Banca Romaneasca
aprox.
366 m
Fiind o zonă ultracentrală, aceasta oferă numeroase opțiuni de călătorie cu mijloacele de transport în comun, și este bine conectată cu restul orașului. Ai, în primul rând, la dispoziție stațiile de metrou Piața Victoriei, Piața Romană și Universitate. Astfel, te vei putea deplasa rapid prin oraș, evitând aglomerația de la suprafață. Toate acestea sunt situate pe magistrala 2 care traversează Bucureștiul de la nord la sud. În plus, de la Piața Victoriei vei putea lua metroul și pe magistrala 1 pentru a ajunge, de exemplu, în cartierul Pantelimon sau în zona Eroilor. Prin Piața Universității urmează să treacă și magistrala 5 care va lega cartierele Drumul Taberei și Pantelimon. Până acum, s-au deschis însă doar stațiile de metrou aflate în zona Drumul Taberei. Alte mijloace de transport în comun care ar putea să-ți fie de ajutor atunci când te vei muta în această zonă sunt autobuzele 300 și 381. Primul face legătura dintre Piața Romană și Piața Victoriei continuându-și apoi traseul de-a lungul Bulevardului Ion Mihalache, iar cel de-al doilea conectează Piața Victoriei cu zona Tineretului și cu cartierul Berceni. De pe Bulevardul Regina Elisabeta vei putea lua troleibuzul 90 pentru a ajunge în Drumul Taberei sau în zona Arenei Naționale, iar în fața Spitalului Colțea vei găsi stația autobuzului 381 care merge în cartierul Berceni. Iar dacă preferi să te deplasezi pe două roți, vei avea la dispoziție una dintre pistele speciale destinate bicicliștilor pe Calea Victoriei. Aceasta îți va oferi, în plus, oportunitatea ideală de a admira arhitectura deosebită a clădirilor aflate de o parte și de alta a uneia dintre cele mai frumoase străzi din București. Consultă harta pentru a afla unde sunt localizate stațiile mijloacelor de transport în comun.
În această zonă găsim sediul central al Universității din București și cel al Academiei de Studii Economice din București (ASE), unele dintre cele mai prestigioase instituții de învățământ superior din România. Tot aici se află și sediile mai multor facultăți. Ai și alte instituții de învățământ cu renume la doi pași de casă, precum precum Colegiul Național "Sfântul Sava", Colegiul Național "Gheorghe Lazăr", Liceul Teoretic Bulgar "Hristo Botev" și Universitatea Națională de Muzică. De menționat este și Căminul Moxa, aflat în zona Calea Victoriei, în care sunt cazați unii dintre studenții ASE. Consultă harta de mai jos pentru a vedea și celelalte unități de învățământ din zonă.
În această parte a orașului vei găsi numeroase reprezentanțe ale unor branduri de lux. Cele mai multe magazine alimentare din zonă au dimensiuni reduse. Pentru cumpărături îți recomandăm Piața Amzei, aflată la doi pași de Romană și modernizată recent. Aici găsești, pe lângă comercianți de unde poți cumpăra legume și fructe și câteva magazine cu preparate proaspete de la burgeri, la pâine artizanală sau înghețată. Centrul Vechi găzduiește, totodată, reprezentanțe ale unor retaileri de modă. Tot aici găsești și librăria Cărturești Carusel, una dintre cele mai frumoase din oraș. O librărie Cărturești deschisă într-o altă clădire deosebită poate fi găsită și în apropiere de Piața Romană. Un spațiu comercial cu renume este Magazinul Victoria, un monument istoric al orașului. Magazinul București, amplasat la intersecția străzilor I.C. Brătianu și Lipscani a fost reconstruit recent cu o investiție substanțială. Ai în apropiere magazinul Cocor, centrul comercial Unirea Shopping City și un hipermarket Carrefour. Cu mașina sau metroul poți să ajungi destul de repede la mall-ul AFI Cotroceni. Consultă harta și vezi ce magazine vei avea în apropierea noii tale case.
Aceasta este una dintre cele mai aglomerate zone din București la orele de vârf. Aici găsești însă și unele dintre puținele parcări subterane din Capitală. Chiar vis-a-vis de Universitatea București ai intrarea într-o astfel de parcare cu peste 400 de locuri. O parcare destul de încăpătoare poate fi găsită și în Piața Victoriei. Atenție, însă, această zonă se poate aglomera nu doar din cauza traficului, ci și din cauza diverselor manifestări sau proteste care se organizează, de obicei, în fața Palatului Victoria, sediul Guvernului României. Dacă te hotărăști să te muți în zonă, atunci îți recomandăm să te interesezi de posibilitatea închirierii unui loc de parcare pentru mașina ta. Poți face acest lucru apelând la Serviciul Parcaje al ADP Sector 1. Consultă harta pentru a afla unde găsești și alte parcări în zona Victoriei-Romană-Universitate.
Zona Victoriei - Romană - Universitate este un epicentru cultural al Capitalei și oferă numeroase opțiuni de petrecere a timpului liber. Aici vei găsi numeroase muzee impresionante pe care le poți vizita în timpul liber (Muzeul Național de Istorie Naturală "Grigore Antipa", Muzeul Țăranului Român, Muzeul Național George Enescu, etc), vei putea participa la evenimentele în aer liber desfășurate pe Calea Victoriei sau în Piața George Enescu sau vei putea merge la un spectacol organizat pe scena Ateneului Român sau pe cea a Teatrului Notarra. Nu rata nici o vizită la Teatrul Național "I.L. Caragiale" și la Muzeul Național de Artă al României. Observatorul Astronomic Amiral Vasile Urseanu te așteaptă cu o experiență extrem de educativă care va fi, cu siguranță, apreciată de micuțul tău. Dacă îți place să ieși la o cafea în timpul liber alături de prietenii tăi, atunci în această zonă vei putea alege dintr-o multitudine de restaurante, terase și pub-uri. Nu lipsesc nici skybar-urile, care îți oferă priveliști de excepție de la înălțime. Cele câteva parcuri din zona Victorieim - Romană - Universitate au dimensiuni destul de reduse, dar sunt frumos îngrijite. Printre acestea amintim Parcul Ateneului și Parcul Nicolae Iorga. Dacă preferi plimbările lungi în weekend, atunci vei avea la dispoziție în apropiere parcurile Kiseleff și Cișmigiu. Nu uita, de asemenea, că te vei afla la doi pași de Centrul Vechi al Capitalei, dar și că vei putea să faci o plimbare cu bicicleta pe Calea Victoriei. În condiții normale, se organizează periodic evenimente în centrul orașului, atât în cadrul Sălii Palatului, cât și în aer liber în Piața Revoluției. În Piața Universității sunt organizate, totodată, diferite târguri și concerte. Vezi pe hartă mai multe puncte de interes din zona Victoriei-Romană-Universitate.
Chiar la Piața Universității se află principala unitate sanitară din zonă. Este vorba despre Spitalul Clinic Colțea, primul înființat în București. În zona Victoriei - Romană - Universitate vei întâlni mai multe clinici private, precum Policlinica Enescu din cadrul rețelei de sănătate Regina Maria și Spitalul Clinic Sanador. La doi pași de Piața Romană se află Spitalul Clinic de Urgențe Oftalmologice, cel mai mare din România cu o astfel de specializare. Consultă harta pentru a afla ce clinici private ai în apropierea casei, dacă te muți în această parte a orașului.
Găsești numeroase restaurante, terase și cafenele potrivite pentru toate gusturile în Centrul Vechi al orașului, pe Calea Victoriei sau în zona din spatele Ateneului Român. Câteva fast food-uri ai la dispoziție în Unirea Shopping Center. Nu foarte departe, în zona Romană, ai și alte opțiuni. Află de pe hartă unde găsești cel mai apropiat restaurant de noua ta casă.
Sucursale ale diferitelor bănci sunt dispuse de-a lungul principalelor artere de circulație sau în marile intersecții din zonă. Un BRD, spre exemplu, găsești chiar lângă Cercul Militar Național. Pe Bulevardul Nicolae Bălcescu o sucursală Banca Transilvania și ING Bank. La doi pași de Piața Universității se află și Palatul Băncii Naționale a României. Consultă harta pentru mai multe detalii.
Înainte să pleci...
Ești sigur că ai văzut și aceste proprietăți?
8.500 - 99.960 € / lună
București, Victoriei
5.880 mp utili
Clădire de birouri
5E
8.400 - 16.800 € / lună
București, P-ța Victoriei
22.500 mp utili
Clădire de birouri
25E
7.986 € / lună
București, Batistei
363 mp utili
Clădire de birouri
P+7E
Creează alertă
Salvează căutarea ca să primești pe email ultimele anunțuri publicate
Birouri de închiriat în zona Batistei, Ultracentral
Cere detalii prin email
*
*
*
*
Detaliile tale de contact vor fi partajate cu North Bucharest Rent