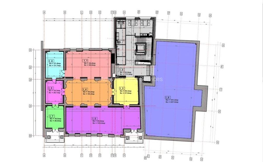
Închiriere birouri in Bucuresti, sector 1 in cladirea Dionisie Lupu 70-72. Aceasta este amplasată în zona ultracentrală a capitalei, în proximitatea Pieței Romane.
Clădirea este situată la intersecția străzilor Dionisie Lupu cu Jules Michelet, la doar 130 de metri de Piața Lahovari, 200 de metri de Bulevardul Magheru, respectiv 350 de metri de stația de metrou Romană.
Amplasamentul ultracentral îi conferă clădirii o accesibilitate foarte bună, atât cu automobilul, cât și cu transportul în comun. Accesul auto din marile bulevarde se face pe străzi cu sens unic. Vecinătatea cu Piața Romană asigură o concentrare majoră de mijloace de transport public în distanță pietonală, incluzând metrou (M1), linii de autobuz și troleibuz.
Zona beneficiază de toate facilitațile și serviciile necesare funcțiunii de birouri, cu access facil către centrul de business de la Piața Victoriei.
Dionisie Lupu 70-72 este o clădire istorică construită în 1884, avand o arhitectura de excepție, renovată și extinsă în 2014 la standarde moderne de birouri.
Mai multe detalii despre aceasta oferta in link-ul de mai jos:
spatii-de-birouri.ro/inchiriere-vanzare/bucuresti-dionisie-lupu-70-72
Pe platforma SPATII-DE-BIROURI.RO gasiti peste 400 de cladiri de birouri din Bucuresti, cu toate informatiile actualizate si comision 0% (reprezentam proprietarii).
Sediul central - Timișoara
Bulevardul Victor Babeș nr. 2, 300230, Timișoara, România
Tel: +40.374.40.44.98 / Fax: +40.256.401.179
Email: suport@imobiliare.ro
Luni - Vineri 08:00 - 20:00
Punct de lucru - București: Iride Business Park, Bld. Dimitrie
Pompeiu 9-9A, Clădirea B2B,
020335, Sector 2, București, România
CONTACT
Sediul central - Timișoara
Bulevardul Victor Babeș nr. 2, 300230, Timișoara, România
Tel: +40.374.40.44.98 / Fax: +40.256.401.179
Email: suport@imobiliare.ro
Luni - Vineri 08:00 - 20:00
Punct de lucru - București: Iride Business Park, Bld. Dimitrie
Pompeiu 9-9A, Clădirea B2B,
020335, Sector 2, București, România
University of Bucharest - Faculty of Foreign Languages and Literatures (en)
aprox.
252 m
Centrul de Limbi Straine Ariel
aprox.
253 m
ASE - Facultatea de Comert
aprox.
426 m
ASE - Cibernetica
aprox.
447 m
ASE Cibernetica (en)
aprox.
452 m
Amfiteatrele ASE
aprox.
492 m
Academia de Studii Economice
aprox.
498 m
ASE - Cladirea Cihoschi
aprox.
520 m
ASE Cladirea Veche 1916 - 1926 (en)
aprox.
534 m
ASE - Sala de sport
aprox.
542 m
Palatul Fundației Universitare "Carol I"
aprox.
546 m
CROS - Universitatea Alternativa
aprox.
575 m
Facultatea de Farmacie/Pharmacy Faculty
aprox.
623 m
Facultatea de Farmacie
aprox.
625 m
ASLS (en)
aprox.
241 m
Lexis scoli de limbi straine
aprox.
251 m
Colegiul Economic Virgil Madgearu
aprox.
275 m
Scoala Centrala
aprox.
328 m
Școala Centrală din Bucuresti
aprox.
337 m
Ateneul roman, Bucuresti
aprox.
414 m
Scoala Nr. 19 Tudor Arghezi
aprox.
440 m
Cladirea Virgil Madgearu
aprox.
453 m
Scoala de muzica nr. 4
aprox.
521 m
Scoala de teatru
aprox.
528 m
Scoala Generala Nr. 5 Corneliu M. Popescu
aprox.
538 m
French School of Bucharest (en)
aprox.
561 m
Colegiul German Goethe
aprox.
568 m
Cambridge School Of Bucharest (en)
aprox.
573 m
Scoala Americana
aprox.
578 m
Ioanid
aprox.
278 m
Gradinita Ioanid
aprox.
283 m
Gradinita nr. 203 program prelungit
aprox.
330 m
Gradinita nr.203 (fosta Clementa)
aprox.
357 m
Gradinita nr. 116
aprox.
381 m
Gradinita numarul 133
aprox.
490 m
Gradinita nr. 85
aprox.
541 m
Gradinita numarul 257
aprox.
642 m
Gradinita nr.4 "Lizuca"
aprox.
683 m
Gradinita nr. 252 cu program prelungit
aprox.
788 m
Gradinita nr. 138 cu program prelungit
aprox.
904 m
Gradinita numarul 8
aprox.
1224 m
Gradinita MAPN
aprox.
1456 m
Gradinita nr. 248
aprox.
1469 m
Gradinita Nr. 78 Miguel de Cervantes
aprox.
1475 m
Bacania Coco
aprox.
41 m
Mega Image Magheru
aprox.
269 m
ilanplant
aprox.
275 m
Mega Image Rosetti Non-Stop
aprox.
365 m
Nik Non-Stop
aprox.
388 m
Mega Image Amzei Non-Stop
aprox.
454 m
Mega Image - Icoanei
aprox.
458 m
OK Non-stop Supermarket (en)
aprox.
467 m
OK Non-Stop
aprox.
467 m
BILLA - Dorobanti
aprox.
518 m
Bila Supermarket
aprox.
530 m
Pravalia Maestrului
aprox.
661 m
Mega Image Concept Store
aprox.
822 m
Mega Image Brezoianu
aprox.
886 m
Mega Image - IANCU DE HUNEDOARA
aprox.
981 m
"METROPLIS CENTER"
aprox.
980 m
Parcare
aprox.
49 m
Parcare
aprox.
160 m
Parcare
aprox.
279 m
Parcare
aprox.
353 m
Parcare
aprox.
391 m
Parcare
aprox.
420 m
Parcare
aprox.
461 m
Parcare cu plata
aprox.
510 m
Parcare
aprox.
529 m
Parcare
aprox.
529 m
Parcare
aprox.
663 m
Parcare
aprox.
686 m
Parcare
aprox.
689 m
Parcare
aprox.
693 m
Parcare cu plata
aprox.
708 m
Small park (en)
aprox.
15 m
Parc
aprox.
15 m
Parcul "Grădina Icoanei"
aprox.
216 m
Gradina Icoanei
aprox.
224 m
Parcul "Ioanid"
aprox.
329 m
Parcul Ion Voicu
aprox.
335 m
Small park (en)
aprox.
336 m
Parc
aprox.
336 m
Parcul Piata Romana
aprox.
376 m
60 Minutes
aprox.
417 m
Parc
aprox.
477 m
Park (en)
aprox.
485 m
Piata George Enescu
aprox.
485 m
Parc
aprox.
616 m
Parc
aprox.
655 m
Piața Romană
aprox.
479 m
Piata Revolutiei
aprox.
615 m
Piata Universitatii
aprox.
902 m
Piata Rosetti
aprox.
972 m
Piața Drapelului (Tricolorului)
aprox.
1038 m
Piata Latina
aprox.
1258 m
Piata Roma
aprox.
1382 m
Piata Timpului
aprox.
1502 m
Piața Sfântul Anton
aprox.
1577 m
Piata Emil Cioran (Vergilius) (en)
aprox.
1614 m
Piata Natiunilor Unite
aprox.
1630 m
Teren sportiv
aprox.
1193 m
Stadionul Dinamo
aprox.
1223 m
Teren sportiv
aprox.
1308 m
Teren sportiv
aprox.
1403 m
Teren sportiv
aprox.
1410 m
Teren sportiv
aprox.
1423 m
Teren sportiv
aprox.
1466 m
Teren sportiv
aprox.
1479 m
Teren sportiv
aprox.
1489 m
Teren sportiv
aprox.
1517 m
Teren sportiv
aprox.
1591 m
Teren sportiv
aprox.
1610 m
Baza sportiva Universitatea Bucuresti
aprox.
1678 m
teren tenis
aprox.
1683 m
Teren sportiv
aprox.
1721 m
Centrul Medical Academica
aprox.
82 m
Spitalul de Oftalmologie
aprox.
203 m
Spitalul Clinic de Urgente Oftalmologice
aprox.
208 m
Centrul Medical Unirea Enescu
aprox.
341 m
Bioderm Eminescu (en)
aprox.
341 m
Centrul Medical Unirea sediul Enescu
aprox.
374 m
Clinica de 10
aprox.
392 m
Clinica Reumatologie "Dr. Ion Stoia"
aprox.
481 m
policlinica centrul de diagnostic si tratament (CDT)
aprox.
521 m
Centrul de diagnostic si tratament
aprox.
522 m
Laurus Medical
aprox.
559 m
Policlinica (en)
aprox.
566 m
Centrul Medical Batistei
aprox.
603 m
Dacia Medical Center
aprox.
624 m
Spitalul Cantacuzino
aprox.
690 m
Prindcom
aprox.
160 m
Farmacia Arta
aprox.
196 m
Sensiblu
aprox.
199 m
Farmacia Dona
aprox.
277 m
Farmacia Apifarm
aprox.
310 m
Help Net Farma
aprox.
317 m
Farmacia Stefania
aprox.
349 m
Farmacie Dorobanti
aprox.
353 m
Catena Farmacie
aprox.
369 m
Sensiblu
aprox.
388 m
Catena
aprox.
397 m
Sensiblu Pt. Amzei
aprox.
412 m
Farmacia Dona 14
aprox.
413 m
Farmacia Centrofarm 85
aprox.
441 m
Farmacia Terapia
aprox.
508 m
Piua Book Bar
aprox.
40 m
Frame
aprox.
301 m
Fratelli Espresso Bar
aprox.
426 m
Zappa Rock & More
aprox.
486 m
Lokal
aprox.
492 m
Que Pasa
aprox.
542 m
ACAB Pub
aprox.
563 m
Alan Dala
aprox.
569 m
A1
aprox.
622 m
Happy Pub
aprox.
714 m
Trei Betivi
aprox.
717 m
MIM Bistro
aprox.
756 m
Dianei Patru
aprox.
877 m
Yellow Bar
aprox.
961 m
Control Club
aprox.
993 m
La Copac
aprox.
85 m
Shift
aprox.
104 m
Restaurant La Escu
aprox.
120 m
Chez Marie
aprox.
169 m
Zerillo's
aprox.
174 m
Trattoria Romana
aprox.
184 m
Teatrelli
aprox.
192 m
The Embassy
aprox.
201 m
Casa Universitarilor
aprox.
213 m
Casa Universitarilor (en)
aprox.
223 m
McDonald's
aprox.
227 m
Casa Oamenilor de Stiinta
aprox.
233 m
Everest (en)
aprox.
237 m
Restaurant "Casa Bucur"
aprox.
248 m
La placinte
aprox.
248 m
5 To Go Lahovari
aprox.
118 m
Hathor Cafe
aprox.
119 m
Gradina Verona
aprox.
138 m
Gradina OAR
aprox.
151 m
Nescafe Milano
aprox.
233 m
Music Rooms Cafe
aprox.
313 m
Camera din Fata
aprox.
357 m
Mon Amour
aprox.
360 m
Mara Mura
aprox.
384 m
Hobby Caffe & Shop
aprox.
408 m
Mi-nut
aprox.
422 m
Lente Praporgescu
aprox.
428 m
Newton Caffe
aprox.
430 m
Tucano Coffee
aprox.
445 m
Zvon Caffe
aprox.
450 m
OLD NICK PUB
aprox.
120 m
Panik & Pub
aprox.
374 m
Waldo's
aprox.
438 m
Smart's Pub & Bistro
aprox.
692 m
Have a Cigar
aprox.
781 m
Coloseum
aprox.
851 m
Question Mark Social Club
aprox.
865 m
Open Pub
aprox.
894 m
Edgar`s Pub
aprox.
938 m
James Joyce's Pub & Restaurant
aprox.
971 m
Charlatans Irish Pub
aprox.
1035 m
Studio Martin
aprox.
1048 m
Clock`s
aprox.
1075 m
Nexus Gamers Pub
aprox.
1146 m
Club Surubelnita
aprox.
1178 m
azur finance (en)
aprox.
142 m
UniCredit Bank - Ag. Magheru
aprox.
215 m
Banca Transilvania
aprox.
253 m
Piraeus Bank
aprox.
286 m
Alpha Bank
aprox.
295 m
Banca Transilvania - Ag. Piata Romana
aprox.
304 m
Banca Transilvania
aprox.
315 m
Alpha Bank
aprox.
339 m
BRD Piata Romana
aprox.
366 m
Libra Internet Bank
aprox.
381 m
ING Romana
aprox.
386 m
Raiffeisen Bank - Agentia Piata Romana
aprox.
406 m
Ion Tiriac Banc (en)
aprox.
414 m
Raiffeisen Bank - Agentia Piata Amzei
aprox.
415 m
UniCredit Bank - Ag. Rosetti
aprox.
419 m
Fiind o zonă ultracentrală, aceasta oferă numeroase opțiuni de călătorie cu mijloacele de transport în comun, și este bine conectată cu restul orașului. Ai, în primul rând, la dispoziție stațiile de metrou Piața Victoriei, Piața Romană și Universitate. Astfel, te vei putea deplasa rapid prin oraș, evitând aglomerația de la suprafață. Toate acestea sunt situate pe magistrala 2 care traversează Bucureștiul de la nord la sud. În plus, de la Piața Victoriei vei putea lua metroul și pe magistrala 1 pentru a ajunge, de exemplu, în cartierul Pantelimon sau în zona Eroilor. Prin Piața Universității urmează să treacă și magistrala 5 care va lega cartierele Drumul Taberei și Pantelimon. Până acum, s-au deschis însă doar stațiile de metrou aflate în zona Drumul Taberei. Alte mijloace de transport în comun care ar putea să-ți fie de ajutor atunci când te vei muta în această zonă sunt autobuzele 300 și 381. Primul face legătura dintre Piața Romană și Piața Victoriei continuându-și apoi traseul de-a lungul Bulevardului Ion Mihalache, iar cel de-al doilea conectează Piața Victoriei cu zona Tineretului și cu cartierul Berceni. De pe Bulevardul Regina Elisabeta vei putea lua troleibuzul 90 pentru a ajunge în Drumul Taberei sau în zona Arenei Naționale, iar în fața Spitalului Colțea vei găsi stația autobuzului 381 care merge în cartierul Berceni. Iar dacă preferi să te deplasezi pe două roți, vei avea la dispoziție una dintre pistele speciale destinate bicicliștilor pe Calea Victoriei. Aceasta îți va oferi, în plus, oportunitatea ideală de a admira arhitectura deosebită a clădirilor aflate de o parte și de alta a uneia dintre cele mai frumoase străzi din București. Consultă harta pentru a afla unde sunt localizate stațiile mijloacelor de transport în comun.
În această zonă găsim sediul central al Universității din București și cel al Academiei de Studii Economice din București (ASE), unele dintre cele mai prestigioase instituții de învățământ superior din România. Tot aici se află și sediile mai multor facultăți. Ai și alte instituții de învățământ cu renume la doi pași de casă, precum precum Colegiul Național "Sfântul Sava", Colegiul Național "Gheorghe Lazăr", Liceul Teoretic Bulgar "Hristo Botev" și Universitatea Națională de Muzică. De menționat este și Căminul Moxa, aflat în zona Calea Victoriei, în care sunt cazați unii dintre studenții ASE. Consultă harta de mai jos pentru a vedea și celelalte unități de învățământ din zonă.
În această parte a orașului vei găsi numeroase reprezentanțe ale unor branduri de lux. Cele mai multe magazine alimentare din zonă au dimensiuni reduse. Pentru cumpărături îți recomandăm Piața Amzei, aflată la doi pași de Romană și modernizată recent. Aici găsești, pe lângă comercianți de unde poți cumpăra legume și fructe și câteva magazine cu preparate proaspete de la burgeri, la pâine artizanală sau înghețată. Centrul Vechi găzduiește, totodată, reprezentanțe ale unor retaileri de modă. Tot aici găsești și librăria Cărturești Carusel, una dintre cele mai frumoase din oraș. O librărie Cărturești deschisă într-o altă clădire deosebită poate fi găsită și în apropiere de Piața Romană. Un spațiu comercial cu renume este Magazinul Victoria, un monument istoric al orașului. Magazinul București, amplasat la intersecția străzilor I.C. Brătianu și Lipscani a fost reconstruit recent cu o investiție substanțială. Ai în apropiere magazinul Cocor, centrul comercial Unirea Shopping City și un hipermarket Carrefour. Cu mașina sau metroul poți să ajungi destul de repede la mall-ul AFI Cotroceni. Consultă harta și vezi ce magazine vei avea în apropierea noii tale case.
Aceasta este una dintre cele mai aglomerate zone din București la orele de vârf. Aici găsești însă și unele dintre puținele parcări subterane din Capitală. Chiar vis-a-vis de Universitatea București ai intrarea într-o astfel de parcare cu peste 400 de locuri. O parcare destul de încăpătoare poate fi găsită și în Piața Victoriei. Atenție, însă, această zonă se poate aglomera nu doar din cauza traficului, ci și din cauza diverselor manifestări sau proteste care se organizează, de obicei, în fața Palatului Victoria, sediul Guvernului României. Dacă te hotărăști să te muți în zonă, atunci îți recomandăm să te interesezi de posibilitatea închirierii unui loc de parcare pentru mașina ta. Poți face acest lucru apelând la Serviciul Parcaje al ADP Sector 1. Consultă harta pentru a afla unde găsești și alte parcări în zona Victoriei-Romană-Universitate.
Zona Victoriei - Romană - Universitate este un epicentru cultural al Capitalei și oferă numeroase opțiuni de petrecere a timpului liber. Aici vei găsi numeroase muzee impresionante pe care le poți vizita în timpul liber (Muzeul Național de Istorie Naturală "Grigore Antipa", Muzeul Țăranului Român, Muzeul Național George Enescu, etc), vei putea participa la evenimentele în aer liber desfășurate pe Calea Victoriei sau în Piața George Enescu sau vei putea merge la un spectacol organizat pe scena Ateneului Român sau pe cea a Teatrului Notarra. Nu rata nici o vizită la Teatrul Național "I.L. Caragiale" și la Muzeul Național de Artă al României. Observatorul Astronomic Amiral Vasile Urseanu te așteaptă cu o experiență extrem de educativă care va fi, cu siguranță, apreciată de micuțul tău. Dacă îți place să ieși la o cafea în timpul liber alături de prietenii tăi, atunci în această zonă vei putea alege dintr-o multitudine de restaurante, terase și pub-uri. Nu lipsesc nici skybar-urile, care îți oferă priveliști de excepție de la înălțime. Cele câteva parcuri din zona Victorieim - Romană - Universitate au dimensiuni destul de reduse, dar sunt frumos îngrijite. Printre acestea amintim Parcul Ateneului și Parcul Nicolae Iorga. Dacă preferi plimbările lungi în weekend, atunci vei avea la dispoziție în apropiere parcurile Kiseleff și Cișmigiu. Nu uita, de asemenea, că te vei afla la doi pași de Centrul Vechi al Capitalei, dar și că vei putea să faci o plimbare cu bicicleta pe Calea Victoriei. În condiții normale, se organizează periodic evenimente în centrul orașului, atât în cadrul Sălii Palatului, cât și în aer liber în Piața Revoluției. În Piața Universității sunt organizate, totodată, diferite târguri și concerte. Vezi pe hartă mai multe puncte de interes din zona Victoriei-Romană-Universitate.
Chiar la Piața Universității se află principala unitate sanitară din zonă. Este vorba despre Spitalul Clinic Colțea, primul înființat în București. În zona Victoriei - Romană - Universitate vei întâlni mai multe clinici private, precum Policlinica Enescu din cadrul rețelei de sănătate Regina Maria și Spitalul Clinic Sanador. La doi pași de Piața Romană se află Spitalul Clinic de Urgențe Oftalmologice, cel mai mare din România cu o astfel de specializare. Consultă harta pentru a afla ce clinici private ai în apropierea casei, dacă te muți în această parte a orașului.
Găsești numeroase restaurante, terase și cafenele potrivite pentru toate gusturile în Centrul Vechi al orașului, pe Calea Victoriei sau în zona din spatele Ateneului Român. Câteva fast food-uri ai la dispoziție în Unirea Shopping Center. Nu foarte departe, în zona Romană, ai și alte opțiuni. Află de pe hartă unde găsești cel mai apropiat restaurant de noua ta casă.
Sucursale ale diferitelor bănci sunt dispuse de-a lungul principalelor artere de circulație sau în marile intersecții din zonă. Un BRD, spre exemplu, găsești chiar lângă Cercul Militar Național. Pe Bulevardul Nicolae Bălcescu o sucursală Banca Transilvania și ING Bank. La doi pași de Piața Universității se află și Palatul Băncii Naționale a României. Consultă harta pentru mai multe detalii.
Înainte să pleci...
Ești sigur că ai văzut și aceste proprietăți?
4.515 € / lună
București, P-ța Victoriei
1.200 mp utili
Clădire de birouri
4E
4.500 € / lună
București, P-ța Victoriei
1.900 mp utili
Clădire de birouri
4E
5.880 € / lună
București, Sala Palatului
420 mp utili
Clădire de birouri
2002 (Există)
4.589 € / lună
București, Romană
353 mp utili
Clădire de birouri
6E
4.800 € / lună
București, Universitate
320 mp utili
Clădire de birouri
P+7E
3.949 € / lună
București, Victoriei
335 mp utili
Clădire de birouri
6E
Creează alertă
Salvează căutarea ca să primești pe email ultimele anunțuri publicate
Birouri de închiriat în zona Romană, Ultracentral
Cere detalii prin email
*
*
*
*
Detaliile tale de contact vor fi partajate cu Activ Property Services