Inchiriere spatiu birouri in zona ultracentrala, intr-o cladire amplasata pe Calea Mosilor, la 2 minute de punctul zero al orasul, Piata Sfantul Gheorghe. Cladirea este amplasata la 6 minute de mers de Centrul Vechi / Bulevardul I.C.Bratianu, 7 minute distanta de Piata Universitatii / Teatrul National Bucuresti (https:///ro) si 9 minute de Piata Unirii.
Vecinatatile cladirii includ cladiri rezidentiale, cladiri de birouri, zone de promenada (Parcul TNB, Parcul Unirii), institutii de invatamant, restaurante si magazine.
Accesul cu automobilul se realizeaza din Calea Mosilor, cu acces auto facil spre unele dintre principalele bulevarde ale Bucurestiului: Bulevardul Elisabeta, Bulevardul Carol I, Bulevardul Nicolae Balcescu, Bulevardul I.C. Bratianu, Bulevardul Unirii. Transportul public include statiile de metrou Piata Unirii si Universitate la 7-9 minute de mers si statii de autobuz si tramvai la 1-2 minute de mers de cladire.
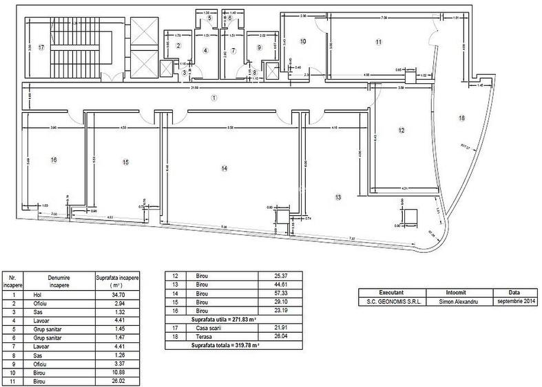
Casa Mosilor este o cladire de birouri finalizata in anul 2001, cu o suprafata inchiriabila totala de 2.340 m2, desfasurata pe un nivel subteran, parter si 7 etaje, cu o suprafata a etajului curent de 350 m2. Cladirea dispune de ventiloconvectoare, lift, detectoare de fum, paza 24/7, tavan suspendat, mocheta, ferestre cu deschidere etc.
Cladirea dispune de locuri de parcare in subteran si in curte.
Universitatii si Piata Unirii.
Cladirea beneficiaza de o accesibilitate foarte buna, cu access auto facil din/spre principalele bulevarde si piete ale zonei ultracentrale. Toate mijloacele de transport public, inclusiv doua linii de metrou, sunt amplasate la 3-10 minute de mers pe jos de cladire (Piata Sf. Gheorghe, Piata Universitatii, Piata Unirii).
Casa Mosilor este o cladire de birouri de clasa B, livrata in 2001, cu o suprafata inchiriabila totala de 2.340 m2 (350 m2/nivel).
Mai multe detalii despre aceasta oferta in link-ul de mai jos:
https://www.spatii-de-birouri.ro/inchiriere-vanzare/bucuresti-casa-mosilor
Pe platforma SPATII-DE-BIROURI.RO gasiti peste 400 de cladiri de birouri din Bucuresti, cu toate informatiile actualizate si comision 0% (reprezentam proprietarii).
Sediul central - Timișoara
Bulevardul Victor Babeș nr. 2, 300230, Timișoara, România
Tel: +40.374.40.44.98 / Fax: +40.256.401.179
Email: suport@imobiliare.ro
Luni - Vineri 08:00 - 20:00
Punct de lucru - București: Iride Business Park, Bld. Dimitrie
Pompeiu 9-9A, Clădirea B2B,
020335, Sector 2, București, România
CONTACT
Sediul central - Timișoara
Bulevardul Victor Babeș nr. 2, 300230, Timișoara, România
Tel: +40.374.40.44.98 / Fax: +40.256.401.179
Email: suport@imobiliare.ro
Luni - Vineri 08:00 - 20:00
Punct de lucru - București: Iride Business Park, Bld. Dimitrie
Pompeiu 9-9A, Clădirea B2B,
020335, Sector 2, București, România
Statia Piata Rosetti linii : 61,66,69,70,85,90,91,92,336,601.
aprox.
374 m
Sf. Vineri, terminal linii:40, 55, 56, 385
aprox.
405 m
Piata Unirii
aprox.
475 m
Bd. Carol I
aprox.
501 m
Statie RATB Piata Universitatii a
aprox.
536 m
Statia Piata Universitatii linii : 122,137,138,268,381,783.
aprox.
541 m
Statie RATB
aprox.
701 m
Batistei
aprox.
773 m
Statia Batistei; Linia:N123
aprox.
827 m
Batistei
aprox.
838 m
Bulevardul Carol I
aprox.
848 m
Statia Nicolae Balcescu; Liniile:168, 300, 368, 226, 126
aprox.
863 m
Capat Piata Unirii 2 linii : 783 (express).
aprox.
874 m
Statia Metrou Piata Universitatii(M2)Metrorex
aprox.
414 m
Universitate (M2)
aprox.
427 m
Statia Metrou Piata Universitatii(M2)Metrorex
aprox.
472 m
Metrorex. Stația Piața Unirii 2 (M2) (en)
aprox.
528 m
Metrorex. Stația Universitate (M2)(1987)
aprox.
558 m
Piata Unirii 2
aprox.
622 m
Metrorex. Stația Piața Unirii 2 (M2)(1986)
aprox.
628 m
Piata Unirii 1
aprox.
715 m
Metrorex. Stația Piața Unirii 1 (M1) (en)
aprox.
717 m
Metrorex. Stația Piața Unirii 1 (M1),(M3)(1979)
aprox.
752 m
Izvor
aprox.
1326 m
Metrorex. Statia Izvor (M1) , (M3).
aprox.
1326 m
Metrorex. Stația Izvor (M1),(M3)(1979)
aprox.
1366 m
Metrorex. Statia Izvor (M1) , (M3).
aprox.
1390 m
Statia Metrou Piata Romana(M2)Metrorex
aprox.
1503 m
Statia Foisorul de Foc linii : 79,86
aprox.
1396 m
Statia Calea Dorobantilor; Liniile:79, 86,
aprox.
1700 m
Statia Piata Romana linii : 79,86
aprox.
1733 m
Statia Vasile Parvan 66,70,92
aprox.
1833 m
Statia Facultatea de Drept, linia 61,69,90,91
aprox.
1936 m
Centrul Educational IBSEN
aprox.
61 m
Scoala Superioara Comerciala Nicolae Kretzulescu
aprox.
208 m
Grupul Scolar Industrial Unirea (en)
aprox.
351 m
Grupul Scolar Industrial Unirea
aprox.
352 m
Lauder Reut School Complex (en)
aprox.
482 m
Liceul Lauder-Reut
aprox.
488 m
Goethe Institut (en)
aprox.
497 m
institutul Irecson
aprox.
506 m
Scoala cu clasele I-VIII, Nr. 73 Barbu Stefanescu Delavrancea
aprox.
530 m
Grup Școlar "Dragomir Hurmuzescu"
aprox.
546 m
Amfiteatrul Sahia
aprox.
557 m
GRADINITA DE COPII NR. 8 "LICURICI"
aprox.
572 m
Colegiul National "Matei Basarab"
aprox.
641 m
Scoala Generala "Iovan Ducici", Nr 71
aprox.
642 m
Schiller Institut
aprox.
646 m
Facultatea de Chimie
aprox.
485 m
Facultatea de litere (en)
aprox.
544 m
Facultatea de Istorie
aprox.
557 m
Facultatea de Limbi si Literaturi Straine
aprox.
563 m
Facultatea de Stiinte
aprox.
588 m
UAUIM -Universitatea de Arhitectura si Urbanism Ion Mincu
aprox.
608 m
Facultatea de Matematica-Informatica
aprox.
621 m
Institutul Bancar Român
aprox.
624 m
Facultatea de Farmacie
aprox.
691 m
Facultatea de Farmacie/Pharmacy Faculty
aprox.
695 m
Facultatea de Stiinte Politice
aprox.
940 m
Universitatea din Bucuresti - Facultatea de Stiinte Politice
aprox.
945 m
Facultatea de Teologie Ortodoxa
aprox.
981 m
Academia de Studii Economice
aprox.
1031 m
Academia de Studii Economice: Facultatea de Management - Administratie Publica
aprox.
1033 m
Gradinita nr.4 "Lizuca"
aprox.
615 m
Gradinita nr.203 (fosta Clementa)
aprox.
940 m
Gradinita nr. 203 program prelungit
aprox.
966 m
Gradinita Prikindel
aprox.
1025 m
Cresa Micii Poznasi
aprox.
1050 m
Gradinita Magica
aprox.
1070 m
Gradinita Barba Cot
aprox.
1137 m
Gradinita numarul 257
aprox.
1150 m
Gradinita nr.192, "Pisicile Aristocrate"
aprox.
1168 m
Gradinita nr. 192 (Pisicile aristocrate)
aprox.
1182 m
Gradinita
aprox.
1280 m
Gradinita numarul 133
aprox.
1401 m
Gradinita Ioanid
aprox.
1408 m
Ioanid
aprox.
1421 m
Gradinita numarul 8
aprox.
1459 m
Cocor
aprox.
357 m
BILLA - Cocor
aprox.
363 m
Km 0
aprox.
456 m
Carrefour Unirii
aprox.
480 m
Carrefour Unirii Non-Stop
aprox.
483 m
Mega Image Paleologu
aprox.
504 m
Mega Image
aprox.
548 m
dm
aprox.
577 m
Pravalia Maestrului
aprox.
697 m
Mag.Victoria
aprox.
762 m
Carrefour Express
aprox.
972 m
Mega Image Rosetti Non-Stop
aprox.
996 m
OK Non-stop Supermarket (en)
aprox.
1002 m
OK Non-Stop
aprox.
1002 m
Magazin Mixt
aprox.
1035 m
Bucharest, Calea Vitan nr. 8, Bl V51, near VITAN Mall
aprox.
1812 m
Parcare cu plata
aprox.
184 m
Parcare privata
aprox.
209 m
Parcare cu plata
aprox.
211 m
Parcare
aprox.
245 m
Parcare
aprox.
249 m
Parcare
aprox.
256 m
Parcare privata
aprox.
332 m
Parcare
aprox.
346 m
Parcare
aprox.
348 m
Parcare
aprox.
353 m
Parcare
aprox.
380 m
Parcare
aprox.
391 m
Parcare
aprox.
392 m
Parcare
aprox.
406 m
Parcare
aprox.
410 m
Sfantul Gheorghe
aprox.
165 m
Parcul Sf. Gheorghe
aprox.
168 m
Parc
aprox.
261 m
Parc
aprox.
275 m
Parc
aprox.
292 m
Parc
aprox.
298 m
Parc
aprox.
312 m
Parc
aprox.
318 m
Parc
aprox.
333 m
Parc
aprox.
345 m
Spatiu verde
aprox.
356 m
Parcul Colțea
aprox.
359 m
Parc
aprox.
380 m
Parc
aprox.
393 m
Parc
aprox.
394 m
Piata Roma
aprox.
318 m
Piata Timpului
aprox.
337 m
Piata Rosetti
aprox.
345 m
Piata Universitatii
aprox.
458 m
Piața Sfântul Anton
aprox.
482 m
Piața Drapelului (Tricolorului)
aprox.
738 m
Piata Latina
aprox.
812 m
Piata Natiunilor Unite
aprox.
911 m
Piata Bibescu
aprox.
949 m
Piata Revolutiei
aprox.
984 m
Piata Bucur
aprox.
1303 m
Piața Constituției
aprox.
1361 m
Piața Romană
aprox.
1738 m
Piața Regina Maria
aprox.
1833 m
Teren sportiv
aprox.
485 m
Teren sportiv
aprox.
673 m
Teren sportiv
aprox.
1256 m
Teren sportiv
aprox.
1445 m
Teren sportiv
aprox.
1694 m
Baza sportiva Universitatea Bucuresti
aprox.
1893 m
teren tenis
aprox.
1943 m
Teren sportiv
aprox.
1953 m
Teren sportiv
aprox.
1956 m
Teren sportiv
aprox.
1985 m
Simidon
aprox.
146 m
Farmacon CO Impex
aprox.
171 m
General Smart Farm
aprox.
232 m
Farmacia 2NA
aprox.
276 m
Sensiblu
aprox.
324 m
HelpNet
aprox.
347 m
Farmacia Coltea
aprox.
349 m
Sensiblu
aprox.
350 m
Reteta
aprox.
353 m
Farmacia Dona
aprox.
360 m
Farmacia Dona 19
aprox.
440 m
Centro Farm
aprox.
553 m
Plafar
aprox.
556 m
Gema Farm Impex
aprox.
572 m
Sensiblu
aprox.
618 m
WORLD CLINIC - O viata fara alergii ! (en)
aprox.
227 m
MediDent
aprox.
264 m
Spitalul Colțea
aprox.
272 m
Medident Dental X-ray
aprox.
278 m
Art Implant
aprox.
280 m
Cabinet stomatologic (en)
aprox.
468 m
Centru medical MEDSANA
aprox.
490 m
Clinica de Stomatologie
aprox.
593 m
Spitalul Clinic Prof. Dr. Doc Ovidiu Marina
aprox.
669 m
Institutul National de Recuperare
aprox.
680 m
Centrul Medical Batistei
aprox.
693 m
ProctoMed
aprox.
713 m
Policlinica (en)
aprox.
730 m
Spectrum Clinique - Clinica de Oftalmologie
aprox.
749 m
Spitalul Prof. Dr. C. Angelescu
aprox.
767 m
Restaurant Golden Falcon
aprox.
117 m
Golden Falcon
aprox.
120 m
Restaurant Dumbrava
aprox.
169 m
Taie Crapu' - Bar (en)
aprox.
187 m
Aria Burger
aprox.
189 m
Art Cafe (en)
aprox.
220 m
Restaurant "Eden" (en)
aprox.
229 m
Shaorma AlaTurka
aprox.
239 m
Coltea Kebab Non Stop
aprox.
248 m
Rossetya
aprox.
256 m
Rossetya
aprox.
256 m
Crama Culmea Veche (nr.2)
aprox.
294 m
Latin Pizza
aprox.
296 m
Cantina Arhitecturii
aprox.
301 m
La Placinte
aprox.
307 m
Manasia Hub
aprox.
155 m
Club Surubelnita
aprox.
210 m
Kulturhaus
aprox.
265 m
Pebeo
aprox.
363 m
Hanul cu Tei
aprox.
366 m
Clock`s
aprox.
385 m
Mojo
aprox.
388 m
Argentin
aprox.
391 m
Club A
aprox.
393 m
Elephant Pub
aprox.
395 m
Offside Pub
aprox.
401 m
Half Time
aprox.
402 m
Dharma
aprox.
402 m
Legacy
aprox.
404 m
Gang Lads
aprox.
415 m
Epic
aprox.
179 m
Underworld
aprox.
181 m
Macaz Bar Teatru Coop
aprox.
233 m
Galliano Club
aprox.
314 m
Harley
aprox.
368 m
Chat noir
aprox.
371 m
The Elbow Room
aprox.
380 m
Sankt Petersburg Pub
aprox.
381 m
Roter Heller
aprox.
389 m
City Grill Covaci
aprox.
437 m
Expat
aprox.
442 m
Vecchio
aprox.
450 m
Colorteca
aprox.
453 m
Dianei Patru
aprox.
456 m
1974 Niste Domni si Fiii
aprox.
459 m
ART Cafe
aprox.
200 m
The Living Room
aprox.
256 m
Art Caffe
aprox.
286 m
Iguana Cafe
aprox.
314 m
Tucano Cofee
aprox.
315 m
DDB caffe
aprox.
338 m
Godot
aprox.
385 m
Bernschutz and Co
aprox.
409 m
Gio Cafe
aprox.
423 m
T-zero
aprox.
445 m
T-zone
aprox.
445 m
La Muse
aprox.
456 m
La delicii
aprox.
467 m
Bruno wine and coffe shop
aprox.
474 m
Coco Bongo
aprox.
485 m
Banca Transilvania - Ag. Lipscani
aprox.
174 m
Banca Transilvania
aprox.
182 m
Unicredit Èširiac Bank
aprox.
182 m
Volksbank Coltei
aprox.
229 m
Banca Romaneasca
aprox.
281 m
Alpha Bank
aprox.
289 m
Banca Transilvania - Ag. Bratianu
aprox.
296 m
BCR
aprox.
300 m
Garanti Bank
aprox.
311 m
Bancpost
aprox.
312 m
Banca Romaneasca
aprox.
313 m
ING Unirii
aprox.
322 m
BRD Rosetti
aprox.
323 m
Raiffeisen Bank
aprox.
331 m
Banca Transilvania - Ag. Coposu
aprox.
335 m
Fiind o zonă ultracentrală, aceasta oferă numeroase opțiuni de călătorie cu mijloacele de transport în comun, și este bine conectată cu restul orașului. Ai, în primul rând, la dispoziție stațiile de metrou Piața Victoriei, Piața Romană și Universitate. Astfel, te vei putea deplasa rapid prin oraș, evitând aglomerația de la suprafață. Toate acestea sunt situate pe magistrala 2 care traversează Bucureștiul de la nord la sud. În plus, de la Piața Victoriei vei putea lua metroul și pe magistrala 1 pentru a ajunge, de exemplu, în cartierul Pantelimon sau în zona Eroilor. Prin Piața Universității urmează să treacă și magistrala 5 care va lega cartierele Drumul Taberei și Pantelimon. Până acum, s-au deschis însă doar stațiile de metrou aflate în zona Drumul Taberei. Alte mijloace de transport în comun care ar putea să-ți fie de ajutor atunci când te vei muta în această zonă sunt autobuzele 300 și 381. Primul face legătura dintre Piața Romană și Piața Victoriei continuându-și apoi traseul de-a lungul Bulevardului Ion Mihalache, iar cel de-al doilea conectează Piața Victoriei cu zona Tineretului și cu cartierul Berceni. De pe Bulevardul Regina Elisabeta vei putea lua troleibuzul 90 pentru a ajunge în Drumul Taberei sau în zona Arenei Naționale, iar în fața Spitalului Colțea vei găsi stația autobuzului 381 care merge în cartierul Berceni. Iar dacă preferi să te deplasezi pe două roți, vei avea la dispoziție una dintre pistele speciale destinate bicicliștilor pe Calea Victoriei. Aceasta îți va oferi, în plus, oportunitatea ideală de a admira arhitectura deosebită a clădirilor aflate de o parte și de alta a uneia dintre cele mai frumoase străzi din București. Consultă harta pentru a afla unde sunt localizate stațiile mijloacelor de transport în comun.
În această zonă găsim sediul central al Universității din București și cel al Academiei de Studii Economice din București (ASE), unele dintre cele mai prestigioase instituții de învățământ superior din România. Tot aici se află și sediile mai multor facultăți. Ai și alte instituții de învățământ cu renume la doi pași de casă, precum precum Colegiul Național "Sfântul Sava", Colegiul Național "Gheorghe Lazăr", Liceul Teoretic Bulgar "Hristo Botev" și Universitatea Națională de Muzică. De menționat este și Căminul Moxa, aflat în zona Calea Victoriei, în care sunt cazați unii dintre studenții ASE. Consultă harta de mai jos pentru a vedea și celelalte unități de învățământ din zonă.
În această parte a orașului vei găsi numeroase reprezentanțe ale unor branduri de lux. Cele mai multe magazine alimentare din zonă au dimensiuni reduse. Pentru cumpărături îți recomandăm Piața Amzei, aflată la doi pași de Romană și modernizată recent. Aici găsești, pe lângă comercianți de unde poți cumpăra legume și fructe și câteva magazine cu preparate proaspete de la burgeri, la pâine artizanală sau înghețată. Centrul Vechi găzduiește, totodată, reprezentanțe ale unor retaileri de modă. Tot aici găsești și librăria Cărturești Carusel, una dintre cele mai frumoase din oraș. O librărie Cărturești deschisă într-o altă clădire deosebită poate fi găsită și în apropiere de Piața Romană. Un spațiu comercial cu renume este Magazinul Victoria, un monument istoric al orașului. Magazinul București, amplasat la intersecția străzilor I.C. Brătianu și Lipscani a fost reconstruit recent cu o investiție substanțială. Ai în apropiere magazinul Cocor, centrul comercial Unirea Shopping City și un hipermarket Carrefour. Cu mașina sau metroul poți să ajungi destul de repede la mall-ul AFI Cotroceni. Consultă harta și vezi ce magazine vei avea în apropierea noii tale case.
Aceasta este una dintre cele mai aglomerate zone din București la orele de vârf. Aici găsești însă și unele dintre puținele parcări subterane din Capitală. Chiar vis-a-vis de Universitatea București ai intrarea într-o astfel de parcare cu peste 400 de locuri. O parcare destul de încăpătoare poate fi găsită și în Piața Victoriei. Atenție, însă, această zonă se poate aglomera nu doar din cauza traficului, ci și din cauza diverselor manifestări sau proteste care se organizează, de obicei, în fața Palatului Victoria, sediul Guvernului României. Dacă te hotărăști să te muți în zonă, atunci îți recomandăm să te interesezi de posibilitatea închirierii unui loc de parcare pentru mașina ta. Poți face acest lucru apelând la Serviciul Parcaje al ADP Sector 1. Consultă harta pentru a afla unde găsești și alte parcări în zona Victoriei-Romană-Universitate.
Zona Victoriei - Romană - Universitate este un epicentru cultural al Capitalei și oferă numeroase opțiuni de petrecere a timpului liber. Aici vei găsi numeroase muzee impresionante pe care le poți vizita în timpul liber (Muzeul Național de Istorie Naturală "Grigore Antipa", Muzeul Țăranului Român, Muzeul Național George Enescu, etc), vei putea participa la evenimentele în aer liber desfășurate pe Calea Victoriei sau în Piața George Enescu sau vei putea merge la un spectacol organizat pe scena Ateneului Român sau pe cea a Teatrului Notarra. Nu rata nici o vizită la Teatrul Național "I.L. Caragiale" și la Muzeul Național de Artă al României. Observatorul Astronomic Amiral Vasile Urseanu te așteaptă cu o experiență extrem de educativă care va fi, cu siguranță, apreciată de micuțul tău. Dacă îți place să ieși la o cafea în timpul liber alături de prietenii tăi, atunci în această zonă vei putea alege dintr-o multitudine de restaurante, terase și pub-uri. Nu lipsesc nici skybar-urile, care îți oferă priveliști de excepție de la înălțime. Cele câteva parcuri din zona Victorieim - Romană - Universitate au dimensiuni destul de reduse, dar sunt frumos îngrijite. Printre acestea amintim Parcul Ateneului și Parcul Nicolae Iorga. Dacă preferi plimbările lungi în weekend, atunci vei avea la dispoziție în apropiere parcurile Kiseleff și Cișmigiu. Nu uita, de asemenea, că te vei afla la doi pași de Centrul Vechi al Capitalei, dar și că vei putea să faci o plimbare cu bicicleta pe Calea Victoriei. În condiții normale, se organizează periodic evenimente în centrul orașului, atât în cadrul Sălii Palatului, cât și în aer liber în Piața Revoluției. În Piața Universității sunt organizate, totodată, diferite târguri și concerte. Vezi pe hartă mai multe puncte de interes din zona Victoriei-Romană-Universitate.
Chiar la Piața Universității se află principala unitate sanitară din zonă. Este vorba despre Spitalul Clinic Colțea, primul înființat în București. În zona Victoriei - Romană - Universitate vei întâlni mai multe clinici private, precum Policlinica Enescu din cadrul rețelei de sănătate Regina Maria și Spitalul Clinic Sanador. La doi pași de Piața Romană se află Spitalul Clinic de Urgențe Oftalmologice, cel mai mare din România cu o astfel de specializare. Consultă harta pentru a afla ce clinici private ai în apropierea casei, dacă te muți în această parte a orașului.
Găsești numeroase restaurante, terase și cafenele potrivite pentru toate gusturile în Centrul Vechi al orașului, pe Calea Victoriei sau în zona din spatele Ateneului Român. Câteva fast food-uri ai la dispoziție în Unirea Shopping Center. Nu foarte departe, în zona Romană, ai și alte opțiuni. Află de pe hartă unde găsești cel mai apropiat restaurant de noua ta casă.
Sucursale ale diferitelor bănci sunt dispuse de-a lungul principalelor artere de circulație sau în marile intersecții din zonă. Un BRD, spre exemplu, găsești chiar lângă Cercul Militar Național. Pe Bulevardul Nicolae Bălcescu o sucursală Banca Transilvania și ING Bank. La doi pași de Piața Universității se află și Palatul Băncii Naționale a României. Consultă harta pentru mai multe detalii.
Înainte să pleci...
Ești sigur că ai văzut și aceste proprietăți?
5.240 € / lună
București, Victoriei
400 mp utili
Casă/Vilă
2007
4.074 € / lună
București, Cișmigiu
291 mp utili
Clădire de birouri
10E
6.600 - 12.315 € / lună
București, Universitate
1.985 mp utili
Clădire de birouri
7E
6.615 € / lună
București, Romană
441 mp utili
Clădire de birouri
7E
7.410 € / lună
București, Universitate
741 mp utili
Clădire de birouri
6E
6.749 € / lună
București, Central
409 mp utili
Clădire de birouri
2019
Creează alertă
Salvează căutarea ca să primești pe email ultimele anunțuri publicate
Birouri de închiriat în zona Universitate, Ultracentral
Cere detalii prin email
*
*
*
*
Detaliile tale de contact vor fi partajate cu Activ Property Services