Imobil versatil cu functiuni mixte ideal pentru birouri, clinica, spital, situat la doar 2 minute de Piata Mihai Viteazul.
Acest imobil modern, situat intr-o zona de exceptie, ofera multiple posibilitati de utilizare datorita structurii sale flexibile si compartimentarii generoase. Cladirea este dispusa pe 2S+P+4+Er, oferind spatii ample si luminoase.
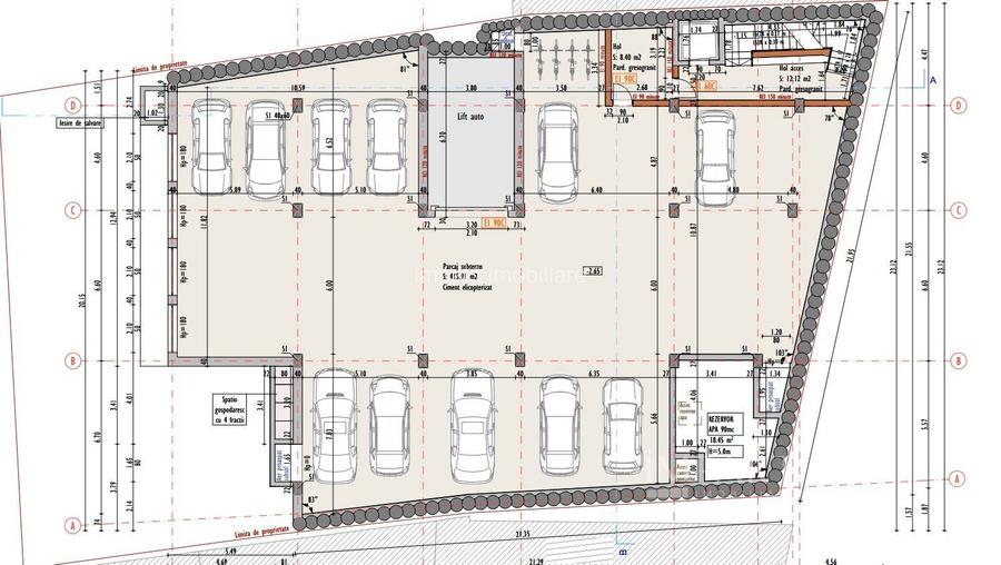
Dispunerea imobilului:
Subsol 2: Parcari auto accesibile prin intermediul liftului auto si camera pompelor ( cca 328 m²)
Subsol 1: Parcari auto (415 m²)
Cele 2 subsoluri permit parcarea a pana la 23-25 autoturisme iar curtea interioara permite parcarea a inca 6-8 autoturisme.
Parter: spatiu comercial cu acces stradal si vitrina, birou, grup sanitar si hol (184,89 m²)
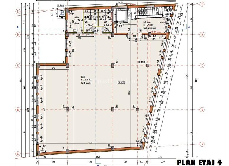
Etajele 1-4: Fiecare etaj ofera un spatiu open-space, cate 2 grupuri sanitare, un oficiu, hol de acces, iar la primul etaj se adauga un balcon de 27 m². (cca 310 m2 per nivel)
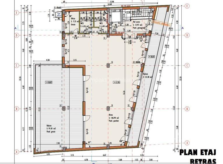
Etaj retras: Open-space, 2 grupuri sanitare, oficiu si hol acces. Acest etaj dispune de doua terase ce totalizeaza 125,11 m², perfecte pentru a va bucura de privelistile incantatoare ale orasului. (180,96 m²)
Cladirea este realizata cu materiale de inalta calitate, avand o structura din caramida de 30 cm, izolata cu vata minerala bazaltica si dotata cu tamplarie din aluminiu. Este echipata cu lift auto si lift pentru persoane, asigurand acces facil la toate nivelurile. In plus, pe langa parcarile din curtea interioara, cladirea include o zona verde.
Aceasta cladire reprezinta o oportunitate deosebita pentru desfasurarea activitatilor comerciale sau medicale intr-o zona premium. Cu o locatie excelenta, la 2 minute de Piata Mihai Viteazul, imobilul ofera acces rapid la punctele principale de interes ale orasului. Cele doua terase de la etajul retras sunt perfecte pentru a va relaxa si a admira privelistea panoramica.
Profitati acum de aceasta oportunitate unica de a activa intr-o cladire de top, moderna si versatila, care indeplineste cele mai inalte standarde de confort si eficienta !
Sediul central - Timișoara
Bulevardul Victor Babeș nr. 2, 300230, Timișoara, România
Tel: +40.374.40.44.98 / Fax: +40.256.401.179
Email: suport@imobiliare.ro
Luni - Vineri 08:00 - 20:00
Punct de lucru - București: Iride Business Park, Bld. Dimitrie
Pompeiu 9-9A, Clădirea B2B,
020335, Sector 2, București, România
CONTACT
Sediul central - Timișoara
Bulevardul Victor Babeș nr. 2, 300230, Timișoara, România
Tel: +40.374.40.44.98 / Fax: +40.256.401.179
Email: suport@imobiliare.ro
Luni - Vineri 08:00 - 20:00
Punct de lucru - București: Iride Business Park, Bld. Dimitrie
Pompeiu 9-9A, Clădirea B2B,
020335, Sector 2, București, România
Arhiepiscopia Ortodoxa, Facultatea de Teologie Ortodoxa, Seminarul Teologic Ortodox
aprox.
228 m
Liceul Nicolae Balcescu
aprox.
297 m
Liceul Teoretic "Nicolae Balcescu"
aprox.
324 m
Liceul Teoretic Nicolae Balcescu
aprox.
324 m
Liceul Teoretic Apaczai Csere Janos
aprox.
353 m
Liceul Teoretic Apaczai Csere Janos
aprox.
410 m
Academia de Muzica Gheorghe Dima
aprox.
420 m
Liceul Teologic Reformat
aprox.
423 m
Colegiul National Emil Racovita
aprox.
453 m
Colegiul național "Emil Racoviță"
aprox.
464 m
Liceul de Muzică "Sigismund Toduță" - Mănăstirea Franciscană
aprox.
471 m
Institutul Teologic Protestant
aprox.
117 m
Apafi Mihaly Reformatus Egyetemi Kollagium (en)
aprox.
166 m
Universitatea Babes-Bolyai, Fac. de Teologie Rom.-Cat.
aprox.
279 m
Facultatea de Teologie Romano-Catolica
aprox.
327 m
Facultatea de Istorie si Filozofie
aprox.
360 m
Universitatea Spiru Haret
aprox.
369 m
Universitatea de Arta si Design
aprox.
389 m
Academia de Muzică "Gheorghe Dima"
aprox.
407 m
Academia de Muzica Gheorghe Dima
aprox.
411 m
Matematicum (green building) (en)
aprox.
472 m
Faculty of European Studies, Babes-Bolyai University (en)
aprox.
473 m
Facultatea de Studii Europene
aprox.
484 m
Sapientia Erdelyi Magyar Tudomanyegyetem
aprox.
492 m
facultatea de matematica si informatica si facultatea de fizica
aprox.
530 m
Universitatea Babes-Bolyai
aprox.
551 m
Alba ca zapada
aprox.
127 m
Grăd.Albă ca Zăpada str. 1 corp A+B
aprox.
127 m
Gradinita Unitariana
aprox.
132 m
Grăd.Universității Babeș< Bolyai
aprox.
262 m
Grăd.Albă ca Zăpada str.1 corp C
aprox.
475 m
Centru international de educatie - Paideea
aprox.
489 m
Grăd.Universității Babeș< Bolyai corp B
aprox.
515 m
Grăd.Universității Babeș Bolyai
aprox.
554 m
Gradinita UBB
aprox.
648 m
Grăd.Mămăruța
aprox.
659 m
Grăd.cu parfum de tei corp B
aprox.
843 m
Grăd.Bambi str.4
aprox.
854 m
Grădinita cu parfum de tei corp A
aprox.
869 m
Grădinita cu parfum de tei
aprox.
976 m
Grăd.Bambi str.2
aprox.
991 m
Carrefour Market
aprox.
181 m
Sora Shopping Center
aprox.
244 m
Minimarket
aprox.
294 m
Billa
aprox.
334 m
Central
aprox.
347 m
Unicarm
aprox.
436 m
Koncert
aprox.
642 m
Magazin Mixt
aprox.
675 m
Magazin alimentar
aprox.
790 m
Magazin Alimentar
aprox.
819 m
Carrefour Express
aprox.
829 m
Profi
aprox.
1174 m
La Doi Pasi
aprox.
1207 m
Lidl
aprox.
1218 m
Oncos
aprox.
1275 m
Parcare pentru clienti cu plata
aprox.
215 m
Parcare
aprox.
246 m
Parcare cu plata
aprox.
313 m
Parcare
aprox.
399 m
Parcare
aprox.
432 m
Parcare
aprox.
444 m
Parcare
aprox.
511 m
Parcare
aprox.
570 m
Parcare
aprox.
573 m
Parcare
aprox.
631 m
Parcare
aprox.
689 m
Parcare
aprox.
732 m
Parcare
aprox.
739 m
Parcare cu plata
aprox.
742 m
Parcare
aprox.
756 m
Piata "Avram Iancu"
aprox.
198 m
Parc
aprox.
341 m
Parc
aprox.
365 m
Piata Mihai Viteazu
aprox.
429 m
Parc
aprox.
431 m
Piata Stefan cel Mare
aprox.
445 m
Parcul I. L. Caragiale
aprox.
563 m
Parcul Caragiale
aprox.
563 m
Parc
aprox.
609 m
Parc
aprox.
723 m
Parc
aprox.
726 m
Parc
aprox.
791 m
Parc
aprox.
866 m
Parc
aprox.
869 m
Parc
aprox.
898 m
Teren sportiv
aprox.
331 m
Teren sportiv
aprox.
416 m
Teren sportiv
aprox.
439 m
Teren sportiv
aprox.
541 m
Teren sportiv
aprox.
548 m
Teren sportiv
aprox.
698 m
Teren sportiv
aprox.
711 m
Teren sportiv
aprox.
847 m
Teren sportiv
aprox.
884 m
Palatul Copiilor - Tennis court
aprox.
927 m
Teren sportiv
aprox.
936 m
Teren sportiv
aprox.
947 m
Teren sportiv
aprox.
1242 m
Teren sportiv
aprox.
1262 m
Teren sportiv
aprox.
1324 m
Piata Mihai Viteazul
aprox.
392 m
Piața "Lucian Blaga" (fosta Păcii)
aprox.
837 m
Piata Garii-RailwayStation Square (en)
aprox.
1410 m
Piata 1848
aprox.
1453 m
Farmacia Remedium
aprox.
175 m
Farmacia Dona
aprox.
189 m
Catena
aprox.
231 m
Via Farm
aprox.
249 m
Farmacia
aprox.
259 m
Farmacie
aprox.
297 m
Catena
aprox.
300 m
Infofarm
aprox.
301 m
Terrafarm
aprox.
320 m
Dacia Plant
aprox.
332 m
Farmacia Tesa
aprox.
350 m
Farmacia Napofarm
aprox.
370 m
Farmacia Richter
aprox.
379 m
Catena
aprox.
382 m
Farmacia Hedera
aprox.
458 m
Institutul Regional de gastroenterologie si hepatologie
aprox.
194 m
Radusan
aprox.
291 m
MS Care Dr. Sbirciu
aprox.
399 m
STOMA HD - Cabinet Stomatologic - Dr. Doru Hadarean (en)
aprox.
415 m
Clinica Medicala si Chirurgie 3
aprox.
424 m
Clinica Medicala III
aprox.
439 m
Institutul de Hematologie
aprox.
456 m
Regina Maria (Policlinica Muzeului)
aprox.
470 m
Spitalul Ginecologic Stanca
aprox.
495 m
Centrul medical CosMedica
aprox.
508 m
Policlinica pentru Sportivi
aprox.
601 m
Eyes optic
aprox.
617 m
Spitalul de Hematologie
aprox.
750 m
Centrul medical gastroenterologie si hepatologie
aprox.
807 m
Centrul Medical de Gastroenterologie, Hepatologie și Endoscopie Digestivă (en)
aprox.
818 m
Koffer Books & Coffee
aprox.
42 m
Big Ben Caffe
aprox.
143 m
Enigma Cafe
aprox.
207 m
Friends
aprox.
207 m
Narcoffee
aprox.
228 m
Ceramic Cafe
aprox.
230 m
Uptown arts coffee
aprox.
260 m
Tucano Coffee
aprox.
277 m
Sahara Cafe
aprox.
307 m
Opera Food & Cafe
aprox.
313 m
Grotta
aprox.
319 m
Olivo Caffe & Bistro
aprox.
337 m
House of Jack
aprox.
340 m
Coffee Addict
aprox.
358 m
Sanko Cafe
aprox.
363 m
Hugo
aprox.
54 m
Restaurant Hotel Victoria
aprox.
69 m
Casa Boema
aprox.
147 m
Hubertus (en)
aprox.
174 m
Clătitărie (en)
aprox.
212 m
Creperia
aprox.
224 m
Culina Nostra
aprox.
225 m
McDonald's Viteazu'
aprox.
226 m
Mama Manu
aprox.
226 m
Restaurant View
aprox.
226 m
Culina Nostra Garden
aprox.
231 m
Varzarie
aprox.
232 m
Restaurant Luciana
aprox.
232 m
Casa Ardeleana
aprox.
240 m
Cercul Militar, Cinema Victoria
aprox.
241 m
Crama Borissza
aprox.
154 m
Old School
aprox.
390 m
Submarine
aprox.
452 m
Post Office
aprox.
458 m
Old Schepherd
aprox.
493 m
Social Club P. Howard
aprox.
526 m
Che Guevara
aprox.
526 m
Ce?
aprox.
527 m
Rooster Pub
aprox.
527 m
Klausen
aprox.
554 m
Bistro
aprox.
577 m
Bermuda's Pub
aprox.
589 m
Irish & Music Pub
aprox.
607 m
Spatiu
aprox.
623 m
Karolina Augusta Pub
aprox.
628 m
Club Litoral
aprox.
197 m
Junkyard
aprox.
297 m
Cafe bar jocuri electronice
aprox.
327 m
La Movida
aprox.
334 m
Revolution
aprox.
376 m
Hemingway
aprox.
439 m
Casa Tauffer
aprox.
500 m
Crush
aprox.
502 m
Shadow
aprox.
504 m
Caro Club
aprox.
520 m
Tabiet Cafe & Bistro
aprox.
550 m
SHTO College Bar
aprox.
557 m
The Soviet
aprox.
563 m
Bruno - bistro and wine bar
aprox.
573 m
Ancuta Comimpex
aprox.
588 m
CEC Bank
aprox.
67 m
Easy Credit
aprox.
146 m
Raiffeisen Bank
aprox.
169 m
Raiffeisen Bank
aprox.
180 m
BCR
aprox.
186 m
Bancpost
aprox.
199 m
BCR
aprox.
231 m
Banca Transilvania
aprox.
236 m
Garanti Bank
aprox.
257 m
Banca Transilvania
aprox.
262 m
Banca Transilvania
aprox.
264 m
BRD
aprox.
291 m
OTP Bank
aprox.
299 m
Piraeus Bank
aprox.
320 m
ING
aprox.
324 m
În mod firesc, datorită localizării și importanței sale, Centrul Clujului este una dintre zonele cel mai bine deservite la capitolul mijloace de transport în comun, acestea având menirea de a ușura accesul către celelalte cartiere ale orașului (nu doar cele învecinate). În plus, aici a fost inaugurată, în ultimii ani, o bandă specială pentru transportul în comun: aceasta începe pe Strada Memorandumului, în apropiere de sediul central al Primăriei Cluj-Napoca, și se continuă pe Bulevardul 21 Decembrie 1918, legând astfel zona Centru de cartierul Mărăști. Și pasionații de bicicletă au de câștigat de pe urma acestui proiect, noua bandă putând fi folosită și pentru acest mijloc de locomoție.
Dacă vei decide să te muți în Centru, unul dintre beneficiile importante de care vei avea parte va fi reprezentat tocmai de multiplele opțiuni de educație pentru copiii tăi "“ atât în ceea ce privește ciclul preșcolar, cât și cel gimnazial și liceal. Printre instituțiile de prestigiu din acest cartier se numără, spre exemplu, Școala Gimnazială "Ioan Bob", cea mai veche școală românească din Cluj-Napoca. La capitolul învățământ superior, această zonă oferă, de departe, cele mai numeroase oportunități dintre toate cartierele orașului de pe Someș. Astfel, aici se găsesc sediul central al Universității "Babeș-Bolyai", Facultatea de Geografie, Facultatea de Chimie și Inginerie Chimică, Facultatea de Automatică și Calculatoare, Facultatea de Matematică și Informatică (din cadrul Universității "Babeș-Bolyai"), Facultatea de Studii Europene, precum și Institutul Teologic Protestant.
Multiple opțiuni există și pentru pasionații centrelor comerciale moderne, Central Shopping Center fiind un punct de referință pentru mulți clujeni. În apropiere se află și Sora Shopping Center, precum și Ferdinand Galeria. Pentru cumpărăturile de alimente și alte produse de bază, clujenii care locuiesc în Centru nu au la dispoziție un hipermarket "“ deși pot ajunge, în caz de nevoie, la Kauflandul din Mărăști sau la cel din Mănăștur. Nevoile zilnice pot fi satisfăcute, însă, fără prea mari probleme, de magazinele de mai mici dimensiuni existente în cartier.
Pentru cei care au mașină proprie, găsirea unui loc de parcare permanent poate reprezenta, cel puțin în anumite situații, o problemă. Pentru a evita orice probleme în această privință, șoferii se pot interesa cu privire la procedura de închiriere a unui loc de parcare la sediul central al Primăriei Clujului, de pe Strada Moților, nr. 3.
Astfel, pe lângă spațiile verzi și locurile de joacă amenajate pe alocuri, aceștia pot alege, pentru relaxare, între mai multe parcuri, cum ar fi Parcul Central "Simion Bărnuțiu" (amplasat aproape de granița cu Plopilor), Grădina Miko (aproape de Zorilor) sau Parcul Operei. De menționat este, desigur, și Grădina Botanică "Alexandru Borza", situată în sudul cartierului, care reprezintă o destinație perfectă pentru relaxare pe timp de weekend (dar nu numai). Față de alte zone ale orașului de pe Someș, Centrul se distinge și printr-o multitudine de obiective de interes turistic și cultural.
Dintre toate cartierele Clujului, Centrul este cel mai bine reprezentat și la capitolul servicii medicale de stat, aici găsindu-se cele mai multe spitale și clinici de acest tip. În cartier se găsesc, bineînțeles, și o serie de cabinete și clinici medicale particulare, dintre care de menționat ar fi centrele medicale Synevo, Affidea, Cardiomed, dar și clinica de oftalmologie Optinis.
Comparativ cu alte cartiere ale orașului de pe Someș, zona Centrală este, în mod firesc, mult mai ofertantă la capitolul oportunități gastronomice. Astfel, printre opțiunile demne de luat în seamă de aici se numără restaurantele "Casa Boema" (de pe Strada Iuliu Maniu, nr. 34), "Semplice Gourmet" (de pe Strada Calea Dorobanților, nr. 18-20), "Da Pino" (de pe Strada Universității, nr. 8), "Insomnia" (de pe Strada Universității, nr. 2), dar și altele. Dacă ești interesat de o ieșire în oraș cu prietenii, în zona Centrală ai la dispoziție, desigur, și o serie de cafenele, precum "Doamna T", "Papillon Cafe" sau "Meron Opera".
Dacă ai nevoie să efectuezi o operațiune bancară, te vei bucura să afli că zona Centru este foarte bine deservită la acest capitol. Spre exemplu, aici pot fi găsite, într-un areal destul de restrâns, două sedii Banca Transilvania (unul pe Bulevardul Eroilor, nr. 36, iar celălalt, pe Calea Dorobanților, nr. 3), o sucursală ING Bank (pe Bulevardul Eroilor, nr. 9), dar și una CEC Bank (pe Bulevardul 21 Decembrie 1989). De asemenea, la granița dintre Gruia și zona Centrală (reprezentată de Strada Horea), se găsesc alte trei sucursale bancare: una din rețeaua BCR, o Banca Transilvania, alături de un sediu Raiffeisen Bank. Consultă harta și află unde sunt localizate și alte bănci sau ATM-uri în zona Centru:
Înainte să pleci...
Ești sigur că ai văzut și aceste proprietăți?
7.190.000 €
Cluj-Napoca, Bună Ziua
978 mp utili
Clădire de birouri
5.750.000 €
Cluj-Napoca, Zorilor
2.400 mp utili
data_properties.building_type.hotel
4E
2.950.000 €
Cluj-Napoca, Central
1.358 mp utili
Clădire de birouri
4E
650.000 €
Cluj-Napoca, Semicentral
260 mp utili
Casă/Vilă
1E
1.000.000 €
Cluj-Napoca, Făget
1.725 mp utili
Clădire de birouri
3E
672.000 €
Cluj-Napoca, Central
168 mp utili
Clădire de birouri
2018
Creează alertă
Salvează căutarea ca să primești pe email ultimele anunțuri publicate
Spații comerciale cu 4+ camere de vânzare în zona Central, Cluj-Napoca
Cere detalii prin email
*
*
*
*
Detaliile tale de contact vor fi partajate cu Impakt Imobiliare