Va propunem spre vânzare o clădire cu destinație comercială și de birouri, situată în cartierul Grigorescu, într-o zonă cu vad foarte bun, în imediata apropiere a stației de autobuz, cu acces facil și vizibilitate excelentă din stradă.
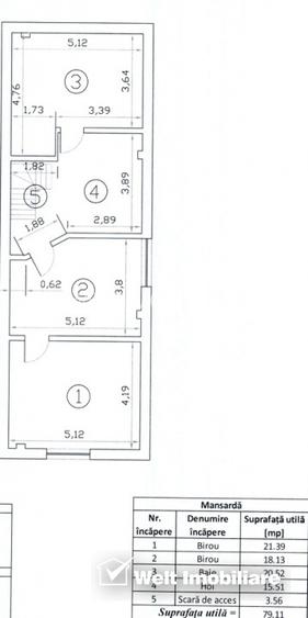
Imobilul este dispus pe două niveluri (parter și mansardă) și are o suprafață construită desfășurată de 253 mp, respectiv o suprafață utilă de 153 mp. Este ideal pentru activități de birou, servicii sau cabinete și reprezintă o oportunitate excelentă de investiție, fiind în prezent închiriat către chiriași stabili, cu randament imediat.
Teren total: 299 mp
Front stradal: 13,5 metri
Compartimentare:
Parter: 3 birouri, baie, antreu, scară interioară
Mansardă: 2 birouri, hol, baie
Construcția este solidă, realizată pe fundații din beton armat, cu zidărie din cărămidă și acoperiș tip terasă. Beneficiază de garaj auto și curte proprie, care poate fi utilizată pentru parcare, zonă de relaxare sau extindere.
Caracteristici principale:
Zonă cu vad comercial, trafic pietonal și rutier intens
Acces imediat la mijloacele de transport în comun
Spațiu luminos, bine întreținut
Proprietate închiriată, cu venit pasiv garantat
Posibilitate de parcare în curte
Acces auto facil
Dotări și utilități:
Centrală termică proprie
Contorizare individuală
Utilități complete
Posibilitate de recompartimentare și personalizare
Pentru informații suplimentare sau pentru programarea unei vizionări, vă invităm să ne contactați. Această proprietate oferă combinația perfectă între amplasare, funcționalitate și potențial investițional.
Sediul central - Timișoara
Bulevardul Victor Babeș nr. 2, 300230, Timișoara, România
Tel: +40.374.40.44.98 / Fax: +40.256.401.179
Email: suport@imobiliare.ro
Luni - Vineri 08:00 - 20:00
Punct de lucru - București: Iride Business Park, Bld. Dimitrie
Pompeiu 9-9A, Clădirea B2B,
020335, Sector 2, București, România
CONTACT
Sediul central - Timișoara
Bulevardul Victor Babeș nr. 2, 300230, Timișoara, România
Tel: +40.374.40.44.98 / Fax: +40.256.401.179
Email: suport@imobiliare.ro
Luni - Vineri 08:00 - 20:00
Punct de lucru - București: Iride Business Park, Bld. Dimitrie
Pompeiu 9-9A, Clădirea B2B,
020335, Sector 2, București, România
Sună acum și cere detalii sau programează o vizionare.
Cere detalii prin email
*
*
*
*
Stații autobuz
Stații tramvai
Școli
Gradinițe
Universități
Supermarket
Parcări
Parcuri
Terenuri sport
Piețe publice
Farmacie
Spital
Bar
Restaurant
Pub
Cafenea
Bancă
Alexandru Vlahuta
aprox.
56 m
Statia Al. Vlahuta II, Linia 26, 27, 28, 30, 41, CORA
aprox.
64 m
Iancu de Hunedoara
aprox.
120 m
Statia Vlahuta, Linia 26, 27, 28, 41, CORA
aprox.
159 m
Petuniei
aprox.
388 m
Statia 14 Iulie, Linia 30, CORA
aprox.
401 m
Piata 14 Iulie Vest
aprox.
409 m
Statia 14 Iulie, Linia 30
aprox.
416 m
Buzau
aprox.
461 m
Piata 14 Iulie
aprox.
467 m
Statia Buzau, Linia 26, 27, 28, 30, 41, CORA
aprox.
478 m
Sigismund Toduta
aprox.
500 m
Piata 14 Iulie Sud
aprox.
521 m
Statia P-ta 14 Iulie, Linia 26, 27, 28, 41, CORA
aprox.
527 m
Piata 14 Iulie Nord
aprox.
538 m
Statia Sala Sporturilor 2TRV, Linia 102
aprox.
601 m
Sala Sporturilor
aprox.
673 m
Statia Sala Sporturilor 1TRV, 102
aprox.
674 m
Uzinei Electrice
aprox.
679 m
Splaiul Independentei
aprox.
765 m
Cluj Arena
aprox.
772 m
Plopilor Sud
aprox.
824 m
Statia Plopilor 2 TRV, Linia 102
aprox.
825 m
Plopilor Nord
aprox.
825 m
Grigore Alexandrescu
aprox.
1225 m
Calvaria
aprox.
1241 m
Statia Gr Alexandrescu1TRV, 102
aprox.
1250 m
Statia Gr. Alexandrescu, Linia 6
aprox.
1580 m
Statie tramvai (liniile 101, 102)
aprox.
1748 m
Opera Maghiara Est
aprox.
1768 m
Liceul Teoretic Onisifor Ghibu
aprox.
253 m
Scoala Generala nr.15
aprox.
285 m
Liceul Teoretic Onisifor Ghibu
aprox.
285 m
Școala Generală "Ioan Lupaș"
aprox.
1072 m
Scoala Internationala Spectrum
aprox.
1082 m
Scoala Speciala pentru Deficienti de Auz Nr. 2
aprox.
1270 m
Scoala Generala Eugen Pora
aprox.
1313 m
Liceul Teoretic Eugen Pora
aprox.
1325 m
Colegiul Tehnic de Comunicatii Augustin Maior
aprox.
1335 m
Liceul Teologic Adventist Maranatha
aprox.
1442 m
Liceul Teologic Baptist "Emanuel"
aprox.
1544 m
Liceul Teologic Emanuel
aprox.
1550 m
Colegiul Tehnic de Comunicații Augustin Maior
aprox.
1570 m
Școala Iuliu Hațieganu
aprox.
1615 m
Scoala Iuliu Hatieganu
aprox.
1625 m
Gradinita Mica Sirena
aprox.
306 m
Grăd.Mica Sirenă
aprox.
313 m
Grăd.Mica Sirenă2
aprox.
380 m
Gradinita Steluta Fermecata
aprox.
586 m
Gradinita Licuricistr. 2
aprox.
603 m
FasTracKids Cluj-Napoca
aprox.
882 m
Grăd.Căsuța poveștilor
aprox.
923 m
Gradinita Licurici
aprox.
964 m
Grăd.Mica Sirenă1
aprox.
1033 m
Grăd.Rază de soare corp A+B
aprox.
1242 m
Gradinita Licurici str. 1
aprox.
1254 m
Grăd.Albinuța
aprox.
1258 m
Grăd.Rază de soare str. 1
aprox.
1269 m
Grăd.Bambi str.5
aprox.
1543 m
Gradinita Daisy
aprox.
1607 m
UBB Educatie Fizica si Sport
aprox.
510 m
Facultatea de Educatie Fizica si Sport
aprox.
525 m
Institutul de cercetari in chimie Raluca Ripan
aprox.
786 m
Platforma De Biotehnologie Bazata Pe Cunoastere
aprox.
1167 m
Facultatea de Zootehnie si Biotehnologii
aprox.
1176 m
Universitatea "Sapientia"
aprox.
1192 m
Universitatea de Stiinte Agricole si Medicina Veterinara
aprox.
1197 m
Universitatea de Stiinte Agricole si Medicina Veterinara
aprox.
1320 m
Facultatea de Farmacie
aprox.
1324 m
Pictura (Academia de arte vizuale "Ion Andreescu" Cluj-Napoca)
aprox.
1384 m
Universitatea de Arta si Design
aprox.
1384 m
USAMV Cluj-Napoca
aprox.
1419 m
UBB Geografie
aprox.
1571 m
Universitatea de Medicină și Farmacie "Iuliu Hațieganu" -Facultatea de Medicină Dentară-
aprox.
1576 m
UMF Stomatologie
aprox.
1576 m
OUTLET
aprox.
849 m
Magazin Profi Grigorescu
aprox.
960 m
Profi
aprox.
960 m
Mega Image
aprox.
1056 m
Kaufland
aprox.
1243 m
Penny Market
aprox.
1350 m
Carrefour Market
aprox.
1376 m
Profi
aprox.
1500 m
Profi
aprox.
1522 m
Complex Comercial Flora
aprox.
1547 m
Carrefour Market
aprox.
1669 m
Lidl
aprox.
1698 m
Winmarkt
aprox.
1702 m
NONstop
aprox.
1913 m
Koncert
aprox.
1926 m
Parcare
aprox.
55 m
Parcare
aprox.
197 m
Parcare privata
aprox.
215 m
Parcare
aprox.
236 m
Parcare
aprox.
250 m
Parcare privata
aprox.
285 m
Parcare
aprox.
296 m
Parcare privata
aprox.
300 m
Parcare privata
aprox.
316 m
Parcare
aprox.
323 m
Parcare privata
aprox.
373 m
Parcare
aprox.
400 m
Parcare privata
aprox.
434 m
Parcare
aprox.
440 m
Parcare
aprox.
483 m
Parc
aprox.
186 m
Parc agrement
aprox.
188 m
Parc
aprox.
195 m
Parc
aprox.
208 m
Parc
aprox.
211 m
Parc
aprox.
218 m
Parc
aprox.
229 m
Parc
aprox.
236 m
Parc
aprox.
243 m
Parc :: Spatiu de joaca pentru copii
aprox.
287 m
Parc
aprox.
287 m
Parc
aprox.
299 m
Spațiu joacă copii
aprox.
338 m
Parc
aprox.
341 m
Parc
aprox.
343 m
Teren sportiv
aprox.
272 m
Teren sportiv
aprox.
295 m
Teren sportiv
aprox.
432 m
Teren sportiv
aprox.
471 m
Teren sportiv
aprox.
504 m
Teren sportiv
aprox.
528 m
Teren sportiv
aprox.
531 m
Teren sportiv
aprox.
536 m
Teren sportiv
aprox.
538 m
Teren sportiv
aprox.
562 m
Teren sportiv
aprox.
576 m
Teren sportiv
aprox.
576 m
Teren sportiv
aprox.
580 m
Teren sportiv
aprox.
615 m
Teren sportiv
aprox.
623 m
Piața "Lucian Blaga" (fosta Păcii)
aprox.
1968 m
Farmacia Grigorescu
aprox.
270 m
Farmacia Panaceea
aprox.
284 m
Farmacia Herba
aprox.
662 m
Cariatida Drogherie
aprox.
844 m
Ropharma
aprox.
869 m
Viscum
aprox.
887 m
Viva
aprox.
936 m
Farmacia Salvie
aprox.
1111 m
Cynara
aprox.
1519 m
Sanatatea Verde
aprox.
1529 m
Catena
aprox.
1530 m
Donna
aprox.
1554 m
Help Net
aprox.
1653 m
Naturland
aprox.
1708 m
Farmacia Europa
aprox.
1745 m
Policlinica Grigorescu
aprox.
423 m
Cabinet medical universitar
aprox.
781 m
Spitalul Clinic de Urgenta pentru copii Cluj-Napoca Neonatologie-prematuri
aprox.
1114 m
Centrul Medical Halmasan
aprox.
1285 m
Pediatrie II + Urgente
aprox.
1389 m
Clinica de Chirurgie Maxilo Faciala
aprox.
1466 m
Hyperclinica MedLife
aprox.
1652 m
Clinica Ginecologie I
aprox.
1709 m
Clinica Obstetrica - Ginecologie I
aprox.
1709 m
Institutul Inimii "Niculae Stancioiu"
aprox.
1743 m
Universitatea de Medicină și Farmacie "Iuliu Hațieganu" -Catedra de Medicină Legală- -Catedra de Anatomie si Anatomie Patologica- -Institutul de Medicina Leg
aprox.
1763 m
Centrul clinic de diagnostic si tratament
aprox.
1764 m
Medicina Legala
aprox.
1770 m
Institutul de Urologie
aprox.
1777 m
Clinica Medicală II, Clinica Chirurgie II
aprox.
1780 m
Geo & Andi
aprox.
152 m
Infinity Games
aprox.
191 m
Cotton Club
aprox.
534 m
Las Vegas Caffe
aprox.
544 m
Admiral
aprox.
665 m
Cheaters
aprox.
1372 m
Terasa Niko
aprox.
1411 m
Living Pub
aprox.
1442 m
Booha Bar
aprox.
1461 m
Studio 26
aprox.
1466 m
Rehab College Bar
aprox.
1485 m
Marul de Aur
aprox.
1488 m
Molecular Beams
aprox.
1490 m
Tube - Social Chemistry
aprox.
1596 m
La Gazette
aprox.
1774 m
Restaurant "Sinaia"
aprox.
195 m
Casa Vikingilor
aprox.
198 m
Restaurant Sinaia
aprox.
209 m
Cantina Hoia
aprox.
362 m
Terasa "Hoia"
aprox.
372 m
Suete Restaurant-Pizzerie
aprox.
413 m
Fair - Play
aprox.
487 m
Fair Play
aprox.
510 m
Platou Sala Sporturilor parcare (ocazional loc de Concerte)
aprox.
526 m
Restaurant Lugano
aprox.
658 m
Pizzeria Mamma Mia (en)
aprox.
671 m
Artizan Pizza
aprox.
676 m
Pulp Fiction
aprox.
721 m
La Luca
aprox.
749 m
Deutsches Haus
aprox.
823 m
Uni Sports Bar
aprox.
549 m
Infinity Games
aprox.
631 m
Seven
aprox.
867 m
Infinity Games
aprox.
948 m
Cleo
aprox.
1341 m
Student Pop
aprox.
1369 m
London Pub
aprox.
1478 m
Old Friends Pub
aprox.
1570 m
Ring Club
aprox.
1570 m
Jaxx
aprox.
1829 m
Karolina Augusta Pub
aprox.
1936 m
BARLAMUC
aprox.
1955 m
Gamerz.Pub
aprox.
1983 m
Buricu' Targului
aprox.
1997 m
bike44
aprox.
650 m
Royal cafe
aprox.
688 m
Bookla
aprox.
917 m
PLAN Cafe
aprox.
954 m
Meron Platinia
aprox.
1088 m
Origine
aprox.
1295 m
Louie
aprox.
1405 m
Big Apple
aprox.
1410 m
Solas
aprox.
1417 m
Gap
aprox.
1436 m
Qui One Quint tea room
aprox.
1470 m
Black Sheep
aprox.
1473 m
Ela & Cata
aprox.
1494 m
Ceainaria Sakura
aprox.
1562 m
Giuf Cafe
aprox.
1609 m
Banca Transilvania
aprox.
288 m
BCR
aprox.
862 m
Millenium Bank
aprox.
876 m
Banca Transilvania
aprox.
887 m
BRS, Banca Transilvania, BCR, UPC
aprox.
890 m
CEC Bank
aprox.
900 m
BRD
aprox.
902 m
ING
aprox.
927 m
Casa de ajutor reciproc
aprox.
1050 m
Banca Transilvania
aprox.
1172 m
Banca Transilvania
aprox.
1205 m
BRD
aprox.
1234 m
BRD
aprox.
1356 m
Banca Centrala Cooperatista Creditcoop
aprox.
1428 m
ING
aprox.
1456 m
Strada Donath este una dintre principalele artere din Grigorescu, străbătându-l, de la sud-vest la est, până la limita cu Gruia "“ după care se continuă cu Strada General Eremia Grigorescu. Alte artere importante sunt și Bulevardul 1 Decembrie 1918, dar și Strada Octavian Goga (în partea de est). Ca și locuitorii din alte zone ale Clujului, cei din Grigorescu au la dispoziție o varietate de mijloace de transport în comun, menite să facă legătura atât între diferite puncte din interiorul cartierului, cât și cu alte zone ale orașului.
Nu vei avea prea mari dificultăți în găsirea unei grădinițe pentru micuțul tău (sau micuții tăi), fie că înclini spre instituțiile de stat sau particulare "“ din cea din urmă categorie de menționat sunt Grădinița "Țăndărică", dar și Grădinița "Patricia". În zonă ai destule opțiuni și în materie de școli și licee, cum ar fi Liceul Teoretic "Onisifor Ghibu". La capitolul instituții de învățământ superior, în Grigorescu se găsește Facultatea de Știința și Ingineria Mediului, parte din Universitatea "Babeș-Bolyai" din Cluj-Napoca. Ca oportunitate de cercetare în domeniul fizicii, în apropiere se află și Institutul Național de Cercetare-Dezvoltare pentru Tehnologii Izotopice și Moleculare (INCDTIM) Cluj-Napoca România.
La fel ca în majoritatea cartierelor clujene, în Grigorescu nu se găsește un mall propriu-zis; pasionații de shopping pot ajunge, însă, cu ușurință, în Plopilor "“ unde, aproape de granița cu Mănășturul și de cea cu Centrul, se află centrul comercial Platinia Shopping Center. În afară de numeroasele supermarketuri din cartier, atât locale, cât și afiliate unor rețele internaționale, în zonă se află și un hipermarket Cora. Amplasat pe Bulevardul 1 Decembrie 1918, aproape de granița cu Plopilor, acesta reprezintă o bună destinație de cumpărături pe segmentul produselor alimentare, băuturi, cosmetice etc.
Pentru cei care au mașină proprie, parcarea "liberă" nu reprezintă neapărat o problemă în cartierul Grigorescu. Cei care vor, totuși, să aibă un loc de parcare închiriat, cu toate actele în regulă, se pot interesa în această privință la sediul Primăriei de cartier, de pe Strada Alexandru Vlahuță, nr. 46-47.
Spre deosebire de alte zone ale Clujului, Grigorescu nu oferă foarte multe opțiuni în materie de parcuri amenajate. Câteva opțiuni ar fi Parcul "14 iulie", din zona de est a cartierului, dar și Parcul "La Butuci" și Parcul "Grigorescu". Tot lângă Canalul Someșului Mic se află și Plaja Grigorescu, special amenajată pentru locuitorii cartierului (și nu numai), ce poate fi o destinație perfectă de weekend pe timp de vară. Pentru cei pasionați de sport, în apropiere se află și un teren sintetic de fotbal, în cadrul Cotton Club. Nu în ultimul rând, o variantă de recreere la sfârșit de săptămână este și Muzeul Etnografic "Romulus Vuia" - chiar dacă acesta este amplasat dincolo de Strada Nicolae Pătrașcu.
În ceea ce privește serviciile medicale de stat din Grigorescu, pe strada Donath nr. 170 se găsește Spitalul Clinic de Copii Cluj-Napoca, Secția Prematuri. Datorită localizării sale favorabile, cartierul oferă un acces rapid și către multitudinea de spitale de stat existente în zona centrală a orașului, cum ar fi Spitalul Clinic Județean de Urgență Cluj-Napoca sau Spitalul Universitar C.F. Cluj-Napoca. În cartier există, desigur, și instituții medicale particulare "“ printre acestea se numără Policlinica Grigorescu, de pe Strada Ștefan Mora, nr. 1. Aceasta include un laborator de analize medicale și dispune de specializări în cardiologie, dermato-venerologie, endocrinologie, obstetrică-ginecologie, ORL, pediatrie, diabet zaharat, nutriție și boli metabolice.
În afară de câteva fast food-uri de cartier, locuitorii cartierului Grigorescu au la dispoziție, în cadrul acestuia, și alte câteva oportunități interesante la capitolul gastronomie. Printre acestea se numără restaurantul "Casa Vikingilor", amplasat pe Strada Alexandru Vhlahuță, nr. 41A, ce oferă și servicii de livrare la domiciliu, dar și restaurantul "Sinaia", de pe Bulevardul 1 Decembrie 1918. Pentru a beneficia de o gamă mai largă de opțiuni pentru ieșirile în oraș cu prietenii, poți vizita, desigur, și cartierele învecinate.
Dacă ai nevoie să efectuezi o operațiune bancară, te vei bucura să afli că acest cartier al Clujului este destul de bine deservit la acest capitol. Astfel, pe Strada Fântânele (nr. 7) vei găsi un sediu CEC Bank; în imediata apropiere a acestuia vei găsi alte două sucursale bancare, una din rețeaua Banca Transilvania, iar cealaltă, din rețeaua BCR. Consultă harta și află unde sunt localizate și alte bănci sau ATM-uri în cartierul Grigorescu:
Înainte să pleci...
Ești sigur că ai văzut și aceste proprietăți?
380.000 €
Cluj-Napoca, Grigorescu
120 mp utili
Casă/Vilă
2E
335.900 €
Cluj-Napoca, Grigorescu
91 mp utili
Bloc de apartamente
4E
635.000 €
Cluj-Napoca, Mănăștur
304 mp utili
Clădire de birouri
5E
1.399.000 €
Cluj-Napoca, Mărăști
505 mp utili
Clădire de birouri
2E
335.000 €
Cluj-Napoca, Mărăști
127 mp utili
Bloc de apartamente
6E
139.000 €
Cluj-Napoca, Iris
43,5 mp utili
Clădire de birouri
Creează alertă
Salvează căutarea ca să primești pe email ultimele anunțuri publicate
Spații comerciale cu 4+ camere de vânzare în zona Grigorescu, Cluj-Napoca
Cere detalii prin email
*
*
*
*
Detaliile tale de contact vor fi partajate cu Welt Imobiliare