Cladire pentru functiuni tertiale si servicii cu acces public!
Va propunem spre vanzare un imobil situat in cartierul Intre Lacuri la 500 m de Iulius Mall si 2,7 km de centrul orasului Cluj-Napoca.
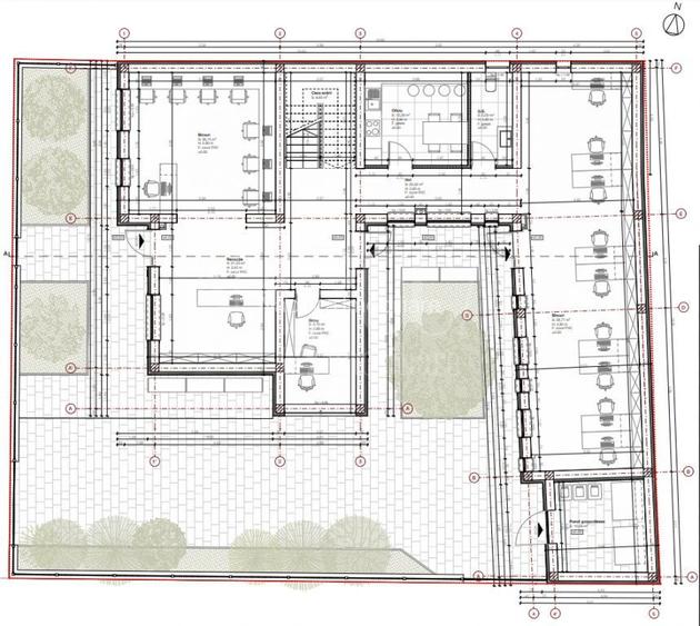
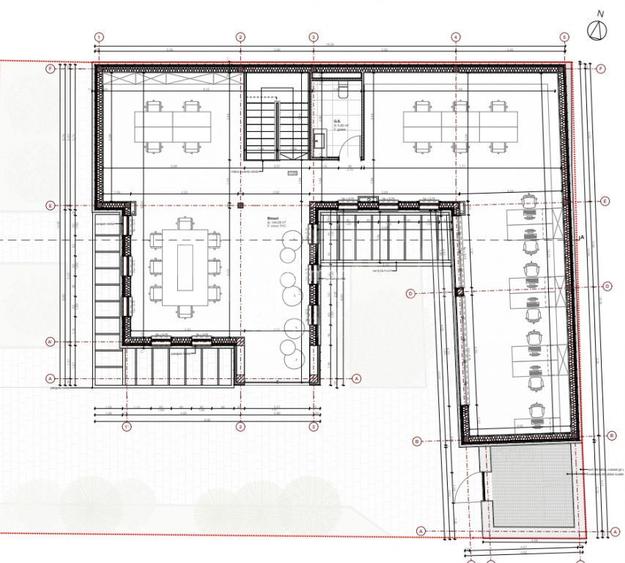
Spatiul are o suprafata utila de aproximativ 330 mp dispusa pe 2 niveluri dupa cum urmeaza:
Parter:
- receptie;
- birou cu o suprafata de 9.75 mp;
- birou cu o suprafata de 26.75 mp;
- birou cu o suprafata de 56.77 mp;
- grup sanitar;
- oficiu;
- hol.
+ punct gospodaresc ( spatiu de depozitare )
Etaj:
- zona de birouri open-space;
- grup sanitar.
Cladirea se preda la stadiul de semifinisat cu finisajele exterioare finalizate si curtea amenajata.
Pentru mai multe detalii, vizionari si oferte de pret, nu ezitati sa ne contactati!
Echipa Napoca Imobiliare
ID oferta: 145907
Sediul central - Timișoara
Bulevardul Victor Babeș nr. 2, 300230, Timișoara, România
Tel: +40.374.40.44.98 / Fax: +40.256.401.179
Email: suport@imobiliare.ro
Luni - Vineri 08:00 - 20:00
Punct de lucru - București: Iride Business Park, Bld. Dimitrie
Pompeiu 9-9A, Clădirea B2B,
020335, Sector 2, București, România
CONTACT
Sediul central - Timișoara
Bulevardul Victor Babeș nr. 2, 300230, Timișoara, România
Tel: +40.374.40.44.98 / Fax: +40.256.401.179
Email: suport@imobiliare.ro
Luni - Vineri 08:00 - 20:00
Punct de lucru - București: Iride Business Park, Bld. Dimitrie
Pompeiu 9-9A, Clădirea B2B,
020335, Sector 2, București, România
Sună acum și cere detalii sau programează o vizionare.
Cere detalii prin email
*
*
*
*
Stații autobuz
Stații tramvai
Gradinițe
Școli
Universități
Supermarket
Parcări
Parcuri
Terenuri sport
Piețe publice
Farmacie
Spital
Restaurant
Cafenea
Bar
Pub
Bancă
Intre Lacuri
aprox.
137 m
Statia Intre Lacuri, Linia 47
aprox.
179 m
Muresului
aprox.
200 m
Dorobantilor
aprox.
300 m
Statia Dorobantilor, Linia 24,25,34, 48
aprox.
312 m
Statia Teodor Mihali, Liniile 24,34,48, 25
aprox.
322 m
Statia Siretului, Liniile 8,30,46B, 4, 6, 7
aprox.
326 m
Statia Aurel Vlaicu, Liniile 8, 30, 46B, 4, 6, 7
aprox.
367 m
Statia Complex Dunarii, Linia 47
aprox.
439 m
Complex Dunarii Nord
aprox.
452 m
Complex Dunarii Sud
aprox.
472 m
Campus Universitar Est
aprox.
500 m
Campus Universitar Vest
aprox.
525 m
Statia Arte Plastice, Liniile 8,24,30,34,46B,47,48, 4, 6, 7
aprox.
527 m
Arte Plastice
aprox.
528 m
Statia Bai Someseni, Linia 8
aprox.
1650 m
Statia Branului, Linia 8
aprox.
1790 m
Sinterom Sud
aprox.
1913 m
Statia SINTEROM1, Linia 100, 102, 23, 48, 50
aprox.
1925 m
Sinterom Nord
aprox.
1956 m
Termorom Nord
aprox.
1992 m
Grăd.Degețica corp B
aprox.
110 m
Grăd.Degețica
aprox.
220 m
Grăd.Degețicastr.1
aprox.
416 m
Grăd.Lizuca str. 1
aprox.
728 m
Grădinita Așchiuță str. 2
aprox.
769 m
Grăd.Lizuca
aprox.
795 m
Grădinita Așchiuță
aprox.
801 m
Grădinita Așchiuță str. 3
aprox.
857 m
Gradinita "Micul Print"
aprox.
896 m
Gradinita Micul Print
aprox.
896 m
Grăd.Bambi str.1
aprox.
1000 m
Grăd.Micul Prinț
aprox.
1063 m
Grăd.Așchiuță str. 1
aprox.
1182 m
Gradinita
aprox.
1255 m
Cresa Lizuca
aprox.
1294 m
Școala Alexandru Vaida
aprox.
314 m
Universitatea de Artă și Design
aprox.
437 m
Palatul Copiilor
aprox.
568 m
Scoala Speciala de Meserii
aprox.
589 m
Grupul Scolar de Transporturi / Colegiul Tehnic Raluca Ripan
aprox.
711 m
Colegiul Tehnic de Transporturi Transilvania
aprox.
712 m
Colegiul Național George Coșbuc
aprox.
728 m
Univers "T" - Cladirea 2
aprox.
783 m
Scoala Alexandru Vaida-voevod
aprox.
806 m
Caminul Grupului Scolar Energetic
aprox.
812 m
Grupul Scolar de Industrie Alimentara
aprox.
817 m
Grupul Scolar Energetic
aprox.
841 m
Colegiul Tehnic de Industrie Alimentara Raluca Ripan
aprox.
855 m
Colegiul Național Pedagogic Gheorghe Lazăr
aprox.
878 m
Colegiul National Pedagogic Gheorghe Lazar
aprox.
881 m
Universitatea Crestina Dimitrie Cantemir
aprox.
457 m
Universitatea Crestina "Dimitrie Cantemir"
aprox.
461 m
UBB Stiinte Economice si Gestiunea Afacerilor
aprox.
637 m
Facultatea de Stiinte Economice si Gestiunea Afacerilor (en)
aprox.
658 m
FSEGA
aprox.
658 m
Facultatea de Psihologie si Stiinte ale Educatiei
aprox.
1197 m
Facultatea de Sociologie si Asistenta Sociala
aprox.
1201 m
Facultatea de Sociologie (UBB)
aprox.
1204 m
UT Facultatea de Instalatii
aprox.
1261 m
Universitatea Tehnica din Cluj
aprox.
1311 m
UBB Facultatea de Stiinte Politice
aprox.
1469 m
Facultatea de Stiinte Politice si Administrative (UBB)
aprox.
1482 m
Universitatea Spiru Haret
aprox.
1994 m
Profi
aprox.
367 m
Profi
aprox.
428 m
Profi Marasti
aprox.
607 m
Profi
aprox.
607 m
Auchan
aprox.
732 m
Iulius Mall
aprox.
760 m
Kaufland
aprox.
814 m
Carrefour
aprox.
912 m
Carrefour Market
aprox.
917 m
Profi - Adina
aprox.
939 m
Carrefour
aprox.
959 m
Lidl
aprox.
1039 m
Profi
aprox.
1183 m
Lidl
aprox.
1187 m
puiul de gaesti
aprox.
1269 m
Parcare
aprox.
112 m
Parcare
aprox.
140 m
Parcare
aprox.
150 m
Parcare privata
aprox.
179 m
Parcare
aprox.
231 m
Parcare
aprox.
310 m
Parcare
aprox.
325 m
Parcare privata
aprox.
330 m
Parcare privata
aprox.
397 m
Parcare
aprox.
416 m
Parcare
aprox.
442 m
Parcare privata
aprox.
443 m
Parcare privata
aprox.
448 m
Parcare
aprox.
488 m
parcare
aprox.
491 m
Parc
aprox.
273 m
Parc
aprox.
273 m
Parc
aprox.
342 m
Parcul Aurel Vlaicu
aprox.
396 m
Parc
aprox.
528 m
Parc
aprox.
539 m
Parc
aprox.
551 m
Parc
aprox.
556 m
Iulius Park
aprox.
592 m
Parc
aprox.
619 m
Parc
aprox.
624 m
Parc
aprox.
627 m
Parc
aprox.
649 m
Parc
aprox.
656 m
Parc
aprox.
670 m
Teren sportiv
aprox.
540 m
Teren sportiv
aprox.
638 m
Teren sportiv
aprox.
685 m
Teren sportiv
aprox.
719 m
Teren sportiv
aprox.
777 m
Teren sportiv
aprox.
778 m
Teren sportiv
aprox.
782 m
Teren sportiv
aprox.
813 m
Teren sportiv
aprox.
827 m
Teren sportiv
aprox.
833 m
Teren sportiv
aprox.
859 m
Teren sportiv
aprox.
941 m
Teren sportiv
aprox.
975 m
Enjoy Tennis Club
aprox.
1062 m
Teren sportiv
aprox.
1221 m
Piata Ira
aprox.
1134 m
Piata 1848
aprox.
1763 m
Farmacia Mihon
aprox.
410 m
Farmacia Myriad
aprox.
428 m
Catena
aprox.
430 m
Farmacia Catena
aprox.
441 m
Richter
aprox.
508 m
Helpnet
aprox.
612 m
Farmacia Remedium
aprox.
707 m
Catena
aprox.
741 m
Sensiblu
aprox.
830 m
Farmacia Elixir
aprox.
844 m
Sensiblu
aprox.
854 m
Catena
aprox.
900 m
Remedium
aprox.
929 m
Ronatura
aprox.
931 m
Piata Marasti
aprox.
944 m
Med Center
aprox.
590 m
Centrul de Ingrijiri Paliative
aprox.
698 m
Optilens
aprox.
770 m
SmartDental (en)
aprox.
805 m
Policlinica Radusan
aprox.
1006 m
Novia Cosmetic Harmony Clinic
aprox.
1095 m
Clinica Interservisan (en)
aprox.
1119 m
Dispensar Gheorghieni
aprox.
1357 m
Pr. Theodora
aprox.
1549 m
Policlinica de Ginecologie Gynia
aprox.
1579 m
Spitalul Clinic de Ortopedie
aprox.
1645 m
Spitalul de Ortopedie
aprox.
1646 m
Spitalul de Hematologie
aprox.
1654 m
Spitalul Clinic Municipal Cluj Napoca
aprox.
1735 m
Centrul Medical de Gastroenterologie, Hepatologie și Endoscopie Digestivă (en)
aprox.
1737 m
Impact Restaurant & Events
aprox.
249 m
"Sapca lui Ceausescu"
aprox.
267 m
Siret Bistro
aprox.
294 m
Pizzeria Piccola
aprox.
296 m
Placintarie
aprox.
311 m
PitStop
aprox.
340 m
PocoLoco
aprox.
396 m
Cantina Marasti
aprox.
408 m
McMilano
aprox.
559 m
Cantina si Restaurantul studentesc FSEGA
aprox.
656 m
Darius Pizza
aprox.
747 m
Engels City
aprox.
760 m
Subway
aprox.
777 m
Cantinna
aprox.
781 m
Pizzeria Toskana
aprox.
921 m
Charlie Bar
aprox.
357 m
Starbucks
aprox.
768 m
Graffiti
aprox.
1063 m
Conapt Prodcom SRL
aprox.
1318 m
Zetta Caffe
aprox.
1445 m
La Colt
aprox.
1447 m
Bistro 23
aprox.
1471 m
CHOCODOR
aprox.
1668 m
Phil's
aprox.
1865 m
LC Learning & Consulting
aprox.
1908 m
Cluj Hub
aprox.
1918 m
Bar
aprox.
427 m
Terasa Miraj
aprox.
430 m
Sc Rampera SRL
aprox.
450 m
Pisti Bar
aprox.
1000 m
Cafe Bar
aprox.
1014 m
Cafe La Roca
aprox.
1023 m
Bar
aprox.
1037 m
Infinity Games
aprox.
1303 m
Blue Galaxy
aprox.
1498 m
The Office Wine Bar
aprox.
1536 m
Milenium Bar
aprox.
1775 m
Ares
aprox.
1864 m
O'Beer Irish Pub
aprox.
1767 m
Raiffeisen Bank
aprox.
329 m
Bancpost
aprox.
361 m
BRD
aprox.
390 m
Banca Transilvania
aprox.
420 m
Banca Comerciala Carpatica
aprox.
493 m
Banca Transilvania
aprox.
506 m
BRD
aprox.
519 m
BCR
aprox.
581 m
UniCredit
aprox.
582 m
CEC Bank
aprox.
596 m
CEC Bank
aprox.
597 m
Raiffeisen Bank
aprox.
603 m
Millenium Bank
aprox.
611 m
Volksbank
aprox.
672 m
Piraeus Bank
aprox.
721 m
Arterele principale sunt deservite de mai multe linii de transport în comun, cele mai numeroase găsindu-se pe Strada Aurel Vlaicu (autobuzele 4, 6, 7, 8, 30, M41, M42, M43, dar și troleibuzul 5); pe străzile între Lacuri și Dunării, pe de altă parte, circulă autobuzele 47 și 47B. Cu un plus de atenție, cei care au bicicletă se pot folosi și de acest mijloc de transport, chiar în lipsa pistelor special amenajate "“ asta mai ales pe străzile mai puțin circulate ale cartierului.
Dacă te gândești să te muți în cartierul Între Lacuri, te vei bucura să afli că, cel puțin în ceea ce privește ciclul preșcolar, aici vei avea la dispoziție o varietate de opțiuni de educație "“ aici vei găsi, astfel, mai multe grădinițe, inclusiv cu program prelungit, precum "Așchiuță", "Degețica", dar și Grădinița Creștină "Samariteanul". La capitolul școli, de menționat ar fi Școala Generală "Alexandru Vaida-Voevod". Faptul că în cartier nu se găsește nicio instituție de învățământ superior nu ar trebui să reprezinte un mare punct în minus, având în vedere că studenții pot ajunge cu ușurință în celelalte cartiere ale orașului. Cele mai apropiate facultăți ar fi cele din Mărăști (precum Facultatea de Instalații, Facultatea de Sociologie și Asistență Socială sau Universitatea de Artă și Design din Cluj-Napoca), dar și Facultatea de Științe Economice și Gestiunea Afacerilor din Gheorgheni.
Pentru cumpărăturile de zi cu zi, locuitorii cartierului Între Lacuri au la dispoziție o serie de magazine de dimensiuni mai mici, printre care se numără și un Lidl și un Profi. Cei care doresc să beneficieze de o paletă mai largă de opțiuni pot ajunge cu ușurință atât la Kauflandul din Mărăști, cât și magazinul en-gros Selgros, din Someșeni. Un avantaj important pentru pasionații de shopping este reprezentat de proximitatea centrului comercial Iulius Mall, din Gheorgheni "“ situat în imediata apropiere a lacului ce desparte cele două cartiere. Acesta oferă atât numeroase posibilități în materie de fashion (și nu numai), cât și facilități de petrecere a timpului liber (restaurante, cafenele, cinema). Nu în ultimul rând, aici se găsește și un hipermarket Auchan.
Posesorii de autovehicule care vor să evite eventualele probleme cu găsirea unui loc de parcare și să închirieze un asemenea spațiu de la autoritățile locale se pot interesa cu privire la procedura pe care trebuie s-o urmeze la sediul central al Primăriei municipiului, de pe Strada Moților, nr. 3 (din zona centrală a orașului).
În ceea ce privește posibilitățile de recreere, această zonă a capitalei Transilvaniei stă mult mai bine comparativ cu altele. O importantă oportunitate este dată, bineînțeles, chiar de lacurile care îi dau și numele, unde se pot face plimbări cu barca (sau cu piciorul) și unde se poate și pescui (Lacul Gheorgheni fiind deosebit de popular la acest capitol). Locuitorii cartierului au la dispoziție, de asemenea, și Parcul Aurel Vlaicu, de pe strada cu același nume. Pasionații de sport au la dispoziție, pe lângă cele câteva săli de fitness din cartier, și clubul sportiv Sky Fly (de pe Strada Dunării), unde pot urma cursuri de parapantă, alpinism, escaladă, ski sau snowboard. În apropiere se găsește și Crossfit Cluj-Napoca. Una dintre puținele săli specializate în acest sport din țară.
La fel ca în alte zone ale capitalei Transilvaniei, în Între Lacuri nu se găsește niciun spital de stat. Locuitorii cartierului au, însă, la dispoziție o serie de cabinete medicale particulare, atât pe partea de medicină de familie, cât și cu specializări precum oftalmologie, pshihologie, stomatologie etc. De menționat ar fi, spre exemplu, cabinetul Florisan, specializat în recuperare medicală și întreținere medicală, dar și centrul medical Chiromedica, ambele amplasate pe Strada Oltului. Pentru urgențele medicale sau investigațiile mai detaliate, clujenii din Între Lacuri pot merge atât la spitalele din centrul orașului, cât și la Spitalul Clinic Municipal, din zona Bulgaria, sau la Spitalul Militar de Urgență "Doctor Constantin Papilian", din Gheorgheni (situat aproape de granița cu Centrul).
Dacă ești un pasionat al ieșirilor în oraș, te vei bucura să afli că zona Între Lacuri oferă câteva oportunități locuitorilor săi. La acest capitol, de menționat ar fi restaurantele "Vargaquattro" (de pe Strada Dunării, nr. 74), "Darius Pizza" (de pe Strada Dunării, nr. 78), dar și "Siret Bistro" (de pe Strada Siretului, nr. 2-4) și "Dananca" (de pe Strada Aurel Vlaicu, nr. 124). Alte variante interesante pentru o ieșire în oraș cu prietenii sunt disponibile, desigur, și în cartierele învecinate.
Dacă ai nevoie să efectuezi o operațiune bancară, în zona Între Lacuri nu ai prea multe opțiuni. Poți conta, însă, pe opțiunile oferite de cartierul învecinat Gheorgheni, unde poate fi găsit un sediu Banca Transilvania (pe Strada Nicolae Titulescu, nr. 163), dar și două sucursale BCR "“ una pe Strada Nicolae Titulescu, nr. 163, iar cealaltă, pe Bulevardul Nicolae Titulescu, nr. 4 (aproape de granița cu zona Andrei Mureșanu). Consultă harta și află unde sunt localizate și alte bănci sau ATM-uri în zona Între Lacuri:
Înainte să pleci...
Ești sigur că ai văzut și aceste proprietăți?
1.512.500 €
Cluj-Napoca, Zorilor
500 mp utili
2E
2003
1.500.000 €
Cluj-Napoca, Iris
Logistică
1.490.000 €
Cluj-Napoca, Între Lacuri
310 mp utili
Clădire de birouri
1E
Creează alertă
Salvează căutarea ca să primești pe email ultimele anunțuri publicate
Spații comerciale cu 4+ camere de vânzare în zona Între Lacuri, Cluj-Napoca
Cere detalii prin email
*
*
*
*
Detaliile tale de contact vor fi partajate cu Napoca Imobiliare