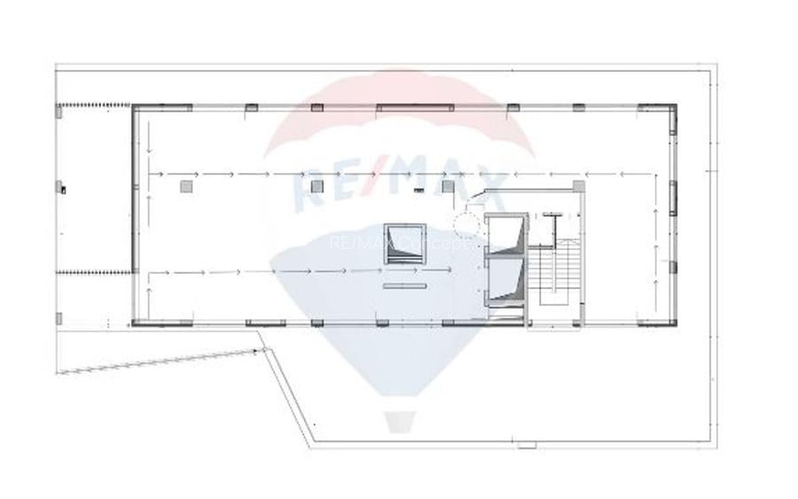
Birou disponibil spre vânzare – 347,4 mp utili + terasă panoramică privată de 298.8 mp. La cerere, suprafața poate fi extinsă prin alăturarea spațiului vecin, care dispune de 347,5 mp utili și terasă de 317,5 mp.
La etajul 5 al unei clădiri moderne de birouri, recent finalizată, se află acest spațiu generos și luminos, ce combină eleganța designului contemporan cu funcționalitatea. Suprafețele vitrate asigură luminozitate naturală pe tot parcursul zilei și o legătură directă cu exteriorul.
Imobilul are regim de înălțime S+P+5E, este dotat cu lifturi de mare viteză și sisteme de climatizare, ventilație și încălzire de ultimă generație, ceea ce garantează confortul ocupanților.
Beneficii și facilități:
Terase și balcoane pe fiecare nivel – spații ideale pentru pauze, discuții informale sau relaxare;
Conexiune rapidă cu principalele artere: centrul orașului, Florești, Oradea, Autostrada A3 și Zalău;
Poziționare excelentă, lângă Vivo Mall, supermarketuri, showroom-uri și reprezentanțe auto.
Spațiul se livrează în stadiu semifinisat, oferind viitorului proprietar posibilitatea de a configura compartimentarea în funcție de nevoile proprii.
Detalii de preț:
Birou: 2.200 €/mp + TVA
Terasă: 450 €/mp + TVA
Parcare subterană: 11.000 €/loc + TVA
Se acceptă credit ipotecar, cu un avans minim de 30%.
Utilizări recomandate: sedii corporate sau de reprezentanță, hub-uri de coworking, showroom-uri sau spații comerciale, săli de fitness, beneficiind de suprafața amplă și de posibilitățile multiple de compartimentare.
Sediul central - Timișoara
Bulevardul Victor Babeș nr. 2, 300230, Timișoara, România
Tel: +40.374.40.44.98 / Fax: +40.256.401.179
Email: suport@imobiliare.ro
Luni - Vineri 08:00 - 20:00
Punct de lucru - București: Iride Business Park, Bld. Dimitrie
Pompeiu 9-9A, Clădirea B2B,
020335, Sector 2, București, România
CONTACT
Sediul central - Timișoara
Bulevardul Victor Babeș nr. 2, 300230, Timișoara, România
Tel: +40.374.40.44.98 / Fax: +40.256.401.179
Email: suport@imobiliare.ro
Luni - Vineri 08:00 - 20:00
Punct de lucru - București: Iride Business Park, Bld. Dimitrie
Pompeiu 9-9A, Clădirea B2B,
020335, Sector 2, București, România
Sună acum și cere detalii sau programează o vizionare.
Cere detalii prin email
*
*
*
*
Stații autobuz
Stații tramvai
Gradinițe
Școli
Supermarket
Mall
Parcări
Parcuri
Terenuri sport
Spital
Farmacie
Restaurant
Cafenea
Bar
Pub
Bancă
VIVO!
aprox.
335 m
Disp. Clabucet
aprox.
420 m
Statia Clabucet -dus Linia 1
aprox.
437 m
Bucla de intoarcere a autobuzelor/troleibuzelor
aprox.
455 m
Disp.Clabucet
aprox.
465 m
Statia Clabucet -intors Linia1
aprox.
470 m
Statia Bucium - Capat linie 9, 24, 29, 52, 102
aprox.
470 m
Colina
aprox.
472 m
Bucium
aprox.
488 m
VIVO!
aprox.
501 m
Nodul N Nord
aprox.
520 m
Nod Omega
aprox.
604 m
Statia Clabucet-capat linie 43, 43b, 1, 6, 25, 101, 102
aprox.
618 m
Statia Clabucet I -dus Linia 1, 102, 25
aprox.
642 m
Garbau
aprox.
677 m
Clabucet
aprox.
521 m
Clabucet
aprox.
662 m
Ravasului
aprox.
1063 m
Minerva
aprox.
1298 m
Parang
aprox.
1328 m
Statia Gr. Alexandrescu, Linia 6
aprox.
1525 m
Calvaria
aprox.
1706 m
Statia Gr Alexandrescu1TRV, 102
aprox.
1708 m
Grigore Alexandrescu
aprox.
1732 m
Gradinita Dumbrava Minunata
aprox.
689 m
Grăd.Dumbrava minunată
aprox.
1050 m
Grădinița "Albinuța"
aprox.
1114 m
Gradinita Albinuta
aprox.
1114 m
Gradinita cu orar prelungit nr. 72
aprox.
1196 m
Grăd.Căsuța poveștilor2 / Grigore Alexandrescu 21
aprox.
1211 m
Grăd.Academia piticilor
aprox.
1333 m
Gradinita Licurici str. 1
aprox.
1550 m
Grăd.Albinuța
aprox.
1674 m
Gradinita Licurici
aprox.
1719 m
Gradinita Speciala
aprox.
1722 m
Grăd.Buburuza
aprox.
1882 m
Gradinita Buburuza
aprox.
1890 m
Grăd.Mica Sirenă1
aprox.
1897 m
Grăd.Rază de soare str. 2
aprox.
1916 m
Școala Generală Nr. 29 / "Octavian Goga"
aprox.
996 m
Scoala Octavian Goga
aprox.
1021 m
Scoala Iuliu Hatieganu
aprox.
1188 m
Școala Iuliu Hațieganu
aprox.
1193 m
Scoala Generala Nr.17, Ion Creangă
aprox.
1373 m
Scoala Ion Creanga
aprox.
1380 m
Scoala Constantin Brancoveanu
aprox.
1583 m
Scoala Generala Nr. 3
aprox.
1583 m
Școala Liviu Rebreanu / Liceul Liviu Rebreanu
aprox.
1886 m
Scoala Liviu Rebreanu
aprox.
1886 m
Scoala Generala Eugen Pora
aprox.
1932 m
Liceul Teoretic Eugen Pora
aprox.
1942 m
Liceul Teologic Adventist
aprox.
1993 m
Praktiker
aprox.
239 m
Decathlon
aprox.
259 m
VIVO!
aprox.
395 m
Profi
aprox.
696 m
Cora
aprox.
752 m
Metro
aprox.
839 m
Profi City
aprox.
1047 m
Complex Comercial Flora
aprox.
1216 m
Profi
aprox.
1248 m
Carrefour Market
aprox.
1311 m
Penny Market
aprox.
1341 m
Complex Nora
aprox.
1567 m
La doi Pasi
aprox.
1604 m
Profi
aprox.
1687 m
Winmarkt
aprox.
1773 m
Complex comercial Polus
aprox.
408 m
Parcare
aprox.
215 m
Parcare
aprox.
246 m
Parcare Praktiker
aprox.
266 m
Parcare
aprox.
280 m
Parcare
aprox.
387 m
Parcare
aprox.
467 m
Parcare Polus Center
aprox.
474 m
Parcare
aprox.
486 m
Parcare privata
aprox.
590 m
Parcare
aprox.
673 m
Parcare
aprox.
680 m
Parcare Cora
aprox.
715 m
Parcare
aprox.
728 m
Parcare
aprox.
796 m
Parcare
aprox.
799 m
Parcul Colina
aprox.
213 m
Parcul Colina
aprox.
223 m
Parc
aprox.
353 m
Parc
aprox.
442 m
Parc
aprox.
506 m
Parc
aprox.
527 m
Parc
aprox.
643 m
Parc
aprox.
649 m
Parc
aprox.
694 m
Patinoar Fiesta Sport
aprox.
856 m
Parc
aprox.
876 m
Parc
aprox.
921 m
Parc
aprox.
983 m
Parc
aprox.
1003 m
Parc
aprox.
1049 m
Playground Decathlon
aprox.
318 m
Teren Decathlon
aprox.
321 m
Teren sportiv
aprox.
434 m
Teren sportiv
aprox.
449 m
Teren sportiv
aprox.
453 m
Teren sportiv
aprox.
468 m
Teren sportiv
aprox.
511 m
Teren sportiv
aprox.
1053 m
Teren sportiv
aprox.
1074 m
Teren sportiv
aprox.
1218 m
Teren sportiv
aprox.
1229 m
Teren sportiv
aprox.
1232 m
Teren sportiv
aprox.
1301 m
Teren sportiv
aprox.
1315 m
Teren sportiv
aprox.
1324 m
Clădirea Spitalului de Urgență nefinalizata
aprox.
420 m
Farmacie
aprox.
1589 m
Spitalul Clinic de Urgenta pentru copii Cluj-Napoca Neonatologie-prematuri
aprox.
1819 m
Cabinet medical universitar
aprox.
1986 m
Lumia
aprox.
691 m
Galenus 2
aprox.
962 m
Donna
aprox.
1203 m
Cynara
aprox.
1220 m
Farmacia Richter
aprox.
1302 m
Farmacia Viva
aprox.
1374 m
Farmacia Europa
aprox.
1478 m
Catena
aprox.
1520 m
Help Net
aprox.
1584 m
Viscum
aprox.
1856 m
Ropharma
aprox.
1899 m
Viva
aprox.
1908 m
Cariatida Drogherie
aprox.
1975 m
Marty Restaurants
aprox.
284 m
Salad Box
aprox.
555 m
KFC
aprox.
565 m
Pizza Hut
aprox.
571 m
Food Court
aprox.
573 m
McDonald's
aprox.
589 m
Casa Piratilor (en)
aprox.
909 m
Restaurant Casa Piratilor
aprox.
931 m
Restaurant & Pizza Daniel Berar
aprox.
963 m
Restaurant Sophia
aprox.
1120 m
Gradina de Vara Pedas
aprox.
1121 m
Restaurant Roata Faget
aprox.
1162 m
Restaurant-terasa Roata
aprox.
1171 m
Best Western Plus Fusion Hotel
aprox.
1262 m
Restaurant/disco "Sun"
aprox.
1280 m
Bistro
aprox.
1062 m
Marul de Aur
aprox.
1503 m
Cafe Bar
aprox.
1903 m
Seven
aprox.
1869 m
Old Pub
aprox.
1883 m
Infinity Games
aprox.
1927 m
Raiffeisen Bank
aprox.
685 m
Raiffeisen Bank
aprox.
916 m
OTP Bank
aprox.
940 m
BRD
aprox.
1045 m
Bancpost
aprox.
1132 m
BCR
aprox.
1139 m
Banca Transilvania
aprox.
1277 m
ING
aprox.
1296 m
Raiffeisen Bank
aprox.
1437 m
Banca Comerciala Carpatica
aprox.
1439 m
Millenium Bank
aprox.
1454 m
Piraeus Bank
aprox.
1454 m
OTP Bank
aprox.
1461 m
Volksbank
aprox.
1520 m
Intesa Sanpaolo Bank
aprox.
1527 m
Una dintre principalele artere care străbate Mănășturul, pe direcția vest "“ nord-est, este Strada Primăverii; acesteia i se adaugă și Strada Câmpului și Strada Frunzișului, ambele pe direcția nord "“ sud-est. Cartierul este deservit de numeroase linii de transport în comun (atât autobuze, cât și troleibuze și tramvaie), menite să facă legătura cu celelalte zone ale orașului "“ și în mod special cu centrul.
Cartierul Mănăștur reprezintă o bună alegere pe termen lung din punctul de vedere al oportunităților de educație. În primă fază, în această zonă a orașului vei găsi numeroase grădinițe, atât de stat, cât și particulare. Ulterior, aici vei putea alege între numeroase școli (primare și gimnaziale), dar și licee. Pentru cei interesați, cartierul oferă și opțiuni în materie de învățământ superior. Este vorba, în primul rând, de Universitatea de Științe Agricole și Medicină Veterinară din Cluj-Napoca, amplasată în extrema de nord-est a cartierului, aproape de granița cu Plopilor. De menționat este și Universitatea "Bogdan Vodă", al cărei sediu se găsește pe strada Grigore Alexandrescu .
În ciuda faptului că poate fi considerat cel mai mare cartier al Clujului, în Mănăștur nu se găsește niciun mall propriu-zis. Cu toate acestea, de aici se poate ajunge cu ușurință atât la mallul Vivo!, din Florești, cât și la Platinia Shopping Center (amplasat în Plopilor, însă foarte aproape de granița cu Mănășturul și Centrul). În interiorul cartierului, o destinație mai apropiată de cumpărături poate fi centrul comercial Winmarkt Cluj (fostul "Big" Mănăștur), atât pe partea de fashion și cosmetice, cât și în materie de mobilă și electrocasnice. Tot aici se află și un Carrefour Market, o farmacie Sensiblu, precum și o sală de fitness. Alte opțiuni ar fi centrele comerciale Sirena (din apropierea stației Clabucet) și Flora (din vecinătatea pieței cu același nume). În Mănăștur se găsește și un hipermarket Kaufland (în zona Câmpului), alături de numeroase supermarketuri "“ dintre care unele afiliate unor rețele internaționale, precum Lidl, Profi sau Billa. Locuitorii acestei zone beneficiază și de câteva piețe amenajate, precum Flora sau Ion Meșter.
Pentru cei care au mașină, găsirea unui loc de parcare stabil în cartier poate fi o problemă "“ asta mai ales în zonele mai intens circulate și unde se află blocuri cu multe etaje. Dacă vrei să eviți situațiile neplăcute odată mutat aici, poți închiria un loc de parcare de la autoritățile locale (cererile pot fi depuse la Primăria de cartier, de pe Strada Ion Meșter, nr. 10).
Dacă ești pasionat de sport, te vei bucura să afli că în Mănăștur se află cea mai mare bază sportivă din Cluj-Napoca, anume Baza Sportivă "Unirea". Amplasat la marginea vestică a cartierului, un alt important spațiu de agrement este cunoscut sub denumirea "La terenuri". În ciuda amenajării sale deficitare, această zonă continuă să fie frecventată, îndeosebi în weekend, de către cei pasionați de activități în aer liber. Tot în Mănăștur găsești și parcurile "Colina" sau "Primăverii", cel din urmă fiind folosit și pentru organizarea unor evenimente culturale. Cartierul oferă și avantajul unui acces rapid către pădurea Făget "“ care poate fi destinația perfectă pentru o ieșire de weekend.
Dacă te gândești să te muți în Mănăștur, e bine să știi că strict în interiorul acestuia nu vei găsi, din păcate, niciun spital de stat "“ ceea ce nu înseamnă, însă, că vei duce lipsă de opțiuni în materie de servicii medicale. Asta pentru că locuitorii cartierului pot ajunge cu ușurință în zona centrală, unde vor avea acces la o serie de asemenea unități medicale. Un astfel de exemplu este Spitalul Clinic Județean de Urgență Cluj-Napoca, care este deschis 24 de ore din 24 "“ la fel ca și Spitalul Clinic Municipal Cluj-Napoca. De menționat sunt și Spitalul Universitar C.F. Cluj-Napoca, Spitalul de Pediatrie, Spitalul Clinic de Boli Infecțioase Cluj-Napoca, Spitalul de Pneumologie "Leon Daniello", dar și Spitalul Clinic de Recuperare Cluj-Napoca. În cartierul Mănăștur "“ sau în imediata sa apropiere "“ vei găsi, de asemenea, și o serie de clinici private, cum ar fi Medstar, Synevo, Union Medical, Centrul Medical Medexpert sau Centrul Medical "Jamgossian".
La capitolul gastronomie, locuitorii cartierului Mănăștur au la dispoziție, în proximitatea casei, și alte câteva variante demne de luat în seamă. Printre acestea se numără restaurantul "Casa Piraților", amplasat pe Strada Răvașului, nr. 16 (acesta dispune de terasă și oferă și servicii de livrare la domiciliu), dar și restaurantul "Valahia", de pe Strada Govora, nr. 27. În afară de restaurante, în această zonă a Clujului se mai găsesc, desigur, și o serie de fast food-uri, inclusiv o unitate McDonald's (pe Strada Primăverii, nr. 74). Alte opțiuni interesante pentru a lua masa în oraș oferă, desigur, și zona centrală.
La capitolul bănci și ATM-uri, este de așteptat ca această zonă a orașului să fie destul de bine deservită, date fiind dimensiunile sale. Spre exemplu, într-un areal destul de restrâns, anume în apropiere de intersecția dintre Strada Primăverii și Strada Izlazului, vei putea găsi patru sedii de bănci, anume un BRD și un BCR, alături de o sucursală Banca Românească și una a Băncii Transilvania. Consultă harta și află unde sunt localizate și alte bănci sau ATM-uri în cartierul Mănăștur:
Înainte să pleci...
Ești sigur că ai văzut și aceste proprietăți?
1.500.000 €
Cluj-Napoca, Andrei Mureșanu
332 mp utili
Clădire de birouri
2E
907.407 €
Cluj-Napoca, Mănăștur
347,5 mp utili
Clădire de birouri
5E
379.470 €
Cluj-Napoca, Mărăști
194,6 mp utili
Bloc de apartamente
6E
1.490.000 €
Cluj-Napoca, Mărăști
271,76 mp utili
Clădire de birouri
1E
1.500.000 €
Cluj-Napoca, Andrei Mureșanu
335 mp utili
Casă/Vilă
2E
240.000 €
Cluj-Napoca, Central
105 mp utili
Clădire de birouri
Creează alertă
Salvează căutarea ca să primești pe email ultimele anunțuri publicate
Spații comerciale cu o cameră de vânzare în zona Mănăștur, Cluj-Napoca
Cere detalii prin email
*
*
*
*
Detaliile tale de contact vor fi partajate cu Re/max Concept