Welt Imobiliare va recomanda la vanzare un spatiu comercial sau de birouri intr-un proiect imobiliar deosebit, situat in cartierul Marasti - zona Bulgaria, la cateva minute de Kaufland sau Hornbach.
Imobilul dispune de apartament de 1, 2 si 3 camere si 2 spatii comerciale, fiind predate finisate in iulie 2025.
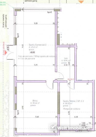
Spatiile comerciale se vor preda semifinisate, cu geamuri termopan tip vitrina, incalzire in pardoseala si centrala de imobil.
Suprafeta utila a spatiului este de intre 127 mp utili fiind semicompartimentat in 3 insaperi mari si un sas/grup sanitar.
Spatiul are prevazut un loc de parcare exterior acoperit, ce poate fi achizitionat separat.
Daca se doreste garaj, pretul unui garaj subteran este de 15.000 euro fara TVA.
Avansul minim este de 15% iar pentru avans mai mare de 50%, pretul se poate negocia usor.
Pentru mai multe detalii sau vizionarea apartamentelor, nu ezitati sa ne contactati.
Sediul central - Timișoara
Bulevardul Victor Babeș nr. 2, 300230, Timișoara, România
Tel: +40.374.40.44.98 / Fax: +40.256.401.179
Email: suport@imobiliare.ro
Luni - Vineri 08:00 - 20:00
Punct de lucru - București: Iride Business Park, Bld. Dimitrie
Pompeiu 9-9A, Clădirea B2B,
020335, Sector 2, București, România
CONTACT
Sediul central - Timișoara
Bulevardul Victor Babeș nr. 2, 300230, Timișoara, România
Tel: +40.374.40.44.98 / Fax: +40.256.401.179
Email: suport@imobiliare.ro
Luni - Vineri 08:00 - 20:00
Punct de lucru - București: Iride Business Park, Bld. Dimitrie
Pompeiu 9-9A, Clădirea B2B,
020335, Sector 2, București, România
Sună acum și cere detalii sau programează o vizionare.
Cere detalii prin email
*
*
*
*
Stații autobuz
Stații tramvai
Școli
Universități
Gradinițe
Supermarket
Parcări
Parcuri
Terenuri sport
Piețe publice
Spital
Farmacie
Restaurant
Bar
Cafenea
Bancă
Campina Nord
aprox.
227 m
Campina Sud
aprox.
252 m
Statia Bobalna I, Linia 23, 36, 48, 50
aprox.
453 m
Bobalnei Est
aprox.
456 m
Autogara Sens Vest
aprox.
475 m
Bobalnei Vest
aprox.
498 m
Statia Plevnei, Linia 36, 52
aprox.
532 m
Plevnei Nord
aprox.
577 m
Plevnei Sud
aprox.
594 m
Statia Campul Painii, Linia 23, 34, 50, 52
aprox.
781 m
Clujana
aprox.
791 m
Campul Painii
aprox.
796 m
SINTEROM Sud
aprox.
797 m
Halta Marasti
aprox.
801 m
SINTEROM Nord
aprox.
830 m
Statia SINTEROM1, Linia 100, 102, 23, 48, 50
aprox.
806 m
Sinterom Sud
aprox.
810 m
Sinterom Nord
aprox.
819 m
Termorom Nord
aprox.
1048 m
Statia TERAPIA1 TRV, Linia 100, 102, 23, 26, 48, 50
aprox.
1139 m
Terapia Sud
aprox.
1173 m
Termorom Sud
aprox.
1176 m
Statia TERMOROM1 TRV, Linia 100, 102, 23, 48, 50
aprox.
1203 m
Terapia Nord
aprox.
1251 m
Statia ERS CUG 1 TRV, Linia 100, 102, 23, 48, 50
aprox.
1417 m
ERS CUG Sud
aprox.
1441 m
ERS CUG Nord
aprox.
1473 m
Statia Oasului 1 TRV, Linia 100, 102, 26, 39
aprox.
1552 m
Orasului Sud
aprox.
1565 m
Oasului Nord
aprox.
1565 m
Scoala Speciala de Meserii
aprox.
665 m
Palatul Copiilor
aprox.
714 m
Școala Ion Agârbiceanu
aprox.
812 m
Scoala Ion Agarbiceanu
aprox.
812 m
Grup Școlar Aurel Vlaicu
aprox.
953 m
Universitatea de Artă și Design
aprox.
1029 m
Colegiul Național George Coșbuc
aprox.
1032 m
Royal School in Transilvania
aprox.
1205 m
Școala Alexandru Vaida
aprox.
1374 m
Scoala Alexandru Vaida-voevod
aprox.
1509 m
Liceul Victor Babeș
aprox.
1547 m
Colegiul Tehnic de Transporturi Transilvania
aprox.
1665 m
Grupul Scolar de Transporturi / Colegiul Tehnic Raluca Ripan
aprox.
1692 m
Colegiul Tehnic Anghel Saligny
aprox.
1819 m
Colegiul Tehnic "Anghel Saligny"
aprox.
1827 m
UT Facultatea de Mecanica
aprox.
944 m
Facultatea de Ingineria Materialelor si a Mediului
aprox.
959 m
Universitatea Crestina Dimitrie Cantemir
aprox.
1527 m
Universitatea Crestina "Dimitrie Cantemir"
aprox.
1528 m
UBB Stiinte Economice si Gestiunea Afacerilor
aprox.
1727 m
Facultatea de Stiinte Economice si Gestiunea Afacerilor (en)
aprox.
1739 m
FSEGA
aprox.
1739 m
Facultatea de Sociologie si Asistenta Sociala
aprox.
1753 m
Facultatea de Psihologie si Stiinte ale Educatiei
aprox.
1759 m
Facultatea de Sociologie (UBB)
aprox.
1763 m
UT Facultatea de Instalatii
aprox.
1773 m
Universitatea Tehnica din Cluj
aprox.
1918 m
Grăd.Lizuca str. 1
aprox.
949 m
Grăd.Bambi str.1
aprox.
953 m
Grăd.Lizuca
aprox.
1014 m
Grădinita Așchiuță str. 2
aprox.
1064 m
Grăd.Degețica corp B
aprox.
1108 m
Grăd.Degețica
aprox.
1147 m
Gradinita
aprox.
1191 m
Grăd.Degețicastr.1
aprox.
1307 m
Grădinita Așchiuță
aprox.
1372 m
Grăd.Floare de iris
aprox.
1689 m
Grăd.Așchiuță str. 1
aprox.
1731 m
Grăd.Lizuca str. 2
aprox.
1744 m
Grăd.Bambi str.2
aprox.
1802 m
Grăd.Floare de iris str. 1 corp A+B
aprox.
1808 m
Grăd.Bambi
aprox.
1832 m
Profi
aprox.
867 m
Kaufland
aprox.
889 m
Profi Marasti
aprox.
1311 m
Profi
aprox.
1311 m
Profi - Adina
aprox.
1395 m
Auchan Iris
aprox.
1421 m
Carrefour Market
aprox.
1482 m
Profi
aprox.
1492 m
Carrefour
aprox.
1514 m
Lidl
aprox.
1529 m
Lidl
aprox.
1590 m
Carrefour
aprox.
1604 m
Auchan
aprox.
1834 m
Iulius Mall
aprox.
1888 m
Parcare
aprox.
599 m
Parcare
aprox.
608 m
Parcare
aprox.
613 m
Parcare
aprox.
616 m
Parcare
aprox.
629 m
Parcare
aprox.
674 m
Parcare
aprox.
685 m
Parcare
aprox.
731 m
Parcare
aprox.
733 m
Parcare
aprox.
763 m
Parcare privata
aprox.
818 m
Parcare privata cu plata
aprox.
858 m
Parcare privata
aprox.
863 m
Parcare privata
aprox.
871 m
Parcare
aprox.
898 m
Parc
aprox.
405 m
Parc
aprox.
550 m
Parc
aprox.
570 m
Parc
aprox.
662 m
Parc
aprox.
717 m
Parc
aprox.
738 m
Parc
aprox.
745 m
Strandul Clujana (S.C. Complex Transilvan), Stadion
aprox.
810 m
Parc
aprox.
815 m
Parc
aprox.
920 m
Parc
aprox.
927 m
Parcul Aurel Vlaicu
aprox.
944 m
Parc de copii
aprox.
952 m
Junior Residence Park
aprox.
972 m
Parc
aprox.
986 m
Teren sportiv
aprox.
669 m
Teren sportiv
aprox.
678 m
Teren sportiv
aprox.
740 m
Teren sportiv
aprox.
748 m
Teren sportiv
aprox.
1360 m
Teren sportiv
aprox.
1445 m
Teren sportiv
aprox.
1447 m
Teren sportiv
aprox.
1464 m
Teren sportiv
aprox.
1495 m
Teren sportiv
aprox.
1665 m
Teren sportiv
aprox.
1668 m
Teren sportiv
aprox.
1814 m
Teren sportiv
aprox.
1815 m
Teren sportiv
aprox.
1816 m
Teren sportiv
aprox.
1829 m
Piata Ira
aprox.
1357 m
Piata 1848
aprox.
1530 m
Centrul de Ingrijiri Paliative
aprox.
473 m
Spitalul Clinic Municipal Cluj Napoca
aprox.
1048 m
Spital Clinic Municipal
aprox.
1078 m
Med Center
aprox.
1140 m
Optilens
aprox.
1254 m
Policlinica Radusan
aprox.
1369 m
SmartDental (en)
aprox.
1431 m
Pr. Theodora
aprox.
1676 m
Dr. Miu - pediatru
aprox.
1848 m
Catena
aprox.
829 m
Sensiblu
aprox.
835 m
Farmacia Catena
aprox.
861 m
Farmacia Myriad
aprox.
867 m
Richter
aprox.
905 m
Farmacia Elixir
aprox.
1028 m
Catena
aprox.
1211 m
Helpnet
aprox.
1303 m
Sensiblu
aprox.
1323 m
Catena
aprox.
1366 m
Ronatura
aprox.
1382 m
Remedium Farm
aprox.
1411 m
Piata Marasti
aprox.
1443 m
Farmacia Mihon
aprox.
1484 m
Remedium
aprox.
1531 m
Cantina Marasti
aprox.
742 m
PitStop
aprox.
809 m
Cupidon Pizza
aprox.
883 m
Cantina Facultatea de Mecanica
aprox.
903 m
"Sapca lui Ceausescu"
aprox.
951 m
Siret Bistro
aprox.
1000 m
Placintarie
aprox.
1009 m
Cortina Line
aprox.
1085 m
McMilano
aprox.
1130 m
Impact Restaurant & Events
aprox.
1205 m
Pizzeria Montana
aprox.
1210 m
Restaurant Safir
aprox.
1257 m
Pizzeria Piccola
aprox.
1305 m
Place Centrale
aprox.
1368 m
La Stuf
aprox.
1386 m
Sc Rampera SRL
aprox.
869 m
Bar
aprox.
884 m
Cafe Bar
aprox.
1401 m
Bar
aprox.
1432 m
Cafe La Roca
aprox.
1450 m
Terasa Miraj
aprox.
1521 m
The Office Wine Bar
aprox.
1903 m
Charlie Bar
aprox.
1438 m
Conapt Prodcom SRL
aprox.
1504 m
Starbucks
aprox.
1912 m
Bistro 23
aprox.
1967 m
Zetta Caffe
aprox.
1984 m
Banca Transilvania
aprox.
803 m
BRD
aprox.
849 m
Banca Transilvania
aprox.
860 m
Bancpost
aprox.
861 m
BRD
aprox.
894 m
Banca Comerciala Carpatica
aprox.
907 m
Alpha Bank
aprox.
969 m
Banca Transilvania
aprox.
979 m
Raiffeisen Bank
aprox.
1006 m
Banca Comerciala Carpatica
aprox.
1099 m
Garanti Bank
aprox.
1115 m
UniCredit
aprox.
1138 m
CEC Bank
aprox.
1143 m
CEC Bank
aprox.
1153 m
Millenium Bank
aprox.
1169 m
Ca și locuitorii altor zone ale orașului de pe Someș, cei din Mărăști au la dispoziție mai multe mijloace de transport în comun. O noutate este aceea că, recent, a fost inaugurată o bandă specială pentru transportul în comun, ce începe pe Strada Memorandumului și se continuă pe Bulevardul 21 Decembrie 1918, legând astfel zona Centru (unde se află sediul central al Primăriei Cluj-Napoca), de Mărăști (în zona bisericii Sf. Petru).
Mărăștiul oferă o serie de opțiuni demne de luat în calcul (majoritatea instituții de învățământ de stat). De menționat sunt, spre exemplu, Liceul de Muzică "Sigismund Toduță", dar și Școala Populară de Arte "Tudor Jarda". Cartierul prezintă oportunități și în ceea ce privește învățământul superior: aici se găsesc Facultatea de Instalații (parte a Universității Tehnice din Cluj-Napoca), Facultatea de Sociologie și Asistență Socială, Facultatea de Teologie Ortodoxă, dar și Universitatea de Artă și Design din Cluj-Napoca. Copiii tăi vor avea, astfel, la dispoziție câteva opțiuni interesante în pregătirea pentru un viitor parcurs profesional.
Deși clujenii din Mărăști nu au acces, strict între granițele acestui cartier, la oportunitățile oferite de un mall modern, aceștia beneficiază, totuși, de avantajul proximității unor astfel de centre comerciale (situate în cartierele învecinate). Astfel, cei interesați pot ajunge cu ușurință în cartierul Gheorgheni, la Iulius Mall, dar și în Centru, unde vor găsi mai multe destinații interesante de shopping. În ceea ce privește cumpărăturile de zi cu zi, un beneficiu important pentru locuitorii cartierului este reprezentat de faptul că aici se găsește un hipermarket Kaufland. Paleta de opțiuni la acest capitol este completată, desigur, de o serie de magazine de dimensiuni mai mici, atât locale, cât și afiliate unor rețele internaționale.
Pentru aceia care doresc să folosească mașina proprie pentru transportul zilnic, traficul poate reprezenta, cel puțin pe alocuri, o problemă. Pentru a se asigura că au întotdeauna un loc de parcare la dispoziție, șoferii se pot interesa cu privire la procedura legală în asemenea cazuri la sediul Primăriei cartierului Mărăști (amplasat pe Strada Fabricii, nr. 4).
Dacă cei care au copii beneficiază de câteva locuri de joacă special amenajate de către Primărie, ceilalți locuitori ai Mărăștiului nu au la dispoziție o varietate de opțiuni în materie de parcuri. Astfel, unul dintre puținele locuri potrivite pentru a te relaxa în aer liber pe timp de weekend ar fi Parcul Feroviarilor, situat în zona de nord-vest a orașului, chiar lângă Canalul Someșului Mic (unde există și un teren de fotbal). Ca și în alte cartiere ale Clujului, probabil că cele mai facile modalități de a face un sport în aer liber în Mărăști sunt mersul pe jos, joggingul, dar și ciclismul.
La capitolul servicii medicale de stat, de menționat în cartierul Mărăști este Secția de Hematologie a Institutului Oncologic Cluj-Napoca, dar și Institutul de Hematologie "“ ambele situate în zona de vest a cartierului. Pentru urgențele medicale, se poate ajunge cu ușurință și la spitalele de stat din zona centrală a orașului. Această subdiviziune a orașului de pe Someș este destul de bine reprezentată și la capitolul servicii medicale private: în partea de nord-est a cartierului, spre exemplu, se află Centrul de Îngrijiri Paliative "Sfântul Nectarie" Cluj-Napoca, în vreme ce, pe Strada Aurel Vlaicu (nr. 10), se află Centrul Medical Mărăști.
Dacă ești un pasionat al ieșirilor în oraș cu prietenii, te vei bucura să afli că zona Mărăști oferă câteva oportunități interesante locuitorilor săi. La acest capitol, de menționat ar fi restaurantele "Engels City", "Hera", dar și "Old House" . Alte variante interesante pentru o lua masa în oraș sunt disponibile, desigur, și în cartierele învecinate "“ și, mai ales, în zona Centrală.
Dacă ai nevoie să efectuezi o operațiune bancară, te vei bucura să afli că zona Mărăști este destul de bine deservită la acest capitol. Astfel, în afară de câteva bancomate aflate la dispoziția locuitorilorsăi, aici poate fi găsit o sucursală din rețeaua Banca Transilvania, alături de un sediu BRD. Mai multe opțiuni la acest capitol pot fi găsite, desigur, în zona Centrală. Consultă harta și află unde sunt localizate și alte bănci sau ATM-uri în zona Mărăști:
Înainte să pleci...
Ești sigur că ai văzut și aceste proprietăți?
635.000 €
Cluj-Napoca, Mănăștur
304 mp utili
Clădire de birouri
5E
139.000 €
Cluj-Napoca, Iris
43,5 mp utili
Clădire de birouri
362.000 €
Cluj-Napoca, Iris
181 mp utili
Clădire de birouri
125.000 €
Cluj-Napoca, Iris
39 mp utili
Bloc de apartamente
3E
359.000 €
Cluj-Napoca, Grigorescu
98 mp utili
Bloc de apartamente
4E
380.000 €
Cluj-Napoca, Grigorescu
153 mp utili
Clădire de birouri
1E
Creează alertă
Salvează căutarea ca să primești pe email ultimele anunțuri publicate
Spații comerciale cu 3 camere de vânzare în zona Mărăști, Cluj-Napoca
Cere detalii prin email
*
*
*
*
Detaliile tale de contact vor fi partajate cu Welt Imobiliare