Spațiu office 63,8 mp | Etaj 1 | Clădire 2026 | Destinație birou | Parcare

125.000 € + TVA

ICIL, Constanța

Sup. utilă / mp. utili:
63,8 mp
Tip prop.:
Bloc de apartamente
Niv.:
3
An constr.:
2026 (La roșu)
  • • Locație exactă

Descriere spațiu comercial

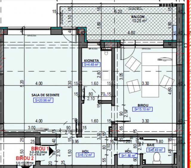
Spațiu de birouri situat la etajul 1 al unei clădiri noi, finalizate în 2026. Destinația „birou” este menționată în acte, fiind potrivit pentru sediu firmă sau activități profesionale. Spațiul 1 – 63,8 mp utili total 53,55 mp utili interior terasă 10,25 mp 63,8 mp suprafață utilă totală Compartimentare: 2 încăperi de birou baie chicinetă hol Se pretează pentru firme de IT, contabilitate, consultanță, arhitectură, servicii juridice sau alte activități de birou. Poate fi adaptat și pentru cabinete (în funcție de specific și reglementări). Este potrivit pentru activități care presupun lucru cu publicul. Spațiul se predă „la roșu”, ceea ce permite configurarea, compartimentarea și finisarea în funcție de activitate și necesități. Există posibilitatea achiziționării unui al doilea spațiu, situat pe același nivel, lipit de primul: Spațiul 2 – 61,2 mp utili total 52 mp utili interior terasă 9,20 mp 61,2 mp suprafață utilă totală Compartimentare: sală de lucru cu zonă de recepție birou separat baie hol Prin achiziționarea ambelor unități se poate obține o suprafață totală utilă de aproximativ 125 mp (inclusiv terase), potrivită pentru organizarea unui sediu mai mare sau a două departamente separate. Loc de parcare disponibil opțional pentru fiecare unitate la prețul de 15.000 euro + TVA / loc.
Citește mai mult Citește mai puțin
1 Parcare Zonă de litoral

Detalii spațiu comercial

ID anunț: XESN14007 Copiat! 275187363 Copiat!
Actualizat în: 04 Martie 2026
Suprafață utilă: 53.55 mp
Etaj: Etaj 1 / 3
Regim înălțime: P+3E
Structură rezistență: data_properties.building_structure.BCA
Stadiu construcție: La roșu

Utilități

Utilități
Curent Apă Canalizare

Puncte de interes

Mijloace transport
bus-station
Statia Bucuresti; Linia 100C
Stații autobuz aprox. 151 m
bus-station
Statia Poporului; Linia 51
Stații autobuz aprox. 400 m
train-station
Gara CFR Constanta(1960)
Stații tren aprox. 847 m
train-station
Gara Constanța(1960)
Stații tren aprox. 866 m
Școală
school
COLEGIUL TEHNIC VASILE PÂRVAN
Școli aprox. 193 m
school
Liceul cu Program Sportiv - CSS
Școli aprox. 207 m
kindergarten
Grădinița cu orar prelungit nr. 44
Gradinițe aprox. 450 m
university
Anatomy Department, Faculty of General Medicine (en)
Universități aprox. 644 m
Recreere
supermarket
Carrefour Market
Supermarket aprox. 327 m
park
The Land of Dwarves (Țara Piticilor Casa de Cultură) (en)
Parcuri aprox. 438 m
public-square
Victory Square (en)
Piețe publice aprox. 886 m
sports-ground
Teren sportiv
Terenuri sport aprox. 1037 m

Proprietăți similare

Birou, de 61.20 mp, în ICIL
129.000 €
Constanța, ICIL
61,2 mp utili
Bloc de apartamente
3E
Birou, 62 mp în Ultracentral
130.000 €
Constanța, Ultracentral
62 mp utili
Clădire de birouri
Spațiu comercial, 130 mp în Faleza Nord
122.000 €
Constanța, Faleza Nord
130 mp utili
Casă/Vilă

Detalii de contact

Activ Imobiliare

Dan Ivanof Broker Imobiliar

Activ Imobiliare
PRO

Abonează-te la newsletter să fii primul care primește cele mai noi recomandări de proprietăți și sfaturi de la experți.

CONTACT

Creează alertă

Salvează căutarea ca să primești pe email ultimele anunțuri publicate

Spații comerciale cu 2 camere de vânzare în zona ICIL, Constanța