Cladire multifunctionala pentru birouri , Oradea, Bihor

1.490.000 €

Sud-Est, Oradea

Tip prop.:
Clădire de birouri
  • • Comision 0%
  • • Locație aproximativă

Descriere spațiu comercial

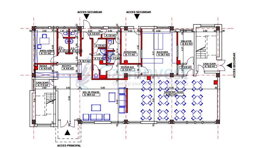
Gaminvest propune spre vanzare o cladire cu destinatie birouri situata in Oradea, judetul Bihor, o oportunitate ideala pentru investitori. Imobilul are o suprafata construita la sol de 590 mp si este dispus pe parter si 3 etaje, cu o suprafata desfasurata totala de 2.360 mp, fiind prevazut cu locuri de parcare amenajate. La parter se afla un spatiu open-space, bucatarie, grupuri sanitare si birou, iar etajele sunt compartimentate in mai multe camere care pot fi utilizate ca birouri sau sali de conferinta. In prezent, exista 19 camere duble, 6 triple si 3 apartamente, cu o capacitate totala de aproximativ 97 de persoane, insa spatiile pot fi reconfigurate complet pentru birouri sau apartamente. In curte se afla o constructie separata, formata din doua apartamente a cate 90 mp fiecare, cu trei camere, baie si bucatarie, care poate fi utilizata ca birouri independente sau spatii pentru angajati. Intreaga proprietate a fost complet renovata, inclusiv instalatiile electrice si sanitare, finisajele, sistemul de incalzire si tamplaria PVC, oferind un standard modern pentru activitati de birouri. Cladirea beneficiaza de acces facil catre zona industriala si centura orasului si ofera posibilitati multiple de exploatare, fiind potrivita pentru firme, coworking, sedii administrative sau investitii in inchiriere pe termen lung. In prezent, imobilul este inchiriat integral, generand venituri constante, cu un randament de aproximativ 8%. Incalzirea este asigurata de centrala proprie pe gaz. Pretul de vanzare este de 1.490.000 euro, negociabil, iar agentia nu percepe comision de la cumparator. Nr grupuri sanitare: 30 Suprafata construita: 2360 mp Nr incaperi: 28 Utilitati - Utilitati generale (Curent,Apa,Canalizare,Gaz) pret vanzare: 1490000 moneda vanzare: EUR Disponibilitate proprietate: imediat
Citește mai mult Citește mai puțin

Detalii spațiu comercial

ID anunț: X56E040H7 Copiat! 274861463 Copiat!
Actualizat în: 09 Februarie 2026
Regim înălțime: P

Utilități

Utilități
Curent Apă Canalizare Gaze

Puncte de interes

Mijloace transport
tram-station
Master
Stații tramvai aprox. 249 m
tram-station
Fabrica de Zahar
Stații tramvai aprox. 303 m
bus-station
Bus 17
Stații autobuz aprox. 1034 m
bus-station
14
Stații autobuz aprox. 1210 m
Școală
kindergarten
Gradinita 20
Gradinițe aprox. 811 m
school
Liceul Lucian Blaga
Școli aprox. 908 m
kindergarten
Gradinita 45 cu program prelungit
Gradinițe aprox. 1328 m
school
GS Transilvania
Școli aprox. 1329 m
Recreere
supermarket
Kaufland
Supermarket aprox. 487 m
restaurant
Restaurantul Ziga Zaga
Restaurant aprox. 1023 m
park
Parc Strand Iosia
Parcuri aprox. 1140 m
sports-ground
Teren sportiv
Terenuri sport aprox. 1188 m

Proprietăți similare

Spațiu industrial, de 1,800.00 mp, în Groși
1.350.000 €
Județul Bihor, Groși
1.800 mp utili
Producție/Servicii
1E
Spațiu industrial, de 1,407.2 mp, în Vest
1.396.700 €
Oradea, Vest
1.407,2 mp utili
Producție/Servicii
2008
Hotel/Pensiune, în Sud-Est
1.490.000 €
Oradea, Sud-Est

Detalii de contact

Gaminvest Imobiliare

Ioana Hering Agent imobiliar

Gaminvest Imobiliare
PRO

Abonează-te la newsletter să fii primul care primește cele mai noi recomandări de proprietăți și sfaturi de la experți.

CONTACT

Creează alertă

Salvează căutarea ca să primești pe email ultimele anunțuri publicate

Spații comerciale de vânzare în zona Sud-Est, Oradea