Cladire de birouri de vanzare***877mp***Dorobanti

4.000.000 €

Dorobanți, București

Sup. utilă / mp. utili:
877,3 mp
Tip prop.:
Clădire de birouri
Niv.:
4
An constr.:
2024 (Există)
  • • Locație aproximativă

Descriere spațiu comercial

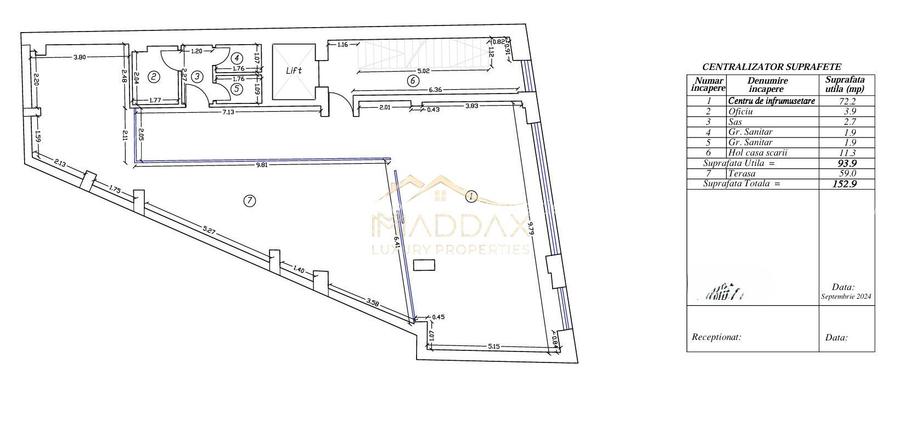
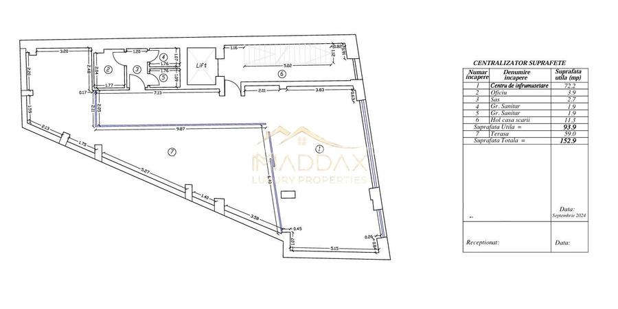
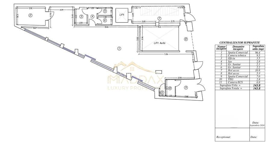
Într-una dintre cele mai prestigioase și bine conectate zone ale Capitalei – Dorobanți – Maddax vă propune o clădire de birouri modernă, bine organizată, ideală pentru companii care își doresc un spațiu de lucru elegant, funcțional și într-o locație reprezentativă. Proprietatea se desfășoară pe 4 nivele, având o suprafață totală construită de 877 mp, și oferă toate facilitățile necesare unui mediu de lucru eficient și confortabil. Compartimentare: Subsol – 209,5 mp Dotat cu sistem de parcare tip Klaus pentru 4 autoturisme, spațiul poate acomoda și zone de arhivare, tehnice sau depozitare. Parter – 143,8 mp Ideal pentru recepție, zonă de primire sau birouri front office. Include 2 grupuri sanitare. Etajul 1 – 152,9 mp Etajul 2 – 152,9 mp Etajul 3 – 153,2 mp Aceste trei niveluri oferă spații luminoase, versatile, potrivite atât pentru birouri open-space, cât și pentru compartimentări funcționale în funcție de nevoi: birouri executive, săli de ședință, zone de relaxare sau lucru colaborativ. Etajul 4 – 12,2 mp + terasă 52,8 mp Un spațiu exclusivist, ideal ca birou privat sau lounge, cu acces direct către o terasă spațioasă ce oferă o priveliște deschisă – perfectă pentru momente de relaxare sau evenimente corporate în aer liber. Beneficii: Poziționare strategică în zona Dorobanți – aproape de centre de afaceri, restaurante, instituții și mijloace de transport în comun. Parcare privată, un avantaj esențial într-o zonă centrală. Design funcțional și flexibilitate în compartimentare. Ideală pentru: sediu de firmă, firmă de avocatură, agenție, clinici medicale, spații de coworking sau ca investiție cu randament bun. Maddax îți propune o clădire care îmbină eleganța urbană cu pragmatismul business-ului modern. Disponibilă pentru vânzare sau închiriere, această proprietate este o soluție solidă pentru companiile care doresc vizibilitate, confort și funcționalitate într-o locație de top. Pentru detalii suplimentare, vizionare sau ofertă personalizată, nu ezitati sa ne contactati.
Citește mai mult Citește mai puțin

Detalii spațiu comercial

ID anunț: XDJC14120 Copiat! 274068633 Copiat!
Actualizat în: 23 Aprilie 2026
Suprafață utilă: 877.3 mp
Etaj: Etaj 4 / 4
Clasă birouri: A
Regim înălțime: S+P+4E
Stadiu construcție: Există

Utilități

Utilități
Curent Apă Canalizare
Comision
standard

Certificat energetic:

Clasa energetică: A

Disponibilitate proprietate:

Imediat

Puncte de interes

Mijloace transport
bus-station
Bd. Dimitrie Cantemir / Bd. Marasesti, Liniile 312, 313, 381, N105, N106, N112, 116, 23, 27
Stații autobuz aprox. 275 m
tram-station
Bd. Dimitrie Cantemir
Stații tramvai aprox. 281 m
metro-station
Metrorex. Stația Piața Unirii 1 (M1),(M3)(1979)
Stații metrou aprox. 516 m
trolleybus-station
Statia Facultatea de Drept, linia 61,69,90,91
Stații troleibuz aprox. 1976 m
Școală
school
Scoala nr.74, "Enachita Vacarescu"
Școli aprox. 150 m
school
Scoala nr 94
Școli aprox. 150 m
kindergarten
Cresa Micii Poznasi
Gradinițe aprox. 230 m
university
Academia de Studii Economice: Facultatea de Management - Administratie Publica
Universități aprox. 238 m
Recreere
park
Parc
Parcuri aprox. 237 m
supermarket
Mega Image (en)
Supermarket aprox. 305 m
public-square
Piata Bibescu
Piețe publice aprox. 341 m
mall
Bucharest, Calea Vitan nr. 8, Bl V51, near VITAN Mall
Mall aprox. 1796 m

Proprietăți recomandate

Detalii de contact

MADDAX Luxury Properties

Angela Ene Business Partner

MADDAX Luxury Properties
PRO

Abonează-te la newsletter să fii primul care primește cele mai noi recomandări de proprietăți și sfaturi de la experți.

CONTACT

Creează alertă

Salvează căutarea ca să primești pe email ultimele anunțuri publicate

Spații comerciale de vânzare în zona Dorobanți, Sector 1