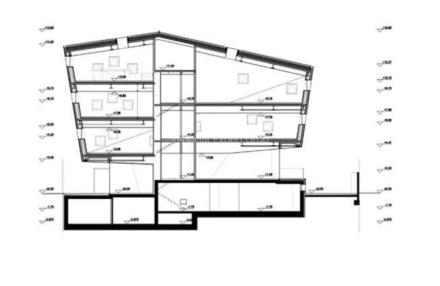
Mihai Bravu, imobil birouri, 1S+D+P+3E+M, suprafață construita desfășurată de 1428 mp, teren 567 mp
Interiorul este gandit pe jumătăți de nivel, decalate pe înălțime, totul plecând de la subsol. Acest fapt a eliminat stâlpii interiori, generand etaje open-space cu suprafete libere generoase. Spațiile de lucru sunt suspendate pe nodul central compus din casa scării, lift și grupuri sanitare. Scara de evacuare este parte integrantă a nodului de rezistență, iar suplimentar avem al doilea rand de scari pentru comunicarea dintre etaje.
Pe langa dotarile rezultate din arhitectura cladirii, 1 lift, 7 grupuri sanitare, 2 randuri de scari, si cele 20 de locuri de parcare la demisol si exterior, cladirea este dotata cu sisteme functionale de cea mai buna calitate:
- sistem de climatizare si incalzire HVAC - Daikin;
- sistem de detectie si avertizare la incendiu, cladirea fiind avizata IGSU;
- sistem avansat de supraveghere video AXIS Communications, sistem de detectie si avertizare la efractie, control acces pe fiecare nivel, inclusiv in controlul lift-ului;
- acces limitat catre parcarea din demisol prin bariera de acces.
Sunt 22 de locuri de parcare atat la demisol cat si la suprafata.
Sediul central - Timișoara
Bulevardul Victor Babeș nr. 2, 300230, Timișoara, România
Tel: +40.374.40.44.98 / Fax: +40.256.401.179
Email: suport@imobiliare.ro
Luni - Vineri 08:00 - 20:00
Punct de lucru - București: Iride Business Park, Bld. Dimitrie
Pompeiu 9-9A, Clădirea B2B,
020335, Sector 2, București, România
CONTACT
Sediul central - Timișoara
Bulevardul Victor Babeș nr. 2, 300230, Timișoara, România
Tel: +40.374.40.44.98 / Fax: +40.256.401.179
Email: suport@imobiliare.ro
Luni - Vineri 08:00 - 20:00
Punct de lucru - București: Iride Business Park, Bld. Dimitrie
Pompeiu 9-9A, Clădirea B2B,
020335, Sector 2, București, România
Sună acum și cere detalii sau programează o vizionare.
Cere detalii prin email
*
*
*
*
Stații autobuz
Stații metrou
Stații tramvai
Gradinițe
Școli
Universități
Supermarket
Mall
Parcări
Terenuri sport
Parcuri
Piețe publice
Farmacie
Spital
Restaurant
Pub
Cafenea
Bar
Bancă
Mihai Bravu
aprox.
42 m
RATB: Penes Curcanul: Autobuz 124
aprox.
275 m
Statia Pod Mihai Bravu, linia 223, 124
aprox.
301 m
Statia Bd. Tineretului / Soseaua Mihai Bravu, linia 133, 223, 312, 313, 381, 634, N105
aprox.
537 m
Soseaua Mihai Bravu
aprox.
559 m
Statia Piscul Rachitei, linia 223,124
aprox.
631 m
Statia Calea Vitan, linia 123,124,135,181
aprox.
688 m
Statia Calea Vitan, linia 135,181
aprox.
741 m
Stadion Olimpia :: Statie RATB :: 123,124,135,223
aprox.
794 m
Statia Costache Stamate, linia 312, 313, 381, 634, N105
aprox.
795 m
Stadion Olimpia :: Statie RATB :: 123,135,181,223
aprox.
825 m
Statia Uzitex, linia 223,124
aprox.
906 m
Statia Palatul Copiilor linii : 76,313,381.
aprox.
1036 m
Statia Laborator 135,181
aprox.
1049 m
Autobuz 323
aprox.
1125 m
Metrorex. Stația Mihai Bravu (M1) , (M3).
aprox.
65 m
Metrorex. Stația Mihai Bravu (M1) , (M3)(1981)
aprox.
67 m
Metrorex. Stația Mihai Bravu (M1) , (M3).
aprox.
170 m
Metrorex. StațiaTimpuri Noi (M1),(M3)(1979)
aprox.
1182 m
Timpuri Noi
aprox.
1208 m
Metrorex. Stația Dristor 2 (M1)(1989).
aprox.
1523 m
Metrorex.Stația Dristor 1 (M1) , (M3)(1981)
aprox.
1530 m
Tineretului (M2)
aprox.
1719 m
Statia Metrou Tineretului(M2)Metrorex
aprox.
1734 m
Metrorex. Stația Tineretului (M2)(1986)
aprox.
1782 m
Constantin Brancoveanu (M2)
aprox.
1893 m
Metrorex. Stația Constantin Brâncoveanu (M2)(1988)
aprox.
1919 m
Statia Piata Sudului, linia M2
aprox.
1954 m
Metrorex. Stația Piața Sudului (M2)(1986)
aprox.
1989 m
RATB: Penes Curcanul:Tramvai 19,34
aprox.
204 m
Penes Curcanul
aprox.
237 m
Pod Mihai Bravu
aprox.
268 m
Sos. Mihai Bravu
aprox.
671 m
Calea Vitan
aprox.
702 m
Statia Calea Vitan, linia 19,34
aprox.
749 m
Calea Vitan
aprox.
769 m
Costache Stamate
aprox.
807 m
Bucuresti-Mall
aprox.
1008 m
Laborator
aprox.
1024 m
Statia Laborator, linia 19,34
aprox.
1046 m
Universitatea Crestina Dimitrie Cantemir
aprox.
1218 m
Scoala Generala 81
aprox.
1269 m
Calea Dudesti
aprox.
1309 m
Pridvorului
aprox.
1319 m
Gradinita de copii nr.161
aprox.
549 m
Gradinita
aprox.
700 m
Gradinita Plusica
aprox.
1188 m
Gradinita nr. 255
aprox.
1323 m
Gradinita de copii nr.24
aprox.
1328 m
Gradinita 255
aprox.
1348 m
Gradinita (progr. prelungit) Aleea Borcea - Str. Ruginoasa
aprox.
1385 m
Gradinita Kogaion
aprox.
1446 m
Gradinita nr. 239
aprox.
1468 m
Gradinita Floare de Colt
aprox.
1538 m
Gradinita Nr 24
aprox.
1549 m
Gradinita Yannis & Yasmine
aprox.
1618 m
Gradinita de copii nr.64 "Floare de colt"
aprox.
1681 m
Gradinita Martisor
aprox.
1719 m
Gradinita "Scufita Rosie"
aprox.
1725 m
Scoala Nr. 95
aprox.
580 m
Scoala nr 95
aprox.
580 m
Scoala Generala nr. 95
aprox.
580 m
Scoala 100 Andrei Saguna
aprox.
611 m
B.C.A. (en)
aprox.
640 m
Scoala Generala nr. 84
aprox.
758 m
Scoala Generala nr.84 "Nicolae Balcescu"
aprox.
764 m
Liceul Petru Rares
aprox.
879 m
Palatul National al Copiilor
aprox.
927 m
Scoala nr.87
aprox.
1032 m
Scoala Primara Just 4 Kids
aprox.
1105 m
The International School of Bucharest (en)
aprox.
1159 m
I.C.H.B. (en)
aprox.
1218 m
Colegiul tehnic "Mihai Bravu"
aprox.
1233 m
Scoala generala nr. 81
aprox.
1376 m
Universitatea Titu Maiorescu - Rectorat
aprox.
834 m
Universitatea Titu Maiorescu - Corp M
aprox.
933 m
Universitatea Crestina "Dimitrie Cantemir"
aprox.
949 m
Universitatea "Titu Maiorescu"
aprox.
961 m
Universitatea Titu Maiorescu
aprox.
961 m
Universitatea "Nicolae Titulescu" - Bucuresti
aprox.
988 m
Universitatea Nicolae Titulescu
aprox.
1013 m
Universitatea "Gheorghe Cristea"
aprox.
1494 m
Academie de Studii Postuniversitare - Politie
aprox.
1990 m
Institutul de Studii pentru Ordine Publica
aprox.
1990 m
Lidl
aprox.
206 m
Mega Image Dambovita Non-Stop
aprox.
669 m
Mega Image
aprox.
669 m
Prosper
aprox.
765 m
Mega Image
aprox.
793 m
Mega Image Lugojana
aprox.
826 m
Mega Image Lugojana Non-Stop
aprox.
834 m
Kaufland Mihai Bravu
aprox.
930 m
Penny Market
aprox.
937 m
Mega Image
aprox.
937 m
Kaufland
aprox.
979 m
Mega Image
aprox.
1035 m
Jysk
aprox.
1038 m
Profi
aprox.
1039 m
Mega Image Bucuresti Mall
aprox.
1046 m
Bucharest, Calea Vitan nr. 8, Bl V51, near VITAN Mall
aprox.
1257 m
Cora Sun Plaza
aprox.
1632 m
Parcare
aprox.
197 m
Parcare
aprox.
277 m
Parcare
aprox.
294 m
Parcare
aprox.
443 m
Parcare
aprox.
480 m
Parcare
aprox.
629 m
Parcare
aprox.
638 m
Parcare
aprox.
669 m
Parcare
aprox.
711 m
Parcare
aprox.
758 m
Parcare
aprox.
760 m
Parcare
aprox.
792 m
Parcare
aprox.
801 m
Parcare
aprox.
835 m
Parcare
aprox.
847 m
Teren sportiv
aprox.
265 m
Teren sportiv
aprox.
913 m
Teren sportiv
aprox.
922 m
Teren sportiv
aprox.
928 m
Teren sportiv
aprox.
949 m
Teren sportiv
aprox.
1181 m
Teren sportiv
aprox.
1188 m
Teren sportiv
aprox.
1202 m
Teren sportiv
aprox.
1204 m
Teren sportiv
aprox.
1208 m
Teren sportiv
aprox.
1220 m
Teren sportiv
aprox.
1220 m
Teren sportiv
aprox.
1226 m
Teren sportiv
aprox.
1296 m
Teren sportiv
aprox.
1305 m
Parculet pentru copii
aprox.
443 m
Parc
aprox.
488 m
Parc
aprox.
735 m
Parculet nou
aprox.
868 m
children's park (en)
aprox.
881 m
Parculet (en)
aprox.
910 m
Parc
aprox.
940 m
Pista Automodele Off-Road
aprox.
974 m
Parc
aprox.
976 m
Pista Automodele On-Road
aprox.
986 m
Parcul Lumea Copiilor
aprox.
988 m
Parc
aprox.
1043 m
Park
aprox.
1074 m
parculet
aprox.
1077 m
Parc
aprox.
1099 m
Piata Bucur
aprox.
1858 m
Piața Sudului
aprox.
1915 m
Farmacia Dona 10
aprox.
727 m
micaplant
aprox.
737 m
Farmacia 50
aprox.
794 m
2NA FARM
aprox.
819 m
Orbit 93
aprox.
867 m
Farmacia Belladonna 63
aprox.
890 m
Vitan Farm Impex
aprox.
907 m
Sensiblu
aprox.
909 m
Sactomed
aprox.
938 m
Leni Farm
aprox.
1000 m
Sensiblu
aprox.
1012 m
Centrofarm
aprox.
1032 m
2na
aprox.
1066 m
Farmacia Dona 32
aprox.
1102 m
Farmacia Ana-Maria
aprox.
1110 m
Life Med
aprox.
728 m
Ponderas
aprox.
798 m
Eurodent
aprox.
923 m
Plastic Surgery Clinic (en)
aprox.
1078 m
ROMAR
aprox.
1134 m
Romar Medical
aprox.
1149 m
Policlinica vitan
aprox.
1331 m
Spital Veterinar
aprox.
1387 m
SYNEVO
aprox.
1428 m
Medical GRAL
aprox.
1449 m
Policlinica Gral Medical
aprox.
1457 m
Medline
aprox.
1515 m
Clinica Audionova
aprox.
1568 m
Biostom Bucuresti
aprox.
1665 m
Doctor Anghel Medical Center
aprox.
1746 m
Restaurant Bellagio Villa
aprox.
97 m
Terasa Berarilor
aprox.
375 m
Odeon
aprox.
422 m
Bellagio Villa
aprox.
461 m
mazzaj
aprox.
536 m
Capitan
aprox.
544 m
DESCHIS Gastrobar
aprox.
583 m
Terasa Brandusa
aprox.
627 m
Restaurant Moments
aprox.
650 m
Moments
aprox.
651 m
Dino's
aprox.
682 m
Dinos
aprox.
710 m
Centru Comercial :: Policlinica oftalmologie (en)
aprox.
733 m
Chicken Grill Non-Stop
aprox.
734 m
Casa Diham
aprox.
866 m
The 1st Pub
aprox.
667 m
Kaffa Pub
aprox.
856 m
Roof
aprox.
1280 m
Forno d'oro
aprox.
1669 m
Jukebox
aprox.
1811 m
Starbucks Coffee
aprox.
1875 m
Dristor Pub
aprox.
1915 m
Kahve Dunyasi
aprox.
999 m
Starbucks
aprox.
1147 m
Sfera caffe
aprox.
1203 m
Quartier
aprox.
1320 m
Maroon Caffe
aprox.
1405 m
Cafe Boulevard
aprox.
1435 m
High Class
aprox.
1496 m
Gio Cafe
aprox.
1513 m
Puerto Cafe
aprox.
1543 m
gloria jeans coffee
aprox.
1587 m
Stretto Cofee
aprox.
1635 m
Habana Coffe
aprox.
1646 m
Zebra Caffe
aprox.
1702 m
La Trenulete
aprox.
1709 m
Reina Cafe
aprox.
1723 m
Terasa Ancor
aprox.
1833 m
Sucursala Raiffeisen bank (en)
aprox.
588 m
Raiffeisen
aprox.
590 m
Alpha Bank
aprox.
597 m
Alpha Bank (en)
aprox.
598 m
Banca Transilvania - Ag. Vacaresti
aprox.
600 m
Bancpost
aprox.
600 m
Sucursala Banca Transilvania (en)
aprox.
608 m
Sucursala Banca Transilvania (en)
aprox.
721 m
Banca Transilvania - Ag. Vitan
aprox.
747 m
Banca Carpatica
aprox.
748 m
BRD Vitan
aprox.
820 m
RAIFFEISEN
aprox.
832 m
Sucursala BCR si Raiffaisen Bank (cu ATM)
aprox.
851 m
BCR
aprox.
851 m
BCR
aprox.
882 m
Dacă te vei muta în această zonă, vei avea la dispoziție mai multe autobuze și tramvaie care te vor ajuta să te deplasezi către centrul orașului și nu numai. Printre acestea amintim tramvaiul 19 care oferă o legătură directă cu sud - estul Bucureștiului, tramvaiul 27 cu care te poți deplasa până la Piața Unirii și autobuzul 124 al cărui traseu ajunge în zona Eroilor. Cu autobuzul 133 ajungi rapid la Parcul Tineretului și la Gara Basarab. Vei avea, totodată, în apropierea viitoarei tale locuințe două stații de metrou - Timpuri Noi și Mihai Bravu. Ambele îți oferă posibilitatea de a lua trenuri care circulă atât pe magistrala 1 Dristor - Pantelimon, cât și pe magistrala 3 Preciziei - Anghel Saligny. Consultă harta și vezi care vor fi cele mai apropiate stații de viitoarea ta locuință.
Dacă te vei muta în zona Vitan Mall - Nerva Traian - Mihai Bravu, vei avea la doi pași de casă mai multe unități de învățământ. Printre acestea amintim Grădinița Brândușa de pe Strada Brândușelor, Școala Gimnazială nr. 84 situată lângă Complexul Comercial Prosper și Școala Gimnazială nr. 81 de pe Strada Nerva Traian. În apropierea stației de metrou Timpuri Noi se află sediile mai multor instituții private de învățământ superior. Este vorba despre Universitatea "Titu Maiorescu", Universitatea "Nicolae Titulescu" și despre Universitatea Creștină "Dimitrie Cantemir". Vezi ce hartă ce alte unități de învățământ există în zona Vitan Mall - Nerva Traian - Mihai Bravu.
Vrei să te muți în zona Vitan Mall - Nerva Traian - Mihai Bravu și te gândești deja unde îți vei putea face cumpărăturile? În primul rând, vei avea la dispoziție numeroase magazine de cartier, având în vedere faptul că multe dintre blocurile din această parte a orașului dispun de spații comerciale la parter. București Mall, primul complex comercial de acest tip din Capitală, poate fi o altă opțiune excelentă. Cu mașina ajungi destul de ușor și la mall-urile ParkLake și Sun Plaza. Vrei să cumperi legume și fructe proaspete? Atunci trebuie să știi că o piață este amplasată pe Strada Foișorului. Un magazin Lidl a fost deschis în zona Pasajului Mihai Bravu. În plus, în apropiere vei avea și Complexul Comercial Prosper și un magazin de bricolaj. În apropiere ai la dispoziție și o serie de magazine cu materiale de construcții sau finisaje. La doi pași de toate acestea găsești și un complex comercial ce include mai mulți retaileri, inclusiv două pet shop-uri. Ajungi destul de rapid și la hipermarketul Auchan Vitan și la Unirea Shopping Center. Află unde sunt localizate toate acestea de pe hartă.
De multe ori, la orele de vârf, vei întâmpina aglomerație în trafic pe Calea Vitan sau pe celelalte artere principale din această zonă, motiv pentru care este posibil să ai unele dificultăți în găsirea unui loc de parcare. Îți recomandăm, totodată, să apelezi la Direcția Generală de Impozite și Taxe Locale Sector 3 pentru a închiria un loc de parcare în apropierea locuinței tale. Dacă optezi pentru un apartament într-un ansamblu rezidențial nou, atunci discută direct cu dezvoltatorul și vezi ce ofertă îți pune la dispoziție. Astfel, te vei asigura că nu mai pierzi timpul seara căutând un loc de parcare. Consultă harta și află ce opțiuni ai în zona Vitan Mall - Nerva Traian - Mihai Bravu.
În zona Vitan Mall - Nerva Traian - Mihai Bravu vei avea la dispoziție câteva spații verzi de mici dimensiuni, amenajate cu locuri de joacă pentru copii, cel mai mare dintre acestea fiind Parcul Emil Gârleanu. Vei ajunge însă destul de rapid de aici la Parcul Alexandru Ioan Cuza (fostul IOR) sau la Parcul Tineretului. O altă variantă bună pentru cei care își doresc să facă o plimbare prin natură este o vizită în Parcul Natural Văcărești la care ajungi foarte ușor. Pe marginea deltei te poți plimba chiar și cu bicicleta. Multe dintre blocurile situate la principalele artere de circulație din această zonă dispun de spații comerciale la parter, într-unele dintre acestea fiind deschise restaurante și baruri. Pentru mai multă diversitate, vei avea la o aruncătură de băț Centrul Vechi al Bucureștiului. În zona Pasajului Mărășești vei putea merge la un spectacol pus în scenă de echipa Teatrului de Operetă și Musical "Ion Dacian". Preferi să te relaxezi la film? Un cinematograf este disponibil în București Mall - primul centru comercial de acest tip din oraș, situat pe Calea Vitan. O altă opțiune poate fi găsită în mall-ul ParkLake din zona Parcului Alexandru Ioan Cuza. Vezi ce alte alternative de petrecere a timpului liber vei avea dacă te muți în zona Vitan Mall - Nerva Traian - Mihai Bravu.
Principalele unități sanitare din această zonă sunt Policlinica Vitan Dudești și spitalul privat de oftalmologie Westeye Hospital. Unul dintre cele mai apropiate spitale de stat la care vei avea acces, dacă te vei muta aici, este Spitalul Clinic "Dr. Victor Babeș". O altă opțiune poate fi și Spitalul Clinic de Urgență "Sfântul Ioan" de la Șoseaua Vitan-Bârzești. O serie de unități medicale sunt disponibile și pe Șoseaua Berceni la care poți să ajungi în doar câteva minute cu mașina. Dacă preferi o clinică privată, atunci printre cele mai apropiate se numără clinica Regina Maria Mărășești sau Monza Metropolitan Hospital. Găsești pe harta de mai jos și farmaciile disponibile în zona Vitan Mall - Nerva Traian - Mihai Bravu.
Câteva restaurante găsești pe Strada Nerva Traian, iar pe Calea Vitan ai la dispoziție mai multe fast food-uri. Un food court cu restaurante destul de diverse găsești, de asemenea, la etaj în București Mall. Pentru pâine caldă, o gustare sau o prăjitură merită să încerci și brutăria Koksal aflată la doi pași de mall. Dacă ești grăbit, poți să mergi repede până la drive through-ul KFC de pe Șoseaua Mihai Bravu sau la restaurantul McDonald"™s din Dristor de unde poți să-ți comanzi, de asemenea, mâncarea direct din mașină. Alte food court-uri ai în apropiere la mall-urile ParkLake și Sun Plaza, dacă nu te deranjează să mergi câteva minute cu mașina. Ajungi extrem de repede din această zonă și în Centrul Vechi al orașului unde găsești restaurante și terase pentru toate gusturile. Vezi ce alte restaurante găsești în zona Vitan Mall - Nerva Traian - Mihai Bravu și în vecinătatea acesteia consultând harta.
Ai nevoie de o bancă sau de un ATM? Pe Strada Nerva Traian găsești un Libra Bank și o sucursală ING. În București Mall ai la dispoziție alte câteva opțiuni. Consultă harta pentru mai multe informații.
Înainte să pleci...
Ești sigur că ai văzut și aceste proprietăți?
800.000 €
București, Mihai Bravu
384 mp utili
Clădire de birouri
2E
8.000.000 €
București, Timpuri Noi
3.876 mp utili
Bloc de apartamente
2017
1.193.400 €
București, Vitan
1.184 mp utili
Clădire de birouri
2E
3.200.000 €
București, Unirii
3.658 mp utili
Bloc de apartamente
6E
1.199.000 €
București, Vitan Mall
650 mp utili
Clădire mixtă
9E
12.500.000 €
București, Calea Călărașilor
4.200 mp utili
Clădire de birouri
1980
Creează alertă
Salvează căutarea ca să primești pe email ultimele anunțuri publicate
Spații comerciale de vânzare în zona Mihai Bravu, Sector 3
Cere detalii prin email
*
*
*
*
Detaliile tale de contact vor fi partajate cu Imobiliar Expert Grup