Spațiu de birouri complet închiriat pe 3 ani (cu posibilitate de prelungire), situat pe Splaiul Unirii, într-o clădire cu regim S+P+4E finalizată în 2005, întreținută impecabil.
Caracteristici principale:
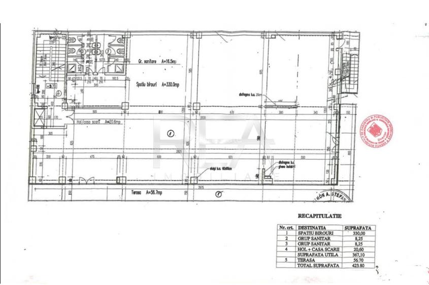
Suprafață utilă: 367 mp
Suprafață totală: 423,80 mp
2 terase însumând: 56,70 mp – perfecte pentru zone de relaxare corporate
7 locuri de parcare dedicate – rar întâlnite în zonă
Boxă la subsol: 10,72 mp – ideală pentru arhivare sau depozitare
Clădire solidă, cu infrastructură profesională și lift
Avantaje pentru investitor:
• Contract de închiriere pe 3 ani în desfășurare
• Chiriaș stabil, activ
• Posibilitate de prelungire a contractului
• Poziție excelentă, aproape de Piața Unirii, Timpuri Noi, mijloace de transport, restaurante și facilități business
• Spațiu ideal pentru companii medii și mari
Excelent pentru investitori care caută un activ valoros, cu venit imediat și potențial de creștere.
Acces facil la mijloacele de transport în comun: la doar 1 minut de mers pe jos până la stațiile STB.
Pentru mai multe informații și programarea unei vizionări, vă rugăm să ne contactați, menționând codul de identificare P7087.
Sediul central - Timișoara
Bulevardul Victor Babeș nr. 2, 300230, Timișoara, România
Tel: +40.374.40.44.98 / Fax: +40.256.401.179
Email: suport@imobiliare.ro
Luni - Vineri 08:00 - 20:00
Punct de lucru - București: Iride Business Park, Bld. Dimitrie
Pompeiu 9-9A, Clădirea B2B,
020335, Sector 2, București, România
CONTACT
Sediul central - Timișoara
Bulevardul Victor Babeș nr. 2, 300230, Timișoara, România
Tel: +40.374.40.44.98 / Fax: +40.256.401.179
Email: suport@imobiliare.ro
Luni - Vineri 08:00 - 20:00
Punct de lucru - București: Iride Business Park, Bld. Dimitrie
Pompeiu 9-9A, Clădirea B2B,
020335, Sector 2, București, România
Sună acum și cere detalii sau programează o vizionare.
Cere detalii prin email
*
*
*
*
Stații autobuz
Stații tramvai
Stații metrou
Școli
Universități
Gradinițe
Supermarket
Mall
Parcări
Parcuri
Terenuri sport
Piețe publice
Spital
Farmacie
Restaurant
Pub
Cafenea
Bar
Bancă
Autobuz 323
aprox.
522 m
Soseaua Mihai Bravu
aprox.
537 m
Statia Pod Mihai Bravu, linia 223, 124
aprox.
539 m
Capat Universitatea Crestina Dimitrie Cantemir linii : 323.
aprox.
545 m
Statia Universitatea Crestina Dimitrie Cantemir linii:133.
aprox.
548 m
Statia Palatul Copiilor linii : 76,313,381.
aprox.
556 m
Statia Bd. Tineretului / Soseaua Mihai Bravu, linia 133, 223, 312, 313, 381, 634, N105
aprox.
601 m
Mihai Bravu
aprox.
633 m
RATB: Penes Curcanul: Autobuz 124
aprox.
845 m
Statia Costache Stamate, linia 312, 313, 381, 634, N105
aprox.
921 m
Statia Calea Vitan, linia 123,124,135,181
aprox.
1202 m
Statia Calea Vitan, linia 135,181
aprox.
1230 m
Statia Piscul Rachitei, linia 223,124
aprox.
1247 m
Pridvorului
aprox.
1369 m
Statia Bulevardul Marasesti linii : 76,312,313,381.
aprox.
1395 m
Pod Mihai Bravu
aprox.
528 m
Universitatea Crestina Dimitrie Cantemir
aprox.
602 m
Scoala Generala 81
aprox.
778 m
RATB: Penes Curcanul:Tramvai 19,34
aprox.
783 m
Penes Curcanul
aprox.
806 m
Costache Stamate
aprox.
946 m
Papazoglu
aprox.
961 m
Bucuresti-Mall
aprox.
1021 m
Colegiul National Gheorghe Sincai
aprox.
1042 m
Sos. Mihai Bravu
aprox.
1161 m
Calea Vitan
aprox.
1166 m
Bd. Octavian Goga
aprox.
1200 m
Piata Vitan
aprox.
1213 m
Statia Calea Vitan, linia 19,34
aprox.
1228 m
Calea Vitan
aprox.
1246 m
Metrorex. StațiaTimpuri Noi (M1),(M3)(1979)
aprox.
586 m
Metrorex. Stația Mihai Bravu (M1) , (M3).
aprox.
593 m
Timpuri Noi
aprox.
613 m
Metrorex. Stația Mihai Bravu (M1) , (M3)(1981)
aprox.
659 m
Metrorex. Stația Mihai Bravu (M1) , (M3).
aprox.
736 m
Tineretului (M2)
aprox.
1069 m
Statia Metrou Tineretului(M2)Metrorex
aprox.
1082 m
Metrorex. Stația Tineretului (M2)(1986)
aprox.
1128 m
Metrorex. Stația Constantin Brâncoveanu (M2)(1988)
aprox.
1695 m
Constantin Brancoveanu (M2)
aprox.
1700 m
Metrorex. Stația Dristor 2 (M1)(1989).
aprox.
1914 m
Metrorex. Stația Eroii Revoluției (M2)(1986)
aprox.
1933 m
Statia Eroii Revolutiei, M2
aprox.
1949 m
Eroii Revolutiei (M2)
aprox.
1953 m
Metrorex.Stația Dristor 1 (M1) , (M3)(1981)
aprox.
1974 m
B.C.A. (en)
aprox.
165 m
Liceul Petru Rares
aprox.
226 m
Scoala Nr. 95
aprox.
539 m
Scoala nr 95
aprox.
539 m
Scoala Generala nr. 95
aprox.
539 m
Scoala 100 Andrei Saguna
aprox.
547 m
Palatul National al Copiilor
aprox.
595 m
Școala 81
aprox.
882 m
Scoala generala nr. 81
aprox.
888 m
Scoala Generala nr.81
aprox.
888 m
Liceul Teologic Penticostal "Emanuel"
aprox.
1108 m
Scoala nr.79 "Academician Nicolae Teodorescu"
aprox.
1135 m
Colegiul National "Ion Creanga"
aprox.
1168 m
scoala populara de arta
aprox.
1180 m
Scoala de Arta
aprox.
1187 m
Universitatea Titu Maiorescu - Rectorat
aprox.
185 m
Universitatea Titu Maiorescu - Corp M
aprox.
288 m
Universitatea "Titu Maiorescu"
aprox.
309 m
Universitatea Titu Maiorescu
aprox.
309 m
Universitatea Crestina "Dimitrie Cantemir"
aprox.
318 m
Universitatea "Nicolae Titulescu" - Bucuresti
aprox.
341 m
Universitatea Nicolae Titulescu
aprox.
373 m
Academia de Studii Economice
aprox.
1783 m
Academia de Studii Economice: Facultatea de Management - Administratie Publica
aprox.
1789 m
Institutul Bancar Român
aprox.
1835 m
Facultatea de Teologie Ortodoxa
aprox.
1884 m
Academie de Studii Postuniversitare - Politie
aprox.
1990 m
Institutul de Studii pentru Ordine Publica
aprox.
1990 m
Gradinita de copii nr.161
aprox.
518 m
Gradinita (progr. prelungit) Aleea Borcea - Str. Ruginoasa
aprox.
731 m
Gradinita
aprox.
749 m
Gradinita Plusica
aprox.
1074 m
Gradinita "Scufita Rosie"
aprox.
1090 m
Gradinita Kogaion
aprox.
1151 m
Gradinita de Copii nr.30 "Copiii soarelui
aprox.
1414 m
Gradinita cu program prelungit Copiii Soarelui
aprox.
1414 m
Gradinita Barba Cot
aprox.
1508 m
Kids Palace
aprox.
1663 m
Gradinita Martisor
aprox.
1707 m
Cresa Micii Poznasi
aprox.
1762 m
Gradinita Yannis & Yasmine
aprox.
1824 m
Gradinita nr. 239
aprox.
1844 m
Gradinita Pisicel
aprox.
1908 m
Penny Market
aprox.
284 m
Mega Image
aprox.
302 m
Mega Image
aprox.
334 m
Lidl
aprox.
489 m
Profi Non-Stop Vacaresti
aprox.
512 m
Nerva Center
aprox.
739 m
Supermarket Fonzi
aprox.
885 m
Mega Image - Apahida
aprox.
892 m
MGV Green Expres
aprox.
907 m
Supermarket Sinbad
aprox.
935 m
Profi
aprox.
964 m
Mega Image
aprox.
984 m
Vio-Flor Prodservicom
aprox.
993 m
Shop & Go
aprox.
1000 m
Giulio Pantofi la comanda
aprox.
1010 m
Bucharest, Calea Vitan nr. 8, Bl V51, near VITAN Mall
aprox.
1129 m
Cora Sun Plaza
aprox.
1893 m
Parcare
aprox.
488 m
Parcare
aprox.
514 m
Parcare
aprox.
528 m
Parcare
aprox.
529 m
Parcare privata
aprox.
549 m
Parcare
aprox.
575 m
Parcare
aprox.
601 m
Parcare
aprox.
609 m
Parcare
aprox.
627 m
Parcare
aprox.
675 m
Parcare
aprox.
676 m
Parcare
aprox.
696 m
Parcare
aprox.
705 m
Parcare
aprox.
714 m
Parcare
aprox.
778 m
Park
aprox.
448 m
Parc
aprox.
470 m
Parc
aprox.
536 m
Parculet (en)
aprox.
595 m
Parculet nou
aprox.
622 m
Parculet pentru copii
aprox.
631 m
Parc
aprox.
645 m
Parc
aprox.
655 m
Park (en)
aprox.
664 m
Parc
aprox.
691 m
Parc
aprox.
692 m
parculet
aprox.
764 m
Pista Automodele On-Road
aprox.
799 m
Parc
aprox.
805 m
Pista Automodele Off-Road
aprox.
814 m
Teren sportiv
aprox.
559 m
Teren sportiv
aprox.
567 m
Teren sportiv
aprox.
575 m
Teren sportiv
aprox.
732 m
Teren sportiv
aprox.
742 m
Teren sportiv
aprox.
746 m
Teren sportiv
aprox.
761 m
Teren sportiv
aprox.
772 m
Teren sportiv
aprox.
804 m
Teren sportiv
aprox.
826 m
Teren sportiv
aprox.
826 m
Teren sportiv
aprox.
849 m
Teren sportiv
aprox.
894 m
Teren sportiv
aprox.
1070 m
Teren sportiv
aprox.
1075 m
Piata Bucur
aprox.
1273 m
Piata Eroii Revolutiei (en)
aprox.
1925 m
Piata Bibescu
aprox.
1976 m
Life Med
aprox.
160 m
Eurodent
aprox.
355 m
Plastic Surgery Clinic (en)
aprox.
700 m
Biostom Bucuresti
aprox.
1013 m
SYNEVO
aprox.
1088 m
Spitalul de dermato-venerologie "Prof. Dr. Scarlat Longhin" (ABANDONAT)
aprox.
1247 m
Maternitatea Bucur
aprox.
1274 m
Policlinica vitan
aprox.
1300 m
Ponderas
aprox.
1306 m
Zerlendi
aprox.
1344 m
Medline
aprox.
1357 m
Medicover (en)
aprox.
1386 m
Clinica Polisano
aprox.
1413 m
Europe EYE Hospital (en)
aprox.
1458 m
Europe Eye
aprox.
1458 m
Farmacia Belladonna 63
aprox.
255 m
Orbit 93
aprox.
310 m
Farmacia 50
aprox.
344 m
micaplant
aprox.
350 m
Leni Farm
aprox.
365 m
2na
aprox.
482 m
Farmacia Bucuresti Tehnoplus Farm
aprox.
492 m
Farmacia Eliana
aprox.
764 m
Catena
aprox.
876 m
Help Net Farma
aprox.
890 m
Farmacia Belladonna 17
aprox.
900 m
Help Net
aprox.
959 m
Vitan Farm Impex
aprox.
1030 m
Centrofarm
aprox.
1068 m
Sactomed
aprox.
1070 m
DESCHIS Gastrobar
aprox.
103 m
Capitan
aprox.
167 m
mazzaj
aprox.
171 m
Pizza Zoom
aprox.
271 m
Creative Food
aprox.
294 m
Terasa Berarilor
aprox.
320 m
Dinos
aprox.
322 m
Dino's
aprox.
338 m
Odeon
aprox.
349 m
Restaurant Contesa
aprox.
415 m
Restaurant Moments
aprox.
435 m
Moments
aprox.
458 m
Restaurantul La Misto
aprox.
494 m
La Calinescu Taverna
aprox.
494 m
Restaurant Sare si Piper
aprox.
496 m
Kaffa Pub
aprox.
561 m
The 1st Pub
aprox.
564 m
Forno d'oro
aprox.
1031 m
Roof
aprox.
1192 m
The Temple
aprox.
1536 m
Beraria Berestoika
aprox.
1684 m
Jukebox
aprox.
1697 m
Carol Cafe
aprox.
1849 m
The Harp
aprox.
1861 m
Pizzeria Classic
aprox.
1884 m
Long Fong
aprox.
1983 m
Quartier
aprox.
774 m
Cafe Boulevard
aprox.
787 m
Kahve Dunyasi
aprox.
1053 m
Maroon Caffe
aprox.
1055 m
Sfera caffe
aprox.
1119 m
Starbucks
aprox.
1195 m
Zebra Caffe
aprox.
1262 m
gloria jeans coffee
aprox.
1303 m
High Class
aprox.
1572 m
Cafe Torino
aprox.
1575 m
Gio Cafe
aprox.
1576 m
Puerto Cafe
aprox.
1617 m
La Trenulete
aprox.
1628 m
Miau
aprox.
1659 m
Stretto Cofee
aprox.
1722 m
Pe baricade
aprox.
1604 m
Terasa Ancor
aprox.
1666 m
Bar
aprox.
1765 m
Nargila Grill&Bar
aprox.
1886 m
BarFly
aprox.
1942 m
Banca Carpatica
aprox.
101 m
BCR
aprox.
247 m
Raiffeisen Bank
aprox.
309 m
Sucursala Raiffeisen bank (en)
aprox.
619 m
Raiffeisen
aprox.
632 m
Alpha Bank (en)
aprox.
642 m
Bancpost
aprox.
655 m
Alpha Bank
aprox.
671 m
Banca Transilvania - Ag. Vacaresti
aprox.
684 m
Sucursala Banca Transilvania (en)
aprox.
695 m
UniCredit Bank - Ag. Norilor
aprox.
753 m
Banca Țiriac
aprox.
758 m
Sucursala CEC Bank Timpuri Noi (en)
aprox.
778 m
Piraeus Bank
aprox.
785 m
Pireus Bank
aprox.
800 m
Dacă te vei muta în acest cartier, vei avea la dispoziție două stații de metrou care îți vor face călătoriile prin oraș mult mai ușoare și mai rapide. Este vorba despre Tineretului, stație situată pe magistrala 2 Berceni - Pipera, și despre Timpuri Noi, de unde poți lua metroul atât pentru a te deplasa pe ruta magistralei 1 Dristor - Pantelimon, cât și pe M2 Preciziei - Anghel Saligny. De la Tineretului ajungi, de exemplu, la Piața Universității în 5 minute și în Pipera în circa 15 minute. Alte mijloace de transport în comun care traversează zona de care ești interesat sunt tramvaiul 19, cu care poți să mergi către sud-estul orașului (Titan - Pallady), autobuzul 133 care îți oferă o legătură directă cu Piața Romană și troleibuzul 74 care ajunge la Piața Unirii.
Trei universități private își au sediul în această zonă, în imediata vecinătate a stației de metrou Timpuri Noi. Este vorba despre Universitatea "Titu Maiorescu", Universitatea "Nicolae Titulescu" și Universitatea Creștină "Dimitrie Cantemir". Alături de acestea este situat și Căminul Studențesc "Nicolae Titulescu". Unul dintre cele mai renumite licee din București poate fi găsit tot în această zonă. Colegiul Național "Gheorghe Șincai" se află lângă stația de metrou Tineretului. Caută pe hartă care vor fi cele mai apropiate instituții de învățământ de viitoarea ta locuință.
Multe dintre blocurile din această zonă dispun de spații comerciale la parter, deci chiar și atunci când vrei să faci doar câteva cumpărături rapide vei avea destul de multe opțiuni în apropiere. Poți cumpăra fructe și legume din Piața Norilor, aflată la doi pași de stația de metrou Tineretului, sau din Piața Timpuri Noi, situată lângă clădirea Universității "Titu Maiorescu". În vecinătatea acesteia vei găsi și un supermarket Profi. Chiar lângă Pasajul Mihai Bravu vei avea la dispoziție un magazin Lidl. Ajungi, totodată, rapid din zona Tineretului - Timpuri Noi la trei mall-uri: Sun Plaza, București Mall și ParkLake. La fel, în doar câteva minute ești cu mașina în centru. Consultă harta și vezi unde găsești cel mai apropiat magazin de viitoarea ta locuință.
O parcare publică cu câteva sute de locuri, dar și stații de încărcare pentru autovehiculele electrice este amplasată chiar lângă Palatul Național al Copiilor. Tot în apropiere, lângă Sala Polivalentă, ai câteva locuri de parcare la dispoziție, dacă ajungi la parc cu mașina. Îți recomandăm, totodată, să apelezi la Direcția Mobilitate Urbană Sector 4 dacă vei dori să închiriezi un loc de parcare în apropierea viitoarei tale locuințe. Un alt lucru pe care e bine să îl știi este că intersecția dintre Calea Șerban Vodă și bulevardele Tineretului, Gheorghe Șincai și Dimitrie Cantemir este una dintre cele mai aglomerate din zonă, în special la orele de vârf.
Zona Tineretului-Timpuri Noi îți oferă numeroase opțiuni de petrecere a timpului liber și poate fi ideală dacă ai copii. Vei avea la doi pași de casă Parcul Tineretului unde aceștia se pot plimba cu rolele sau cu bicicleta. Îi poți duce, totodată, la joacă în spațiile special amenajate pentru ei din Orășelul Copiilor. În zonă vei găsi un club cu terenuri de tenis, restaurant și piscină aflat vis-a-vis de Sala Polivalentă unde sunt organizate periodic târguri și diferite evenimente culturale și sportive. Palatul Național al Copiilor trebuie menționat fiind reprezentativ pentru acest cartier. Aici îți poți înscrie micuțul la diferite cluburi. În incinta sa funcționează și Teatrul Stela Popescu, iar lângă el, spre Pasajul Mihai Bravu vei găsi Parcul Lumea Copiilor. Acesta din urmă cuprinde mai multe terenuri sportive și chiar și o pistă de karting. Parcul Carol se află și el în apropiere. Aici vei găsi Arenele Romane, unde se organizează periodic concerte. Ajungi foarte rapid și în Parcul Natural Văcărești, dacă vrei să evadezi în natură câteva ore sau să te plimbi cu bicicleta. În zona Tineretului ai la dispoziție câteva restaurante și cafenele, iar pentru mai multă diversitate poți oricând să dai o fugă în Centrul Vechi al orașului. Dacă te vei muta aici, vei ajunge rapid la trei mall-uri - Sun Plaza, București Mall, ParkLake - și la centrul comercial Unirea Shopping Center. Află unde sunt localizate toate acestea de pe hartă.
La doi pași de Bulevardului Mărășești este localizată Maternitatea Bucur, iar unul dintre cele mai apropiate spitale private la care vei avea acces dacă te muți în zona Tineretului - Timpuri Noi este Monza Metropolitan Hospital de pe Calea Șerban Vodă. Institutul de Pneumologie Marius Nasta IV și Policlinica cu Plată nr. 3 pot fi găsite și ele în vecinătatea Parcului Tineretului. Consultă harta pentru a vedea ce alte unități sanitare sunt disponibile în zonă și în apropiere.
Ai la dispoziție câteva restaurante și terase pe principalele artere de circulație din zonă. Pe Bulevardul Dimitrie Cantemir găsești o cofetărie și una dintre cele mai apreciate shaormerii din oraș, pe Bulevardul Gheorghe Șincai o serie de cafenele, iar pe Calea Văcărești câteva restaurante. Poți lua o gustare și în cadrul proiectului dezvoltat de Vastit vis-a-vis de stația de metrou Timpuri Noi. Alte câteva opțiuni găsești și pe Strada Nerva Traian din apropiere. Mici terase pot fi găsite și în zona parcurilor la care ai acces în apropierea casei tale, iar dacă ai poftă de fast food poți să mergi la drive through-ul McDonald"™s situat lângă intrarea în Orășelul Copiilor sau la food court-ul din Sun Plaza. Ajungi în doar câteva minute cu mașina și la mall-urile ParkLake sau București Mall pentru o sesiune de shopping urmată de o gustare, iar dacă vrei mai multă diversitate poți să mergi, chiar și cu mijloacele de transport în comun, până în centrul orașului. Durează foarte puțin și vei găsi cu siguranță ceva pe gustul tău. Consultă harta și află ce restaurante, terase și fast food-uri ai lângă viitoarea ta locuință din zona Tineretului - Timpuri Noi.
Ai la dispoziție mai multe ATM-uri și sucursale bancare în intersecția aflată lângă Colegiul Național "Gh. Șincai" - ING, BRD, Raiffeisen Bank. La doi pași găsești și o Banca Transilvania. Consultă pe hartă și află unde se află cel mai apropiat bancomat de locuința ta.
Înainte să pleci...
Ești sigur că ai văzut și aceste proprietăți?
1.150.000 €
București, Tineretului
317,82 mp utili
Bloc de apartamente
4E
1.250.000 €
București, Berceni
1.248 mp utili
Depozitare
2021
1.100.000 €
București, Lacul Morii
1.394,68 mp utili
Casă/Vilă
4E
Creează alertă
Salvează căutarea ca să primești pe email ultimele anunțuri publicate
Spații comerciale cu 4+ camere de vânzare în zona Tineretului, Sector 4
Cere detalii prin email
*
*
*
*
Detaliile tale de contact vor fi partajate cu Posh Estate