1

Casa / Spatiu birouri/ Zona semi-centrala/ COMISION 0%

350.000 €

Central, Sibiu

Sup. utilă / mp. utili:
110 mp
Tip prop.:
Clădire de birouri
  • • Comision 0%
  • • Locație aproximativă

Descriere spațiu comercial

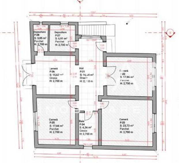
Oglan Imobiliare va ofera spre vanzare o proprietate individuala, situata in apropiere de Centrul Vechi, pe strada Lanii, intr-o zona linistita si usor accesibila, ideala atat pentru locuinta personala, cat si pentru activitati profesionale. Casa este complet finisata, cu o suprafata utila de 110 mp + pivnita de 12 mp – perfecta pentru depozitare sau spatiu tehnic. Compartimentare - decomandata: - 4 camere (living cu iesire pe terasa, 3 dormitoare) - bucatarie - baie cu geam - hol Terenul de 380 mp ofera curte proprie cu acces auto si posibilitate de amenajare gradina sau spatiu de relaxare. Functionalitati posibile: Locuinta familiala, birou, firma de servicii, cabinet medical, atelier, studio. Pret: 350.000 € negociabil - COMISION 0% Pentru mai multe detalii nu ezitati sa ne contactati! Nr terase: 1 Nr grupuri sanitare: 1 Suprafata construita: 130 mp Nr incaperi: 4 Alte detalii zona - Amenajare strazi (Asfaltate); Mijloace de transport; Iluminat stradal Utilitati - Sistem incalzire (Centrala proprie,Calorifere); Utilitati generale (Curent,Curent trifazic,Apa,Canalizare,Gaz,Telefon) Finisaje - Podele (Gresie,Parchet) Dotari - Contorizare (Apometre,Contor gaz); Dotari imobil (Curte) pret vanzare: 350000 moneda vanzare: EUR Disponibilitate proprietate: imediat
Citește mai mult Citește mai puțin
Nemobilat Curte Calorifere Centrală proprie 2 Parcări

Detalii spațiu comercial

ID anunț: X7D51407R Copiat! 273196585 Copiat!
Actualizat în: 02 Martie 2026
Suprafață utilă: 110 mp
Regim înălțime: P
Structură rezistență: Cărămidă
Stadiu construcție: Există

Utilități

Contorizare
Apometre Contor gaz
Utilități
Curent Apă Canalizare Gaze Curent trifazic Telefon
Podele
Parchet Gresie
Amenajare străzi
Asfaltate Iluminat stradal Mijloace de transport în comun

Certificat energetic:

Clasa energetică: B

Vecinătăți:

Zona linistita, acces facil spre centrul orasului

Puncte de interes

Mijloace transport
bus-station
Lidl
Stații autobuz aprox. 229 m
bus-station
McDonald's
Stații autobuz aprox. 232 m
bus-station
Atlassib
Stații autobuz aprox. 356 m
bus-station
Autogara 2
Stații autobuz aprox. 357 m
Școală
school
Scoala Nr. 1
Școli aprox. 764 m
school
Scoala Gimnaziala Turnisor
Școli aprox. 845 m
kindergarten
Hermania
Gradinițe aprox. 919 m
university
Facultatea de Stiinte Agricole
Universități aprox. 1123 m
Recreere
supermarket
Lidl
Supermarket aprox. 197 m
restaurant
McDonald's
Restaurant aprox. 239 m
sports-ground
Teren sportiv
Terenuri sport aprox. 287 m
park
Parcul Strand
Parcuri aprox. 520 m

Proprietăți similare

Spațiu comercial, de 259.00 mp, în Periferie
323.750 €
Sibiu, Periferie
259 mp utili
Bloc de apartamente
4E
Spațiu comercial, de 259 mp, în Turnișor
323.750 €
Sibiu, Turnișor
259 mp utili
Spațiu stradal
3E
Spațiu comercial, de 116.00 mp, în Mihai Viteazul
316.000 €
Sibiu, Mihai Viteazul
116 mp utili
Bloc de apartamente
2E

Detalii de contact

Oglan Imobiliare

Marius Grecu Consilier imobiliar

Oglan Imobiliare
PRO

Abonează-te la newsletter să fii primul care primește cele mai noi recomandări de proprietăți și sfaturi de la experți.

CONTACT

Creează alertă

Salvează căutarea ca să primești pe email ultimele anunțuri publicate

Spații comerciale de vânzare în zona Central, Sibiu