Spatiu birouri Centru, langa pacrul Sub Arini, Sibiu

600.000 € + TVA

Central, Sibiu

Sup. utilă / mp. utili:
280 mp
Tip prop.:
Clădire de birouri
  • • Locație aproximativă

Descriere spațiu comercial

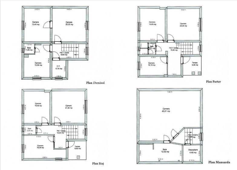
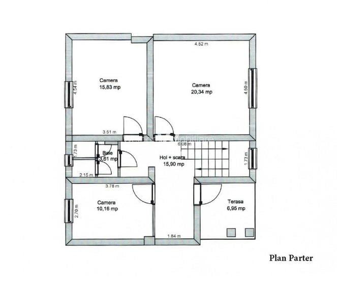
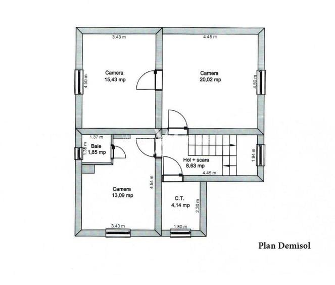
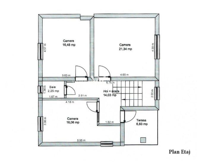
Spatiu de birouri de vanzare - Zona Bulevardul Victoriei(vis a vis de Parcul Subarini). Spatiul de vanzare este complet renovat(2023), este modern amenajat si dispune de finisaje de calitate. Spatiul de birouri are 8 camere, 5 bai si o bucatarie si o zona mare de luat masa. Suprafata totala construita este de 350 mp, iar suprafata utila este 280 mp(***vezi schita). Cladirea beneficiaza de teren 180 mp, iar curtea libera are 80 mp. Detaliii spatiu: - Destinație schimbată - funcționează ca spațiu de birouri - complet renovat și amenajat - exteriorul a fost refăcut complet (spațiul a fost izolat, iar fatada a fost facuta în toamna anului 2023) - zona de relaxare amenajata, pavata, decorata cu plante ornamentale - locatie centrala, vis a vis de parcul Sub Arini - jaluzele tip rulou la fiecare fereastra - suprafata utila mare, practic compartimentata - baie pe fiecare nivel al cladirii(la parter sunt 2 băi) - sistem de aer conditionat in fiecare incapere - complet mobilat (au fost create numeroase spatii de depozitare, dulapuri, etajere) - bucatarie complet mobilata si utilata Compartimentare: Demisol: 2 camere, bucatarie, spatiu centrala si 1 toaleta Parter: 2 camere, hol larg pentru receptie si 2 toalete Etaj: 3 camere, hol, 1 toaleta si o arhiva complet amenajata Mansarda: 1 camera mare, spatiu de depozitare si 1 baie. Spațiul este pretabil pentru orice tip de business, întrucât are suprafață utilă mare și este compartimentat practic. Cladirea este amenajata modern si NU necesita investitii. Exteriorul a fost izolat complet si zugravit. Aflat în inima Sibiului, acest spațiu de birouri este perfect poziționat pentru a satisface nevoile unei afaceri în plină dezvoltare. Cu acces ușor la principalele artere de transport, la restaurante, și la alte facilități urbane, acesta ofera un mediu de lucru confortabil. Data de predare: Spatiul de birouri va fi predat in 2 saptamani de la semnarea contractului de vanzare. Pret: 600,000 + TVA. Daca proprietatea va fi achitionata de o persoana juridica, TVA-ul este 0. Detalii si vizionari: *Comision client 1% din valoarea de tranzactionare.
Citește mai mult Citește mai puțin

Detalii spațiu comercial

ID anunț: XB501404I Copiat! 275273015 Copiat!
Actualizat în: 13 Martie 2026
Suprafață utilă: 280 mp
Clasă birouri: A
Regim înălțime: P+M
Stadiu construcție: Există

Utilități

Utilități
Curent Apă Canalizare
Comision
standard

Disponibilitate proprietate:

Imediat

Puncte de interes

Mijloace transport
bus-station
Billa
Stații autobuz aprox. 164 m
bus-station
Moldovei 1
Stații autobuz aprox. 235 m
bus-station
Moldovei 2
Stații autobuz aprox. 241 m
bus-station
Transilvaniei
Stații autobuz aprox. 318 m
Școală
university
Facultatea de Stiinte Agricole
Universități aprox. 420 m
school
Scoala Nr. 1
Școli aprox. 527 m
university
Facultatea de Litere si Arte
Universități aprox. 585 m
kindergarten
Gradinita Nr. 42
Gradinițe aprox. 1259 m
Recreere
bar
Mai Coffe Lounge
Bar aprox. 128 m
sports-ground
Teren sportiv
Terenuri sport aprox. 250 m
supermarket
Profi Strand
Supermarket aprox. 352 m
park
Ghibu Parc
Parcuri aprox. 356 m

Proprietăți similare

Spațiu comercial, 638 mp în Central
570.000 €
Sibiu, Central
638 mp utili
Showroom
1E
Spațiu comercial, 185 mp în Central
540.000 €
Sibiu, Central
185 mp utili
Centru comercial
2021
Spațiu comercial, de 2,300.00 mp, în Turnișor
630.000 €
Sibiu, Turnișor
2.300 mp utili
data_properties.building_type.shopping-center
3E

Detalii de contact

Welhome Imobiliare

Mihai Grajdan Broker imobiliar

Welhome Imobiliare
PRO

Abonează-te la newsletter să fii primul care primește cele mai noi recomandări de proprietăți și sfaturi de la experți.

CONTACT

Creează alertă

Salvează căutarea ca să primești pe email ultimele anunțuri publicate

Spații comerciale cu 4+ camere de vânzare în zona Central, Sibiu