Spatiu de birouri de vanzare – 360 mp, Central - Sibiu

390.000 € + TVA

Ultracentral, Sibiu

Sup. utilă / mp. utili:
360 mp
Tip prop.:
Clădire de birouri
Niv.:
2
An constr.:
1980 (Există)
  • • Locație aproximativă

Descriere spațiu comercial

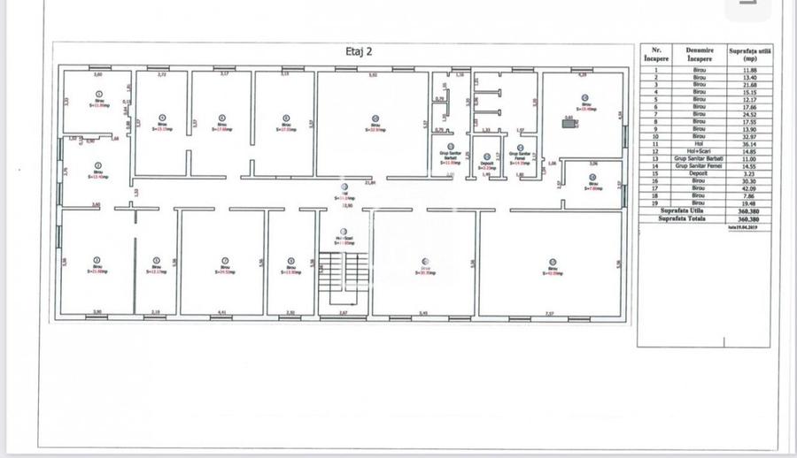
Agentia Vision Home ofera spre vanzare un spatiu de birouri complet renovat, situat intr-o zona de top din Sibiu, ideal pentru investitie sau utilizare proprie. Caracteristici: • Suprafata utila: 360 mp • Compartimentare eficienta: 12 birouri, 2 grupuri sanitare, oficiu • Facilitati: contorizare separata, acces privat • Dotari: 2 centrale termice, aer conditionat, finisaje moderne Investitie sigura Imobilul este complet inchiriat, generand un venit anual de 30.000 euro, cu posibilitate de preluare a contractelor existente. Pret: 390.000 euro Pentru mai multe detalii si programari vizionari, contactati-ne. Pentru aceasta proprietate se percepe un comision de 2% din pretul de vanzare. Vision Home Real Estate offers for sale a fully renovated office space, located in a prime area of Sibiu – ideal for investment or personal use. Key Features: • Usable area: 360 sqm • Efficient layout: 12 offices, 2 restrooms, kitchenette • Facilities: separate metering, private access • Equipment: 2 heating systems, air conditioning, modern finishes Secure Investment The property is fully leased, generating an annual income of €30,000, with the option to take over existing rental contracts. Price: €390.000 A brokerage fee of 2% of the sale price applies. For more details and to schedule a viewing, please contact us. Nr grupuri sanitare: 2 Suprafata construita: 432 mp Nr incaperi: 15 Utilitati - Sistem incalzire (Centrala proprie,Calorifere); Utilitati generale (Curent,Apa,Canalizare,Gaz,CATV,Telefon) Finisaje - Izolatii termice (Exterior); Podele (Gresie,Parchet); Stare interior (Renovat); Iluminat (Lumina naturala); Ferestre cu geam termopan (PVC) Dotari - Contorizare (Apometre,Contor gaz); Dotari imobil (Interfon) pret vanzare: 390000 moneda vanzare: EUR Disponibilitate proprietate: imediat
Citește mai mult Citește mai puțin
Calorifere Centrală proprie Renovat

Detalii spațiu comercial

ID anunț: XC4Q1403Q Copiat! 257863076 Copiat!
Actualizat în: 23 Martie 2026
Suprafață utilă: 360 mp
Etaj: Etaj 2 / 2
Clasă birouri: A
Regim înălțime: P+2E
Structură rezistență: Beton
Stadiu construcție: Există

Utilități

Contorizare
Apometre Contor gaz
Facilități imobil
Interfon
Utilități
Curent Apă Canalizare Gaze CATV Telefon
Podele
Parchet Gresie
Izolații termice
Exterior
Ferestre cu geam termopan
PVC
Comision
2%

Puncte de interes

Mijloace transport
bus-station
Constitutiei
Stații autobuz aprox. 211 m
bus-station
BRD
Stații autobuz aprox. 247 m
bus-station
Parcul Tineretului
Stații autobuz aprox. 268 m
bus-station
Spitalul Judetean
Stații autobuz aprox. 292 m
Școală
school
Scoala Generala Nr.2
Școli aprox. 166 m
school
Scoala gimnaziala nr. 2
Școli aprox. 189 m
university
Decanat - Facultatea de Medicina
Universități aprox. 242 m
kindergarten
Gradinita Nr. 18
Gradinițe aprox. 1128 m
Recreere
restaurant
Bufnita
Restaurant aprox. 116 m
sports-ground
Teren basket
Terenuri sport aprox. 160 m
park
Parcul Tineretului
Parcuri aprox. 212 m
supermarket
Billa
Supermarket aprox. 264 m

Proprietăți similare

Spațiu comercial, de 181.00 mp, în Ultracentral
400.000 €
Sibiu, Ultracentral
181 mp utili
Casă/Vilă
1E
Spațiu comercial, de 136.00 mp, în Ultracentral
375.000 €
Sibiu, Ultracentral
136 mp utili
Casă/Vilă
2E
Spațiu comercial, de 97 mp, în Ultracentral
399.000 €
Sibiu, Ultracentral
97 mp utili
Bloc de apartamente
3E

Detalii de contact

Vision Home

Ionel Vilcu Administrator

Vision Home
PRO

Abonează-te la newsletter să fii primul care primește cele mai noi recomandări de proprietăți și sfaturi de la experți.

CONTACT

Creează alertă

Salvează căutarea ca să primești pe email ultimele anunțuri publicate

Spații comerciale de vânzare în zona Ultracentral, Sibiu