Cladire sp.com.+ hale + birouri, P+E+M, Su=780 mp, T=914 mp, Zahana

660.000 €

Zahana, Slatina

Sup. utilă / mp. utili:
780 mp
Tip prop.:
Clădire mixtă
Niv.:
1
An constr.:
2000
  • • Comision 0%
  • • Locație exactă

Descriere spațiu comercial

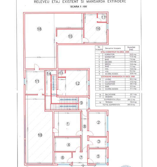
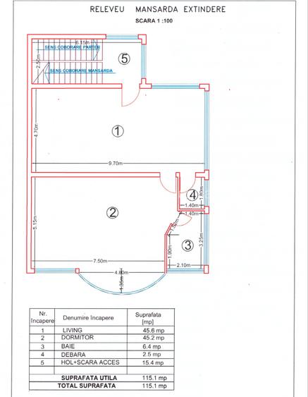
Imobilul oferit spre vanzare de agentia imobiliara, este o constructie P+1E+M, construita in anul 2000 pe cadre cu zidarie portanta, ce permite cu usurinta recompartimentare si reamenajare, amplasat pe un teren in suprafata de 914 mp., cu deschidere la doua strazi si laturi aproximativ egale, pe str. Profesor Marin S. Andreian, foarte aproape de Piata Zahana. Suprafata construita la sol este de cca 500 mp., iar suprafata utila totala este de 780 mp, la care se adauga suprafata unei terase de 79 mp, situata la etajul 1, distribuita astfel: PARTER - 384 mp., compartimentat in 7 incaperi , 3 grupuri sanitare si casa scarii. ETAJ I si MANSARDA – 360 mp., din care 121 mp. sunt la etaj 1, 79 mp. sunt pe terasa etajului 1, si 160 mp sunt la mansarda, compartimentat in 7 incaperi, 2 bucatarii, 2 bai, 2 holuri, casa scarii si terasa. MANSARDA – 115 mp, compusa din 2 camere, baie, camara si casa scarii. Finisajele interioare au fost realizate integral dupa anul 2000, pardoselile sunt in cea mai mare parte din granit, parchet si gresie, tamplaria este din aluminiu, iar incalzirea se face cu centrala termica pe gaz, cladirea fiind racordata la toate utilitatile : gaz, apa, canal, curent electric monofazic si trifazic. Cladirea poate avea multiple functionalitati, in sensul de activitati comerciale, spatii de birouri si sedii firme, clinica medicala, cabinete medicale, gradinita privata, sali de prezentare si expozitii, etc. Pana in acest moment, aceasta a avut destinatie mixta, parterul fiind amenajat cu spatii tip hale/garaje, iar etajul si mansarda au fost amenajate ca spatii de birouri si spatii de locuit. NU SE PERCEPE COMISION LA CUMPARARE.
Citește mai mult Citește mai puțin

Detalii spațiu comercial

ID anunț: X66A0400L Copiat! 242306748 Copiat!
Actualizat în: 26 Februarie 2025
Clasă birouri: B
Regim înălțime: P+1E+M+T
Suprafață teren: 914 mp
Recomandare utilizare: Pentru investiție

Certificat energetic:

Clasa energetică: B

Puncte de interes

Mijloace transport
bus-station
Statia Textila Rural
Stații autobuz aprox. 365 m
bus-station
Autogara
Stații autobuz aprox. 1350 m
bus-station
Gara Slatina
Stații autobuz aprox. 1454 m
bus-station
Gara Slatina
Stații autobuz aprox. 1461 m
Școală
school
Colegiul Economic P.S. Aurelian
Școli aprox. 263 m
school
Liceul cu Program Sportiv Slatina
Școli aprox. 658 m
school
Liceul Sportiv Slatina
Școli aprox. 690 m
kindergarten
Gradinita nr.3
Gradinițe aprox. 1576 m
Recreere
supermarket
Carrefour Market
Supermarket aprox. 296 m
sports-ground
Teren sportiv
Terenuri sport aprox. 636 m
restaurant
AXA
Restaurant aprox. 644 m
park
Parc Pitesti
Parcuri aprox. 856 m

Detalii de contact

Abonează-te la newsletter să fii primul care primește cele mai noi recomandări de proprietăți și sfaturi de la experți.

CONTACT

Creează alertă

Salvează căutarea ca să primești pe email ultimele anunțuri publicate

Spații comerciale de vânzare în zona Zahana, Slatina