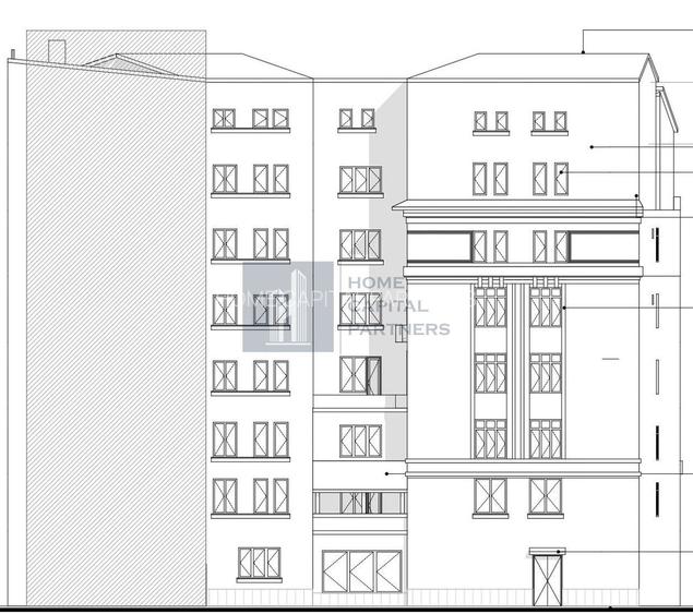
În inima Bucureștiului, la câțiva pași de Piața Universității, o clădire interbelică cu personalitate își caută noul proprietar. Cu un regim de 2S + P + 7E, imobilul însumează 5.420 mp construiți și 4.447 mp utili, distribuiți pe etaje de aproximativ 556 mp – suficient de generoase pentru a găzdui birouri boutique, spații de co-working sau chiar un concept de aparthotel/boutique hotel. Arhitectura clasică, proporțiile elegante și reperele istorice din jur creează un cadru potrivit brandurilor care își doresc vizibilitate și identitate distinctă.
Clădirea își păstrează farmecul epocii 1920–1940, iar cele două niveluri de subsol adaugă funcționalitate pentru arhivă, depozitare ori spații tehnice. În starea actuală, proprietatea necesită modernizare; consolidarea structurală este recomandată pentru accesarea segmentului corporate sau hotelier internațional. Parcarea este limitată la stradal/proximitate, însă pot fi activate parteneriate cu parcări publice sau private din zonă.
Potențialul de repoziționare este evident: un lobby reimaginat, wayfinding coerent și un mix de unități de 150–300–400 mp ar transforma imobilul într-un produs contemporan, fără a pierde valoarea istorică. Locația centrală rămâne atuul decisiv: metrou, linii STB, parcări publice și principalele instituții culturale și administrative sunt la îndemână, susținând cererea și lichiditatea la exit.
Tranzacția se propune „la cerere”, în format asset, cu documentația tehnică și juridică disponibilă la solicitare.
Pentru mai multe detalii și programarea unei vizionări, vă rugăm să ne contactați.
Aceasta este o oportunitate rară de a îmbina povestea unui imobil emblematic cu un plan de investiție actual, într-una dintre cele mai căutate zone ale orașului.
Sediul central - Timișoara
Bulevardul Victor Babeș nr. 2, 300230, Timișoara, România
Tel: +40.374.40.44.98 / Fax: +40.256.401.179
Email: suport@imobiliare.ro
Luni - Vineri 08:00 - 20:00
Punct de lucru - București: Iride Business Park, Bld. Dimitrie
Pompeiu 9-9A, Clădirea B2B,
020335, Sector 2, București, România
CONTACT
Sediul central - Timișoara
Bulevardul Victor Babeș nr. 2, 300230, Timișoara, România
Tel: +40.374.40.44.98 / Fax: +40.256.401.179
Email: suport@imobiliare.ro
Luni - Vineri 08:00 - 20:00
Punct de lucru - București: Iride Business Park, Bld. Dimitrie
Pompeiu 9-9A, Clădirea B2B,
020335, Sector 2, București, România
Statia Pod Izvor, linia 385, 124, 136, N115, N120, N122, 104, 123, M1,M3
aprox.
868 m
Statia Piata Rosetti linii : 61,66,69,70,85,90,91,92,336,601.
aprox.
869 m
Statia Metrou Piata Romana(M2)Metrorex
aprox.
631 m
Metrorex. Stația Piața Romană (M2)(1988)
aprox.
652 m
Piata Romana (M2)
aprox.
652 m
Metrorex. Stația Universitate (M2)(1987)
aprox.
667 m
Statia Metrou Piata Romana(M2)Metrorex
aprox.
702 m
Statia Metrou Piata Universitatii(M2)Metrorex
aprox.
745 m
Universitate (M2)
aprox.
790 m
Statia Metrou Piata Universitatii(M2)Metrorex
aprox.
807 m
Izvor
aprox.
857 m
Metrorex. Stația Izvor (M1),(M3)(1979)
aprox.
866 m
Metrorex. Statia Izvor (M1) , (M3).
aprox.
867 m
Metrorex. Statia Izvor (M1) , (M3).
aprox.
897 m
Metrorex. Stația Piața Unirii 2 (M2) (en)
aprox.
1376 m
Metrorex. Stația Piața Unirii 1 (M1) (en)
aprox.
1407 m
Metrorex. Piata Victoriei 1/2 (M1) , (M2)
aprox.
1436 m
Statia Piata Romana linii : 79,86
aprox.
819 m
Statia Calea Dorobantilor; Liniile:79, 86,
aprox.
923 m
Statia Vasile Parvan 66,70,92
aprox.
980 m
Statia Facultatea de Drept, linia 61,69,90,91
aprox.
1150 m
Statia Piata Operei, linia 61,69,90,91
aprox.
1565 m
Statia Stirbei Voda, linia 96
aprox.
1653 m
statia RATB Eroilor: 69, 96
aprox.
1728 m
Statia Pod Cotroceni, linia 93, 62, 96
aprox.
1912 m
Piata Sf. Gheorghe
aprox.
1093 m
Statia Batistei; Linia: 5, 16
aprox.
1110 m
Mircea Vulcanescu
aprox.
1145 m
Piata Sf. Gheorghe
aprox.
1180 m
Hristo Botev
aprox.
1206 m
Bd. Hristo Botev
aprox.
1210 m
Statia Maria Rosetti;Liniile:5, 16
aprox.
1215 m
Maria Rosetti
aprox.
1241 m
Bd. Carol I
aprox.
1258 m
Buzesti
aprox.
1262 m
Statia Armeneasca / Bd. Carol I, linia 5,16
aprox.
1303 m
Teatrul Metropolis
aprox.
1334 m
Piata Buzesti
aprox.
1337 m
Teatrul Metropolis
aprox.
1386 m
Doctor Felix
aprox.
1422 m
Vechea "Gara a Targovistei" astazi parte din Gara de Nord
aprox.
1757 m
Gara Bucuresti Nord
aprox.
1943 m
Palatul Fundației Universitare "Carol I"
aprox.
229 m
Universitatea Nationala de Muzica Conservator
aprox.
312 m
Universitatea Nationala de Muzica Bucuresti
aprox.
312 m
Facultatea de Stiinte Politice
aprox.
344 m
Universitatea Nationala de Arte (facultatea de Arte Plastice si Facultatea de Istoria si Teoria Artei)
aprox.
414 m
Universitatea Nationala de Arte
aprox.
414 m
Centrul de Limbi Straine Ariel
aprox.
503 m
University of Bucharest - Faculty of Foreign Languages and Literatures (en)
aprox.
510 m
Facultatea de Administrarea Afacerilor cu predare in limbi straine
aprox.
599 m
Scoala de Inalte Studii Postuniversitare de Management
aprox.
599 m
Rectoratul UMF "Carol Davila"
aprox.
608 m
UAUIM -Universitatea de Arhitectura si Urbanism Ion Mincu
aprox.
613 m
Facultatea de Farmacie/Pharmacy Faculty
aprox.
622 m
Facultatea de Matematica-Informatica
aprox.
623 m
Facultatea de Farmacie
aprox.
630 m
Ateneul roman, Bucuresti
aprox.
268 m
Scoala Nr. 118 Vasile Alecsandri
aprox.
299 m
Colegiul National Sfantul Sava
aprox.
330 m
Scoala Generala Nr. 5 Corneliu M. Popescu
aprox.
330 m
Fostul Liceu de Arte Plastice Nicolae Tonitza - Sediul
aprox.
385 m
Scoala speciala nr. 10
aprox.
422 m
Scoala special nr. 10
aprox.
440 m
ASLS (en)
aprox.
515 m
Institutul Cervantes
aprox.
560 m
Scoala Nr. 19 Tudor Arghezi
aprox.
650 m
French School of Bucharest (en)
aprox.
697 m
Colegiul German Goethe
aprox.
697 m
Schiller Institut
aprox.
730 m
Liceul "Nicolae Tonitza"
aprox.
785 m
Amfiteatrul Sahia
aprox.
824 m
Gradinita nr. 116
aprox.
557 m
Gradinita nr. 203 program prelungit
aprox.
651 m
Gradinita nr.203 (fosta Clementa)
aprox.
662 m
Gradinita nr.4 "Lizuca"
aprox.
795 m
Gradinita nr. 248
aprox.
802 m
Gradinita Nr. 78 Miguel de Cervantes
aprox.
807 m
Gradinita MAPN
aprox.
849 m
Ioanid
aprox.
959 m
Gradinita Ioanid
aprox.
963 m
Gradinita nr. 73
aprox.
970 m
Gradinita Smiley
aprox.
1031 m
Gradinita nr. 85
aprox.
1062 m
Gradinita numarul 133
aprox.
1153 m
Gradinita numarul 257
aprox.
1201 m
Gradinita nr. 252 cu program prelungit
aprox.
1281 m
Mega Image Brezoianu
aprox.
205 m
Mega Image Amzei Non-Stop
aprox.
411 m
ilanplant
aprox.
439 m
Mega Image Magheru
aprox.
442 m
Mega Image Rosetti Non-Stop
aprox.
453 m
Nik Non-Stop
aprox.
456 m
Pravalia Maestrului
aprox.
568 m
Bacania Coco
aprox.
703 m
Mega Image Elisabeta Non-Stop
aprox.
715 m
Mag.Victoria
aprox.
783 m
OK Non-stop Supermarket (en)
aprox.
950 m
OK Non-Stop
aprox.
950 m
Bila Supermarket
aprox.
986 m
BILLA - Dorobanti
aprox.
995 m
Mega Image - Icoanei
aprox.
1037 m
"METROPLIS CENTER"
aprox.
1400 m
Parcare
aprox.
16 m
Parcare
aprox.
74 m
Parcare
aprox.
122 m
Parcare
aprox.
147 m
Parcare
aprox.
152 m
Parcare
aprox.
173 m
Parcare
aprox.
200 m
Parcare
aprox.
237 m
Parcare
aprox.
239 m
Parcare
aprox.
268 m
Parcare
aprox.
302 m
Parcare cu plata
aprox.
304 m
Parcare
aprox.
304 m
Parcare
aprox.
305 m
Parcare privata
aprox.
369 m
Park (en)
aprox.
197 m
Piata George Enescu
aprox.
197 m
Parc
aprox.
228 m
Parc
aprox.
253 m
Parc
aprox.
266 m
Parc
aprox.
272 m
Parc
aprox.
291 m
Parc
aprox.
293 m
Piata Walter Maracineanu
aprox.
307 m
Entrace
aprox.
443 m
Parcul Cismigiu
aprox.
459 m
Parcul Cismigiu
aprox.
465 m
Loc de Joaca
aprox.
495 m
Parc
aprox.
508 m
Parc
aprox.
546 m
Piata Revolutiei
aprox.
246 m
Piața Drapelului (Tricolorului)
aprox.
600 m
Piata Universitatii
aprox.
763 m
Piața Romană
aprox.
801 m
Piata Rosetti
aprox.
1023 m
Piata Emil Cioran (Vergilius) (en)
aprox.
1069 m
Piata Natiunilor Unite
aprox.
1133 m
Piata Roma
aprox.
1136 m
Piata Timpului
aprox.
1268 m
Piața Sfântul Anton
aprox.
1279 m
Piața Constituției
aprox.
1427 m
Piata Latina
aprox.
1578 m
Piata Bibescu
aprox.
1670 m
Teren sportiv
aprox.
583 m
Teren sportiv
aprox.
881 m
Teren sportiv
aprox.
925 m
Baza sportiva Universitatea Bucuresti
aprox.
1014 m
Teren sportiv
aprox.
1023 m
teren tenis
aprox.
1028 m
Teren sportiv
aprox.
1197 m
Teren sportiv
aprox.
1589 m
Teren sportiv
aprox.
1641 m
Teren sportiv
aprox.
1660 m
Teren sportiv
aprox.
1667 m
Teren sportiv
aprox.
1672 m
Teren sportiv
aprox.
1683 m
Teren sportiv
aprox.
1684 m
Teren sportiv
aprox.
1700 m
Catena
aprox.
161 m
Farmacia Academia
aprox.
389 m
Catena Farmacie
aprox.
421 m
3F Farmacie Farmec Frumusete
aprox.
441 m
Farmacia Stefania
aprox.
458 m
Sensiblu Pt. Amzei
aprox.
473 m
Farmacia Dona 14
aprox.
494 m
Royal Blu Pharmacy
aprox.
499 m
Help Net Farma
aprox.
510 m
Sensiblu
aprox.
529 m
Sibpharmed
aprox.
571 m
Farmacia Reteta
aprox.
571 m
belladona
aprox.
592 m
SensiBlu
aprox.
594 m
Sensiblu
aprox.
610 m
Centrul Medical Unirea sediul Enescu
aprox.
355 m
Centrul Medical Unirea Enescu
aprox.
380 m
Centrul Medical Academica
aprox.
623 m
Clinica ORL Dr. Mocanu
aprox.
637 m
Spitalul Carol Davila de urologie
aprox.
641 m
Spitalul Clinic de Nefrologie Dr. Carol Davila
aprox.
641 m
Spitalul clinic de nefrologie "Dr. Carol Davila"
aprox.
681 m
Policlinica (en)
aprox.
716 m
Centrul Medical Batistei
aprox.
736 m
Spitalul Clinic de Urgente Oftalmologice
aprox.
784 m
Spitalul de Oftalmologie
aprox.
793 m
Clinica Reumatologie "Dr. Ion Stoia"
aprox.
856 m
Policlinica Ministerului de Interne
aprox.
860 m
Spitalul Clinic de Chirurgie Oro-Maxilo-Faciala
aprox.
883 m
Bioderm Eminescu (en)
aprox.
936 m
Fast Food La Rechinu'
aprox.
139 m
Sharkia
aprox.
193 m
Excelsior
aprox.
226 m
Tratoria Il Calcio
aprox.
232 m
Trattoria Il Calcio
aprox.
245 m
Bistro Atheneu
aprox.
251 m
Le Theatre
aprox.
270 m
Bel Cano
aprox.
295 m
Hotel Berthlot ****
aprox.
299 m
Byblos
aprox.
314 m
Excalibur
aprox.
317 m
Restaurant "La Mama"- Ateneu
aprox.
328 m
La Mama
aprox.
328 m
Restaurant "La mama" 3 (en)
aprox.
333 m
Hotel Opera (en)
aprox.
340 m
Fratelli Espresso Bar
aprox.
281 m
A1
aprox.
402 m
Control Club
aprox.
515 m
LondonPhone
aprox.
538 m
Gambrinus
aprox.
571 m
Yellow Bar
aprox.
608 m
Frame
aprox.
695 m
Piua Book Bar
aprox.
709 m
Que Pasa
aprox.
729 m
Energiea
aprox.
738 m
Interbelic Victoria
aprox.
774 m
Opium Stage Club
aprox.
788 m
Beer o'clock
aprox.
793 m
Letters Bar
aprox.
910 m
Expat
aprox.
973 m
Mara Mura
aprox.
300 m
Zvon Caffe
aprox.
312 m
Cafeneaua Arhitectilor
aprox.
319 m
Nana
aprox.
344 m
Mi-nut
aprox.
437 m
Camera din Fata
aprox.
497 m
Gradina Verona
aprox.
542 m
Gradina OAR
aprox.
545 m
Caffeine & Latte
aprox.
594 m
Demmers Teahouse
aprox.
595 m
Nescafe Milano
aprox.
601 m
Bouche Bee
aprox.
653 m
Dolce Baccio
aprox.
695 m
Lente Praporgescu
aprox.
701 m
Kafeterya Cafe
aprox.
734 m
James Joyce's Pub & Restaurant
aprox.
314 m
Question Mark Social Club
aprox.
481 m
Coloseum
aprox.
522 m
Edgar`s Pub
aprox.
595 m
Nexus Gamers Pub
aprox.
595 m
Charlatans Irish Pub
aprox.
685 m
Club Expirat and Other Side
aprox.
738 m
OLD NICK PUB
aprox.
750 m
Clock`s
aprox.
855 m
Have a Cigar
aprox.
928 m
Vault
aprox.
970 m
The Gin Factory
aprox.
977 m
Panik & Pub
aprox.
981 m
Iron City
aprox.
983 m
S.A.L.T.
aprox.
987 m
PIRAEUS BANK
aprox.
85 m
Piraeus Bank Romania - Agentia Calea Victoriei
aprox.
120 m
CEC Bank
aprox.
124 m
UniCredit Bank - Ag. Millenium
aprox.
205 m
Unicredit Țiriac Bank (en)
aprox.
229 m
BCR
aprox.
353 m
ING Victoriei
aprox.
364 m
Banca Carpatica
aprox.
384 m
Banca Carpatica
aprox.
384 m
Alpha Bank
aprox.
386 m
BCR
aprox.
388 m
BRD
aprox.
388 m
Libra Internet Bank
aprox.
391 m
Piraeus Bank
aprox.
395 m
BRD Amzei
aprox.
397 m
Fiind o zonă ultracentrală, aceasta oferă numeroase opțiuni de călătorie cu mijloacele de transport în comun, și este bine conectată cu restul orașului. Ai, în primul rând, la dispoziție stațiile de metrou Piața Victoriei, Piața Romană și Universitate. Astfel, te vei putea deplasa rapid prin oraș, evitând aglomerația de la suprafață. Toate acestea sunt situate pe magistrala 2 care traversează Bucureștiul de la nord la sud. În plus, de la Piața Victoriei vei putea lua metroul și pe magistrala 1 pentru a ajunge, de exemplu, în cartierul Pantelimon sau în zona Eroilor. Prin Piața Universității urmează să treacă și magistrala 5 care va lega cartierele Drumul Taberei și Pantelimon. Până acum, s-au deschis însă doar stațiile de metrou aflate în zona Drumul Taberei. Alte mijloace de transport în comun care ar putea să-ți fie de ajutor atunci când te vei muta în această zonă sunt autobuzele 300 și 381. Primul face legătura dintre Piața Romană și Piața Victoriei continuându-și apoi traseul de-a lungul Bulevardului Ion Mihalache, iar cel de-al doilea conectează Piața Victoriei cu zona Tineretului și cu cartierul Berceni. De pe Bulevardul Regina Elisabeta vei putea lua troleibuzul 90 pentru a ajunge în Drumul Taberei sau în zona Arenei Naționale, iar în fața Spitalului Colțea vei găsi stația autobuzului 381 care merge în cartierul Berceni. Iar dacă preferi să te deplasezi pe două roți, vei avea la dispoziție una dintre pistele speciale destinate bicicliștilor pe Calea Victoriei. Aceasta îți va oferi, în plus, oportunitatea ideală de a admira arhitectura deosebită a clădirilor aflate de o parte și de alta a uneia dintre cele mai frumoase străzi din București. Consultă harta pentru a afla unde sunt localizate stațiile mijloacelor de transport în comun.
În această zonă găsim sediul central al Universității din București și cel al Academiei de Studii Economice din București (ASE), unele dintre cele mai prestigioase instituții de învățământ superior din România. Tot aici se află și sediile mai multor facultăți. Ai și alte instituții de învățământ cu renume la doi pași de casă, precum precum Colegiul Național "Sfântul Sava", Colegiul Național "Gheorghe Lazăr", Liceul Teoretic Bulgar "Hristo Botev" și Universitatea Națională de Muzică. De menționat este și Căminul Moxa, aflat în zona Calea Victoriei, în care sunt cazați unii dintre studenții ASE. Consultă harta de mai jos pentru a vedea și celelalte unități de învățământ din zonă.
În această parte a orașului vei găsi numeroase reprezentanțe ale unor branduri de lux. Cele mai multe magazine alimentare din zonă au dimensiuni reduse. Pentru cumpărături îți recomandăm Piața Amzei, aflată la doi pași de Romană și modernizată recent. Aici găsești, pe lângă comercianți de unde poți cumpăra legume și fructe și câteva magazine cu preparate proaspete de la burgeri, la pâine artizanală sau înghețată. Centrul Vechi găzduiește, totodată, reprezentanțe ale unor retaileri de modă. Tot aici găsești și librăria Cărturești Carusel, una dintre cele mai frumoase din oraș. O librărie Cărturești deschisă într-o altă clădire deosebită poate fi găsită și în apropiere de Piața Romană. Un spațiu comercial cu renume este Magazinul Victoria, un monument istoric al orașului. Magazinul București, amplasat la intersecția străzilor I.C. Brătianu și Lipscani a fost reconstruit recent cu o investiție substanțială. Ai în apropiere magazinul Cocor, centrul comercial Unirea Shopping City și un hipermarket Carrefour. Cu mașina sau metroul poți să ajungi destul de repede la mall-ul AFI Cotroceni. Consultă harta și vezi ce magazine vei avea în apropierea noii tale case.
Aceasta este una dintre cele mai aglomerate zone din București la orele de vârf. Aici găsești însă și unele dintre puținele parcări subterane din Capitală. Chiar vis-a-vis de Universitatea București ai intrarea într-o astfel de parcare cu peste 400 de locuri. O parcare destul de încăpătoare poate fi găsită și în Piața Victoriei. Atenție, însă, această zonă se poate aglomera nu doar din cauza traficului, ci și din cauza diverselor manifestări sau proteste care se organizează, de obicei, în fața Palatului Victoria, sediul Guvernului României. Dacă te hotărăști să te muți în zonă, atunci îți recomandăm să te interesezi de posibilitatea închirierii unui loc de parcare pentru mașina ta. Poți face acest lucru apelând la Serviciul Parcaje al ADP Sector 1. Consultă harta pentru a afla unde găsești și alte parcări în zona Victoriei-Romană-Universitate.
Zona Victoriei - Romană - Universitate este un epicentru cultural al Capitalei și oferă numeroase opțiuni de petrecere a timpului liber. Aici vei găsi numeroase muzee impresionante pe care le poți vizita în timpul liber (Muzeul Național de Istorie Naturală "Grigore Antipa", Muzeul Țăranului Român, Muzeul Național George Enescu, etc), vei putea participa la evenimentele în aer liber desfășurate pe Calea Victoriei sau în Piața George Enescu sau vei putea merge la un spectacol organizat pe scena Ateneului Român sau pe cea a Teatrului Notarra. Nu rata nici o vizită la Teatrul Național "I.L. Caragiale" și la Muzeul Național de Artă al României. Observatorul Astronomic Amiral Vasile Urseanu te așteaptă cu o experiență extrem de educativă care va fi, cu siguranță, apreciată de micuțul tău. Dacă îți place să ieși la o cafea în timpul liber alături de prietenii tăi, atunci în această zonă vei putea alege dintr-o multitudine de restaurante, terase și pub-uri. Nu lipsesc nici skybar-urile, care îți oferă priveliști de excepție de la înălțime. Cele câteva parcuri din zona Victorieim - Romană - Universitate au dimensiuni destul de reduse, dar sunt frumos îngrijite. Printre acestea amintim Parcul Ateneului și Parcul Nicolae Iorga. Dacă preferi plimbările lungi în weekend, atunci vei avea la dispoziție în apropiere parcurile Kiseleff și Cișmigiu. Nu uita, de asemenea, că te vei afla la doi pași de Centrul Vechi al Capitalei, dar și că vei putea să faci o plimbare cu bicicleta pe Calea Victoriei. În condiții normale, se organizează periodic evenimente în centrul orașului, atât în cadrul Sălii Palatului, cât și în aer liber în Piața Revoluției. În Piața Universității sunt organizate, totodată, diferite târguri și concerte. Vezi pe hartă mai multe puncte de interes din zona Victoriei-Romană-Universitate.
Chiar la Piața Universității se află principala unitate sanitară din zonă. Este vorba despre Spitalul Clinic Colțea, primul înființat în București. În zona Victoriei - Romană - Universitate vei întâlni mai multe clinici private, precum Policlinica Enescu din cadrul rețelei de sănătate Regina Maria și Spitalul Clinic Sanador. La doi pași de Piața Romană se află Spitalul Clinic de Urgențe Oftalmologice, cel mai mare din România cu o astfel de specializare. Consultă harta pentru a afla ce clinici private ai în apropierea casei, dacă te muți în această parte a orașului.
Găsești numeroase restaurante, terase și cafenele potrivite pentru toate gusturile în Centrul Vechi al orașului, pe Calea Victoriei sau în zona din spatele Ateneului Român. Câteva fast food-uri ai la dispoziție în Unirea Shopping Center. Nu foarte departe, în zona Romană, ai și alte opțiuni. Află de pe hartă unde găsești cel mai apropiat restaurant de noua ta casă.
Sucursale ale diferitelor bănci sunt dispuse de-a lungul principalelor artere de circulație sau în marile intersecții din zonă. Un BRD, spre exemplu, găsești chiar lângă Cercul Militar Național. Pe Bulevardul Nicolae Bălcescu o sucursală Banca Transilvania și ING Bank. La doi pași de Piața Universității se află și Palatul Băncii Naționale a României. Consultă harta pentru mai multe detalii.
Înainte să pleci...
Ești sigur că ai văzut și aceste proprietăți?
19.900.000 €
București, Victoriei
9.750 mp utili
Clădire de birouri
13E
9.000.000 €
București, Romană
4.400 mp utili
Clădire de birouri
5E
5.000.000 €
București, Universitate
3.400 mp utili
Clădire de birouri
1940
10.000.000 €
București, Grozăvești
6.500 mp utili
Clădire de birouri
1E
16.250.000 €
București, Universitate
6.464 mp utili
Clădire de birouri
7E
20.000.000 €
București, Parcul Carol
11.000 mp utili
Clădire de birouri
3E
Creează alertă
Salvează căutarea ca să primești pe email ultimele anunțuri publicate
Spații comerciale cu 4+ camere de vânzare în zona P-ța Universității, Ultracentral
Cere detalii prin email
*
*
*
*
Detaliile tale de contact vor fi partajate cu Home Capital Partners