ID intern:365905
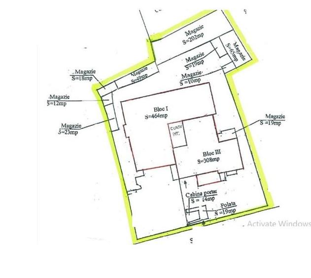
Spații de birouri amplasate în două corpuri de clădiri de birouri: bloc I, cu regim de înălțime S+P+6E+7Eteh, cu suprafață utilă de 2.702,65 mp și bloc III, cu regim de înălțime S+P+2E, cu suprafață utilă de 955,74 mp
Anul construcției: 1963 Regim de înălțime: S+P+6E +7Etehn Lift: 1 Structura: cadre din beton armat, planșee din beton armat Acoperiș: terasă Aspect interior: bun Aspect exterior: mediu Funcțiunile clădirii: etaje – birouri, ateliere de proiectare, recepții, spații pentru întâlniri, subsol: spații depozitare, centrala termică, hidrofor
Tipul construcției: clădire de birouri Anul construcției: 1940 modernizată și întreținută succesiv Regim de înălțime: S+P+2E Lift: - Structura: cadre din beton armat, planșee din beton armat Acoperiș: șarpantă cu învelitoare din tablă
Spatiu de birouri in de vanzare in zona Universitate - Bucuresti, este construit in anul 1963, renovat , Vizionarea acestui imobil se face doar în baza semnării unui acord de vizionare conform codului civil, art 2.096-2.102 .
Se percepe comision 3%. Politica agentiei este de a optimiza negocierea pretului in raport cu comisionul.
Sediul central - Timișoara
Bulevardul Victor Babeș nr. 2, 300230, Timișoara, România
Tel: +40.374.40.44.98 / Fax: +40.256.401.179
Email: suport@imobiliare.ro
Luni - Vineri 08:00 - 20:00
Punct de lucru - București: Iride Business Park, Bld. Dimitrie
Pompeiu 9-9A, Clădirea B2B,
020335, Sector 2, București, România
CONTACT
Sediul central - Timișoara
Bulevardul Victor Babeș nr. 2, 300230, Timișoara, România
Tel: +40.374.40.44.98 / Fax: +40.256.401.179
Email: suport@imobiliare.ro
Luni - Vineri 08:00 - 20:00
Punct de lucru - București: Iride Business Park, Bld. Dimitrie
Pompeiu 9-9A, Clădirea B2B,
020335, Sector 2, București, România
Statia Nicolae Balcescu; Liniile:168, 300, 368, 226, 126
aprox.
971 m
Universitate (M2)
aprox.
635 m
Statia Metrou Piata Universitatii(M2)Metrorex
aprox.
646 m
Statia Metrou Piata Universitatii(M2)Metrorex
aprox.
677 m
Metrorex. Stația Universitate (M2)(1987)
aprox.
718 m
Metrorex. Stația Piața Unirii 2 (M2) (en)
aprox.
859 m
Piata Unirii 2
aprox.
920 m
Metrorex. Stația Piața Unirii 2 (M2)(1986)
aprox.
938 m
Piata Unirii 1
aprox.
1044 m
Metrorex. Stația Piața Unirii 1 (M1) (en)
aprox.
1055 m
Metrorex. Stația Piața Unirii 1 (M1),(M3)(1979)
aprox.
1065 m
Statia Metrou Piata Romana(M2)Metrorex
aprox.
1513 m
Metrorex. Stația Piața Romană (M2)(1988)
aprox.
1554 m
Piata Romana (M2)
aprox.
1554 m
Statia Metrou Piata Romana(M2)Metrorex
aprox.
1602 m
Izvor
aprox.
1634 m
Statia Foisorul de Foc linii : 79,86
aprox.
1047 m
Statia Calea Dorobantilor; Liniile:79, 86,
aprox.
1659 m
Statia Piata Romana linii : 79,86
aprox.
1731 m
Statia Mihai Bravu; Liniile:69, 85,
aprox.
1824 m
Statia Piata Iancului, linia 55
aprox.
1869 m
Statia Soseaua Mihai Bravu, linia 68,85
aprox.
1874 m
Grupul Scolar Industrial Unirea
aprox.
152 m
Grupul Scolar Industrial Unirea (en)
aprox.
162 m
Scoala Superioara Comerciala Nicolae Kretzulescu
aprox.
187 m
Scoala Generala "Iovan Ducici", Nr 71
aprox.
298 m
Colegiul Economic Hermes
aprox.
333 m
Centrul Educational IBSEN
aprox.
346 m
GRADINITA DE COPII NR. 8 "LICURICI"
aprox.
378 m
Grup Școlar "Dragomir Hurmuzescu"
aprox.
445 m
Scoala Ajutatoare nr. 1
aprox.
514 m
Scoala cu clasele I-VIII, Nr. 73 Barbu Stefanescu Delavrancea
aprox.
515 m
Goethe Institut (en)
aprox.
520 m
Lauder Reut School Complex (en)
aprox.
543 m
Liceul Lauder-Reut
aprox.
544 m
Amfiteatrul Sahia
aprox.
572 m
SNSPA - Cladirea CIC
aprox.
573 m
Facultatea de Stiinte Politice
aprox.
591 m
Universitatea din Bucuresti - Facultatea de Stiinte Politice
aprox.
596 m
Facultatea de Chimie
aprox.
706 m
Facultatea de Farmacie
aprox.
760 m
Facultatea de litere (en)
aprox.
764 m
Facultatea de Farmacie/Pharmacy Faculty
aprox.
767 m
Facultatea de Limbi si Literaturi Straine
aprox.
775 m
Facultatea de Istorie
aprox.
798 m
UAUIM -Universitatea de Arhitectura si Urbanism Ion Mincu
aprox.
812 m
Institutul Bancar Român
aprox.
816 m
Facultatea de Stiinte
aprox.
837 m
Facultatea de Matematica-Informatica
aprox.
857 m
Rectoratul UMF "Carol Davila"
aprox.
1078 m
University of Bucharest - Faculty of Foreign Languages and Literatures (en)
aprox.
1104 m
Centrul de Limbi Straine Ariel
aprox.
1109 m
Gradinita nr.4 "Lizuca"
aprox.
619 m
Gradinita Magica
aprox.
730 m
Gradinita nr.203 (fosta Clementa)
aprox.
923 m
Gradinita
aprox.
930 m
Gradinita nr. 203 program prelungit
aprox.
950 m
Gradinita numarul 257
aprox.
953 m
Gradinita numarul 8
aprox.
1153 m
Gradinita Waldorf
aprox.
1165 m
Gradinita numarul 133
aprox.
1248 m
Amalia's Kindergarten (en)
aprox.
1281 m
Gradinita Ioanid
aprox.
1310 m
Ioanid
aprox.
1327 m
Cresa Micii Poznasi
aprox.
1337 m
Gradinita Prikindel
aprox.
1364 m
Gradinita Barba Cot
aprox.
1376 m
Mega Image Paleologu
aprox.
195 m
Cocor
aprox.
685 m
BILLA - Cocor
aprox.
688 m
Km 0
aprox.
714 m
Carrefour Unirii
aprox.
749 m
Carrefour Unirii Non-Stop
aprox.
760 m
Pravalia Maestrului
aprox.
806 m
Mega Image - Hala Traian
aprox.
824 m
Mega Image
aprox.
856 m
OK Non-stop Supermarket (en)
aprox.
878 m
OK Non-Stop
aprox.
878 m
Supermarket
aprox.
891 m
Magazin Mixt
aprox.
902 m
dm
aprox.
922 m
Shop & Go
aprox.
962 m
Bucharest, Calea Vitan nr. 8, Bl V51, near VITAN Mall
aprox.
1755 m
Parcare
aprox.
166 m
Parcare
aprox.
192 m
Parcare
aprox.
195 m
Parcare
aprox.
303 m
Parcare
aprox.
401 m
Parcare
aprox.
454 m
Parcare
aprox.
455 m
Parcare
aprox.
499 m
Parcare
aprox.
502 m
Parcare privata
aprox.
509 m
Parcare cu plata
aprox.
516 m
Parcare
aprox.
521 m
Parcare
aprox.
524 m
Parcare
aprox.
537 m
Parcare cu plata
aprox.
557 m
Parc
aprox.
260 m
Parc
aprox.
278 m
Parc
aprox.
288 m
Parc
aprox.
309 m
Spatiu verde
aprox.
355 m
Parcul Sf. Stefan
aprox.
472 m
Piata Sfantul Stefan
aprox.
472 m
Sfantul Gheorghe
aprox.
510 m
Parcul Sf. Gheorghe
aprox.
516 m
Parc
aprox.
530 m
Parc
aprox.
546 m
Parc
aprox.
551 m
Parc
aprox.
552 m
Parcul Colțea
aprox.
561 m
Parc
aprox.
567 m
Piata Rosetti
aprox.
350 m
Piata Latina
aprox.
469 m
Piata Universitatii
aprox.
636 m
Piata Roma
aprox.
668 m
Piata Timpului
aprox.
677 m
Piața Sfântul Anton
aprox.
825 m
Piața Drapelului (Tricolorului)
aprox.
1003 m
Piata Revolutiei
aprox.
1126 m
Piata Natiunilor Unite
aprox.
1258 m
Piata Bibescu
aprox.
1266 m
Piata Bucur
aprox.
1503 m
Piața Constituției
aprox.
1711 m
Piața Romană
aprox.
1742 m
Piata Iancului
aprox.
1954 m
Teren sportiv
aprox.
485 m
Teren sportiv
aprox.
609 m
Teren sportiv
aprox.
1571 m
Teren sportiv
aprox.
1727 m
Teren sportiv
aprox.
1754 m
Teren sportiv
aprox.
1905 m
Cabinet stomatologic (en)
aprox.
135 m
WORLD CLINIC - O viata fara alergii ! (en)
aprox.
243 m
ProctoMed
aprox.
368 m
Art Implant
aprox.
386 m
Medident Dental X-ray
aprox.
429 m
MediDent
aprox.
437 m
INGG Ana Aslan Spatarului nr. 15 (en)
aprox.
466 m
Spitalul Colțea
aprox.
528 m
Clinica de Stomatologie
aprox.
657 m
Centrul Medical Batistei
aprox.
699 m
Policlinica (en)
aprox.
734 m
Spitalul Prof. Dr. C-Tin Angelescu
aprox.
779 m
Spitalul Prof. Dr. C. Angelescu
aprox.
785 m
Spectrum Clinique - Clinica de Oftalmologie
aprox.
786 m
Clinica Reumatologie "Dr. Ion Stoia"
aprox.
799 m
Farmacia 2NA
aprox.
244 m
Farmacon CO Impex
aprox.
420 m
HelpNet
aprox.
444 m
Reteta
aprox.
479 m
Simidon
aprox.
492 m
General Smart Farm
aprox.
532 m
Sensiblu
aprox.
580 m
Farmacia Coltea
aprox.
615 m
Sensiblu
aprox.
625 m
Farmacia Tarsis Impex
aprox.
635 m
Farmacia Dona
aprox.
647 m
Farmacia Artafarm
aprox.
649 m
Farmacia Dona 19
aprox.
764 m
Sensiblu
aprox.
769 m
belladona
aprox.
780 m
Mandala Club (en)
aprox.
107 m
Simbio
aprox.
119 m
Crama Culmea Veche (nr.2)
aprox.
121 m
Hobby Caffe (en)
aprox.
186 m
Restaurant Angelique - .arestaurant.ro
aprox.
216 m
Naser 2
aprox.
218 m
Restaurant Golden Falcon
aprox.
236 m
Golden Falcon
aprox.
238 m
Restaurant Madame Butterfly (en)
aprox.
272 m
Urbanesc
aprox.
272 m
Rossetya
aprox.
296 m
Rossetya
aprox.
304 m
Shaorma / Falafel Alice
aprox.
308 m
fast food Non-Stop
aprox.
314 m
Corner
aprox.
336 m
Macaz Bar Teatru Coop
aprox.
178 m
Epic
aprox.
312 m
Underworld
aprox.
328 m
Geo Bar
aprox.
367 m
Dianei Patru
aprox.
406 m
BarFly
aprox.
633 m
Galliano Club
aprox.
653 m
Chat noir
aprox.
708 m
Harley
aprox.
717 m
The Elbow Room
aprox.
729 m
Sankt Petersburg Pub
aprox.
732 m
Roter Heller
aprox.
735 m
Que Pasa
aprox.
746 m
Trei Betivi
aprox.
773 m
Expat
aprox.
775 m
Club Surubelnita
aprox.
185 m
La Scena
aprox.
261 m
Manasia Hub
aprox.
453 m
Have a Cigar
aprox.
496 m
Le Boutique Food Concept Store
aprox.
511 m
Kulturhaus
aprox.
609 m
Clock`s
aprox.
655 m
Hanul cu Tei
aprox.
705 m
Pebeo
aprox.
706 m
Bluzz
aprox.
717 m
Club A
aprox.
727 m
Argentin
aprox.
731 m
Dharma
aprox.
738 m
Mojo
aprox.
738 m
Elephant Pub
aprox.
745 m
Hobby Cafe
aprox.
223 m
The Living Room
aprox.
312 m
Lente Arcului
aprox.
336 m
Carla Caffe
aprox.
365 m
Art Caffe
aprox.
385 m
T-zero
aprox.
399 m
T-zone
aprox.
399 m
ART Cafe
aprox.
551 m
Iguana Cafe
aprox.
653 m
Tucano Cofee
aprox.
664 m
Bernschutz and Co
aprox.
670 m
DDB caffe
aprox.
675 m
Gio Cafe
aprox.
704 m
Godot
aprox.
719 m
Adior Cafe lounge
aprox.
772 m
Piraeus Bank Romania - Sucursala Municipiului Bucuresti
aprox.
226 m
ATM - Raiffeisen Bank - Asirom
aprox.
259 m
Raiffeisen Bank
aprox.
320 m
BRD Rosetti
aprox.
340 m
BCR
aprox.
365 m
Banca Transilvania - Ag. Rosetti
aprox.
419 m
Libra Bank Sediul Central
aprox.
510 m
Alpha Bank
aprox.
513 m
Libra Bank - Sediul Central
aprox.
521 m
Banca Transilvania - Ag. Lipscani
aprox.
524 m
Banca Transilvania
aprox.
531 m
Unicredit Èširiac Bank
aprox.
531 m
Banca Romaneasca
aprox.
531 m
Volksbank Coltei
aprox.
535 m
Banca Romaneasca
aprox.
564 m
Fiind o zonă ultracentrală, aceasta oferă numeroase opțiuni de călătorie cu mijloacele de transport în comun, și este bine conectată cu restul orașului. Ai, în primul rând, la dispoziție stațiile de metrou Piața Victoriei, Piața Romană și Universitate. Astfel, te vei putea deplasa rapid prin oraș, evitând aglomerația de la suprafață. Toate acestea sunt situate pe magistrala 2 care traversează Bucureștiul de la nord la sud. În plus, de la Piața Victoriei vei putea lua metroul și pe magistrala 1 pentru a ajunge, de exemplu, în cartierul Pantelimon sau în zona Eroilor. Prin Piața Universității urmează să treacă și magistrala 5 care va lega cartierele Drumul Taberei și Pantelimon. Până acum, s-au deschis însă doar stațiile de metrou aflate în zona Drumul Taberei. Alte mijloace de transport în comun care ar putea să-ți fie de ajutor atunci când te vei muta în această zonă sunt autobuzele 300 și 381. Primul face legătura dintre Piața Romană și Piața Victoriei continuându-și apoi traseul de-a lungul Bulevardului Ion Mihalache, iar cel de-al doilea conectează Piața Victoriei cu zona Tineretului și cu cartierul Berceni. De pe Bulevardul Regina Elisabeta vei putea lua troleibuzul 90 pentru a ajunge în Drumul Taberei sau în zona Arenei Naționale, iar în fața Spitalului Colțea vei găsi stația autobuzului 381 care merge în cartierul Berceni. Iar dacă preferi să te deplasezi pe două roți, vei avea la dispoziție una dintre pistele speciale destinate bicicliștilor pe Calea Victoriei. Aceasta îți va oferi, în plus, oportunitatea ideală de a admira arhitectura deosebită a clădirilor aflate de o parte și de alta a uneia dintre cele mai frumoase străzi din București. Consultă harta pentru a afla unde sunt localizate stațiile mijloacelor de transport în comun.
În această zonă găsim sediul central al Universității din București și cel al Academiei de Studii Economice din București (ASE), unele dintre cele mai prestigioase instituții de învățământ superior din România. Tot aici se află și sediile mai multor facultăți. Ai și alte instituții de învățământ cu renume la doi pași de casă, precum precum Colegiul Național "Sfântul Sava", Colegiul Național "Gheorghe Lazăr", Liceul Teoretic Bulgar "Hristo Botev" și Universitatea Națională de Muzică. De menționat este și Căminul Moxa, aflat în zona Calea Victoriei, în care sunt cazați unii dintre studenții ASE. Consultă harta de mai jos pentru a vedea și celelalte unități de învățământ din zonă.
În această parte a orașului vei găsi numeroase reprezentanțe ale unor branduri de lux. Cele mai multe magazine alimentare din zonă au dimensiuni reduse. Pentru cumpărături îți recomandăm Piața Amzei, aflată la doi pași de Romană și modernizată recent. Aici găsești, pe lângă comercianți de unde poți cumpăra legume și fructe și câteva magazine cu preparate proaspete de la burgeri, la pâine artizanală sau înghețată. Centrul Vechi găzduiește, totodată, reprezentanțe ale unor retaileri de modă. Tot aici găsești și librăria Cărturești Carusel, una dintre cele mai frumoase din oraș. O librărie Cărturești deschisă într-o altă clădire deosebită poate fi găsită și în apropiere de Piața Romană. Un spațiu comercial cu renume este Magazinul Victoria, un monument istoric al orașului. Magazinul București, amplasat la intersecția străzilor I.C. Brătianu și Lipscani a fost reconstruit recent cu o investiție substanțială. Ai în apropiere magazinul Cocor, centrul comercial Unirea Shopping City și un hipermarket Carrefour. Cu mașina sau metroul poți să ajungi destul de repede la mall-ul AFI Cotroceni. Consultă harta și vezi ce magazine vei avea în apropierea noii tale case.
Aceasta este una dintre cele mai aglomerate zone din București la orele de vârf. Aici găsești însă și unele dintre puținele parcări subterane din Capitală. Chiar vis-a-vis de Universitatea București ai intrarea într-o astfel de parcare cu peste 400 de locuri. O parcare destul de încăpătoare poate fi găsită și în Piața Victoriei. Atenție, însă, această zonă se poate aglomera nu doar din cauza traficului, ci și din cauza diverselor manifestări sau proteste care se organizează, de obicei, în fața Palatului Victoria, sediul Guvernului României. Dacă te hotărăști să te muți în zonă, atunci îți recomandăm să te interesezi de posibilitatea închirierii unui loc de parcare pentru mașina ta. Poți face acest lucru apelând la Serviciul Parcaje al ADP Sector 1. Consultă harta pentru a afla unde găsești și alte parcări în zona Victoriei-Romană-Universitate.
Zona Victoriei - Romană - Universitate este un epicentru cultural al Capitalei și oferă numeroase opțiuni de petrecere a timpului liber. Aici vei găsi numeroase muzee impresionante pe care le poți vizita în timpul liber (Muzeul Național de Istorie Naturală "Grigore Antipa", Muzeul Țăranului Român, Muzeul Național George Enescu, etc), vei putea participa la evenimentele în aer liber desfășurate pe Calea Victoriei sau în Piața George Enescu sau vei putea merge la un spectacol organizat pe scena Ateneului Român sau pe cea a Teatrului Notarra. Nu rata nici o vizită la Teatrul Național "I.L. Caragiale" și la Muzeul Național de Artă al României. Observatorul Astronomic Amiral Vasile Urseanu te așteaptă cu o experiență extrem de educativă care va fi, cu siguranță, apreciată de micuțul tău. Dacă îți place să ieși la o cafea în timpul liber alături de prietenii tăi, atunci în această zonă vei putea alege dintr-o multitudine de restaurante, terase și pub-uri. Nu lipsesc nici skybar-urile, care îți oferă priveliști de excepție de la înălțime. Cele câteva parcuri din zona Victorieim - Romană - Universitate au dimensiuni destul de reduse, dar sunt frumos îngrijite. Printre acestea amintim Parcul Ateneului și Parcul Nicolae Iorga. Dacă preferi plimbările lungi în weekend, atunci vei avea la dispoziție în apropiere parcurile Kiseleff și Cișmigiu. Nu uita, de asemenea, că te vei afla la doi pași de Centrul Vechi al Capitalei, dar și că vei putea să faci o plimbare cu bicicleta pe Calea Victoriei. În condiții normale, se organizează periodic evenimente în centrul orașului, atât în cadrul Sălii Palatului, cât și în aer liber în Piața Revoluției. În Piața Universității sunt organizate, totodată, diferite târguri și concerte. Vezi pe hartă mai multe puncte de interes din zona Victoriei-Romană-Universitate.
Chiar la Piața Universității se află principala unitate sanitară din zonă. Este vorba despre Spitalul Clinic Colțea, primul înființat în București. În zona Victoriei - Romană - Universitate vei întâlni mai multe clinici private, precum Policlinica Enescu din cadrul rețelei de sănătate Regina Maria și Spitalul Clinic Sanador. La doi pași de Piața Romană se află Spitalul Clinic de Urgențe Oftalmologice, cel mai mare din România cu o astfel de specializare. Consultă harta pentru a afla ce clinici private ai în apropierea casei, dacă te muți în această parte a orașului.
Găsești numeroase restaurante, terase și cafenele potrivite pentru toate gusturile în Centrul Vechi al orașului, pe Calea Victoriei sau în zona din spatele Ateneului Român. Câteva fast food-uri ai la dispoziție în Unirea Shopping Center. Nu foarte departe, în zona Romană, ai și alte opțiuni. Află de pe hartă unde găsești cel mai apropiat restaurant de noua ta casă.
Sucursale ale diferitelor bănci sunt dispuse de-a lungul principalelor artere de circulație sau în marile intersecții din zonă. Un BRD, spre exemplu, găsești chiar lângă Cercul Militar Național. Pe Bulevardul Nicolae Bălcescu o sucursală Banca Transilvania și ING Bank. La doi pași de Piața Universității se află și Palatul Băncii Naționale a României. Consultă harta pentru mai multe detalii.
Înainte să pleci...
Ești sigur că ai văzut și aceste proprietăți?
400.000 €
București, Bucureștii Noi
210 mp utili
Casă/Vilă
1E
1.950.000 €
București, Ferdinand
500 mp utili
Clădire de birouri
3E
4.500.000 €
București, Iancului
3.524 mp utili
Clădire de birouri
5E
3.600.000 €
București, P-ța Unirii
1.577 mp utili
Clădire de birouri
5E
1.580.000 €
București, Dorobanți
688 mp utili
Casă/Vilă
2006
4.295.000 €
București, Iancului
3.100 mp utili
Clădire de birouri
7E
Creează alertă
Salvează căutarea ca să primești pe email ultimele anunțuri publicate
Spații comerciale cu 4+ camere de vânzare în zona Universitate, Ultracentral
Cere detalii prin email
*
*
*
*
Detaliile tale de contact vor fi partajate cu Cr Imobiliare