Casa de inchiriat Ultracentral str. Muresenilor cu gradina

850 € / lună

Ultracentral, Brașov

Nr. cam.:
4
Sup. utilă:
105 mp
Sup. teren:
132 mp
Tip prop.:
Individuală
  • • Exclusivitate
  • • Locație exactă
  • • Vizionare prin apel video

Descriere casă

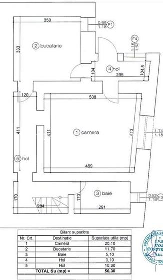
White Mountain property va propune spre inchiriere casa in zona Ultracentrala, situata pe str. Muresenilor, strada principala din zona comerciala a Brasovului, situata la capatul unei curti comune marginita de Zidul Cetatii Brasovului. Proprietatea a fost renovata complet in anul 2012, instalatiile sanitare si electrice inlocuite, parchet, iar bucataria mobilata si utilata partial, geamuri termopan si Velux la etaj. Are acces unic, de la etaj, la o gradina de 132 mp marginita de Zidurile Cetatii Brasovului. Proprietatea este impartita pe doua niveluri avand o suprafata utila de 105 mp mp si o terasa de 4.60 mp si este dispusa dupa cum urmeaza: Parter: un hol 10.30 + scara 3.10, camera living 20.10, bucatarie 11.70, baie 5.10 mp Nivel 2 : Hol + casa scarii, 3 dormitoare, baie Balcon de 8.30 mp Parcare in curte Proprietatea se inchiriaza partial mobilata si utilata. Pentru detalii suplimentare sau vizionari, va rog nu ezitati sa ma contactati la numarul sau prin e-mail, la adresa . Colegii mei si cu mine va vom ajuta cu mare placere.
Citește mai mult Citește mai puțin
Mobilat Mobilat Centrală proprie 1 Parcare Bine întreținut (Bună)

Detalii casă

ID anunț: XC4S1108O Copiat! 275230474 Copiat!
Actualizat în: 09 Martie 2026
Suprafață construită: 110 mp
Suprafață desfășurată: 110 mp
Nr. bucătării: 1
Nr. băi: 2
Nr. balcoane / Terase / Logii: 1
Învelitoare acoperiș: Tabla
An construcție: 1950 (Finalizată)
Structură rezistență: Altele
Etaj: Etaj 1 / 1
Regim înălțime: P+1E

Utilități

Destinație
Birouri
Pereți
Faianță Vopsea lavabilă
Podele
Parchet Gresie
Ușă intrare
Lemn
Uși interior
Lemn
Izolații termice
Exterior
Ferestre cu geam termopan
PVC
Bucătărie
Utilată Mobilată
Electrocasnice
Aragaz Frigider Mașină de spălat
Diverse
Scară interioară
Utilități
Apă Curent Gaze Canalizare Telefon
Internet
Fibră optică
Amenajare străzi
Asfaltate
Comision
50%

Certificat energetic:

Clasa energetică: B

Vecinătăți:

Scoala/gradinita, Centru universitar, Restaurant/pub, Mall, Parc, Ultracentral, Hotel, Piata, Intersectie circulata, Trafic Pietonal, Fastfood, Cinema, Supermarket, Banca, Zona comerciala, Autobuz

Puncte de interes

Mijloace transport
bus-station
Astra
Stații autobuz aprox. 333 m
bus-station
Statia "Primarie", linia 1,4,34,37,2,31,17,36,6,52,50,50barat,16,51
Stații autobuz aprox. 358 m
bus-station
Statia N.Balcescu , linia 50, 50barat, 51,52
Stații autobuz aprox. 380 m
bus-station
Nicolae Balcescu
Stații autobuz aprox. 380 m
Școală
school
Universitatea Transilvania Rectorat
Școli aprox. 102 m
school
Liceul Aprily Lajos
Școli aprox. 107 m
university
Corpul T al Universitatii Transilvania (en)
Universități aprox. 252 m
kindergarten
Gradinita cu program normal nr. 3 (fosta nr. 1)
Gradinițe aprox. 496 m
Recreere
supermarket
Sergiana
Supermarket aprox. 66 m
public-square
Piața George Enescu
Piețe publice aprox. 138 m
park
Parcul Aro
Parcuri aprox. 184 m
mall
Magazinul Star
Mall aprox. 649 m

Proprietăți similare

Casă cu 3 camere în Schei
790 € / lună
Brașov, Schei
3 camere
130 mp
20 mp teren
Casă cu 4 camere în Sânpetru
800 € / lună
Județul Brașov, Sânpetru
4 camere
140 mp
220 mp teren
Casă cu 3 camere în Sânpetru
850 € / lună
Județul Brașov, Sânpetru
3 camere
77 mp
130 mp teren

Detalii de contact

White Mountain Property

Raluca Macarie Property Consultant Brasov

5.00(3 review-uri)

White Mountain Property
PRO

Abonează-te la newsletter să fii primul care primește cele mai noi recomandări de proprietăți și sfaturi de la experți.

CONTACT

Creează alertă

Salvează căutarea ca să primești pe email ultimele anunțuri publicate

Case și vile cu 4+ camere de închiriat în zona Ultracentral, Brașov