Vilă de închiriat | Cotroceni | Lângă Opera Națională București

2.000 € / lună

Cotroceni, București

Nr. cam.:
4
Sup. utilă:
130 mp
Sup. teren:
50 mp
Tip prop.:
Altele
  • • Locație aproximativă

Descriere casă

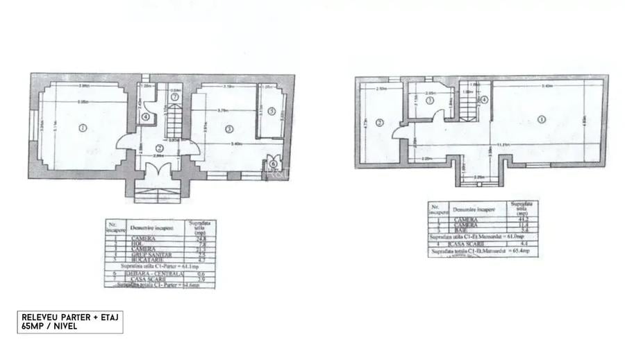
Vilă de închiriat | Cotroceni | Locație premium lângă Opera Națională București Oferim spre închiriere o vilă situată într-una dintre cele mai exclusiviste zone ale Capitalei, vis-a-vis de Parcul Operei, într-o poziție retrasă și intimă, ferită de traficul bulevardului, la doar 3 minute de mers pe jos de stația de metrou Eroilor. Proprietatea este ideală pentru sediu firmă, cabinet medical, avocatură, notariat, dar și pentru rezidențial. Compartimentare eficientă Parter 2 încăperi spațioase, ideale pentru birouri multiple Bucătărie Hol Baie Tavane înalte de 3,5 m – senzație amplificată de spațiu și eleganță Etaj Spațiu generos open-space Birou separat Baie Lumină naturală abundentă prin luminatoare Scara interioară cu design deosebit oferă un plus de personalitate proprietății. Dotări și finisaje Finisaje de calitate superioară Centrală termică proprie Aer condiționat în fiecare încăpere Instalație electrică complet înlocuită la renovare Pereți exteriori foarte groși → eficiență energetică ridicată O proprietate rară, cu farmec și poziționare excepțională, potrivită pentru activități profesionale sau locuire premium. Pentru detalii și programarea unei vizionări, vă stăm la dispoziție. VAUNT ID: 114696
Citește mai mult Citește mai puțin
Calorifere Centrală proprie

Detalii casă

ID anunț: X7QH112F8 Copiat! 275477751 Copiat!
Actualizat în: 24 Aprilie 2026
Suprafață utilă totală: 130 mp
Nr. băi: 2
An construcție: 1895 (Finalizată)
Structură rezistență: Beton
Regim înălțime: P+1E
Perioadă închiriere: Termen lung

Utilități

Destinație
Rezidențial Comercial Birouri
Pereți
Vopsea lavabilă
Izolații termice
Exterior
Contorizare
Contor gaz
Bucătărie
Mobilată Utilată
Diverse
Scară interioară
Alte spații utile
WC Serviciu
Utilități
Curent Apă Canalizare Gaze
Amenajare străzi
Mijloace de transport în comun Iluminat stradal
Comision
Standard

Puncte de interes

Mijloace transport
tram-station
Piata Corneliu Coposu
Stații tramvai aprox. 140 m
bus-station
Sf. Vineri, terminal linii:40, 55, 56, 385
Stații autobuz aprox. 290 m
metro-station
Piata Unirii 2
Stații metrou aprox. 611 m
trolleybus-station
Statia Foisorul de Foc linii : 79,86
Stații troleibuz aprox. 1359 m
Școală
school
Lauder Reut School Complex (en)
Școli aprox. 83 m
school
Liceul Lauder-Reut
Școli aprox. 83 m
university
Institutul Bancar Român
Universități aprox. 392 m
kindergarten
Gradinita Magica
Gradinițe aprox. 938 m
Recreere
sports-ground
Teren sportiv
Terenuri sport aprox. 66 m
park
Parc
Parcuri aprox. 154 m
supermarket
Km 0
Supermarket aprox. 386 m
mall
Bucharest, Calea Vitan nr. 8, Bl V51, near VITAN Mall
Mall aprox. 1388 m

Proprietăți similare

Casă cu 4 camere în Cotroceni
2.000 € / lună
București, Cotroceni
4 camere
130 mp
40 mp teren
Casă cu 4 camere în Cotroceni
2.000 € / lună
București, Cotroceni
4 camere
130 mp
100 mp teren
Casă cu 5 camere în Vatra Luminoasă
1.800 € + TVA / lună
București, Vatra Luminoasă
5 camere
120 mp
110 mp teren

Detalii de contact

R&D ADVISERS

Cosmin Ciobotaru Project Manager

5.00(7 review-uri)

R&D ADVISERS
PRO

Abonează-te la newsletter să fii primul care primește cele mai noi recomandări de proprietăți și sfaturi de la experți.

CONTACT

Creează alertă

Salvează căutarea ca să primești pe email ultimele anunțuri publicate

Case și vile cu 4+ camere de închiriat în zona Cotroceni, Sector 5