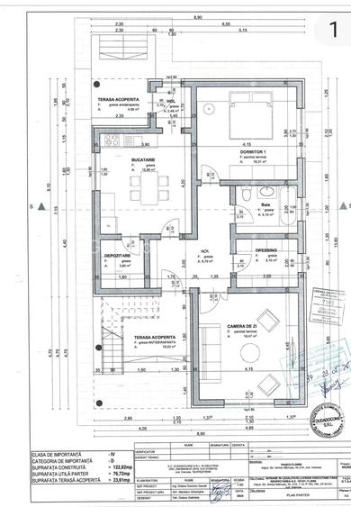
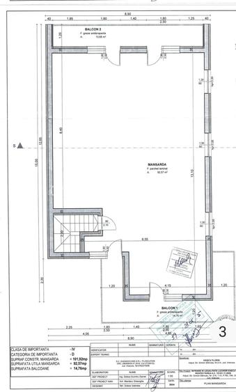
De vanzare o casa cu etaj si mansarda situata pe strada Simion Barnutiu, in apropiere de biserica Sf. Parascheva si E85, avand o amprenta la sol de 122,80 mp si o suprafata desfasurata de 347,60 mp, edificata recent, este practic noua. Terenul pe care este construita are suprafata de 757 mp si o deschidere de 13,30 ml. Este ingradit pe toate laturile. Casa a fost gandita pentru a fi locuita de 2 sau 3 familii cu acces independent fiecare in apartamentul ei de pe o scara comuna. Astfel, apartamentul de la parter are o suprafata construita de 122,82 mp din care, suprafata utila este de 76,72 mp si suprafata terasa de 23,61 mp, este finalizat si mobilat (mai trebuie montata centrala termica si caloriferele), este compartimentat conform schitei plan atasate. Apartamentul de la etajul 1 este in stadiul "la gri", este tencuit interior, instalatia electrica si sanitara sunt realizate. Mai trebuie realizate sapele, instalatia termica si finisajele. Suprafata construita este tot de 122,82 mp, suprafata utila de 80,30 mp iar suprafata terasei de 13,38 mp, este compartimentat conform schitei plan atasate . Mansarda are o suprafata construita de 101,92 mp, o suprafata utila de 92,57 si suprafata balcoane de 14,76 mp, este necompartimentata. Se poate compartimenta foarte simplu tot cu structura usoara din lemn. Stadiul constructiei mansardei este "la rosu". Casa este construita din BCA cu fundatie, cadre si plansee din beton armat, este acoperita cu tabla tip Lindab, este racordata la gaz metan cu posibilitate de cuplare pentru 3 centrale termice (pentru fiecare nivel in parte), apa, canal, energie electrica. Zona este foarte linistita, curata, iar strada va intra intr-un program de reabilitare in viitorul apropiat.
In situatia ca se doreste cumpararea separata a apartamentelor, privind imobilul ca pe un bloc de locuinte individuale, cu cotele indivize de teren aferente, se accepta si aceasta varianta cu urmatoarele specificatii:
Apartament parter + 250 mp teren pret 99.900 euro
Apartament etajul 1 + 250 mp teren pret 63.900 euro
Mansarda + 250 mp pret 39.900 euro ( se vinde dupa ce a fost vandut un apartament la etajul inferior)
Intreg imobilul 199.000 euro usor negociabil.
Se pot face si alte combinatii pentru achizitie la urmatoarele preturi: Teren pret 60 E/mp, apartament parter 720 E/mp, apartament etaj 420 E/mp, mansarda 270 E/mp.
Imobilul se preteaza atat pentru folosinta familiala cat si pentru activitate de turism sau inchiriere.
Sediul central - Timișoara
Bulevardul Victor Babeș nr. 2, 300230, Timișoara, România
Tel: +40.374.40.44.98 / Fax: +40.256.401.179
Email: suport@imobiliare.ro
Luni - Vineri 08:00 - 20:00
Punct de lucru - București: Iride Business Park, Bld. Dimitrie
Pompeiu 9-9A, Clădirea B2B,
020335, Sector 2, București, România
CONTACT
Sediul central - Timișoara
Bulevardul Victor Babeș nr. 2, 300230, Timișoara, România
Tel: +40.374.40.44.98 / Fax: +40.256.401.179
Email: suport@imobiliare.ro
Luni - Vineri 08:00 - 20:00
Punct de lucru - București: Iride Business Park, Bld. Dimitrie
Pompeiu 9-9A, Clădirea B2B,
020335, Sector 2, București, România
Sună acum și cere detalii sau programează o vizionare.
Nu rata ocazia să afli mai multe!
Sună acum și cere detalii sau programează o vizionare.
Cere detalii prin email
*
*
*
*
Parcări
Parcuri
Parcare
aprox.
425 m
Parcare
aprox.
993 m
Parcare
aprox.
1301 m
Parcare
aprox.
1679 m
Parc
aprox.
1170 m
Creează alertă
Salvează căutarea ca să primești pe email ultimele anunțuri publicate
Case și vile cu 4+ camere de vânzare în Adjud, Județul Vrancea
Cere detalii prin email
*
*
*
*
Detaliile tale de contact vor fi partajate cu Gospodaru Imobiliare
Preț total1.023.878 RON (200.910 €)
Costuri cu achiziția9.735 RON
Preț de achiziție1.014.143 RON
Costuri cu achiziția9.735 RON
Comision agenție Întreabă agenţia
Onorariu notarial8.214 RON
Taxă înscriere OCPI1.521 RON
Preț de achiziție1.014.143 RON
Preț locuință1.014.143 RON
TVA 0%Inclus în prețul cerut
Cost total166.610 RON (32.692 €)
Avans (15%)152.122 RON
Cost achitat în prima lună2.796 RON
Costuri cu achiziția11.692 RON
Cost achitat în prima lună2.796 RON
Comision analiză dosar
400 RON - 900 RON
Taxă evaluare imobil(până la)
900 RON
Rata lunară (variabilă)4.518 RON
Asigurare anuală imobil1.014 RON
Arhivă electronică102 RON
Poliță PAD130 RON
Asigurare de viață/lună Costul este variabil. În funcție de banca aleasă, procentul variază între 0.0259% și 0.035% din soldul creditului.
Costuri cu achiziția11.692 RON
Comision agenție Întreabă agenţia
Onorariu notarial8.214 RON
Taxă întabulare OCPI1.521 RON
Autentificare contract credit1.957 RON
Preț de achiziție1.014.143 RON
Preț locuință1.014.143 RON
TVA 0%Inclus în prețul cerut
Preț de achiziție1.014.143 RON
Preț locuință1.014.143 RON
TVA 0%
Inclus în prețul cerut
Avans minim407.696 RON
Credit pe 30 de ani606.448 RON
Cost achitat în prima lună
Taxa evaluare imobil(până la)
900 RON
Rata lunară (variabilă)4.261 RON
Depozit colateral12.783 RON
Comision de garantare FNGCIMM85 RON
Asigurare anuală imobil1.014 RON
Poliță PAD130 RON
Tarif arhivă electronică102 RON
Costuri adiționale1.154 RON + taxe notariale
Asigurare viață și complexă (opțională)Costul este variabil. În funcție de banca aleasă, procentul variază între 0.0259% și 0.035% din soldul creditului
Onorariu notarialconform tarif notarial
Taxă întabulare OCPI1.154 RON
i
Toate valorile de mai sus sunt estimative și nu reprezintă în mod obligatoriu costurile exacte pe care le veți primi de la companiile/instituțiile prin care veți încheia tranzacția.