13

Casa Oasis cu design modern

256.500 €

Bod, Județul Brașov

Nr. cam.:
4
Sup. utilă:
135,7 mp
Sup. teren:
700 mp
Tip prop.:
Altele
  • • Locație exactă

Descriere casă

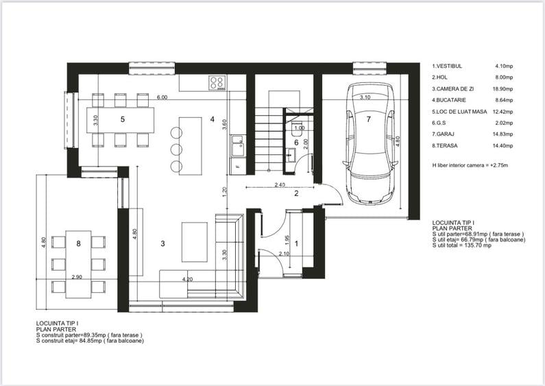
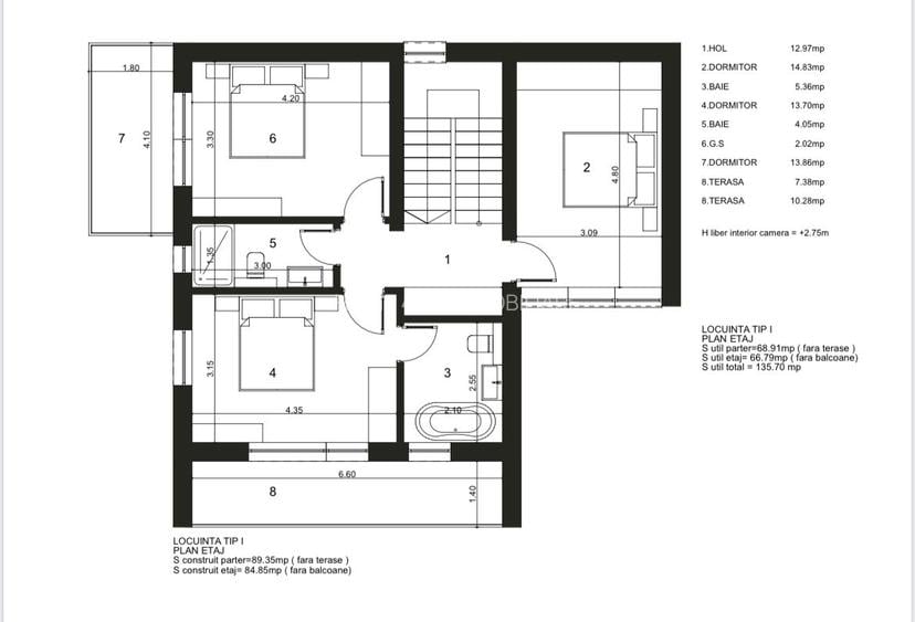
Comision cumparator zero %. Home 4 You Imobiliare Propune spre vanzare, cel mai nou ansamblu rezidential dezvoltat de Maurer Imobiliare, Proiect Maurer Vilage Bod, care imbina perfect elemente precum Design Modern, Loturi Generoase de Teren si Spatiu. Situata in Bod, intr-o zona linistita si cu acces facil spre Brasov. Oasis este proprietate premium cu garaj inchis are o suprafata utila de 135,70 mp si suprafata de teren de 700 mp. Casa este dispusa pe parter si etaj, iar compartimentarea este urmatoarea: – Parter – cu o suprafata utila de 68,91 mp, terasa de 14,40 mp si un garaj inchis de 14,8 mp. Vestibul 4,10 mp , hol 8 mp , camera de zi 18,90 mp, bucatarie 8,64 mp , loc de luat masa 12,42, grup sanitar 2 mp. – Etaj – cu o suprafata utila de 66,79 si 2 terase de 7,38 si 10,28 mp. Hol 12,97 mp, dormitor 14,83, baie 5,36, dormitor 13,70, baie 4,05, grup sanitar 2,02, dormitor 13,86. Termen de finalizare in 18 luni de la semnare! In cadrul Ansamblului Rezidential ai posibilitatea sa alegi lotul de teren dorit care are o suprafata incepand cu 700 mp, dar si tipul de casa dupa nevoia ta si a familiei tale. Ti-am trezit interesul si doresti mai multe informatii? Contacteaza-ne pentru o vizionare! Pretul include TVA de 21%, este valabil la plata integrala in stadiu de proiect
Citește mai mult Citește mai puțin
Nemobilat Curte Centrală proprie Încălzire prin pardoseală 2 Parcări 1 Garaj Zonă rurală

Detalii casă

ID anunț: XDUH01004 Copiat! 47623845 Copiat!
Actualizat în: 16 Februarie 2026
Suprafață desfășurată: 174.2 mp
Nr. bucătării: 1
Nr. băi: 3
An construcție: 2024
Structură rezistență: Beton
Regim înălțime: P+1E

Utilități

Destinație
Rezidențial
Pereți
Faianță Vopsea lavabilă
Ușă intrare
Metal PVC
Uși interior
Lemn
Ferestre cu geam termopan
PVC
Contorizare
Apometre Contor gaz
Diverse
Scară interioară
Utilități
Curent Apă Canalizare Gaze
Internet
Cablu Fibră optică
Amenajare străzi
Asfaltate Pietruite Iluminat stradal

Puncte de interes

Școală
school
Scoala
Școli aprox. 999 m
school
Scoala Generala Bod
Școli aprox. 1021 m
school
Scoala Generala Bod
Școli aprox. 1145 m
Recreere
supermarket
Agrostar
Supermarket aprox. 1024 m
restaurant
La Francezu
Restaurant aprox. 1187 m

Detalii despre preț și costuri

Costuri cu achiziția

Fără credit
11.705 RON
Credit ipotecar
13.906 RON
Noua casă
1.447 RON+ taxe notariale

i

Costuri adiționale mai puțin știute la achiziție: taxe notariale, comisioane etc.

Proprietăți recomandate

Detalii de contact

HOME 4 YOU IMOBILIARE

Laurentiu Manager

HOME 4 YOU IMOBILIARE
PRO

Abonează-te la newsletter să fii primul care primește cele mai noi recomandări de proprietăți și sfaturi de la experți.

CONTACT

Creează alertă

Salvează căutarea ca să primești pe email ultimele anunțuri publicate

Case și vile cu 4+ camere de vânzare în Bod, Județul Brașov