25

Patruplex Bragadiru fara pereti comuni

118.600 € + TVA

Bragadiru, Județul Ilfov

Nr. cam.:
4
Sup. utilă:
116 mp
Sup. teren:
130 mp
Tip prop.:
Altele
  • • Exclusivitate
  • • Locație exactă

Descriere casă

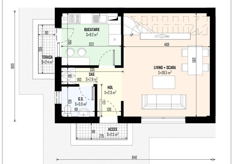
Imobilul pe care il propunem spre cumparare este o deosebita casa tip patruplex stil mediteranean cu 4 camere, intr-o zona linistita si primitoare,din Bragadiru. Regimul de inaltime este parter + etaj1+etaj 2, avand o suprafata utila de 116 mp. Suprafata teren 130 mp. Compartimentarea casei: – Parter: Living spatios, bucatarie inchisa, baie prevazuta cu cabina de dus.. – Etaj 1 – 2 dormitore, baie si balcon - Etaj 2 - 1 dormitor matrimonial cu baie proprie si terasa 16mp Incalzire in pardoseala in toata casa; Pereti interiori foarte grosi, din caramida Porotherm de 25 cm. Tamplarie PVC termopan VEKA. Constructia casei: – Caramida porotherm – Fier beton – Stalpi beton – Grinzi – Placa fundatie – Placa beton intre etaje – Placa beton peste etajul 2 – Acoperis tabla tip Lindab – Perete dublu intre case cu izolatie de 10cm – Izolatie polistiren 10 cm; Baile sunt dotate cu obiecte sanitare. Casa va fi predata la cheie cu centrala, termopan,instalatii electrice si instalatii sanitare, gresie, faianta, parchet, toate finisajele fiind superioare. Locuinta este izolata termic cu polistiren de 10 la exterior si este racordata la canalizare, electricitate, gaze si apa curenta ILFOV. Avem 8 case disponibile in diferite stadii de executie! Va asteptam la vizionare!!!! Pret FINAL TVA inclus 143 500 Euro;
Citește mai mult Citește mai puțin
Grădină Încălzire prin pardoseală Beci 2 Parcări Renovat

Detalii casă

ID anunț: X60H0102J Copiat! 266033132 Copiat!
Actualizat în: 13 Februarie 2026
Suprafață construită: 50 mp
Suprafață desfășurată: 140 mp
Nr. bucătării: 1
Nr. băi: 3
Nr. balcoane / Terase / Logii: 2
Nr. terase: 1
Suprafață terase: 5 mp
Front stradal: 20 m
Învelitoare acoperiș: Tabla
An construcție: 2025 (Finalizată)
Structură rezistență: Beton
Regim înălțime: P+2E

Utilități

Destinație
Rezidențial
Pereți
Faianță Vopsea lavabilă
Podele
Parchet Gresie
Ușă intrare
Metal
Uși interior
Lemn
Izolații termice
Exterior
Ferestre cu geam termopan
PVC
Contorizare
Apometre Contor gaz
Alte spații utile
Dressing WC Serviciu Dependințe
Facilități imobil
Interfon Videointerfon
Utilități
Curent Apă Canalizare Gaze CATV Telefon Telefon internațional Centrală telefonică
Internet
Cablu Fibră optică Wireless Dial-up
Amenajare străzi
Asfaltate Mijloace de transport în comun Iluminat stradal

Certificat energetic:

Clasa energetică: A

Vicii:

Nu are

Vecinătăți:

Bragadiru, Supermaketuri, mijloace de transport in comun

Disponibilitate proprietate:

O luna

Puncte de interes

Școală
school
Scoala generala nr. 1
Școli aprox. 1166 m
Recreere
supermarket
Lidl Bragadiru
Supermarket aprox. 769 m
restaurant
Restaurant Centura Bragadiru
Restaurant aprox. 815 m
park
Parc Bragadiru
Parcuri aprox. 1465 m
cafe
San Diego
Cafenea aprox. 1765 m

Detalii despre preț și costuri

Costuri cu achiziția

Fără credit
7.828 RON
Credit ipotecar
9.550 RON
Noua casă
871 RON+ taxe notariale

i

Costuri adiționale mai puțin știute la achiziție: taxe notariale, comisioane etc.

Proprietăți recomandate

Detalii de contact

Concept Aviv Group

Florin Bunescu Sales Manager

Concept Aviv Group

Abonează-te la newsletter să fii primul care primește cele mai noi recomandări de proprietăți și sfaturi de la experți.

CONTACT

Creează alertă

Salvează căutarea ca să primești pe email ultimele anunțuri publicate

Case și vile cu 4+ camere de vânzare în Bragadiru, Județul Ilfov