Chiajna-parc,promenada,case elegante P+E+M gata de mutare,finisaje calitative

215.000 € + TVA

Chiajna, Județul Ilfov

Nr. cam.:
5
Sup. utilă:
176 mp
Sup. teren:
253 mp
Tip prop.:
Înșiruită
  • • Comision 0%
  • • Locație exactă
  • • Proprietate nelocuită

Descriere casă

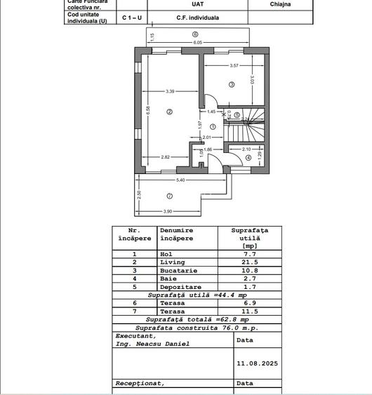
Vila noua P+E+M,cu finisaje de inalta calitate in complex cu acces securizat pe poarta automatizata,dotat cu supraveghere video perimetrala si video intefon cu recunoastere faciala. In incinta complexului se amenajeaza spatiu verde pentru relaxare, sunt locuri de parcare atribuite cate 2 pentru fiecare unitate locativa. Strazile care duc catre complex sunt asfaltate, iar zona este in plina proximitate regasim mijloace de transport, magazine alimentare, parcul si Gradina Zoologica Chiajna, dar si stadionul Concordia, promenada comunei Chiajna, teren de tenis acoperit. Terenul este generos-253mp, va fi amenajat cu gazon si plante decorative. Vila are la parter o baie completa,hol,bucatarie separata cu iesire pe terasa din spatele casei si un living generos de 22mp. La etaj sunt 3 dormitoare si 2 bai complete.Peste etaj este placa de beton,iar la mansarda este un open space, dotat cu geamuri tip velux si sursa de apa+canal, are o suprafata utila de 52mp(poate fi loc de hobby , de studiu sau chiar 2 dormitoare. Scara este continua de la parter-la mansarda. Referitor la finisaje: vila este izolata cu termosistem EPS80-10cm, tamplaria este de la Gealan sistem tripan, acoperisul este de la Bilka, usi exterioare-Maco cu incuietori Mottura, usi de interior-Bella Casa, incalzirea in pardoseala Rehau cu distribuitoare pe fiecare nivel si centrala termica pe gaze Buderus. Baile(fiecare cu geam) au fost dotate cu obiecte sanitare de la Bella Casa, marmura si travertin. Vila este foarte luminoasa,are orientare catre 3 puncte cardinale: Est-Vest-Nord.
Citește mai mult Citește mai puțin
Grădină Centrală proprie Încălzire prin pardoseală 2 Parcări Renovat

Detalii casă

ID anunț: X6V9010H3 Copiat! 275346131 Copiat!
Actualizat în: 24 Martie 2026
Suprafață construită: 80 mp
Suprafață desfășurată: 220 mp
Nr. bucătării: 1
Nr. băi: 3
Nr. balcoane / Terase / Logii: 1
Nr. terase: 2
Suprafață terase: 20 mp
Nr. fronturi stradale: 1
Front stradal: 14 m
Învelitoare acoperiș: Tabla
An construcție: 2025 (Finalizată)
Structură rezistență: Beton
Regim înălțime: P+1E+M

Utilități

Destinație
Rezidențial
Pereți
Vopsea lavabilă
Podele
Parchet Marmură
Ușă intrare
Metal
Uși interior
Celulare
Izolații termice
Exterior
Ferestre cu geam termopan
PVC
Contorizare
Contor gaz
Alte spații utile
Spațiu depozitare
Facilități imobil
Spații agrement
Utilități
CATV Gaze Canalizare Curent trifazic Apă
Internet
Fibră optică
Amenajare străzi
Asfaltate Iluminat stradal Mijloace de transport în comun
Comision
0%

Certificat energetic:

Clasa energetică: A

Alte detalii despre preț:

la pret se adauga TVA

Puncte de interes

Mijloace transport
bus-station
Gara Chiajna
Stații autobuz aprox. 755 m
bus-station
Statia Giulesti-Sarbi, linia 163
Stații autobuz aprox. 1768 m
bus-station
Statia Scoala Noua, linia 163
Stații autobuz aprox. 1846 m
Școală
school
Scoala "ALEXANDRU ODOBESCU" Chiajna (en)
Școli aprox. 709 m
school
Cladirea scolii nr 1 (en)
Școli aprox. 715 m
school
Rudeni School (en)
Școli aprox. 1665 m
school
Scoala Nr. 161
Școli aprox. 1856 m
Recreere
park
Parc
Parcuri aprox. 483 m
sports-ground
Stadionul Concordia Chiajna
Terenuri sport aprox. 483 m
supermarket
Mega Image
Supermarket aprox. 503 m
restaurant
Trattoria Roz Cafe
Restaurant aprox. 1811 m

Detalii despre preț și costuri

Costuri cu achiziția

Fără credit
11.834 RON
Credit ipotecar
14.051 RON
Noua casă
1.466 RON+ taxe notariale

i

Costuri adiționale mai puțin știute la achiziție: taxe notariale, comisioane etc.

Proprietăți similare

Casă cu 4 camere în Chiajna
225.000 €
Județul Ilfov, Chiajna
4 camere
130 mp
150 mp teren
Casă cu 5 camere în Chiajna
210.000 €
Județul Ilfov, Chiajna
5 camere
116 mp
325 mp teren
Casă cu 4 camere în Chiajna
215.000 €
Județul Ilfov, Chiajna
4 camere
117 mp
325 mp teren

Detalii de contact

PRIMOB

Victoria administrator agentie

4.43(7 review-uri)

PRIMOB
PRO

Abonează-te la newsletter să fii primul care primește cele mai noi recomandări de proprietăți și sfaturi de la experți.

CONTACT

Creează alertă

Salvează căutarea ca să primești pe email ultimele anunțuri publicate

Case și vile cu 4+ camere de vânzare în Chiajna, Județul Ilfov