Casa ultracentrala Cisnadie pret redus cu 30.000Euro

115.000 €

Cisnădie, Județul Sibiu

Nr. cam.:
4
Sup. utilă:
140,5 mp
Sup. teren:
52 mp
Tip prop.:
Altele
  • • Locație aproximativă
  • • Proprietate nelocuită

Descriere casă

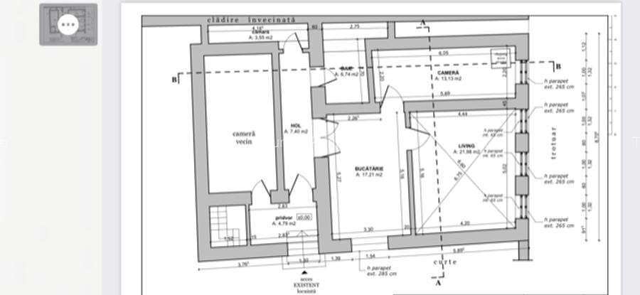
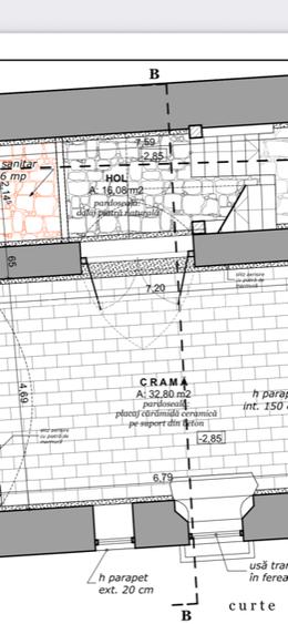
Locatie ! Locatie ! Casa propusa spre vanzare se gaseste centrul orasului Cisnadie in proximitatea Primariei Imobilul este in faza de renovare avand toate autorizatiile de constructie unele faze de executie fiind incepute si finalizate cum ar fi canalizarea, sistemul de incalzire, apa curenta si instalatiile electrice. Demisolul boltit construit din caramida este autorizat pentru Crama avand inca un hol si baie. Parterul are in componenta living , bucatarie , hol si baie in timp ce la etaj sunt 3 dormitoare fiecare cu baie proprie. Imobilul poate fi recomandat celor interesati pentru birouri notariale , avocatura , prestari servicii. cabinet medical , turism alimentatie publica. Proprietar foarte motivat sa vanda !! a doua reducere semnificativa a pretului de vanzare un indemn pentru potentialii clienti de a formula oferte
Citește mai mult Citește mai puțin
Calorifere Centrală proprie Beci 1 Parcare Necesită renovare

Detalii casă

ID anunț: XCPD0100F Copiat! 219562915 Copiat!
Actualizat în: 22 Octombrie 2025
Suprafață construită: 98 mp
Suprafață desfășurată: 236 mp
Nr. bucătării: 1
Nr. băi: 2
Front stradal: 16 m
Învelitoare acoperiș: Țiglă
An construcție: 1950 (Finalizată)
Structură rezistență: Cărămidă
Regim înălțime: S+P+1E+M

Utilități

Destinație
Rezidențial Comercial Birouri De vacanță
Rulouri/Obloane
Lemn
Ușă intrare
Metal
Ferestre cu geam termopan
Lemn
Contorizare
Apometre Contor căldură Contor gaz
Alte spații utile
Cramă Spațiu depozitare Dependințe
Utilități
Curent Canalizare Gaze
Internet
Fibră optică
Amenajare străzi
Asfaltate Mijloace de transport în comun Iluminat stradal
Comision
2%

Vecinătăți:

Primaria Cisnadie - Centrul Istoric - Cetatea Cisnadiei

Puncte de interes

Mijloace transport
bus-station
Statia Stejarului
Stații autobuz aprox. 253 m
bus-station
Cisnadie Sus
Stații autobuz aprox. 288 m
bus-station
Cisnadie
Stații autobuz aprox. 1540 m
Școală
school
Scoala Nr. 3
Școli aprox. 116 m
school
Liceul Gustav Gundisch
Școli aprox. 641 m
school
Scoala Nr. 2
Școli aprox. 723 m
school
Scoala nr. 1
Școli aprox. 1398 m
Recreere
sports-ground
Teren sportiv
Terenuri sport aprox. 701 m
park
Parc
Parcuri aprox. 739 m
restaurant
Casa Magura
Restaurant aprox. 831 m
supermarket
Penny Market
Supermarket aprox. 1349 m

Detalii despre preț și costuri

Costuri cu achiziția

Fără credit
18.543 RON
Credit ipotecar
20.144 RON
Noua casă
726 RON+ taxe notariale

i

Costuri adiționale mai puțin știute la achiziție: taxe notariale, comisioane etc.

Proprietăți recomandate

Detalii de contact

Tourism Real Estate

Tourism Real Estate

Tourism Real Estate
PRO

Abonează-te la newsletter să fii primul care primește cele mai noi recomandări de proprietăți și sfaturi de la experți.

CONTACT

Creează alertă

Salvează căutarea ca să primești pe email ultimele anunțuri publicate

Case și vile cu 4+ camere de vânzare în Cisnădie, Județul Sibiu