Casa 120 mp, teren 125 mp, zona Borhanci

385.000 €

Borhanci, Cluj-Napoca

Nr. cam.:
4
Sup. utilă:
102 mp
Sup. teren:
125 mp
Tip prop.:
Înșiruită
  • • Locație aproximativă

Descriere casă

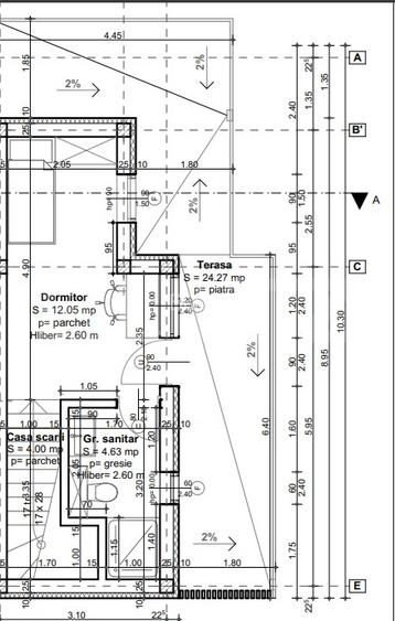
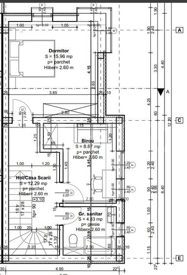
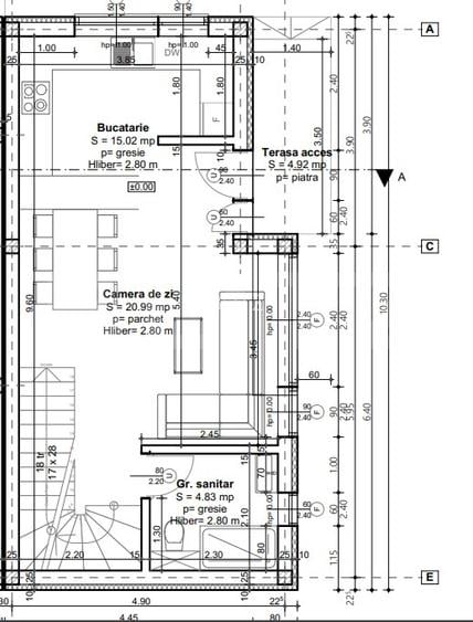
Blitz va ofera spre vanzare casa alipita finalizata, intr-un ansamblu rezidential format din case si duplexuri din cartierul Borhanci. Imobilul  este situata intr-o zona frumoasa si linistita, panorama superba, avand acces rapid spre zona strazii Brancusi, Fagului, SPA TCI si HUB Educational Borhanci. Casa are design arhitectural modern  materiale folosite de calitate superioara , caramida Porotherm de 30 cm, izolatie cu vata bazaltica de 15 cm, tencuiala decorativa, placare otel corten si tera sit. Ferestrele  au spatii vitrate mari, tamplarie PVC Rehau cu 7 camere pentru o izolare termica si fonica optima. Suprafata utila este de 105 mp, iar terenul de 125 mp. Compartimentarea casei este gandita astfel: parter 40 mp, cu hol acces, bucatarie, living baie. Etaj: 45 mp,  cu 2 dormitoare,  baie Etaj retras : 20 mp  cu dormitor, baie, terasa panoramica 24 mp. Casa se va preda cu instalatii electrice si sanitare la pozitie, centrala proprie prin condensare, incalzire prin pardoseala, distribuitoare pe fiecare nivel, automatizare cu termostat individual pentru fiecare camera, pereti tencuiti, gletuiti in  3 randuri  si 1 strat de lavabil. Exterior: amenajare completa, utilitati precum apa, gaz, curent, canalizare, imprejmuire exterioara cu gard, pavaj. De asemenea, casa dispune de loc parcare pentru 2 masini, accesul fiind de pe un drum 9 m asfaltat. Cod oferta / ID BLITZ: P154431
Citește mai mult Citește mai puțin
Nemobilat 1 Parcare 1 Parcare / Garaj / Parcare subterană

Detalii casă

ID anunț: XFTI113T9 Copiat! 270585216 Copiat!
Actualizat în: 23 Februarie 2026
Suprafață construită: 135 mp
Nr. bucătării: 1
Nr. băi: 3
Nr. balcoane / Terase / Logii: 1
Nr. terase: 1
Front stradal: 12 m
Regim înălțime: P+2E

Utilități

Utilități
Curent Apă Canalizare Gaze
Ferestre cu geam termopan
PVC
Comision
%

Disponibilitate proprietate:

imediat

Puncte de interes

Mijloace transport
bus-station
Voievodul Gelu Vest
Stații autobuz aprox. 432 m
bus-station
Voievodul Gelu Est
Stații autobuz aprox. 471 m
bus-station
Violetelor
Stații autobuz aprox. 527 m
bus-station
Theodor Pallady
Stații autobuz aprox. 549 m
Școală
university
Casa Agronomului (en)
Universități aprox. 1541 m
kindergarten
Gradinita Poenita
Gradinițe aprox. 1830 m
kindergarten
Grădinita "Poenita"
Gradinițe aprox. 1836 m
school
Happy Kids Internaional school
Școli aprox. 1995 m
Recreere
park
Parc
Parcuri aprox. 1306 m
sports-ground
Teren sportiv
Terenuri sport aprox. 1372 m
park
Parc
Parcuri aprox. 1934 m
restaurant
Da Vinci
Restaurant aprox. 1967 m

Detalii despre preț și costuri

Costuri cu achiziția

Fără credit
16.119 RON
Credit ipotecar
18.866 RON
Noua casă
2.102 RON+ taxe notariale

i

Costuri adiționale mai puțin știute la achiziție: taxe notariale, comisioane etc.

Proprietăți recomandate

Detalii de contact

BLITZ

BLITZ ROMANIA

4.70(105 review-uri)

BLITZ
PRO

Abonează-te la newsletter să fii primul care primește cele mai noi recomandări de proprietăți și sfaturi de la experți.

CONTACT

Creează alertă

Salvează căutarea ca să primești pe email ultimele anunțuri publicate

Case și vile cu 4+ camere de vânzare în zona Borhanci, Cluj-Napoca