1

Spatiu de birouri de vanzare – zona premium Grigorescu

380.000 €

Grigorescu, Cluj-Napoca

Nr. cam.:
5
Sup. utilă:
153 mp
Sup. teren:
299 mp
Tip prop.:
Altele
  • • Locație aproximativă

Descriere casă

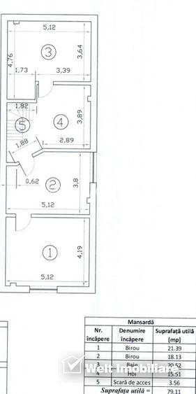
Va propunem spre vanzare o cladire cu destinatie comerciala si de birouri, situata in cartierul Grigorescu, intr-o zona cu vad foarte bun, in imediata apropiere a statiei de autobuz, cu acces facil si vizibilitate excelenta din strada. Imobilul este dispus pe doua niveluri (parter si mansarda) si are o suprafata construita desfasurata de 253 mp, respectiv o suprafata utila de 153 mp. Este ideal pentru activitati de birou, servicii sau cabinete si reprezinta o oportunitate excelenta de investitie, fiind in prezent inchiriat catre chiriasi stabili, cu randament imediat. Teren total: 299 mp Front stradal: 13,5 metri Compartimentare: Parter: 3 birouri, baie, antreu, scara interioara Mansarda: 2 birouri, hol, baie Constructia este solida, realizata pe fundatii din beton armat, cu zidarie din caramida si acoperis tip terasa. Beneficiaza de garaj auto si curte proprie, care poate fi utilizata pentru parcare, zona de relaxare sau extindere. Caracteristici principale: Zona cu vad comercial, trafic pietonal si rutier intens Acces imediat la mijloacele de transport in comun Spatiu luminos, bine intretinut Proprietate inchiriata, cu venit pasiv garantat Posibilitate de parcare in curte Acces auto facil Dotari si utilitati: Centrala termica proprie Contorizare individuala Utilitati complete Posibilitate de recompartimentare si personalizare Pentru informatii suplimentare sau pentru programarea unei vizionari, va invitam sa ne contactati. Aceasta proprietate ofera combinatia perfecta intre amplasare, functionalitate si potential investitional.
Citește mai mult Citește mai puțin
Aer condiționat Calorifere Centrală proprie 3 Parcări 3 Parcări / Garaje / Parcări subterane 1 Garaj

Detalii casă

ID anunț: X1KA1120D Copiat! 266314610 Copiat!
Actualizat în: 28 Februarie 2026
Suprafață construită: 253 mp
Nr. bucătării: 1
Nr. băi: 2
Front stradal: 13.5 m
Structură rezistență: Cărămidă
Regim înălțime: P+1E

Utilități

Pereți
Vopsea lavabilă
Podele
Parchet Gresie
Utilități
Curent Apă Canalizare Gaze Curent trifazic
Comision
2%+TVA

Disponibilitate proprietate:

imediat

Puncte de interes

Mijloace transport
bus-station
Fantanele Bus Station
Stații autobuz aprox. 271 m
bus-station
Statia Miraslau, Linia CORA
Stații autobuz aprox. 292 m
tram-station
Statia Plopilor 2 TRV, Linia 102
Stații tramvai aprox. 611 m
tram-station
Plopilor Nord
Stații tramvai aprox. 611 m
Școală
university
Institutul de cercetari in chimie Raluca Ripan
Universități aprox. 331 m
kindergarten
Gradinita Licurici
Gradinițe aprox. 360 m
school
Scoala Generala nr.15
Școli aprox. 510 m
university
UBB Educatie Fizica si Sport
Universități aprox. 662 m
Recreere
park
Parc
Parcuri aprox. 44 m
sports-ground
Teren sportiv
Terenuri sport aprox. 159 m
pub
Seven
Pub aprox. 239 m
supermarket
Magazin Profi Grigorescu
Supermarket aprox. 337 m

Detalii despre preț și costuri

Costuri cu achiziția

Fără credit
15.943 RON
Credit ipotecar
18.668 RON
Noua casă
2.076 RON+ taxe notariale

i

Costuri adiționale mai puțin știute la achiziție: taxe notariale, comisioane etc.

Proprietăți recomandate

Detalii de contact

WELT IMOBILIARE

Welt Imobiliare

4.52(21 review-uri)

WELT IMOBILIARE
PRO

Abonează-te la newsletter să fii primul care primește cele mai noi recomandări de proprietăți și sfaturi de la experți.

CONTACT

Creează alertă

Salvează căutarea ca să primești pe email ultimele anunțuri publicate

Case și vile cu 4+ camere de vânzare în zona Grigorescu, Cluj-Napoca