1

Casa 5 camere de vanzare in Iris, Cluj Napoca

379.000 €

Iris, Cluj-Napoca

Nr. cam.:
5
Sup. utilă:
150 mp
Sup. teren:
315 mp
  • • Locație aproximativă

Descriere casă

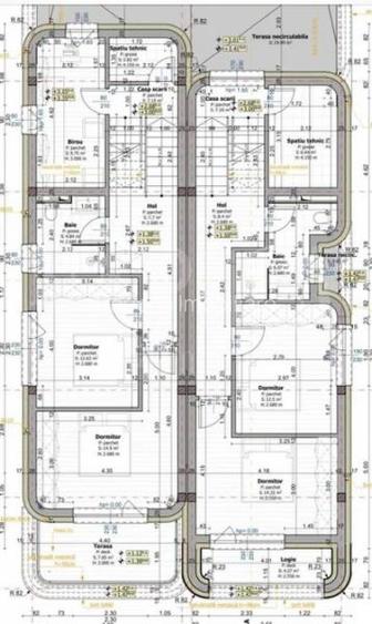
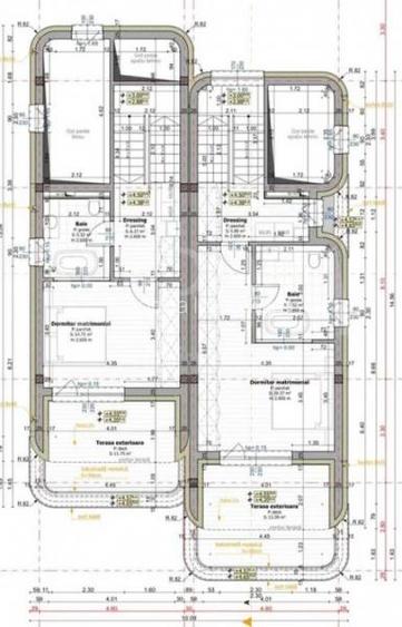
Duplex de vanzare in Voronet ! Confort, eficienta energetica si posibilitate de personalizare. Va prezentam un duplex modern si eficient energetic, ideal pentru familii, situat intr-o zona linistita si accesibila. O unitate dispune de 150 mp utili, pe un teren aferent de 315 mp, iar curtea va dispune de 2 locuri de parcare pentru fiecare unitate. Compartimentare optima: -living generos; -bucatarie spatioasa; -birou; -3 dormitoare; -3 bai; -3 terase; -camera tehnica cu spatiu de depozitare. La avantajele si dotarile acestei proprietati regasim: sistem de incalzire in pardoseala pentru un confort termic superior; pompa de caldura- solutie eficienta si ecologica; panouri fotovoltaice - costuri minime de intretinere; posibilitate de personalizare interioara - in functie de stilul si nevoile dumneavoastra. Alegeti sa investiti intr-o locuinta de viitor, eficienta energetic, spatioasa si adaptata nevoilor moderne. Pentru mai multe detalii sau programarea unei vizionari, nu ezitati sa ne contactati! Echipa Napoca Imobiliare ID oferta: 153789
Citește mai mult Citește mai puțin
2 Parcări

Detalii casă

ID anunț: X57Q112AL Copiat! 263732996 Copiat!
Actualizat în: 25 Iunie 2025
Suprafață construită: 25 mp
Nr. bucătării: 1
Nr. băi: 3
Nr. terase: 3
Front stradal: 15 m
Învelitoare acoperiș: Tabla
An construcție: 2025
Regim înălțime: P

Utilități

Utilități
Curent Apă Canalizare Gaze CATV Telefon
Internet
Cablu Fibră optică Wireless
Amenajare străzi
Mijloace de transport în comun Iluminat stradal
Comision
2% + TVA

Puncte de interes

Mijloace transport
bus-station
UNIMET Nord
Stații autobuz aprox. 1324 m
bus-station
ERS CUG Nord
Stații autobuz aprox. 1328 m
tram-station
Statia UNIMET 1 TRV, Linia 100, 102, 23
Stații tramvai aprox. 1330 m
tram-station
UNIMET Sud
Stații tramvai aprox. 1336 m
Școală
university
Facultatea de Ingineria Materialelor si a Mediului
Universități aprox. 1665 m
university
UT Facultatea de Mecanica
Universități aprox. 1672 m
Recreere
restaurant
Cantina Facultatea de Mecanica
Restaurant aprox. 1706 m

Detalii despre preț și costuri

Costuri cu achiziția

Fără credit
15.913 RON
Credit ipotecar
18.634 RON
Noua casă
2.071 RON+ taxe notariale

i

Costuri adiționale mai puțin știute la achiziție: taxe notariale, comisioane etc.

Proprietăți recomandate

Detalii de contact

Napoca Imobiliare

Admin

3.44(14 review-uri)

Napoca Imobiliare
PRO

Abonează-te la newsletter să fii primul care primește cele mai noi recomandări de proprietăți și sfaturi de la experți.

CONTACT

Creează alertă

Salvează căutarea ca să primești pe email ultimele anunțuri publicate

Case și vile cu 4+ camere de vânzare în zona Iris, Cluj-Napoca