2

Casă individuală P+1+M cu 5 dormitoare – zona liniștită, Chinteni

220.000 €

Chinteni, Județul Cluj

Nr. cam.:
5
Sup. utilă:
140 mp
Sup. teren:
497 mp
Tip prop.:
Casă individuală
  • • Locație aproximativă

Descriere casă

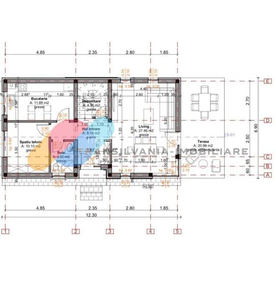
Vă propunem spre vânzare o casă individuală P+1+M, cu 5 camere Suprafață construită: 140 mp Teren total: 497 mp Compartimentare funcțională: Parter: Living luminos Bucătărie separată Cameră tehnică Baie Spațiu de depozitare Etaj: 3 dormitoare Dormitor matrimonial cu baie proprie și dressing Baie principală Balcon Mansardă: Spațiu versatil, ideal pentru birou, hobby sau depozitare Se preda finisat cu parchet si gresie Exterior & curte: 2 locuri de parcare în curte Posibilitate amenajare grădină sau terasă Caracteristici tehnice: Placă turnată peste etaj și mansardă – structură solidă Utilități: gaz, curent, apă, canalizare Priză pentru mașină electrică Posibilitate montare video interfon 📞 Pentru mai multe detalii sau programarea unei vizionări, vă stăm cu drag la dispoziție! id extern: P3072
Citește mai mult Citește mai puțin
Centrală proprie Încălzire prin pardoseală Bine întreținut (Bună) Zonă de deal / munte Zonă rurală

Detalii casă

ID anunț: XF36110GC Copiat! 274769784 Copiat!
Actualizat în: 02 Aprilie 2026
Tip tranzacție: De vânzare prin agent
Nr. bucătării: 1
Nr. băi: 3
Nr. balcoane / Terase / Logii: 2
Nr. terase: 1
An construcție: 2025 (Finalizată)
Structură rezistență: Cărămidă
Regim înălțime: P+1E
Modalitate de plată: Cash sau Credit

Utilități

Utilități
Curent Apă Canalizare Gaze
Comision
2%

Puncte de interes

Mijloace transport
bus-station
M-Xamus E
Stații autobuz aprox. 253 m
bus-station
M-Xamus V
Stații autobuz aprox. 257 m
bus-station
M-Xamus
Stații autobuz aprox. 257 m
bus-station
M-Garden V
Stații autobuz aprox. 519 m

Detalii despre preț și costuri

Costuri cu achiziția

Fără credit
Credit ipotecar
Noua casă

i

Costuri adiționale mai puțin știute la achiziție: taxe notariale, comisioane etc.

Acces la informații premium după autentificare
Login Gratuit

Proprietăți similare

Casă individuală cu 4 camere în Chinteni
237.000 €
Județul Cluj, Chinteni
4 camere
105 mp
465 mp teren
Casă individuală cu 4 camere în Chinteni
199.900 €
Județul Cluj, Chinteni
4 camere
169 mp
500 mp teren
Casă individuală cu 4 camere în Chinteni
235.950 €
Județul Cluj, Chinteni
4 camere
148 mp
538 mp teren

Detalii de contact

Transilvania-imobiliare

Eduard Emanuel Farcas

Transilvania-imobiliare
PRO

Abonează-te la newsletter să fii primul care primește cele mai noi recomandări de proprietăți și sfaturi de la experți.

CONTACT

Creează alertă

Salvează căutarea ca să primești pe email ultimele anunțuri publicate

Case individuale cu 4+ camere de vânzare în Chinteni, Județul Cluj