Casa 3 camere de vanzare in Zorilor, Cluj Napoca

385.000 €

Zorilor, Cluj-Napoca

Nr. cam.:
3
Sup. utilă:
85 mp
Sup. teren:
125 mp
  • • Locație aproximativă

Descriere casă

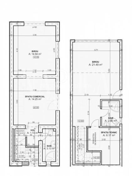
De vanzare - casa individuala in Zorilor, cu 135 mp de teren. Se vinde spatiu comercial individual cu posibilitate de utilizare mixta, situat in zona strazii Observatorului, intr-o zona foarte accesibila a orasului Cluj-Napoca. Cladirea este compusa din parter si un etaj retras, cu o suprafata utila de 85 mp si compartimentare versatila: Parter: Doua incaperi si o baie (cu acces direct catre curte). Etaj: O incapere, baie si camera tehnica. Spatiul poate fi usor recompartimentat intr-un singur spatiu deschis, potrivit pentru diverse activitati comerciale sau servicii (salon, birou, cabinet medical, alimentatie publica etc.). Detalii suplimentare: Suprafata curte: 135 mp, cu loc de parcare inclus. Incalzire eficienta: Centrala termica Ariston cu buffer, instalata in 2020. Izolatie termica si ultima renovare in 2020. Clasificare turistica: Functioneaza in regim hotelier, conform Ministerului Turismului. Situatie juridica clara: Toate actele sunt la zi, facilitand o tranzactie rapida. Pretul este final, fara TVA aditional. Pentru mai multe detalii si programarea unei vizionari, va rugam sa ne contactati. Echipa Napoca Imobiliare ID oferta: 148679
Citește mai mult Citește mai puțin
Centrală proprie 2 Parcări

Detalii casă

ID anunț: X57Q11264 Copiat! 247841960 Copiat!
Actualizat în: 17 Martie 2025
Suprafață construită: 85 mp
Nr. băi: 2
Nr. terase: 1
Front stradal: 12 m
Învelitoare acoperiș: Țiglă
Regim înălțime: P

Utilități

Pereți
Faianță Vopsea lavabilă
Ușă intrare
Metal Parchet
Uși interior
Lemn
Ferestre cu geam termopan
PVC
Utilități
Curent Apă Canalizare Gaze CATV Telefon
Internet
Cablu Fibră optică Wireless
Comision
2% + TVA

Puncte de interes

Mijloace transport
bus-station
Sp. de Boli Infectioase
Stații autobuz aprox. 233 m
bus-station
Statia Boli Infectioase, Linia 22
Stații autobuz aprox. 262 m
tram-station
Statia G. Baritiu 2 TRV, Linia 102
Stații tramvai aprox. 1470 m
tram-station
Opera Maghiara Est
Stații tramvai aprox. 1485 m
Școală
kindergarten
Grăd.Universul copiilor str.1
Gradinițe aprox. 281 m
university
CFDP si Facultatea de Arhitectura si Urbanism
Universități aprox. 366 m
kindergarten
Grăd.Zâna Zorilor
Gradinițe aprox. 415 m
school
Facultatea de Arhitectura si Urbanism
Școli aprox. 438 m
Recreere
park
Gradina Botanica
Parcuri aprox. 198 m
supermarket
Profi
Supermarket aprox. 370 m
sports-ground
Teren sportiv
Terenuri sport aprox. 392 m
public-square
Piața "Lucian Blaga" (fosta Păcii)
Piețe publice aprox. 939 m

Detalii despre preț și costuri

Costuri cu achiziția

Fără credit
16.114 RON
Credit ipotecar
18.860 RON
Noua casă
2.101 RON+ taxe notariale

i

Costuri adiționale mai puțin știute la achiziție: taxe notariale, comisioane etc.

Proprietăți recomandate

Detalii de contact

Napoca Imobiliare

Admin

3.44(14 review-uri)

Napoca Imobiliare
PRO

Abonează-te la newsletter să fii primul care primește cele mai noi recomandări de proprietăți și sfaturi de la experți.

CONTACT

Creează alertă

Salvează căutarea ca să primești pe email ultimele anunțuri publicate

Case și vile cu 3 camere de vânzare în zona Zorilor, Cluj-Napoca