4

VILA D+P+E (Demisol + Parter + Etaj), zona KM 4-5

290.000 €

Km 4-5, Constanța

Nr. cam.:
4
Sup. utilă:
188 mp
Sup. teren:
394 mp
Tip prop.:
Altele
  • • Locație exactă

Descriere casă

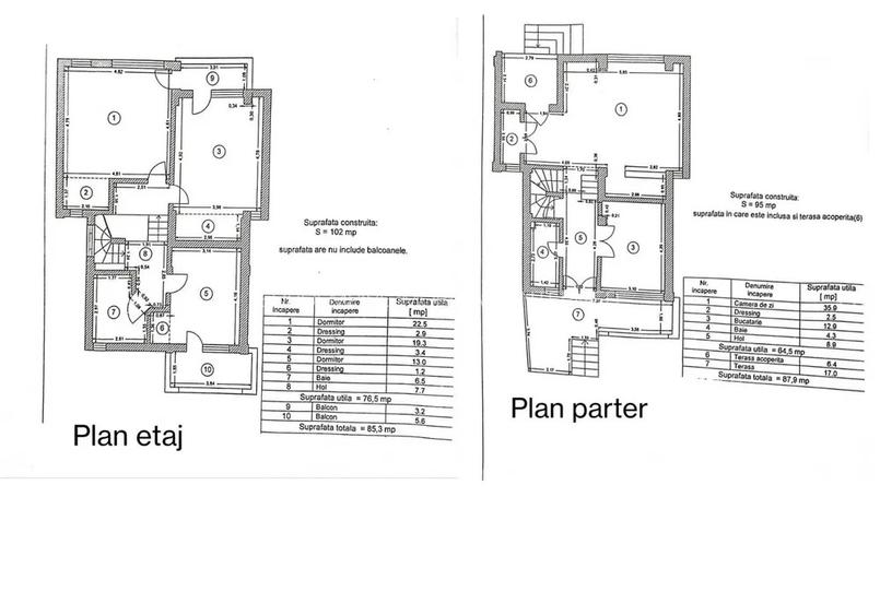
COD VV 1921 VILA D+P+E (Demisol + Parter + Etaj), zona KM 4-5, suprafață utilă 188 mp, suprafață construită desfășurată 263 mp, suprafață construită la sol 95 mp, teren 394 mp, demisol 48 mp (cu posibilitate compartimentare în garsonieră), 4 camere(3 dormitoare + 1 living spațios), 2 băi, 2 terase (față + spate), 2 balcoane, dressing in fiecare dormitor + dressing separat la parter, bucătărie complet utilată, 3 locuri parcare, materiale premium, construcție solidă cu cadru de beton armat pe două direcții, planșee de 14 cm grosime, grinzi, complet mobilată și utilată (exceptând unele piese personale), parchet de bambus, gresie și faianță de calitate, iluminat natural și artificial inclusiv la demisol, racorduri complete: apă, canalizare, energie electrică. Imobilul este potrivit pentru locuință de familie numeroasă sau investiție (cu posibilitatea închirierii unui spațiu separat la demisol), pret 290000 euro/negociabil. Pentru mai multe detali și vizionare, tel. .
Citește mai mult Citește mai puțin
Mobilat Centrală proprie 3 Parcări Bine întreținut (Bună) Zonă de litoral

Detalii casă

ID anunț: X2M6010EV Copiat! 265206388 Copiat!
Actualizat în: 14 Martie 2026
Nr. bucătării: 1
Nr. băi: 2
Nr. balcoane / Terase / Logii: 2
Nr. terase: 2
Regim înălțime: P+1E

Utilități

Pereți
Faianță Vopsea lavabilă
Contorizare
Apometre Contor gaz
Bucătărie
Mobilată Utilată
Utilități
Curent Apă Canalizare Gaze
Amenajare străzi
Asfaltate Iluminat stradal Mijloace de transport în comun
Comision
2%

Puncte de interes

Mijloace transport
bus-station
Pandurului [5-40]
Stații autobuz aprox. 367 m
bus-station
Statia Pandurului; Linia 5
Stații autobuz aprox. 373 m
bus-station
KM 4 [5B]
Stații autobuz aprox. 474 m
bus-station
Statia Km ; Linia 5, 5R
Stații autobuz aprox. 488 m
Școală
kindergarten
Grădinița cu Program Normal "Abracadabra"
Gradinițe aprox. 368 m
school
Școala gimnazială Anghel Saligny
Școli aprox. 374 m
kindergarten
Gradinita nr. 55 Constanta
Gradinițe aprox. 390 m
school
Școala cu Clasele I-VIII Nr.16
Școli aprox. 418 m
Recreere
supermarket
Profi
Supermarket aprox. 322 m
park
Parc Km 4-5
Parcuri aprox. 581 m
sports-ground
Teren sportiv
Terenuri sport aprox. 946 m
restaurant
Complex Rovas
Restaurant aprox. 1207 m

Detalii despre preț și costuri

Costuri cu achiziția

Fără credit
Credit ipotecar
Noua casă

i

Costuri adiționale mai puțin știute la achiziție: taxe notariale, comisioane etc.

Insight premium disponibil după login

Proprietăți recomandate

Detalii de contact

Abonează-te la newsletter să fii primul care primește cele mai noi recomandări de proprietăți și sfaturi de la experți.

CONTACT

Creează alertă

Salvează căutarea ca să primești pe email ultimele anunțuri publicate

Case și vile cu 4+ camere de vânzare în zona Km 4-5, Constanța