70

Casa 4 Camere Individuala Curte Proprie Intr-un Complex Rezidential

250.000 € + TVA

Cristian, Județul Brașov

Nr. cam.:
4
Sup. utilă:
109 mp
Sup. teren:
500 mp
Tip prop.:
Altele
  • • Comision 0%
  • • Locație exactă

Descriere casă

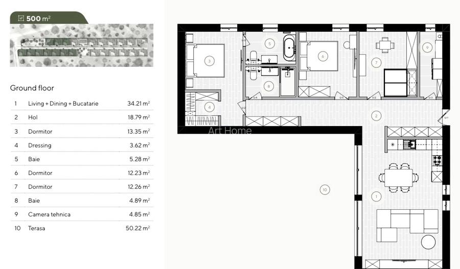
Proprietatea propusa spre vanzare este situata intr-un complex rezidential nou, localizata intre doua localitati frumos dezvoltate: Ghimbav si Cristian, cu acces facil catre viata urbana a orasului Brasov. Am construit casa perfecta atat ca locuinta de resedinta, avand accesibile scoli, gradinite, centre comerciale, mijloace de transport in comun dar si ca o casa de vacanta, inconjurata de numeroase puncte turistice precum Poiana Brasov, Cetatea Rasnov, Bran, etc. Locuinta cu o suprafata utila de 109 mp desfasurata pe parter, este cumpusa din living, bucatarie, camera tehnica, hol, 3 dormitoare si 2 bai. In curtea cu o suprafata de 500 mp se regaseste o piscina de 18 mp, adancine de 1.5 mp, care poate fi optionala, dotata cu sistem de filtrare complet, iluminare led, camin tehnic complet echipat cu pompa de recirculare si filtru de apa. Aditional se poate opta pentru sistem de incalzire cu ajutorul pompei de caldura. Curtea este complet amenajata in functe de stilul peisagistic ales, cu gazon, arbori ornamentali si alte decoruri specifice. Exista 2 locuri de parcare pavate cu posibilitatea de extindere Casa este finisata cu materiale de inalta calitate, dotata cu ferestre panoramice cu termopane Salamander 3 foi, 6 camere, profil 76mm Premium, tavane extensibile la inaltimea de 3400 mm fata de podea, usi Filomuro cu toc ascuns, plinta ascunsa pentru pardoseli luminata Led, sistem ascuns de montare draperii, bai placate cu placi SPC dimensiuni mari 2800x1200 mm, Fiecare casa este echipata cu sistem de incalzire in pardoseala . Pompa de caldura trifazica de ultima generatie cu mod WiFi incorporat permite pornirea/oprirea si reglarea temperaturii de la distanta cu ajutorul aplicatilor mobile. Climatizarea este realizata atat prin sistemul de incalzire in pardoseala cat si cu ajutorul unitatilor de aer conditionat montate in casa, eficienta energetica fiind de nivel A+++ Fotografii reale Programeaza o vizionare pentru mai multe detalii
Citește mai mult Citește mai puțin
Piscină Aer condiționat Centrală proprie 2 Parcări Zonă de deal / munte Zonă rurală

Detalii casă

ID anunț: XEQJ0100C Copiat! 261455338 Copiat!
Actualizat în: 04 Februarie 2026
Regim înălțime: P

Utilități

Destinație
Rezidențial De vacanță
Utilități
Curent Apă Canalizare
Amenajare străzi
Asfaltate

Puncte de interes

Mijloace transport
bus-station
Statia INA Schaeffler, linia (44),46
Stații autobuz aprox. 1662 m

Detalii despre preț și costuri

Costuri cu achiziția

Fără credit
13.283 RON
Credit ipotecar
15.679 RON
Noua casă
1.681 RON+ taxe notariale

i

Costuri adiționale mai puțin știute la achiziție: taxe notariale, comisioane etc.

Proprietăți recomandate

Detalii de contact

Art Home

Raluca Elena

5.00(3 review-uri)

Art Home

Abonează-te la newsletter să fii primul care primește cele mai noi recomandări de proprietăți și sfaturi de la experți.

CONTACT

Creează alertă

Salvează căutarea ca să primești pe email ultimele anunțuri publicate

Case și vile cu 4+ camere de vânzare în Cristian, Județul Brașov