Casa de vanzare cu 4 camere in Floresti

199.000 €

Florești, Județul Cluj

Nr. cam.:
4
Sup. utilă:
120 mp
Sup. teren:
200 mp
Tip prop.:
Înșiruită
  • • Locație aproximativă

Descriere casă

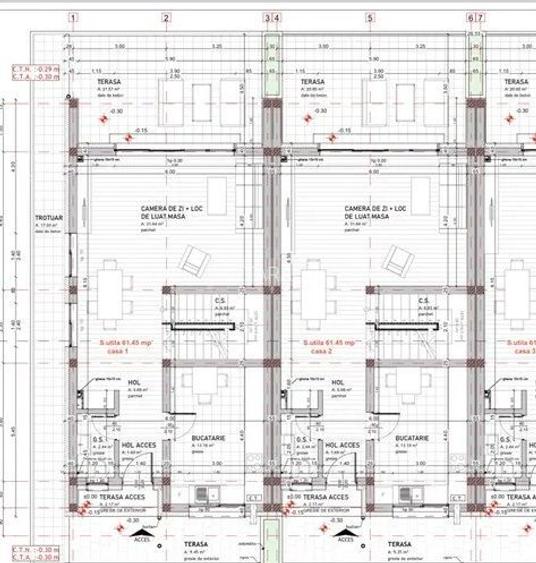
Oferim spre vanzare casa cu 4 camere in Floresti. Suprafata utila este de 120mp, iar terenul este de 200mp. Casa este compusa din P+E astfel: -Parter: terasa, hol, bucatarie, baie, living+loc de serivrea mesei, terasa si casa scarii - Etaj: casa scarii, 2 dormitoare, baie si balcon , dormitor matrimonial, baie si balcon. Casa se vinde la stadiul de semifinisata, cu centrala proprie si incalzire in pardoseala. Dispune de 2 locuri de parcare si curte amenajata. Pentru vizite si detalii suplimentare, nu ezitati sa ne contactati!
Citește mai mult Citește mai puțin
Nemobilat Centrală proprie Încălzire prin pardoseală 2 Parcări

Detalii casă

ID anunț: X46K1125P Copiat! 275337756 Copiat!
Actualizat în: 21 Mai 2026
Tip tranzacție: De vânzare prin agent
Suprafață desfășurată: 125 mp
Nr. bucătării: 1
Nr. băi: 3
Nr. terase: 1
Învelitoare acoperiș: Țiglă
An construcție: 2023 (Finalizată)
Regim înălțime: P+1E
Modalitate de plată: Cash sau Credit

Utilități

Ușă intrare
Metal
Izolații termice
Exterior
Contorizare
Apometre Contor gaz
Utilități
Curent Apă Canalizare CATV Gaze Telefon
Internet
Cablu
Amenajare străzi
Iluminat stradal Mijloace de transport în comun Asfaltate Betonate
Comision
standard

Disponibilitate proprietate:

Imediat

Puncte de interes

Mijloace transport
bus-station
Oncos N
Stații autobuz aprox. 635 m
bus-station
Oncos S
Stații autobuz aprox. 642 m
bus-station
Somesului
Stații autobuz aprox. 1049 m
bus-station
M-Poligonului E
Stații autobuz aprox. 1051 m
Recreere
park
Zonă de protectie - Compania de Apa Somes S.A.
Parcuri aprox. 884 m
supermarket
Metro
Supermarket aprox. 1332 m
mall
Complex comercial Polus
Mall aprox. 1759 m
sports-ground
Teren Decathlon
Terenuri sport aprox. 1835 m

Detalii despre preț și costuri

Costuri cu achiziția

Fără credit
Credit ipotecar
Noua casă

i

Costuri adiționale mai puțin știute la achiziție: taxe notariale, comisioane etc.

Acces la informații premium după autentificare
Login Gratuit

Proprietăți similare

Casă cu 4 camere în Florești
187.550 €
Județul Cluj, Florești
4 camere
109 mp
133 mp teren
Casă cu 5 camere în Florești
187.550 €
Județul Cluj, Florești
5 camere
108 mp
180 mp teren
Casă cu 4 camere în Florești
191.000 €
Județul Cluj, Florești
4 camere
102 mp
110 mp teren

Detalii de contact

TARA

Elisabeta Rus Consilier Imobiliar

TARA
PRO

Abonează-te la newsletter să fii primul care primește cele mai noi recomandări de proprietăți și sfaturi de la experți.

CONTACT

Creează alertă

Salvează căutarea ca să primești pe email ultimele anunțuri publicate

Case și vile cu 4+ camere de vânzare în Florești, Județul Cluj