Casa individuala deosebita!
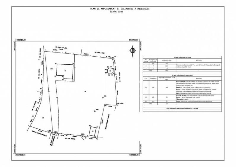
Proprietate de exceptie compusa dintr-o casa individuala cu 5 camere si garaj, piscina, casa de vacanta, foisor, si 4383 mp teren la liziera padurii de pini din Floresti.
Imobilul a fost proiectat si executat pentru a satisface cele mai exigente cerinte in ceea ce priveste siguranta, confortul si eficienta energetica.
Casa are structura din beton armat, peretii exteriori din blocuri ceramice HS de 38 cm cu termosistem din polistiren de 10 cm, ferestre termoizolante si usi din lemn masiv. Finisajele interioare au fost realizate cu materiale de calitate premium.
Sistemul de incalzire este cu agent termic apa fierbinte asigurat de centrala termica pe lemne, panouri solare si electrice. Dispune de un tanc pentru stocarea apei fierbinti de 2000 l din inox, incalzire in pardoseala in bucatarie, in holurile de la parter si in bai si calorifere in restul incaperilor.
Pe terasa casei sunt montate panouri fotovoltaice si panouri solare pentru apa calda.
Apa potabila este captata din izvor si stocata intr-un rezervor de 50.000 l, iar sub piscina este un bazin unde se colecteaza apa de ploaie utilizata la udarea gradinii.
Epurarea apelor menajere uzate este realizata de o statie de epurare bioactiva cu capacitatea de 30 mc.
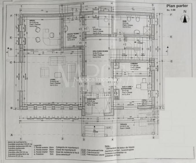
Casa are suprafata construita desfasurata pe circa 450 mp si structurata pe 3 niveluri astfel:
- parterul este amenajat ca zona de zi si este compus din living, birou, bucatarie inchisa, camara, baie, o camera tehnica/spalatorie si holul central cu casa scarii. Din camera tehnica se iese pe o terasa acoperita unde este depozitul de lemne;
- etajul este compartimentat in 3 dormitoare, baie si hol;
2 dintre dormitoare au terasa, una cu acces la panourile solare si fotovoltaice;
- la demisol este garajul inchis cu actionare automata, camera centralei, o incapere de tip buncar cu peretii din beton armat si un spatiu de depozitare.
Langa casa este o constructie de tip gradina de vara, amenajata ca loc de recreere si de primire a oaspetilor.
Casa de vacanta este o constructie in stil rustic cu fundatia din beton armat si structura din lemn, compartimentata in living cu bucatarie open space si baie la parter si dormitor la mansarda. Are o veranda superba cu vedere spre piscina.
Piscina are capacitatea de 50 mc, adancimea de 1,60 m, este alimentata cu apa calda si prevazuta cu instalatie de filtrare.
In partea de sus a gradinii, spre padure, este un foisor din lemn.
Gradina este un adevarat parc dendrologic cu flori, pomi fructiferi, arbori si arbusti ornamentali.
In gradina este si un bazin cu pesti, alimentat cu apa proaspata de izvor si prevazut cu sistem de recirculare.
Pentru a mentine gradina verde chiar si in perioadele secetoase, a fost prevazut un sistem de irigare care foloseste apa de ploaie si din izvor.
Pe toata suprafata proprietatii este montata o instalatie de iluminat exterior, cu senzori.
Proprietatea este imprejmuita cu gard pe fundatie din beton, are iesire la 2 strazi, iar poarta principala este actionata automat cu telecomanda.
Va asteptam la vizionare,
Echipa Napoca Imobiliare!
ID oferta: 105960
Sediul central - Timișoara
Bulevardul Victor Babeș nr. 2, 300230, Timișoara, România
Tel: +40.374.40.44.98 / Fax: +40.256.401.179
Email: suport@imobiliare.ro
Luni - Vineri 08:00 - 20:00
Punct de lucru - București: Iride Business Park, Bld. Dimitrie
Pompeiu 9-9A, Clădirea B2B,
020335, Sector 2, București, România
CONTACT
Sediul central - Timișoara
Bulevardul Victor Babeș nr. 2, 300230, Timișoara, România
Tel: +40.374.40.44.98 / Fax: +40.256.401.179
Email: suport@imobiliare.ro
Luni - Vineri 08:00 - 20:00
Punct de lucru - București: Iride Business Park, Bld. Dimitrie
Pompeiu 9-9A, Clădirea B2B,
020335, Sector 2, București, România
Sună acum și cere detalii sau programează o vizionare.
Cere detalii prin email
*
*
*
*
Stații autobuz
Supermarket
Parcări
Parcuri
Terenuri sport
Spital
Farmacie
Bar
Restaurant
Pub
Cafenea
Tautiului S
aprox.
502 m
Tautiului N
aprox.
521 m
Sub Cetate E
aprox.
715 m
Sub Cetate V
aprox.
717 m
Poligonului V
aprox.
791 m
Poligonului E
aprox.
804 m
M-Poligonului E
aprox.
804 m
Somesului
aprox.
817 m
Oncos S
aprox.
824 m
Oncos N
aprox.
835 m
M-Complex Floresti
aprox.
936 m
Iuliu Hossu
aprox.
1103 m
Luxor N
aprox.
1191 m
Luxor V
aprox.
1259 m
Primaria Floresti S
aprox.
1564 m
Diana
aprox.
1454 m
Lidl
aprox.
1623 m
Profi Floresti
aprox.
1677 m
Profi
aprox.
1677 m
Metro
aprox.
1997 m
Parcare
aprox.
175 m
Parcare
aprox.
722 m
Parcare
aprox.
749 m
Parcare
aprox.
1118 m
Parcare
aprox.
1354 m
Parcare
aprox.
1369 m
Parcare privata
aprox.
1434 m
Parcare
aprox.
1496 m
Parcare
aprox.
1536 m
Parcare
aprox.
1550 m
Parcare pentru clienti
aprox.
1642 m
Parcare cu plata
aprox.
1669 m
Parcare
aprox.
1746 m
Parcare
aprox.
1833 m
Parcul Poligon
aprox.
272 m
Parc
aprox.
378 m
Parc
aprox.
553 m
Parc
aprox.
1706 m
Parc
aprox.
1736 m
Teren Fotbal Sintetic
aprox.
1532 m
ConfiDens
aprox.
1164 m
Farmacie
aprox.
1461 m
Farmacia Tei
aprox.
1867 m
City Cafe
aprox.
1020 m
Atelierul de Pizza
aprox.
1147 m
Sara Grand Resort**** (en)
aprox.
1421 m
Best Western Plus Fusion Hotel
aprox.
1666 m
Da Cristiano
aprox.
1701 m
Silviu
aprox.
1510 m
Adveture of Henry
aprox.
1647 m
Înainte să pleci...
Ești sigur că ai văzut și aceste proprietăți?
890.000 €
Județul Cluj, Florești
6 camere
444 mp
611 mp teren
799.000 €
Județul Cluj, Florești
8 camere
178 mp
850 mp teren
834.000 €
Cluj-Napoca, Europa
3 camere
190 mp
678 mp teren
Creează alertă
Salvează căutarea ca să primești pe email ultimele anunțuri publicate
Case și vile cu 4+ camere de vânzare în Florești, Județul Cluj
Cere detalii prin email
*
*
*
*
Detaliile tale de contact vor fi partajate cu Napoca Imobiliare
Preț total4.363.083 RON (856.295 €)
Costuri cu achiziția32.078 RON
Preț de achiziție4.331.005 RON
Costuri cu achiziția32.078 RON
Comision agenție Întreabă agenţia
Onorariu notarial25.581 RON
Taxă înscriere OCPI6.497 RON
Preț de achiziție4.331.005 RON
Preț locuință4.331.005 RON
TVA 0%Inclus în prețul cerut
Cost total692.562 RON (135.921 €)
Avans (15%)649.651 RON
Cost achitat în prima lună6.113 RON
Costuri cu achiziția36.798 RON
Cost achitat în prima lună6.113 RON
Comision analiză dosar
400 RON - 900 RON
Taxă evaluare imobil(până la)
900 RON
Rata lunară (variabilă)19.293 RON
Asigurare anuală imobil4.331 RON
Arhivă electronică102 RON
Poliță PAD130 RON
Asigurare de viață/lună Costul este variabil. În funcție de banca aleasă, procentul variază între 0.0259% și 0.035% din soldul creditului.
Costuri cu achiziția36.798 RON
Comision agenție Întreabă agenţia
Onorariu notarial25.581 RON
Taxă întabulare OCPI6.497 RON
Autentificare contract credit4.720 RON
Preț de achiziție4.331.005 RON
Preț locuință4.331.005 RON
TVA 0%Inclus în prețul cerut
Preț de achiziție4.331.005 RON
Preț locuință4.331.005 RON
TVA 0%
Inclus în prețul cerut
Avans minim3.724.664 RON
Credit pe 30 de ani606.341 RON
Cost achitat în prima lună
Taxa evaluare imobil(până la)
900 RON
Rata lunară (variabilă)4.260 RON
Depozit colateral12.780 RON
Comision de garantare FNGCIMM361 RON
Asigurare anuală imobil4.331 RON
Poliță PAD130 RON
Tarif arhivă electronică102 RON
Costuri adiționale4.471 RON + taxe notariale
Asigurare viață și complexă (opțională)Costul este variabil. În funcție de banca aleasă, procentul variază între 0.0259% și 0.035% din soldul creditului
Onorariu notarialconform tarif notarial
Taxă întabulare OCPI4.471 RON
i
Toate valorile de mai sus sunt estimative și nu reprezintă în mod obligatoriu costurile exacte pe care le veți primi de la companiile/instituțiile prin care veți încheia tranzacția.