1

Casă înșiruită de vânzare Florești, Str. Șesul de Sus, Ansamblu rezidențial p

213.000 €

Florești, Județul Cluj

Nr. cam.:
4
Sup. utilă:
81 mp
Sup. teren:
150 mp
Tip prop.:
data_properties.housing_type.house-villa
  • • Locație aproximativă

Descriere casă

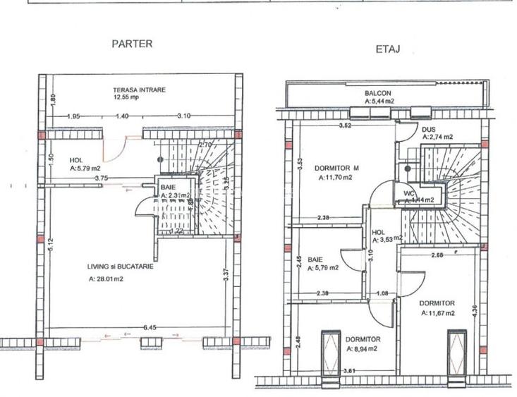
Descoperă confortul unei locuințe moderne, situată într-un complex rezidențial privat, cu acces controlat, ideal pentru familii care își doresc liniște și siguranță. Proprietatea are o suprafață utilă de 81,8 mp, este dispusă pe parter + etaj și oferă o compartimentare practică și eficientă. Locuința este complet mobilată cu mobilier realizat la comandă și se vinde exact ca în prezentare, incluzând toate electrocasnicele și sistemul de aer condiționat. Caracteristici principale: Centrală termică nouă Saunier Duval (montată în 04.03.2026) Încălzire în pardoseală cu automatizare pe zone la etaj Aer condiționat la etaj Uși interioare Porta Doors Loc de parcare subteran, închis Grădină proprie de 50 mp + terasă de 12,6 mp + balcon de 5,4 mp Orientare sudică – lumină naturală pe tot parcursul zilei Compartimentare: Parter: living spațios cu bucătărie open-space, baie de serviciu, dressing Etaj: dormitor matrimonial cu balcon și baie proprie cu duș, 2 dormitoare, baie cu cadă, hol Amplasată într-o zonă liniștită din Florești, proprietatea beneficiază de acces rapid către facilități esențiale – stație de autobuz, magazine (Profi, Carrefour) și farmacie, toate la doar 5–7 minute de mers pe jos. Această casă reprezintă alegerea ideală pentru o familie care caută un spațiu modern, complet utilat, într-un cadru sigur și bine conectat. ID extern: P153995
Citește mai mult Citește mai puțin
Mobilat Aer condiționat Centrală proprie Încălzire prin pardoseală 1 Parcare Bine întreținut (Bună)

Detalii casă

ID anunț: XFUS1109J Copiat! 275384334 Copiat!
Actualizat în: 21 Mai 2026
Tip tranzacție: De vânzare prin agent
Suprafață construită: 100 mp
Nr. bucătării: 1
Nr. băi: 3
Nr. balcoane / Terase / Logii: 1
Nr. terase: 1
An construcție: 2021 (Finalizată)
Structură rezistență: Cărămidă
Regim înălțime: P+1E
Modalitate de plată: Cash sau Credit

Utilități

Pereți
Vopsea lavabilă Faianță
Podele
Parchet Gresie
Ușă intrare
PVC
Uși interior
Lemn
Izolații termice
Exterior
Ferestre cu geam termopan
PVC PVC
Contorizare
Apometre Contor gaz
Bucătărie
Mobilată
Electrocasnice
Mașină de spălat Frigider Aragaz Mașină spălat vase TV Cafetieră Cuptor microunde Hotă
Facilități imobil
Interfon
Utilități
Curent Apă Canalizare Gaze
Amenajare străzi
Asfaltate
Comision
2%

Puncte de interes

Mijloace transport
bus-station
M-Cartier Terra
Stații autobuz aprox. 212 m
bus-station
M-Prof. Dumitru Mocanu
Stații autobuz aprox. 431 m
bus-station
M-Prof. Dumitru Mocanu V
Stații autobuz aprox. 436 m
bus-station
M-Prof. Dumitru Mocanu E
Stații autobuz aprox. 438 m
Recreere
restaurant
Il Milanese
Restaurant aprox. 601 m
park
Parc
Parcuri aprox. 743 m
supermarket
Profi Floresti
Supermarket aprox. 1200 m
sports-ground
Teren Fotbal Sintetic
Terenuri sport aprox. 1449 m

Detalii despre preț și costuri

Costuri cu achiziția

Fără credit
Credit ipotecar
Noua casă

i

Costuri adiționale mai puțin știute la achiziție: taxe notariale, comisioane etc.

Acces la informații premium după autentificare
Login Gratuit

Proprietăți similare

Casă cu 4 camere în Florești
207.500 €
Județul Cluj, Florești
4 camere
84 mp
30 mp teren
Casă cu 4 camere în Florești
229.900 €
Județul Cluj, Florești
4 camere
112 mp
300 mp teren
Casă cu 4 camere în Florești
198.000 €
Județul Cluj, Florești
4 camere
80 mp
70 mp teren

Detalii de contact

GREEN CASA IMOBILIARE

Coman Claudiu Master Broker

GREEN CASA IMOBILIARE
PRO

Abonează-te la newsletter să fii primul care primește cele mai noi recomandări de proprietăți și sfaturi de la experți.

CONTACT

Creează alertă

Salvează căutarea ca să primești pe email ultimele anunțuri publicate

Case și vile cu 4+ camere de vânzare în Florești, Județul Cluj