114.000 Euro- casa 3 dormitoare, 2 grupuri sanitare, zona Arcasilor
Agentia imobiliara Familia va propune spre cumparare o proprietate deosebita intr-o zona linistita, complet consolidata in 2024, zona Arcasilor- Bariera Traian.
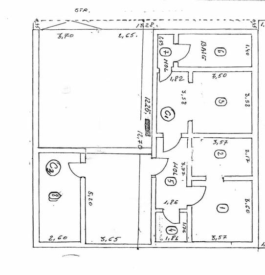
Această construcție cu regim de înălțime P , are o amprentă la sol de aproximativ 100 mp și este executata pe fundație de beton și zidărie de cărămidă tencuită manual. Casa beneficiază de tamplarie Salamander cu geam tripan, iar încălzirea se va realiza printr-o centrală proprie pe gaz (achiziționată, dar în curs de montare). Întreaga construcție este izolată la interior cu vată minerală și la exterior cu polistiren de 10 cm, oferind un confort sporit și un consum energetic scăzut.
Imobilul dispune de două băi, dintre care una cu acces de la exterior și una la interior. Camerele sunt luminoase și aerisite, imobilul fiind compus din 3 dormitoare, o bucătărie și un living, poziționate spre sud-vest, beneficiind de lumină naturală pe o mare perioadă a zilei.
Casa a fost consolidată sub atenta supervizare a proprietarului, cu simț de responsabilitate și folosind materiale de bună calitate. Instalatiile de electricitate de apa si pentru caldura fiind montate noi. Acoperișul a fost înlocuit complet și modernizat, de la asterială până la tabla Lindab de cea mai bună calitate, conferind un plus de estetică și confort locuinței.
Terenul are o deschidere stradală de 13 ml iar gardul este realizat din fier forjat, având o suprafață totală de 170 mp. În fața casei există o curte betonată, o jardinierea cocheta cu flori și un gratar rustic din piatra.
Utilitățile disponibile sunt: apă, gaz, curent, canalizare, cablu TV și internet.
Imobilul are mai multe îmbunătățiri, dar mai necesită finisaje, oferind astfel posibilitatea viitorului proprietar să își pună amprenta personală asupra aspectului final al locuinței.
Locuința se vinde așa cum este prezentată în imagini. Designul modern și materialele de calitate folosite pentru consolidarea recentă o recomandă ca o investiție imobiliară excelentă.
Prețul de achizitie: 114.000 euro negociabil.
Pentru mai multe detalii si pentru a programa o vizionare va asteptam la sediul agentiei noastre din Micro 20 ( Capat Trolebuz), Bulevardul Otelarilor nr.29, bloc K, scara 3 parter, program 10.30-18.30 luni-vineri
Aurelian Iordache – 0772* 064* 583
Valentina Vevera – 0746* 716* 535
Agenția Imobiliară Familia
Sediul central - Timișoara
Bulevardul Victor Babeș nr. 2, 300230, Timișoara, România
Tel: +40.374.40.44.98 / Fax: +40.256.401.179
Email: suport@imobiliare.ro
Luni - Vineri 08:00 - 20:00
Punct de lucru - București: Iride Business Park, Bld. Dimitrie
Pompeiu 9-9A, Clădirea B2B,
020335, Sector 2, București, România
CONTACT
Sediul central - Timișoara
Bulevardul Victor Babeș nr. 2, 300230, Timișoara, România
Tel: +40.374.40.44.98 / Fax: +40.256.401.179
Email: suport@imobiliare.ro
Luni - Vineri 08:00 - 20:00
Punct de lucru - București: Iride Business Park, Bld. Dimitrie
Pompeiu 9-9A, Clădirea B2B,
020335, Sector 2, București, România
Sună acum și cere detalii sau programează o vizionare.
Cere detalii prin email
*
*
*
*
Stații tramvai
Școli
Gradinițe
Supermarket
Parcări
Terenuri sport
Parcuri
Spital
Farmacie
Restaurant
Bancă
Strada Vanatori
aprox.
486 m
Depoul nr. 2
aprox.
604 m
UM 1244
aprox.
778 m
Cimitir israelit
aprox.
994 m
Galmopan
aprox.
1079 m
Patinoar
aprox.
1565 m
Galgros
aprox.
1630 m
Patinoar
aprox.
1637 m
Terminus Aviatiei
aprox.
1640 m
Aviatiei
aprox.
1660 m
Bd Henri Coanda
aprox.
1753 m
Bd Henri Coanda
aprox.
1807 m
Gradinita Mugurel
aprox.
984 m
Scoala Generala nr. 34 Mihai Viteazul
aprox.
1428 m
Grup scolar Radu Negru
aprox.
1770 m
Scoala Generala nr. 33 Sf. Dumitru
aprox.
1775 m
Scoala Generala nr. 18
aprox.
1781 m
Gradinita Nicolae Labis
aprox.
1628 m
Gradinita Arlechino
aprox.
1898 m
Centrul de plasament nr. 3
aprox.
1958 m
Gradinita nr. 47
aprox.
1970 m
Metro
aprox.
1566 m
Kaufland 2
aprox.
1835 m
Carrefour
aprox.
1998 m
Parcare
aprox.
1296 m
Parcare
aprox.
1572 m
Parcare
aprox.
1594 m
Parcare
aprox.
1756 m
Parcare cu plata
aprox.
1772 m
Parcare
aprox.
1817 m
Parcare
aprox.
1859 m
Parcare
aprox.
1956 m
Parcare
aprox.
1957 m
Viva Club Bowling
aprox.
342 m
Parcul CFR
aprox.
1199 m
Parc
aprox.
1376 m
Parc
aprox.
1705 m
Parc
aprox.
1770 m
Parc
aprox.
1907 m
Parc
aprox.
1924 m
Spitalul de Boli Infectioase
aprox.
562 m
Spitalul de Boli Infectioase
aprox.
609 m
Curtea Spitalului P
aprox.
1854 m
Spitalul de Pneumoftiziologie Galati
aprox.
1922 m
SC Eurofarma SRL
aprox.
1690 m
Viva Club
aprox.
305 m
Cezaro Pizza
aprox.
1933 m
Raifeissen Bank
aprox.
1661 m
BRD
aprox.
1681 m
Banca Transilvania
aprox.
1688 m
BCR
aprox.
1717 m
CEC Bank Micro 40
aprox.
1728 m
Înainte să pleci...
Ești sigur că ai văzut și aceste proprietăți?
145.000 €
Județul Galați, Șendreni
3 camere
100 mp
880 mp teren
65.000 €
Galați, Port
3 camere
81 mp
139 mp teren
220.000 €
Galați, Central
4 camere
155 mp
435 mp teren
125.000 €
Galați, Țiglina 2
4 camere
399 mp
399 mp teren
125.000 € + TVA
Județul Galați, Mihail Kogălniceanu
3 camere
93 mp
497 mp teren
199.000 €
Galați, Micro 16
4 camere
133 mp
1.250 mp teren
Creează alertă
Salvează căutarea ca să primești pe email ultimele anunțuri publicate
Case și vile cu 3 camere de vânzare în zona Nord, Galați
Cere detalii prin email
*
*
*
*
Detaliile tale de contact vor fi partajate cu Agentia Imobiliara Familia
Preț total596.345 RON (117.038 €)
Costuri cu achiziția15.481 RON
Preț de achiziție580.864 RON
Costuri cu achiziția15.481 RON
Comision agenție 1.5%8.713 RON
Onorariu notarial5.897 RON
Taxă înscriere OCPI871 RON
Preț de achiziție580.864 RON
Preț locuință580.864 RON
TVA 0%Inclus în prețul cerut
Cost total106.571 RON (20.915 €)
Avans (15%)87.130 RON
Cost achitat în prima lună2.363 RON
Costuri cu achiziția17.078 RON
Cost achitat în prima lună2.363 RON
Comision analiză dosar
400 RON - 900 RON
Taxă evaluare imobil(până la)
900 RON
Rata lunară (variabilă)2.587 RON
Asigurare anuală imobil581 RON
Arhivă electronică102 RON
Poliță PAD130 RON
Asigurare de viață/lună Costul este variabil. În funcție de banca aleasă, procentul variază între 0.0259% și 0.035% din soldul creditului.
Costuri cu achiziția17.078 RON
Comision agenție 1.5%8.713 RON
Onorariu notarial5.897 RON
Taxă întabulare OCPI871 RON
Autentificare contract credit1.597 RON
Preț de achiziție580.864 RON
Preț locuință580.864 RON
TVA 0%Inclus în prețul cerut
Preț de achiziție580.864 RON
Preț locuință580.864 RON
TVA 0%
Inclus în prețul cerut
Avans minim87.130 RON
Credit pe 30 de ani493.734 RON
Cost achitat în prima lună
Taxa evaluare imobil(până la)
900 RON
Rata lunară (variabilă)3.469 RON
Depozit colateral10.407 RON
Comision de garantare FNGCIMM48 RON
Asigurare anuală imobil581 RON
Poliță PAD130 RON
Tarif arhivă electronică102 RON
Costuri adiționale721 RON + taxe notariale
Asigurare viață și complexă (opțională)Costul este variabil. În funcție de banca aleasă, procentul variază între 0.0259% și 0.035% din soldul creditului
Onorariu notarialconform tarif notarial
Taxă întabulare OCPI721 RON
i
Toate valorile de mai sus sunt estimative și nu reprezintă în mod obligatoriu costurile exacte pe care le veți primi de la companiile/instituțiile prin care veți încheia tranzacția.