BLACK FRIDAY – Casă Nouă, în Gilău, la Preț Special!
Preț redus de la 189.000 € → 175.000 €
Ofertă valabilă doar în luna noiembrie!
Casă Alipită,Noua, Semifinisată – Gilău, Cluj
Teren: 400 mp| Suprafață utilă: 130 mp | 5 camere | 2 băi | Preț: de la 189.000 €
Va prezint o casa ideală pentru o familie care caută liniștea unei zone retrase, dar cu acces rapid către Cluj-Napoca.
Situată în Gilău, pe strada 1 Decembrie 1918, această proprietate oferă echilibrul perfect între confortul urban și aerul curat al naturii.
Localizare:
Gilău, pe strada 1 Decembrie 1918
La doar 200 m de stația de autobuz M51
30 minute cu mașina până în centrul Cluj-Napoca
1,2 km până în centrul comunei Gilău
Zonă liniștită, cu poluare fonică și atmosferică redusă, retrasă la 100 m de artera principală, în imediata apropiere a lizierei pădurii
Terenul:
Suprafață totală: 400 m² (dimensiuni 23 × 18 m)
320 m² teren liber, cu dispunere optimă:2 locuri de parcare în față, o zona ideala pentru terasă, in partea din spate, cu ieșire din living, zonă laterală spațioasă, ideală pentru grădină, loc de joacă sau relaxare
Drumul de acces din strada principala se preda pietruit si compactat, ulterior se doreste predarea lui catre primarie pentru asfaltare.
Construcția:
Casa este alipită, dar despărțită de locuința vecină prin doi pereți de cărămidă cu izolație din polistiren, oferind confort fonic și termic excelent.
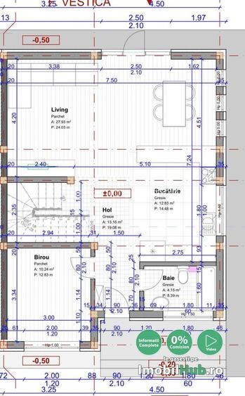
Suprafață utilă: 130 m²
Compartimentare: living cu bucătărie open-space, 4 dormitoare, 2 băi, dressing
Spațiu de zi generos, ce permite compartimentări suplimentare (ex: separarea bucătăriei sau adăugarea unei camere)
Holuri reduse pentru maximizarea spațiului locuibil
Toate utilitățile bransate
Predare Interior semifinisat:
Pereți tencuiți și gletuiți
Instalații sanitare și electrice pe poziție
Încălzire în pardoseală + centrală pe gaz în condensare
Șapă de egalizare
Tâmplărie PVC tripan, 6 camere
Predare Exterior finisat:
Izolație termică (10 cm polistiren expandat)
Tencuială decorativă
Învelitoare din țiglă ceramică
Teren împrejmuit, poartă auto și pietonală
Detalii financiare:
Preț special Black Friday: 175.000 €
Preț anterior: 189.000 €
Metode de plată: numerar sau credit bancar
Timp estimat pentru predare: 2 – 5 luni
In concluzie, această proprietate reprezintă o alegere excelentă pentru cei care își doresc o casă accesibila financiar, nouă, spațioasă și eficient compartimentată, într-o zonă liniștită, aproape de natură, dar ușor accesibilă din Cluj-Napoca.
Sediul central - Timișoara
Bulevardul Victor Babeș nr. 2, 300230, Timișoara, România
Tel: +40.374.40.44.98 / Fax: +40.256.401.179
Email: suport@imobiliare.ro
Luni - Vineri 08:00 - 20:00
Punct de lucru - București: Iride Business Park, Bld. Dimitrie
Pompeiu 9-9A, Clădirea B2B,
020335, Sector 2, București, România
CONTACT
Sediul central - Timișoara
Bulevardul Victor Babeș nr. 2, 300230, Timișoara, România
Tel: +40.374.40.44.98 / Fax: +40.256.401.179
Email: suport@imobiliare.ro
Luni - Vineri 08:00 - 20:00
Punct de lucru - București: Iride Business Park, Bld. Dimitrie
Pompeiu 9-9A, Clădirea B2B,
020335, Sector 2, București, România
Sună acum și cere detalii sau programează o vizionare.
Cere detalii prin email
*
*
*
*
Școli
Supermarket
Scoala Gilau
aprox.
1420 m
Profi
aprox.
1307 m
Înainte să pleci...
Ești sigur că ai văzut și aceste proprietăți?
147.000 €
Județul Cluj, Gilău
4 camere
120 mp
380 mp teren
173.000 €
Județul Cluj, Gilău
4 camere
120 mp
1.000 mp teren
139.900 €
Județul Cluj, Gilău
4 camere
109 mp
220 mp teren
235.000 €
Județul Cluj, Gilău
5 camere
134 mp
489 mp teren
207.000 €
Județul Cluj, Gilău
4 camere
126 mp
378 mp teren
259.000 €
Județul Cluj, Gilău
4 camere
92 mp
393 mp teren
Creează alertă
Salvează căutarea ca să primești pe email ultimele anunțuri publicate
Case și vile cu 4+ camere de vânzare în Gilău, Județul Cluj
Cere detalii prin email
*
*
*
*
Detaliile tale de contact vor fi partajate cu Alexandru Filimon
Preț total900.606 RON (176.748 €)
Costuri cu achiziția8.911 RON
Preț de achiziție891.695 RON
Costuri cu achiziția8.911 RON
Comision agenție Întreabă agenţia
Onorariu notarial7.573 RON
Taxă înscriere OCPI1.338 RON
Preț de achiziție891.695 RON
Preț locuință891.695 RON
TVA 0%Inclus în prețul cerut
Cost total147.194 RON (28.887 €)
Avans (15%)133.754 RON
Cost achitat în prima lună2.674 RON
Costuri cu achiziția10.766 RON
Cost achitat în prima lună2.674 RON
Comision analiză dosar
400 RON - 900 RON
Taxă evaluare imobil(până la)
900 RON
Rata lunară (variabilă)3.972 RON
Asigurare anuală imobil892 RON
Arhivă electronică102 RON
Poliță PAD130 RON
Asigurare de viață/lună Costul este variabil. În funcție de banca aleasă, procentul variază între 0.0259% și 0.035% din soldul creditului.
Costuri cu achiziția10.766 RON
Comision agenție Întreabă agenţia
Onorariu notarial7.573 RON
Taxă întabulare OCPI1.338 RON
Autentificare contract credit1.855 RON
Preț de achiziție891.695 RON
Preț locuință891.695 RON
TVA 0%Inclus în prețul cerut
Preț de achiziție891.695 RON
Preț locuință891.695 RON
TVA 0%
Inclus în prețul cerut
Avans minim285.342 RON
Credit pe 30 de ani606.353 RON
Cost achitat în prima lună
Taxa evaluare imobil(până la)
900 RON
Rata lunară (variabilă)4.260 RON
Depozit colateral12.780 RON
Comision de garantare FNGCIMM74 RON
Asigurare anuală imobil892 RON
Poliță PAD130 RON
Tarif arhivă electronică102 RON
Costuri adiționale1.032 RON + taxe notariale
Asigurare viață și complexă (opțională)Costul este variabil. În funcție de banca aleasă, procentul variază între 0.0259% și 0.035% din soldul creditului
Onorariu notarialconform tarif notarial
Taxă întabulare OCPI1.032 RON
i
Toate valorile de mai sus sunt estimative și nu reprezintă în mod obligatoriu costurile exacte pe care le veți primi de la companiile/instituțiile prin care veți încheia tranzacția.