3

Vila 4 camere 2 băi, Bucium - Visan, 180mp

180.000 €

Bucium, Iași

Nr. cam.:
4
Sup. utilă:
180 mp
Sup. teren:
500 mp
  • • Locație aproximativă

Descriere casă

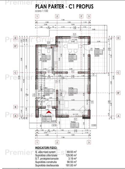
Cod Oferta: PG78883 Compania Imobiliara PREMIER Grup va propune spre vanzare o Vila cu 4 camere, proiect deosebit, avand suprafata construita de 180mp, situata in zona Visan-Bucium. Imobilul va beneficia de urmatoarele imbunatatiri: centrala termica, instalatie de incalzire in pardosea, instalatie de panouri solare cu pompa de caldura, gresie, faianta, parchet, geamuri termopan de cea mai buna calitate, usi de interior, usa metalica, izolatie exterioara de 10cm. Vila este construita in anul 2024 si este compartimentata astfel: Parter: living spatios, bucatarie, baie de serviciu, hol si o terasa in suprafata de 20mp; Etaj: 3 dormitoare, baie cu acces de pe hol, balcon. Terenul aferent constructiei este de 500mp si urmeaza a fi amenajat cu pavele pentru 2 locuri de parcare, trotuare si mini piscina. Imobilul este racordat la urmatoarele utilitati: apa curenta, gaz metan. Constructia este foarte bine amplasata, intr-o zona ravnita, verde si in plina dezvoltare. Pretul de vanzare al proprietatii este de 180.000 euro. Pentru orice informatii, va stam la dispozitie telefonic
0745 **** Vezi tot numărul
, multumim. Cod Oferta: PG78883
Citește mai mult Citește mai puțin
Centrală proprie

Detalii casă

ID anunț: X95I11044 Copiat! 219143270 Copiat!
Actualizat în: 13 Martie 2025
Suprafață construită: 180 mp
Suprafață desfășurată: 180 mp
Nr. băi: 2
An construcție: 2024
Regim înălțime: P+1E

Utilități

Pereți
Faianță
Podele
Parchet Gresie
Ușă intrare
PVC
Uși interior
Panel
Izolații termice
Exterior
Ferestre cu geam termopan
PVC
Amenajare străzi
Mijloace de transport în comun

Puncte de interes

Mijloace transport
train-station
Statia abandonata CUG Iasi
Stații tren aprox. 1172 m
bus-station
Statia "Blocuri Cetatuia", linia 19,27,43,43c,42
Stații autobuz aprox. 1726 m
bus-station
Liceul CUG
Stații autobuz aprox. 1745 m
bus-station
Bazar
Stații autobuz aprox. 1759 m
Școală
school
Scoala Primara Visan
Școli aprox. 603 m
school
Grupul Scolar "Dumitru Mangeron"
Școli aprox. 1689 m
school
Scoala "Nicolae Iorga"
Școli aprox. 1895 m
school
Scoala Generala nr. 42
Școli aprox. 1920 m
Recreere
supermarket
Dedeman (Manta Rosie)
Supermarket aprox. 1490 m
sports-ground
Teren sportiv
Terenuri sport aprox. 1636 m
bar
Trabant
Bar aprox. 1826 m
restaurant
Cavalerul Medieval
Restaurant aprox. 1842 m

Detalii despre preț și costuri

Costuri cu achiziția

Fără credit
9.080 RON
Credit ipotecar
10.956 RON
Noua casă
1.057 RON+ taxe notariale

i

Costuri adiționale mai puțin știute la achiziție: taxe notariale, comisioane etc.

Proprietăți similare

Casă cu 4 camere în Bucium
174.000 €
Iași, Bucium
4 camere
108 mp
250 mp teren
Casă cu 4 camere în Bucium
174.000 €
Iași, Bucium
4 camere
108 mp
250 mp teren
Casă cu 3 camere în Cug
165.000 €
Iași, Cug
3 camere
83 mp
250 mp teren

Detalii de contact

PREMIER Grup Imobiliare

Alexandru Nechifor Agent Imobiliar

4.55(4 review-uri)

PREMIER Grup Imobiliare
PRO

Abonează-te la newsletter să fii primul care primește cele mai noi recomandări de proprietăți și sfaturi de la experți.

CONTACT

Creează alertă

Salvează căutarea ca să primești pe email ultimele anunțuri publicate

Case și vile cu 4+ camere de vânzare în zona Bucium, Iași